Wrocław, Lipa Piotrowska, ul. Tymiankowa
Wrocław, Lipa Piotrowska, ul. Tymiankowa
:format(jpg)/offers/offer/None/main_image/wille-estezja_77e3cd.jpg)
:format(jpg)/offers/offer/None/main_image/wille-estezja_77e3cd.jpg)
1 zdjęcie
Termin oddania
Gotowe
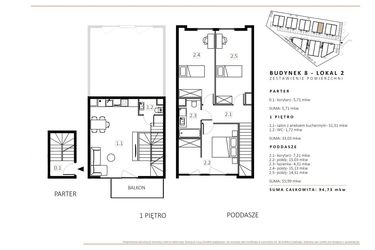
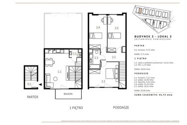
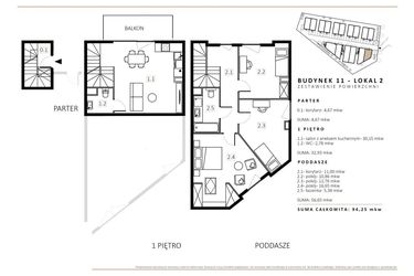
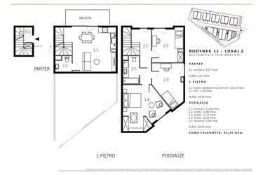
Powierzchnie
80 - 108/m2
Przedział pokoi
3
Kondygnacje
3
Budynki
8
Stand. wykończenia
Standard deweloperski
Mieszkania w inwestycji (22)
od 9 700 zł/m2
Sortuj
Stacja kolejowa - Wrocław Osobowice - 1456 m
Przystanek Autobusowy - 375 m
Dojazd do centrum: pokaż
W pobliżu 1 km od tej inwestycji znajdują się:
7 kawiarni i restauracji, 14 sklepów, 15 obiektów sportowych, 4 placówki medyczne, 11 placówek edukacyjnych, 33 place zabaw
Zdjęcia z budowy
Zobacz na jakim etapie budowy jest ta inwestycja
Udogodnienia Inwestycji
Standard i bezpieczeństwo
- teren ogrodzony
- Standard deweloperski
Instalacje i energetyka
- klimatyzacja
Szczegóły inwestycji
Realizacja inwestycji:
Liczba budynków:
Liczba kondygnacji:
Liczba mieszkań:
Wysokość pomieszczeń:
Standard wykończenia
standard deweloperski
Ogrzewanie
gazowe
Rodzaj własności:
Powierzchnie dodatkowe:
Komórki lokatorskie:
Miejsca postojowe:
- miejsca postojowe naziemne : oraz garaż w bryle budynku
Przyroda:
Aktualna oferta
Dostępne mieszkania:
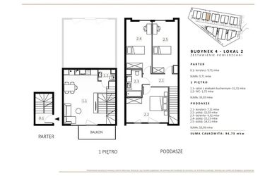
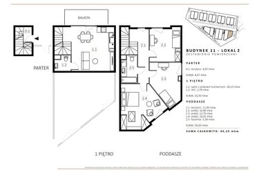
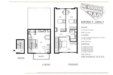
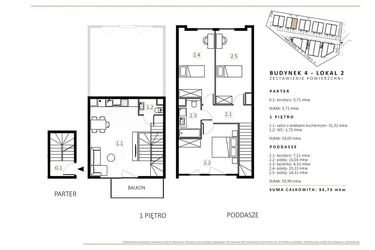
Powierzchnie mieszkań:
Liczba pokoi:
Ceny mieszkań:
- kształtują się w zakresie od 846 746 do 1 004 629 zł
- koszt metra kwadratowego wynosi od 9 700 do 10 908 zł
Opis płatności:
Warunki rezerwacji:
Zabezpieczenie środków klienta:
Wysokość czynszu:
Opis inwestycji
Wille Estezja to drugi etap ukończonej w 2023 roku inwestycji położonej przy ul. Tymiankowej 11, w ramach której powstało 12 apartamentów oferujących Klientom przestronne układy oraz podwyższony standard wykończenia.
Z myślą o oczekiwaniach przyszłych klientów, zaprojektowaliśmy Wille Estezja, jako kameralny kompleks 8 budynków jednorodzinnych w zabudowie bliźniaczej, w której znajdziemy 32 niezależne mieszkania posiadające własne ogrody oraz tarasy. Kameralność inwestycji gwarantuje otaczający ją starodrzew tworząc miejsce, gdzie przyszli mieszkańcy mogą poczuć się jak w domu, ciesząc się jednocześnie wszystkimi udogodnieniami willowej zabudowy.
Wille Estezja to więcej niż tylko miejsce do zamieszkania. Nasza inwestycja została wyposażona w liczne udogodnienia, mające zapewnić mieszkańcom maksymalną wygodę i komfort.
Dodatkowo, każde mieszkanie zostało zaprojektowane z myślą o optymalnym wykorzystaniu przestrzeni i funkcjonalności, aby sprostać potrzebom nawet najbardziej wymagających klientów.
Kładąc nacisk na jakość realizowanej inwestycji zagwarantowaliśmy wysoki standard wykończenia, ale także prywatną przestrzeń, tworząc tym samym idealne miejsce do relaksu i wypoczynku po intensywnym dniu.
Inwestycja Wille Estezja znajduje się na Lipie Piotrowskiej, ul. Tymiankowa (8.6 km od centrum Wrocławia), sprzedaż prowadzi Platforma Mieszkaniowa.
Inwestycja Wille Estezja została wybudowana i oddana do użytkowania w 2 kw. 2025 roku.
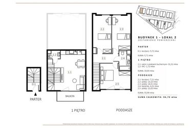
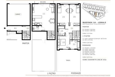
Cały projekt składa się z 32 nowych mieszkania znajdujących się w 8 budynkach. Budynki posiadają 3 kondygnacje naziemne wraz z parterem oraz nie posiadają kondygnacji podziemnych.
Aktualnie w inwestycji Wille Estezja w sprzedaży są 22 nowe mieszkania o powierzchni od 80 do 108 metrów kwadratowych , w cenie od 9 700 zł za metr kwadratowy.
Dla przyszłych mieszkańców Wille Estezja deweloper przewidział:
- miejsca postojowe naziemne
Lokalizacja inwestycji
Psie Pole to wrocławskie osiedle rozciągające się w północnej części miasta. Zamieszkuje je ponad 93 tysiące mieszkańców, a jego obszar liczy prawie 100 km2. Zabudowę tworzą liczne osiedla domów jednorodzinnych i willi oraz osiedla mieszkaniowe. W południowej części osiedla Psie Pole znajduje się duży zespół przemysłowy. Na obrzeżach zaś osiedle otaczają tereny zielone w tym lasy: rędziński, osobowicki czy sołtysowicki. W centralnej części znajduje się siedziba Wyższej Szkoły Oficerskiej Wojsk Lądowych. Zachodnią część Psiego Pola ze wschodnią łączy największa arteria tego osiedla: ulica Jana Kasprowicza. Przebiega tędy również odcinek obwodnicy śródmiejskiej oraz droga E-67. Osiedle jest dobrze skomunikowane dzięki dogodnym połączeniom autobusowym i tramwajowym (w szczególności centrum z innymi ważnymi punktami Wrocławia).
Komunikacja
Jak wygląda komunikacja w okolicy inwestycji Wille Estezja?
Po wrocławskim Psim Polu porusza się kilka linii tramwajowych i autobusowych, co znacznie ułatwia komunikację. Mieszkańcy mogą także bez problemu poruszać się jednośladami – funkcjonuje tu rozbudowana trasa rowerowa. Dla podróżujących koleją Psie Pole posiada również swoją stację kolejową, umiejscowioną we wschodniej części osiedla.
Przyszli mieszkańcy inwestycji Wille Estezja mogą korzystać z rozbudowanej sieci połączeń komunikacyjnych. W odległości 400 metrów od inwestycji Wille Estezja znajduje się najbliższy punkt komunikacyjny - Waniliowa.
Edukacja
Czy w pobliżu inwestycji Wille Estezja znajdują się szkoły/przedszkola?
Mieszkańcy mogą korzystać z bogatej oferty edukacyjnej. W najbliższej okolicy inwestycji Wille Estezja znajduje się 11 placówek edukacyjnych. Najbliżej położone to: Przedszkole Zielona Baza w odległości 400 m.
Opieka medyczna
Dużym atutem inwestycji Wille Estezja jest bliskość ośrodków zdrowotnych. Dostęp do opieki medycznej zapewnią położone w pobliżu: Przychodnia MRE Opieka w odległości 500 m.
Sklepy i usługi
Jak daleko jest do najbliższego sklepu?
Na infrastrukturę handlowo-usługową inwestycji Wille Estezja składa się wiele punktów. Nieopodal, w odległości 400 m znajduje się Żabka, w odległości 400 m znajduje się Ogródek.
Sport
Bliskość terenów rekreacyjnych oraz obiektów sportowych to mocna strona tej lokalizacji. W najbliższej okolicy inwestycji Wille Estezja w odległości 100 m znajduje się basen, w odległości 500 m znajduje się boisko / kort.
Oferty, które mogą Cię zainteresować
Polecane Lokalizacje
- Mieszkania na sprzedaż Karłowice (152 oferty)
- Mieszkania na sprzedaż Kleczków (601 ofert)
- Mieszkania na sprzedaż Kowale (22 oferty)
- Mieszkania na sprzedaż Osiedle Psie Pole (11 ofert)
- Mieszkania na sprzedaż Osobowice (66 ofert)
- Mieszkania na sprzedaż Polanka (210 ofert)
- Mieszkania na sprzedaż Polanowice (5 ofert)
- Mieszkania na sprzedaż Poświętne (88 ofert)
- Mieszkania na sprzedaż Różanka (112 ofert)
- Mieszkania na sprzedaż Sołtysowice (68 ofert)
- Mieszkania na sprzedaż Widawa (1 ofertę)
- Mieszkania na sprzedaż Zakrzów (192 oferty)
Inwestycje w pobliżu na Lipie Piotrowskiej
- Osiedle Bakaliowe (6 ofert)
- Lipa Piotrowska (1 oferta)
- Szymanów (2 oferty)
- Osiedle Arkadia (38 ofert)
- Zamieszkaj na Rudawskiej 5 (40 ofert)
- Kamieńskiego 232 (5 ofert)
- Osobowicka 114 (60 ofert)
- Osiedle Rapsodia etap 2 (51 ofert)
- Osiedle Rapsodia (7 ofert)
- Park Śliwowa (41 ofert)
- Bogatyńska Apartamenty etap 3 (48 ofert)
- Bogatyńska Maślice Milo Dobry Deweloper (5 ofert)





