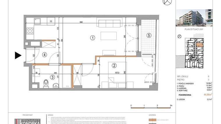
Mieszkanie na sprzedaż 2 pokoje o powierzchni 44,96 m² numer A3/6
Inwestycja:
5th Avenue ApartmentsDeweloper:
Platforma Mieszkaniowa
Inwestycja:
5th Avenue ApartmentsDeweloper:
Platforma MieszkaniowaWrocław, Krzyki, Przedmieście Oławskie, ul. Traugutta 70
Wrocław, Krzyki, Przedmieście Oławskie, ul. Traugutta 70
Termin oddania
3 kw. 2026
Ilość pokoi
2 pokoje
Metraż
44,96 m²
Piętro
3 piętro
Kuchnia
otwarta kuchnia
Wysokość pomieszczeń
od 260 do 280 cm wysokości
Ilość poziomów
1 poziom
Oznaczenie oferty
A3/6

Raport o deweloperze
Poznaj dewelopera bliżej! Pobierz raport, w którym znajdziesz kluczowe informacje o firmie, jej doświadczeniu, nagrodach oraz aktualnych i zrealizowanych inwestycjach.
Budynek i otoczenie
Miejsca postojowe | |
|---|---|
Komórki lokatorskie | dostępne |
Standard wykończenia | standard deweloperski |
Realizacja inwestycji | rozpoczęcie budowy w 3 kw. 2024 roku, planowane oddanie do użytkowania w 3 kw. 2026 roku |
Udogodnienia | usługi w budynku, wózkarnia, rowerownia, winda, recepcja |
Przyroda | informacja u dewelopera |
Charakterystyka energetyczna nieruchomości | informacja u dewelopera |
Rezerwacja i finanse
Rodzaj własności | Odrębna własność z własnością gruntu |
|---|---|
Wysokość czynszu | informacja u dewelopera |
Warunki rezerwacji | Informacja u dewelopera |
Zabezpieczenie środków | Informacja u dewelopera |
Zdjęcia z budowy
Zobacz na jakim etapie budowy jest ta inwestycja
Lokalizacja inwestycji
Stacja kolejowa - Wrocław Główny - 1131 m
Przystanek Tramwajowy - 191 m
Przystanek Autobusowy - 190 m
Dojazd do centrum: pokaż
W pobliżu 1 km od tej inwestycji znajdują się:
55 kawiarni i restauracji, 72 sklepy, 34 obiekty sportowe, 27 placówek medycznych, 107 placówek edukacyjnych, 40 placów zabaw
Przeczytaj więcej o lokalizacji
Krzyki to dawna dzielnica Wrocławia, znajduje się w południowej części miasta. Zajmuje ponad 54 km2 a na jej terenie mieszka prawie 170 tysięcy osób. Na zabudowę dzielnicy składają się zarówno duże osiedla mieszkaniowe, jak i domy jednorodzinne. Został tu wybudowany także najwyższy budynek w Polsce – Sky Tower. Znajduje się tu dużo zabytkowych willi i inne zabytki takie jak Wieża Ciśnień czy Stary Cmentarz Żydowski. Na Krzykach znajduje się Wrocławski Uniwersytet Ekonomiczny a także ponad 100 szkół elementarnych. Największym centrum handlowym jest Wroclavia o powierzchni 71 000 m2. W południowej części Krzyków znajduje się tor wyścigów konnych Partynice oraz Wrocławski Tatr Pantomimy. Dzielnica posiada połączenia autobusowe i tramwajowe – znajduje się tu 5 pętli tramwajowych. Dwie główne ulice Krzyków, które łączą je z centrum miasta to Powstańców Śląskich oraz Ślężna. Znajduje się tu także Wrocławski Dworzec Główny.
Opis oferty
Nowe 2-pokojowe mieszkanie na sprzedaż o powierzchni 44,96 m² znajduje się w nowo budowanej inwestycji deweloperskiej 5th Avenue Apartments na Przedmieściu Oławskim, ul. Traugutta 70 (1.2 km od centrum Wrocławia).
Sprzedaż prowadzi Platforma Mieszkaniowa.
Cała inwestycja składa się z 1 budynku, w którym łącznie znajdują się 84 nowe mieszkania.
Na sprzedaż pozostają 32 oferty o powierzchni od 37 do 58 m².
W budynku jest 8 kondygnacji naziemnych oraz 2 kondygnacje podziemne.
Inwestycja 5th Avenue Apartments jest w trakcie budowy z planowanym na 3 kw. 2026 roku terminem oddania do użytkowania.
Nowe mieszkanie o oznaczeniu A3/6 znajduje się na 3 piętrze i jest 1-poziomowe. Pomieszczenia mają od 260 do 280 centymetrów wysokości. W mieszkaniu znajdują się 2 pokoje.
Dla przyszłych mieszkańców 5th Avenue Apartments deweloper przewidział miejsca postojowe podziemne.
Dzięki temu przyszli właściciele nie będą musieli poszukiwać wolnej przestrzeni parkingowej. Dodatkowo, miejsce postojowe w garażu podziemnym zabezpiecza przed niekorzystnymi warunkami atmosferycznymi.
Opis Inwestycji
Tereny zielone
W 7-piętrowym budynku mieszczą się 84 apartamenty o zróżnicowanych metrażach od 36 do 91 m2. Każdy apartament ma zaprojektowany taras, loggie lub balkon. W budynku na parterze znajdą się również lokale handlowe z dużymi witrynami ekspozycyjnymi. Pod budynkiem zaprojektowano 2 – poziomowy garaż podziemny z 64 stanowiskami postojowymi oraz komórkami lokatorskimi z wjazdem od ulicy Traugutta.
Twój komfort życia „udogodnienia” – parking podziemny, komórki lokatorskie, loggie/balkony/tarasy, lokale usługowe na parterze, rowerowania /wózkownia, recepcja.
Twoja przestrzeń
Wyjątkowa inwestycja we Wrocławiu zlokalizowana w nowej części Przedmieścia Oławskiego tuż przy Odrze. Awangardowa architektura, spójna zabudowa w najbliższej okolicy czynią to miejsce nowoczesnym i modnym. Jest to okolica idealna dla ludzi młodych, aktywnych, kreatywnych, chcących korzystać z najważniejszych atrakcji, jakie oferuje Wrocław. Przedmieście Oławskie to miejsce gdzie komfort i nowoczesność spotykają się z niepowtarzalnym klimatem miejskiej atmosfery.
Położenie tuż obok historycznego centrum Starego Miasta sprawia, że wszystko, co istotne, znajduje się w zasięgu 15 minut pieszo. Mieszkańcy będą mieli łatwy dostęp do atrakcji, tętniących życiem bulwarów nad Odrą, kultowych restauracji, które przyciągają niezwykłą atmosferą oraz sklepów i miejsc kulturalnych.
Nowoczesne wykończenie i architektura na czasie tworzą niepowtarzalną atmosferę, która zachwyca i inspiruje. Funkcjonalność i przemyślana przestrzeń to kluczowe cechy, pozwalające na wygodne i harmonijne życie.
Niezależnie od tego, czy szukasz miejsca do relaksu po intensywnym dniu w mieście, czy też chcesz być blisko pulsującego życia kulturalnego i rozrywkowego, to miejsce spełni Twoje oczekiwania.
Przedmieście Oławskie dziś odzyskuje swoją świetność i nabiera nowego, nowoczesnego charakteru. Przed II wojną światową było to reprezentacyjne osiedle Wrocławia, które zostało w blisko 60% zniszczone w czasie walk o miasto w 1945 roku.
Zrewitalizowane nabrzeże rzeki Oławy, odmienione kamienice i podwórka, tętniące życiem centra aktywności lokalnej. Ponadczasowa architektura apartamentowca 5th Avenue Apartments, pasuje do pozostałej nowej części osiedli i jest spójna z programem rewitalizacji przedmieścia oławskiego, która rozpoczęła się w 2016 roku i wciąż trwa.
Mieszkanie znajduje się w inwestycji 5th Avenue Apartments, w której znajduje się w sprzedaży jeszcze 29 podobnych nowych mieszkań.





