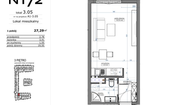
Mieszkanie na sprzedaż 1 pokój o powierzchni 27,29 m² numer 03.05
Rezerwacja
Oferta archiwalna
Inwestycja:
Naramowicka 172Deweloper:
Platforma Mieszkaniowa
Inwestycja:
Naramowicka 172Deweloper:
Platforma MieszkaniowaPoznań, Stare Miasto, Naramowice, ul. Naramowicka 172
Poznań, Stare Miasto, Naramowice, ul. Naramowicka 172
Uwaga
Ta nieruchomość jest nieaktywna. Informacje na jej temat pomagają nam jednak tworzyć wiarygodną bazę informacji na temat lokalnego rynku nieruchomości statystycznych portalu
Najbliższe inwestycje
% Promocje
Osiedle Witaj to wyjątkowy kompleks mieszkaniowy zlokalizowany z dala od zgiełku miasta, w zielonej części dzielnicy Naramowice w Poznaniu. Całość stanowić będzie nowoczesna zabudowa wraz z starannie zaprojektowaną strefą rekreacyjno-wypoczynkową. Wizytówką osiedla będzie duże wewnętrzne Patio realizowane w kolejnych etapach. Będzie to miejsce sprzyjające relaksowi wśród misternie dobranychOsiedle Witaj etap II
od 9 231 zł/m²
gotowe
Poznań, Stare Miasto, Naramowice,
ul. Bielicowa 2
1-4 pokoje, Metraż 28-79 m2
- Naramowice Odnova to kameralne osiedle, które powstanie na poznańskich Naramowicach, w niedalekim sąsiedztwie zakola Warty oraz urokliwego rezerwatu przyrody Żurawiniec. Spokojne i bezpieczne otoczenie, bliskość rozległych terenów zielonych, dobry dostęp do infrastruktury handlowej, usługowej i edukacyjnej to atuty, które docenią rodziny z dziećmi oraz osoby aktywne, ceniące wypoczynek na świeżym
Naramowice Odnova
od 9 004 zł/m²
gotowe
Poznań, Stare Miasto, Naramowice,
ul. Bielicowa
1-4 pokoje, Metraż 33-106 m2
- Nowa inwestycja Invest Complex już w sprzedaży! „Fuelda”to kameralna inwestycji zlokalizowana w Północnej części Poznania przy ulicy Maków Polnych, niedaleko ul. Naramowickiej. Doskonała lokalizacja zapewni przyszłym mieszkańcom błyskawiczną komunikację ze wszystkimi dzielnicami miasta dzięki sąsiedztwu PST (Poznański Szybki Tramwaj). Miejsce to stanowi świetny punkt na mapie Poznania zarówno
Fuelda
od 10 800 zł/m²
4 kwartał 2026
Poznań, Stare Miasto, Umultowo,
ul. Maków Polnych
2-4 pokoje, Metraż 35-88 m2
Termin oddania
Gotowe
Ilość pokoi
1 pokój
Metraż
27,29 m²
Piętro
3 piętro
Kuchnia
otwarta kuchnia
Wysokość pomieszczeń
od 260 do 280 cm wysokości
Ilość poziomów
1 poziom
Oznaczenie oferty
03.05

Raport o deweloperze
Poznaj dewelopera bliżej! Pobierz raport, w którym znajdziesz kluczowe informacje o firmie, jej doświadczeniu, nagrodach oraz aktualnych i zrealizowanych inwestycjach.
Budynek i otoczenie
Miejsca postojowe | |
|---|---|
Komórki lokatorskie | dostępne |
Standard wykończenia | standard deweloperski |
Realizacja inwestycji | rozpoczęcie budowy w 4 kw. 2023 roku, inwestycja została oddana do użytkowania w 3 kw. 2025 roku |
Udogodnienia | winda, rowerownia |
Przyroda | informacja u dewelopera |
Charakterystyka energetyczna nieruchomości |
|
Rezerwacja i finanse
Rodzaj własności | Odrębna własność z własnością gruntu |
|---|---|
Wysokość czynszu | informacja u dewelopera |
Warunki rezerwacji | Informacja u dewelopera |
Zabezpieczenie środków | Informacja u dewelopera |
Lokalizacja inwestycji
Stacja kolejowa - Poznań Karolin - 2671 m
Przystanek Tramwajowy - 233 m
Przystanek Autobusowy - 88 m
Dojazd do centrum: pokaż
W pobliżu 1 km od tej inwestycji znajdują się:
15 kawiarni i restauracji, 34 sklepy, 26 obiektów sportowych, 11 placówek medycznych, 14 placówek edukacyjnych, 47 placów zabaw
Przeczytaj więcej o lokalizacji
Stare Miasto to część Poznania zajmująca powierzchnię 3,8 km kw. W jej obrębie znajdują się takie jednostki administracyjne jak: Chwaliszewo, Dzielnica Cesarska, Garbary, Grobla, Piaski, Piekary, Przepadek, Rybaki, Stare Miasto, Święty Marcin, Święty Wojciech. Łącznie mieszka tu ok. 30 tys. osób. Z zachodu na wschód obszar ten przecina droga nr 92. Od wschodu ograniczony jest rzeką Wartą, od zachodu ul. Obornicką, od południa ul. królowej Jadwigi a od północy Lasem Moralskim. Przy ul. Dworcowej znajduje się dworzec Poznań Główny, jeden z największych w Polsce. Stanowiący serce Poznania rynek Starego Miasta nadal pełni ważne funkcje handlowe i kulturalne. Zabytkowa zabudowa z niepowtarzalnym renesansowym ratuszem na czele, nadaje temu miejscu wyjątkowy klimat. Zainteresowani mogą tu odwiedzić Muzeum Rogalowe, Archeologiczne i Muzeum Historii Miasta Poznania. Znajduje się tu 8 uniwersytetów, w tym Wyższa Szkoła Umiejętności Społecznych, Wyższa Szkoła Handlu i Rachunkowości, Wyższa Szkoła Bankowa w Poznaniu, Wyższa Szkoła Logistyki oraz Wyższa Szkoła Komunikacji i Zarządzania. Największe centra handlowe to Avenida, Stary Browar i Kupiec Poznański. Na Starym Mieście znajdują się też liczne szpitale i przychodnie, m.in. Wielkopolskie Centrum Onkologii, Szpital Miejski im. Z. Strusia, Szpital Prywatny Med Polonia i Specjalistyczny Zakład Opieki Zdrowotnej.
Opis oferty
Nowe 1-pokojowe mieszkanie na sprzedaż o powierzchni 27,29 m² znajduje się w nowo budowanej inwestycji deweloperskiej Naramowicka 172 na Naramowicach, ul. Naramowicka 172 (5.3 km od centrum Poznania).
Sprzedaż prowadzi Platforma Mieszkaniowa.
Cała inwestycja składa się z 2 budynków, w których łącznie znajduje się 368 nowych mieszkań.
Na sprzedaż pozostaje 201 ofert o powierzchni od 26 do 86 m².
W budynkach jest od 5 do 7 kondygnacji naziemnych oraz 2 kondygnacje podziemne.
Inwestycja Naramowicka 172 została wybudowana i oddana do użytkowania w 3 kw. 2025 roku.
Nowe mieszkanie o oznaczeniu 03.05 znajduje się na 3 piętrze i jest 1-poziomowe. Pomieszczenia mają od 260 do 280 centymetrów wysokości. W mieszkaniu znajduje się 1 pokój.
Dla przyszłych mieszkańców Naramowicka 172 deweloper przewidział miejsca postojowe podziemne.
Dzięki temu przyszli właściciele nie będą musieli poszukiwać wolnej przestrzeni parkingowej. Dodatkowo, miejsce postojowe w garażu podziemnym zabezpiecza przed niekorzystnymi warunkami atmosferycznymi.
Opis Inwestycji
Okazyjna cena
Naramowicka 172 to dwa budynki o nowoczesnej, dynamicznej architekturze. Znajdziesz tu zarówno niewielkie, ale funkcjonalne kawalerki jak i mieszkania 2-pokojowe i 3-pokojowe.
Każde mieszkanie posiada balkon, a do mieszkań na parterze, przynależą ogródki! W budynku znajdują się
4 duże apartamenty z wyjątkowymi tarasami.
Mieszkanie znajduje się w inwestycji Naramowicka 172, w której znajduje się w sprzedaży jeszcze 115 podobnych nowych mieszkań.





