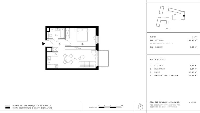
Mieszkanie na sprzedaż 2 pokoje o powierzchni 41,85 m² numer 25
Oferta archiwalna
Inwestycja:
28 czerwca 1956 r.Deweloper:
Strus Development Sp. z o.o.
Inwestycja:
28 czerwca 1956 r.Deweloper:
Strus Development Sp. z o.o.Poznań, Wilda, Zielony Dębiec, ul. 28 Czerwca 1956 r. 346
Poznań, Wilda, Zielony Dębiec, ul. 28 Czerwca 1956 r. 346
Nieruchomość została sprzedana
Zobacz pozostałe mieszkania w inwestycji 28 czerwca 1956 r. lub inne propozycje na Zielonym Dębcu
Najbliższe inwestycje
- Budujemy nowe osiedle u zbiegu ul. Masztowej i Żorskiej. Będą to budynki dwu- i trzykondygnacyjne z podziemną halą garażową i 64 mieszkaniami o powierzchni od 42 do 90 m kw. Dodatkowo na mieszkania zaadaptowany zostanie budynek gospodarczy ze spichlerzem z końca XIX w., wozownią i dawną stajnią, które są częścią zabudowań folwarku Starołęka Wielka. Tu znajdzie się kolejnych 25 mieszkań o
Nowy Folwark
od 9 851 zł/m²
gotowe
Poznań, Nowe Miasto, Starołęka-Minikowo-Marlewo,
ul. Masztowa
2-4 pokoje, Metraż 38-76 m2
- Sielska 5 to nasza kolejna kameralna inwestycja mieszkaniowa zlokalizowana na poznańskim Górczynie. W czteropiętrowym budynku powstaje 14 lokali mieszkalnych, dwu- i trzypokojowych o powierzchni od 45m2 do 68m2. Każde mieszkanie będzie posiadać przynajmniej jeden balkon lub taras z przydomowym ogródkiem. Dla każdego lokalu przewidziano zewnętrzne miejsce postojowe na terenie posesji (płatne
Sielska 5
od 10 500 zł/m²
gotowe
Poznań, Grunwald, Górczyn,
ul. Sielska 5
3 pokoje, Metraż 68 m2
- Na Wildzie – miejska kamienica w sercu Wildy Inwestycja Na Wildzie to nowoczesna, miejska kamienica, która harmonijnie wpisuje się w charakter tej tętniącej życiem dzielnicy. Zaprojektowana przez Ultra Architects i realizowana przez Masterm, łączy ducha przeszłości z nowoczesnymi rozwiązaniami architektonicznymi. Przemyślana forma i dbałość o detale sprawiają, że to miejsce stworzone z myślą o
Na Wildzie
od 13 325 zł/m²
4 kwartał 2027
Poznań, Osiedle Wilda,
ul. Sikorskiego 40
1-4 pokoje, Metraż 27-89 m2
Termin oddania
Gotowe
Ilość pokoi
2 pokoje
Metraż
41,85 m²
Piętro
4 piętro
Kuchnia
otwarta kuchnia
Wysokość pomieszczeń
od 268 do 272 cm wysokości
Ilość poziomów
1 poziom
Oznaczenie oferty
25

Raport o deweloperze
Poznaj dewelopera bliżej! Pobierz raport, w którym znajdziesz kluczowe informacje o firmie, jej doświadczeniu, nagrodach oraz aktualnych i zrealizowanych inwestycjach.
Budynek i otoczenie
Miejsca postojowe | |
|---|---|
Komórki lokatorskie | dostępne: 1,8 - 7 m2 |
Standard wykończenia | standard deweloperski Ogrzewanie sieć miejska |
Realizacja inwestycji | rozpoczęcie budowy w 3 kw. 2021 roku, inwestycja została oddana do użytkowania w 2 kw. 2024 roku |
Udogodnienia | plac zabaw, winda, rowerownia |
Przyroda | informacja u dewelopera |
Charakterystyka energetyczna nieruchomości |
|
Rezerwacja i finanse
Rodzaj własności | Odrębna własność z użytkowaniem wieczystym gruntu |
|---|---|
Wysokość czynszu | informacja u dewelopera |
Warunki rezerwacji | Informacja u dewelopera |
Zabezpieczenie środków | Otwarty mieszkaniowy rachunek powierniczy |
Lokalizacja inwestycji
Stacja kolejowa - Poznań Dębiec - 184 m
Przystanek Tramwajowy - 642 m
Przystanek Autobusowy - 142 m
Dojazd do centrum: pokaż
W pobliżu 1 km od tej inwestycji znajdują się:
10 kawiarni i restauracji, 36 sklepów, 28 obiektów sportowych, 6 placówek medycznych, 37 placówek edukacyjnych, 30 placów zabaw
Przeczytaj więcej o lokalizacji
Wilda to poznańska dzielnica ograniczona od wschodu rzeką Wartą, od północy ul. Królowej Jadwigi, od zachodu linią kolejową a od południa granicą ogrodów działkowych. Dzielnicę przecina z zachodu na wschód ul. Hetmańska a z północy na południe droga wojewódzka nr 430, krzyżująca się na południu z Autostradą Wolności. Na powierzchni 7 km kw żyje tu ok.6,8 tys. osób. Na zabudowę Wildy składają się w większości stare, poprzemysłowe kamienice, z których wiele wpisanych jest na listę zabytków. Po Wildzie kursuje 6 linii tramwajowych i 12 autobusowych. Na terenie dzielnicy działają liczne przedszkola, szkoły i szkoły wyższe, takie jak Akademia Wychowania Fizycznego i Sportu, Wyższa Szkoła Zarządzania, Wyższa Szkoła Zarządzania i Bankowości i Poznańska Wyższa Szkoła Biznesu. Ma tu siedzibę również Ortopedyczno-Rehabilitacyjny Szpital Kliniczny im. Wiktora Degi Uniwersytetu Medycznego. Do największych parków dzielnicy należy Las Dębiński i Park im. Jana Pawła II a zieleń uzupełniają też ogródki działkowe.
Opis oferty
Nowe 2-pokojowe mieszkanie na sprzedaż o powierzchni 41,85 m² znajduje się w nowo budowanej inwestycji deweloperskiej 28 czerwca 1956 r. na Zielonym Dębcu, ul. 28 Czerwca 1956 r. 346 (4.6 km od centrum Poznania).
Inwestycja jest realizowana przez Strus Development Sp. z o.o.
Cała inwestycja składa się z 4 budynków, w których łącznie znajdują się 242 nowe mieszkania.
Na sprzedaż pozostaje 55 ofert o powierzchni od 32 do 82 m².
W budynkach jest od 3 do 6 kondygnacji naziemnych oraz 1 kondygnacja podziemna.
Inwestycja 28 czerwca 1956 r. została wybudowana i oddana do użytkowania w 2 kw. 2024 roku.
Nowe mieszkanie o oznaczeniu 25 znajduje się na 4 piętrze i jest 1-poziomowe. Pomieszczenia mają od 268 do 272 centymetrów wysokości. W mieszkaniu znajdują się 2 pokoje.
Dla przyszłych mieszkańców 28 czerwca 1956 r. deweloper przewidział miejsca postojowe podziemne.
Dzięki temu przyszli właściciele nie będą musieli poszukiwać wolnej przestrzeni parkingowej. Dodatkowo, miejsce postojowe w garażu podziemnym zabezpiecza przed niekorzystnymi warunkami atmosferycznymi.
Opis Inwestycji
Okazyjna cena
Na inwestycję 28 Czerwca 1956 r. składać się będą cztery budynki mieszkalne. Z zewnątrz utrzymane w ciepłych kolorach i czerpiące z aktualnych trendów architektonicznych, by ładnie wpisywać się w zieloną i cechującą się stosunkowo niskim budownictwem okolicę. Do realizacji tej inwestycji zostaną użyte materiały o wysokiej jakości tak, by nie tylko mieszkania, ale także teren wspólny, mogły służyć przez długie lata. Osiedle będzie ogrodzone, a mieszkańcy będą mogli liczyć na ciszę i spokój.
Wspomniane cztery budynki tworzą inwestycję 28 Czerwca 1956 r. Nowe mieszkania o różnej powierzchni, są naszą odpowiedzią na potrzeby dzisiejszego rynku. Duża rozpiętość metrażu z pewnością pozwoli każdemu znaleźć swój nowy dom – zarówno rozglądającym się za mniejszym lokum singlom, jak i szukającym przestronnego miejsca rodzinom. Niezależnie od wielkości mieszkania, każde odznaczać się będzie nienaganną jakością i praktycznym wykorzystaniem przestrzeni.
Mieszkanie znajduje się w inwestycji 28 czerwca 1956 r., w której znajduje się w sprzedaży jeszcze 45 podobnych nowych mieszkań.





