Nova Radiostacja - apartamenty inwestycyjne
Estymowana rata kredytu: 1 717 zł
Mieszkania na sprzedaż oferowane bezpośrednio przez Optimum Property
Łódź, Śródmieście, Śródmieście-Wschód, ul. Telefoniczna 19
Łódź, Śródmieście, Śródmieście-Wschód, ul. Telefoniczna 19
Nova Radiostacja - apartamenty inwestycyjne
Łódź, Śródmieście, Śródmieście-Wschód, ul. Telefoniczna 19
Termin oddania
Gotowe
Powierzchnie
31 - 37/m2
Przedział pokoi
2
Kondygnacje
6
Budynki
1
Stand. wykończenia
Standard deweloperski
Mieszkania w inwestycji (10)
Sortuj
| Rzut | Numer | Pokoje | Metraż | Piętro | Cena | |
|---|---|---|---|---|---|---|
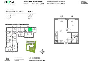
L.U. 17 | 2 | 31,21 m² | 3 | |||
L.U. 2 | 2 | 36,94 m² | 1 | |||
L.U. 21 | 2 | 31,21 m² | 5 | |||
L.U. 9 | 2 | 31,01 m² | 4 | |||
L.U. 19 | 2 | 31,21 m² | 4 | |||
L.U. 22 | 2 | 36,62 m² | 5 | |||
L.U. 10 | 2 | 36,94 m² | 5 | |||
L.U. 12 | 2 | 31,21 m² | Parter | |||
L.U. 7 | 2 | 31,01 m² | 3 | |||
L.U. 11 | 2 | 31,01 m² | 5 |
Promocje
Promocja
Mieszkanie inwestycyjne idealne na wynajem z 23% VAT Okazja! Teraz w cenie promocyjnej 8999 zł netto/m2!
Kup teraz, odbierz klucze i zarabiaj na wynajmie od października! Zainwestuj w najszybciej rozwijającej się biznesowej części Polski! Wybierz mieszkanie idealne dla Twojego biznesu i zarabiaj na wynajmie.
Stacja kolejowa - Łódź Stoki - 1419 m
Przystanek Tramwajowy - 521 m
Przystanek Autobusowy - 74 m
Dojazd do centrum: pokaż
W pobliżu 1 km od tej inwestycji znajdują się:
12 kawiarni i restauracji, 18 sklepów, 48 obiektów sportowych, 7 placówek medycznych, 28 placówek edukacyjnych, 18 placów zabaw
Zdjęcia z budowy
Zobacz na jakim etapie budowy jest ta inwestycja
Udogodnienia Inwestycji
Standard i bezpieczeństwo
- winda
- rowerownia
- monitoring
- teren ogrodzony
- Standard deweloperski
Przyroda w okolicy
- 4 parki w okolicy
Szczegóły inwestycji
Realizacja inwestycji: | rozpoczęcie budowy w 1 kw. 2024 roku, inwestycja została oddana do użytkowania w 2 kw. 2026 roku |
|---|---|
Liczba budynków: | cała inwestycja składa się z 1 budynku |
Liczba kondygnacji: | budynek posiada 6 kondygnacji naziemnych wraz z parterem oraz 1 kondygnację podziemną |
Liczba mieszkań: | cała inwestycja składa się z 77 lokali mieszkalnych |
Wysokość pomieszczeń: | w zależności od kondygnacji od 260 do 280 cm wysokości |
Standard wykończenia | standard deweloperski |
Rodzaj własności: | odrębna własność z własnością gruntu |
Powierzchnie dodatkowe: | balkon |
Komórki lokatorskie: | posiada |
Miejsca postojowe: | w inwestycji przewidziano:
|
Przyroda: | informacja u dewelopera |
Aktualna oferta
Dostępne mieszkania: | aktualnie dostępnych jest 10 mieszkań |
|---|---|
Powierzchnie mieszkań: | od 31 do 37 m² |
Liczba pokoi: | dostępne są mieszkania 2-pokojowe |
Ceny mieszkań: |
|
Opis płatności: | zgodnie z harmonogramem |
Warunki rezerwacji: | 1% ceny netto |
Zabezpieczenie środków klienta: | otwarty mieszkaniowy rachunek powierniczy |
Wysokość czynszu: | informacja u dewelopera |
Opis inwestycji
1. DLA INWESTORÓW/PRZEDSIĘBIORCÓW/OSÓB KUPUJĄCYCH Z MYŚLĄ O ZARABIANIU NA WYNAJMIE
atrakcyjne mieszkania na wynajem (kawalerka / 2 pokoje) z 23% vat
blisko UŁ, UMed – studenci jako przyszli najemcy
mieszkania gotowe do odbioru
kup teraz zarabiaj na wynajmie od października
szybki zwrot z wynajmu
bardzo duży popyt na wynajem w tych okolicach (szczególnie duży potencjał widzimy w inwestycji Nova Radiostacja ze względu na wydziały UŁ, UMed, Paragraf, wydział matematyki i informatyki, wydział biologii i ochrony środowiska, wydział zarządzania, wydział chemii etc. – wszystko po sąsiedzku przy ul. Pomorskiej)
2. DLA PRZEDSIĘBIORCÓW/OSÓB SZUKAJĄCYCH MIEJSCA NA BIURO
nowe miejsce dla Twojego biznesu
na biuro, dla małej firmy, np. kosmetyczka, grafik, projektant, freelancer, przedsiębiorca na JDG, usługi księgowo-podatkowe
mieszkaj i pracuj, komfortowe biuro w mieszkaniu
Cenisz wygodę, szukasz spokojnego i bezpiecznego miejsca do zamieszkania z dala od zgiełku miasta, a jednocześnie blisko centrum? Nova Radiostacja to Twój nowy adres!
W nowoczesnym pięciopiętrowym budynku otoczonym zielenią, położonym przy ulicy Telefonicznej 19 w Łodzi, powstanie blisko 100 mieszkań, apartamentów i lokali użytkowych o powierzchniach od 30 do 80 m2 z zielonymi tarasami i balkonami.
Osiedle będzie ogrodzone, a wjazd będzie odbywał się przez dwie bramy na pilot. To nie tylko komfort na co dzień, ale także gwarancja spokoju i bezpieczeństwa. Ponadto, w budynku zaprojektowaliśmy ogólnodostępną rowerownię na parterze i garaż podziemny z miejscami postojowymi, komórkami lokatorskimi i prywatnymi pomieszczeniami na rowery.
Jesteśmy pewni, że każdy znajdzie tu swoje wymarzone miejsce do życia!
Wybierz nowe mieszkanie już teraz!
Inwestycja Nova Radiostacja - apartamenty inwestycyjne znajduje się w Sródmieściu-Wschód, ul. Telefoniczna 19 (3.6 km od centrum Łodzi), została zrealizowana przez Optimum Property.
Inwestycja Nova Radiostacja - apartamenty inwestycyjne została wybudowana i oddana do użytkowania w 2 kw. 2026 roku.
Cały projekt składa się z 77 nowych mieszkań znajdujących się w 1 budynku. Budynek posiada 6 kondygnacji naziemnych wraz z parterem oraz 1 kondygnację podziemną.
Aktualnie w inwestycji Nova Radiostacja - apartamenty inwestycyjne w sprzedaży jest 10 nowych mieszkań o powierzchni od 31 do 37 metrów kwadratowych, w cenie od 10 900 zł za metr kwadratowy.
Dla przyszłych mieszkańców Nova Radiostacja - apartamenty inwestycyjne deweloper przewidział:
- miejsca postojowe podziemne
- miejsca postojowe naziemne
W inwestycji znajdują się komórki lokatorskie.
Lokalizacja inwestycji
Łódzkie Śródmieście to obszar w kształcie litery „L” ograniczony ulicami Północną, Piotrkowską i Kilińskiego. Najbardziej rozpoznawalną ulicą Śródmieścia, jak i całej Łodzi, jest ulica Piotrkowska. To tu koncentruje się życie kulturalne i rozrywkowe miasta. Ze Śródmieścia można nie tylko wygodnie dojechać do każdej dzielnicy miasta, ale też w ciągu ok. godziny znaleźć się w Warszawie dzięki położonej tu stacji PKP Łódź Fabryczna. Centrum miasta składa się głównie z przedwojennej zabudowy, czyli kamienic, uzupełnionych wielomieszkaniową zabudową powojenną. Znajduje się tu Uniwersytet Łódzki, główny ośrodek naukowy w mieście. To też doskonały dostęp do szpitali, bo w Śródmieściu ulokowane są dwa szpitale miejskie. Dzielnica otoczona jest terenami zielonymi ,takimi jak Park Piłsudskiego czy Park Poniatowskiego. Nowe budownictwo sąsiaduje tu więc z licznymi miejscami do aktywnego wypoczynku jak i zabytkami.
Komunikacja
Jak wygląda komunikacja w okolicy inwestycji Nova Radiostacja - apartamenty inwestycyjne?
Śródmieście Łodzi jest doskonale skomunikowane z resztą miasta dzięki autobusom i tramwajom kursującym po każdej większej ulicy dzielnicy. Dodatkowo z położonego w Śródmieściu dworca PKP Łódź Fabryczna można dojechać do wszystkich większych miast Polski jak i pozostałych stacji w Łodzi. 6 km na południe od Śródmieścia znajduje się międzynarodowy Port Lotniczy.
Przyszli mieszkańcy inwestycji Nova Radiostacja - apartamenty inwestycyjne mogą korzystać z rozbudowanej sieci połączeń komunikacyjnych. W odległości 100 metrów od inwestycji Nova Radiostacja - apartamenty inwestycyjne znajduje się najbliższy punkt komunikacyjny - Telefoniczna - Bystrzycka NŻ.
Edukacja
Czy w pobliżu inwestycji Nova Radiostacja - apartamenty inwestycyjne znajdują się szkoły/przedszkola?
Mieszkańcy mogą korzystać z bogatej oferty edukacyjnej. W najbliższej okolicy inwestycji Nova Radiostacja - apartamenty inwestycyjne znajduje się 28 placówek edukacyjnych. Najbliżej położone to: Przedszkole Miejskie nr 14 w odległości 300 m, Wydział Chemii Uniwersytetu Łódzkiego w odległości 300 m.
Opieka medyczna
Dużym atutem inwestycji Nova Radiostacja - apartamenty inwestycyjne jest bliskość ośrodków zdrowotnych. Dostęp do opieki medycznej zapewnią położone w pobliżu: Prima-Med w odległości 600 m.
Sklepy i usługi
Jak daleko jest do najbliższego sklepu?
Na infrastrukturę handlowo-usługową inwestycji Nova Radiostacja - apartamenty inwestycyjne składa się wiele punktów. Nieopodal, w odległości 400 m znajduje się Biedronka, w odległości 400 m znajduje się Żabka.
Sport
Bliskość terenów rekreacyjnych oraz obiektów sportowych to mocna strona tej lokalizacji. W najbliższej okolicy inwestycji Nova Radiostacja - apartamenty inwestycyjne w odległości 50 m znajduje się Akademicki Związek Sportowy Łódź, w odległości 50 m znajduje się boisko / kort.
Optimum Property
Strona internetowa inwestycjiAdres biura sprzedaży:
93-120 Łódź, ul. Przybyszewskiego 161Godziny otwarcia biura sprzedaży:
- Poniedziałek: 09:00 - 17:00
- Wtorek: 09:00 - 17:00
- Środa: 09:00 - 17:00
- Czwartek: 09:00 - 17:00
- Piątek: 09:00 - 17:00





