Dolna Górna Wilda
Oferta archiwalna
Mieszkania na sprzedaż oferowane bezpośrednio przez OKRE Development Sp. z o.o.
Poznań, Osiedle Wilda, ul. Dolna Wilda 12
Poznań, Osiedle Wilda, ul. Dolna Wilda 12
Oferta archiwalna
Uwaga! Wizytówka niniejszej inwestycji jest nieaktywna. Informacje na jej temat pomagają nam jednak tworzyć wiarygodną bazę informacji na temat lokalnego rynku nieruchomości.
Mamy dla Ciebie 621 ofert w najbliższej okolicy!
Podobne oferty w najbliższej okolicy
Prezentacja oferty archiwalnej
:format(jpg)/offers/offer/16197/main_image/dolna-gorna-wilda_492e57.jpg)
:format(jpg)/offers/offer/16197/main_image/dolna-gorna-wilda_492e57.jpg)
1 zdjęcie
Udogodnienia Inwestycji
Standard i bezpieczeństwo
- winda
- ochrona całodobowa
- monitoring
- teren ogrodzony
- recepcja
- rowerownia
- wózkarnia
- Standard deweloperski
Instalacje i energetyka
- klimatyzacja
Przyroda w okolicy
- 6 parków w okolicy
- park
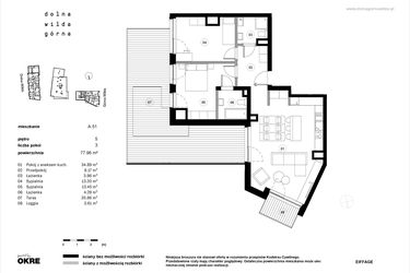
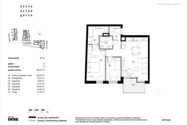
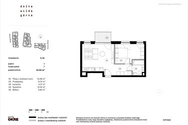
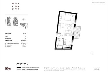
Szczegóły inwestycji
Realizacja inwestycji: | rozpoczęcie budowy w 1 kw. 2024 roku,
planowane oddanie do użytkowania w 1 kw. 2026 roku |
|---|---|
Liczba budynków: | cała inwestycja składa się z 3 budynków |
Liczba kondygnacji: | budynki posiadają od 5 do 7 kondygnacji naziemnych wraz z parterem oraz 1 kondygnację podziemną |
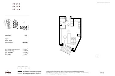
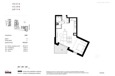
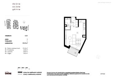
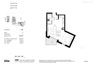
Liczba mieszkań: | cała inwestycja składa się z 93 lokali mieszkalnych |
Wysokość pomieszczeń: | w zależności od kondygnacji od 251 do 290 cm wysokości |
Standard wykończenia | standard deweloperski Ogrzewanie kanałowe i naścienne |
Rodzaj własności: | informacja u dewelopera |
Powierzchnie dodatkowe: | nie przewidziano powierzchni dodatkowych |
Komórki lokatorskie: | posiada: 63 szt w budynku A i 15 w hali plus 4 zależne z miejscami postojowymi |
Miejsca postojowe: | w inwestycji przewidziano:
|
Przyroda: | w okolicy inwestycji znajduje się park |
Opis inwestycji
Dolna Górna Wilda – Żyj pełnią Poznania
Nowoczesne mieszkania w sercu Wildy – idealne dla tych, którzy chcą czerpać z miasta to, co najlepsze.
Wyobraź sobie życie, w którym wszystko masz w zasięgu krótkiego spaceru. Z Dolnej Górnej Wildy w 5 minut dojdziesz do Starego Browaru, na zakupy lub do kina, a w kwadrans na Stary Rynek do ulubionej kawiarni czy restauracji. W kilka chwil dotrzesz również do pracy w biurowcach Nowego Rynku. Blisko jest też dworzec i przystanki komunikacji miejskiej.
Wilda, choć blisko centrum, zachowuje swój spokojny, zielony charakter. Ulice porastają drzewa, a zakątki dzielnicy często ukrywają się wśród zieleni. Co więcej, na przeciwko inwestycji powstanie nowy Park Wildecki – zielona przestrzeń do odpoczynku - spacerów, joggingu czy jazdy na rowerze.
Dolna Górna Wilda to jednak nie tylko wygoda, ale i komfort, jaki daje przestrzeń. W ofercie znajdziesz mieszkania o powierzchni ponad 80 m², przeznaczone nie tylko dla rodzin, lecz także dla wszystkich, którzy cenią swobodę i prestiż.
- Możesz połączyć pomieszczenia i stworzyć imponujący, ponad 40-metrowy salon – idealny do wspólnych spotkań i celebracji życia.
- Dodatkowy pokój zaaranżujesz według potrzeb: na biuro, pracownię, garderobę, domową siłownię czy miejsce dla gości.
- Metraże powyżej 90 m² dają nie tylko wygodę i prywatność, ale też ciszę – dzięki większym odległościom od sąsiadów.
To mieszkania dla singla, który chce zamiast czynszu spłacać własny kredyt, dla pary marzącej o nowoczesnym mieszkaniu w centrum, dla rodziców szukających bezpiecznej bazy dla studiującego dziecka, dla freelancerów i kreatywnych dusz potrzebujących przestrzeni do pracy twórczej, a także dla mieszkańców Wildy, którzy chcą zamienić starą kamienicę bez windy na komfort nowego budownictwa.
Dlaczego warto?
• Standard, dzięki któremu mieszka się przyjemniej. Wysokie pomieszczenia – nawet do 2,9 m – potęgują wrażenie przestrzeni i lekkości. Duże, drewniane okna wpuszczają więcej światła dziennego, dzięki czemu wnętrza są jasne i pełne energii. A tarasy wykończone deską z daglezji nie tylko wyglądają elegancko, ale też dają naturalne, ciepłe odczucie podczas codziennego użytkowania.
• Poczucie bezpieczeństwa, które gwarantuje zamknięty teren, monitoring, recepcja, hala garażowa, miejsca dla rowerów i wózków.
• Architektura, dzięki której można poczuć atmosferę europejskich metropolii – nowoczesny modernizm w duchu Berlina i Kopenhagi spotyka się tu z zielonymi dziedzińcami i sztuką Oskara Zięty, tworząc stylowe miejsce do życia.
• Sztuka Oskara Zięty, która nie tylko zdobi, ale także pobudza wyobraźnię i zachęca do twórczego myślenia — idealna dla tych, którzy żyją w rytmie kreatywności. Przy każdych drzwiach pojawi się unikalny element z numeracją mieszkań zaprojektowany przez artystę, dzięki czemu każdy z mieszkańców otrzyma własne, małe dzieło sztuki. Dolna Górna Wilda to przestrzeń stworzona z myślą o tych, którzy żyją sztuką i wrażliwością estetyczną – artystach, freelancerach, projektantach, twórcach i wszystkich, dla których otoczenie ma znaczenie.
Inwestycja Dolna Górna Wilda znajduje się na Wildzie, ul. Dolna Wilda 12 (1 km od centrum Poznania), jest realizowana przez OKRE Development Sp. z o.o.
Inwestycja obecnie jest w trakcie budowy z planowanym na 1 kw. 2026 roku terminem oddania do użytkowania.
Cały projekt składa się z 93 nowych mieszkania znajdujących się w 3 budynkach. Budynki posiadają od 5 do 7 kondygnacji naziemnych wraz z parterem oraz 1 kondygnację podziemną.
Aktualnie w inwestycji Dolna Górna Wilda nie ma nowych mieszkań w sprzedaży.
Dla przyszłych mieszkańców Dolna Górna Wilda deweloper przewidział:
- miejsca postojowe podziemne
W inwestycji znajdują się komórki lokatorskie 63 szt w budynku A i 15 w hali plus 4 zależne z miejscami postojowymi.
Lokalizacja inwestycji
Wilda to poznańska dzielnica ograniczona od wschodu rzeką Wartą, od północy ul. Królowej Jadwigi, od zachodu linią kolejową a od południa granicą ogrodów działkowych. Dzielnicę przecina z zachodu na wschód ul. Hetmańska a z północy na południe droga wojewódzka nr 430, krzyżująca się na południu z Autostradą Wolności. Na powierzchni 7 km kw żyje tu ok.6,8 tys. osób. Na zabudowę Wildy składają się w większości stare, poprzemysłowe kamienice, z których wiele wpisanych jest na listę zabytków. Po Wildzie kursuje 6 linii tramwajowych i 12 autobusowych. Na terenie dzielnicy działają liczne przedszkola, szkoły i szkoły wyższe, takie jak Akademia Wychowania Fizycznego i Sportu, Wyższa Szkoła Zarządzania, Wyższa Szkoła Zarządzania i Bankowości i Poznańska Wyższa Szkoła Biznesu. Ma tu siedzibę również Ortopedyczno-Rehabilitacyjny Szpital Kliniczny im. Wiktora Degi Uniwersytetu Medycznego. Do największych parków dzielnicy należy Las Dębiński i Park im. Jana Pawła II a zieleń uzupełniają też ogródki działkowe.
Komunikacja
Jak wygląda komunikacja w okolicy inwestycji Dolna Górna Wilda?
Przy północnej granicy dzielnicy działa główna stacja kolejowa poznania Poznań Główny, poza tym na terenie dzielnicy znajduje się stacja Poznań Dębiec. Główne drogi dzielnicy to ul. Hetmańska i Autostrada Wolności, umożliwiająca dojazd do zachodnich granic kraju. Na terenie dzielnicy kursuje 6 tramwajów, 10 autobusów dziennych i 2 nocne.
Przyszli mieszkańcy inwestycji Dolna Górna Wilda mogą korzystać z rozbudowanej sieci połączeń komunikacyjnych. W odległości 100 metrów od inwestycji Dolna Górna Wilda znajduje się najbliższy punkt komunikacyjny - Różana.
Edukacja
Czy w pobliżu inwestycji Dolna Górna Wilda znajdują się szkoły/przedszkola?
Mieszkańcy mogą korzystać z bogatej oferty edukacyjnej. W najbliższej okolicy inwestycji Dolna Górna Wilda znajdują się 42 placówki edukacyjne. Najbliżej położone to: Zespół Szkół nr 5 im. Bolesława Chrobrego w odległości 100 m, Przedszkole nr 115 w odległości 200 m.
Opieka medyczna
Dużym atutem inwestycji Dolna Górna Wilda jest bliskość ośrodków zdrowotnych. Dostęp do opieki medycznej zapewnią położone w pobliżu: Credus Clinic w odległości 100 m.
Sklepy i usługi
Jak daleko jest do najbliższego sklepu?
Na infrastrukturę handlowo-usługową inwestycji Dolna Górna Wilda składa się wiele punktów. Nieopodal, w odległości 100 m znajduje się Żabka, w odległości 100 m znajduje się Netto.
Sport
Bliskość terenów rekreacyjnych oraz obiektów sportowych to mocna strona tej lokalizacji. W najbliższej okolicy inwestycji Dolna Górna Wilda w odległości 100 m znajduje się boisko / kort, w odległości 200 m znajduje się FitSwim.





