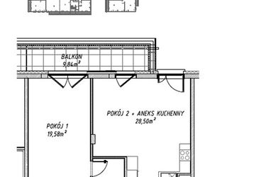
Mieszkanie na sprzedaż 3 pokoje o powierzchni 88,53 m² numer 51A
Oferta archiwalna
Inwestycja:
Ogrody WenusDeweloper:
Ogrody Wenus
Inwestycja:
Ogrody WenusDeweloper:
Ogrody Wenuspiaseczyński, Józefosław, ul. Wenus
piaseczyński, Józefosław, ul. Wenus
Nieruchomość została sprzedana
Zobacz pozostałe mieszkania w inwestycji Ogrody Wenus lub inne propozycje w Józefosławiu
Najbliższe inwestycje
% Promocje
Miasteczko Julianów to nowe osiedle położone w malowniczym otoczeniu, powstające z myślą o osobach szukających odskoczni od dynamicznego życia w dużym mieście. Osiedle charakteryzuje się niską zabudową, która doskonale wkomponowuje się w zielone otoczenie, zapewniając mieszkańcom poczucie spokoju i komfortu. Lokalizacja zapewnia szybki i łatwy dostęp do centrum Piaseczna oraz wszystkichMiasteczko Julianów
od 13 316 zł/m²
gotowe
piaseczyński, Julianów,
ul. Urbanistów 12
1-3 pokoje, Metraż 35-55 m2
- Miasteczko Julianów 2 to kolejny etap kameralnej ale nowoczesnej inwestycji w podwarszawskim Julianowie. Doskonała lokalizacja nieopodal Piaseczna – blisko natury i blisko miasta – zapewnia wygodny dojazd do centrum Warszawy, spacerową odległość do licznych placówek edukacyjnych, sklepów, restauracji i ośrodka sportów oraz sąsiedztwo terenów zielonych. Osiedle składa się z 2 budynków w
Miasteczko Julianów etap 2
od 11 800 zł/m²
4 kwartał 2027
piaseczyński, Julianów,
ul. Architektów
1-5 pokoi, Metraż 27-105 m2
- Julianów Verde – Styl życia w najlepszym wydaniu ul. Urbanistów, Julianów (k. Piaseczna) Julianów Verde to nowoczesna i przemyślana inwestycja mieszkaniowa, która powstaje w spokojnej, zielonej części Julianowa – zaledwie kilka minut od Piaseczna i w dogodnej odległości od Warszawy. Projekt zakłada budowę trzech czterokondygnacyjnych budynków, w których łącznie powstanie 144 mieszkania. W
Julianów Verde
od 10 750 zł/m²
1 kwartał 2027
piaseczyński, Julianów,
ul. Urbanistów
2-3 pokoje, Metraż 40-66 m2
Termin oddania
Gotowe
Ilość pokoi
3 pokoje
Metraż
88,53 m²
Piętro
1 piętro
Wysokość pomieszczeń
285 cm wysokości
Ilość poziomów
1 poziom
Oznaczenie oferty
51A

Raport o deweloperze
Poznaj dewelopera bliżej! Pobierz raport, w którym znajdziesz kluczowe informacje o firmie, jej doświadczeniu, nagrodach oraz aktualnych i zrealizowanych inwestycjach.
Budynek i otoczenie
Miejsca postojowe | |
|---|---|
Komórki lokatorskie | dostępne |
Standard wykończenia | standard deweloperski Konstrukcja budynku Mieszana Stolarka okienna PCV Posadzka Szlichta cementowa Ściany Tynk gipsowy maszynowy zacierany na gładko, malowany jednokrotnie na biało. Sufity Tynk gipsowy maszynowy zacierany na gładko, malowany jednokrotnie na biało. Parapety wewnętrzne Konglomerat Ogrzewanie Własne Wentylacja Mechaniczna |
Realizacja inwestycji | rozpoczęcie budowy w 3 kw. 2016 roku, inwestycja została oddana do użytkowania w 2 kw. 2018 roku |
Udogodnienia | plac zabaw, monitoring, teren ogrodzony, internet, przystosowane dla niepełnosprawnych, TV kablowa, winda, videodomofon, własna kotłownia, patio / dziedziniec |
Przyroda | w okolicy inwestycji znajduje się las, rezerwat przyrody |
Charakterystyka energetyczna nieruchomości | informacja u dewelopera |
Rezerwacja i finanse
Rodzaj własności | Odrębna własność z własnością gruntu |
|---|---|
Wysokość czynszu | planowany czynsz będzie w wysokości od 7 do 8 zł/m² (czyli od 620 do 708 zł za całość) |
Warunki rezerwacji | Informacja u dewelopera |
Zabezpieczenie środków | Informacja u dewelopera |
Lokalizacja inwestycji
Przeczytaj więcej o lokalizacji
Józefosław jest miejscowością przynależącą do gminy Piaseczno w powiecie piaseczyńskim, w województwie mazowieckim. Tereny Józefosławia usytuowane są przy południowej granicy Lasu Kabackiego, zaś atutem lokalizacji jest bliskość Warszawy – odległość do centrum stolicy wynosi zaledwie 15 km. Zamieszkuje tam obecnie ok. 7 tys. osób, lecz liczba ta wciąż wzrasta, toteż dynamicznie rozwija się nowoczesna zabudowa mieszkaniowa. Na obszarze Józefosławia występują zarówno domy jednorodzinne bądź wille, jak i niskie bloki. Architekturę mieszkaniową otacza malowniczy, zielony pejzaż, a mieszkańców przyciąga kameralny, zaciszny charakter miejsca. W miejscowości tej znajdują się typowo wiejskie zabudowania oraz grunty orne. Główna arteria to ulica Wilanowska, w pobliżu której zlokalizowane jest Centrum Handlowe Józefosław (Marcredo Compact). Na terenie miejscowości Józefosław kursują autobusy warszawskiej komunikacji miejskiej, a także autobusy PKS.
Opis oferty
Nowe 3-pokojowe mieszkanie na sprzedaż o powierzchni 88,53 m² znajduje się w nowo budowanej inwestycji deweloperskiej Ogrody Wenus w Józefosławiu, ul. Wenus (1.3 km od Warszawy).
Inwestycja jest realizowana przez Ogrody Wenus.
Cała inwestycja składa się z 1 budynku, w którym łącznie znajduje się 69 nowych mieszkań.
Inwestycja jest już wyprzedana.
W budynku są 3 kondygnacje naziemne oraz 1 kondygnacja podziemna.
Inwestycja Ogrody Wenus została wybudowana i oddana do użytkowania w 2 kw. 2018 roku.
Nowe mieszkanie o oznaczeniu 51A znajduje się na 1 piętrze i jest 1-poziomowe. Pomieszczenia mają 285 centymetrów wysokości. W mieszkaniu znajdują się 3 pokoje.
Dla przyszłych mieszkańców Ogrody Wenus deweloper przewidział miejsca postojowe podziemne.
Dzięki temu przyszli właściciele nie będą musieli poszukiwać wolnej przestrzeni parkingowej. Dodatkowo, miejsce postojowe w garażu podziemnym zabezpiecza przed niekorzystnymi warunkami atmosferycznymi.
Opis Inwestycji
Osiedle Ogrody Wenus to komfortowe, przestronne 62 lokale mieszkalne, zaprojektowane tak, aby spełniały oczekiwania najbardziej wymagających klientów. Przestrzenne i sprawdzone układy mieszkań to gwarancja optymalnej realizacji własnych potrzeb.
Duże okna zapewniające idealne doświetlenie wszystkich mieszkań i pokoi, stwarzające ich użytkownikom idealne warunki do życia. Wszystkie mieszkania posiadają własne balkony lub tarasy, a dodatkowo mieszkania zlokalizowane na parterze posiadają prywatne ogródki.
Nowoczesne budynki, zaprojektowane przez renomowaną pracownię architektoniczną, wyróżniają się czystą formą, a także posiadają elegancki ponadczasowy wyraz. Kameralny charakter Osiedla to gwarancja dla Mieszkańców przyjaznej i spokojnej eksploatacji lokalu.
Dla zwiększenia komfortu użytkowników, na poziomie garaży, poza miejscami postojowymi dla samochodów, zaprojektowano wygodne i funkcjonalne komórki lokatorskie.
Osiedle Ogrody Wenus to także łatwy dostęp do pobliskich obiektów usługowo-handlowych, sportowych, terenów rekreacyjnych, komunikacji miejskiej, oraz obiektów użyteczności publicznej.
Mieszkanie znajduje się w inwestycji Ogrody Wenus.





