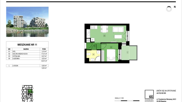
Mieszkanie na sprzedaż 2 pokoje o powierzchni 32,91 m² numer B.11
Inwestycja:
Panorama Kwiatkowskiego RiverDeweloper:
NG Kwiatkowskiego Sp. z o.o.
Inwestycja:
Panorama Kwiatkowskiego RiverDeweloper:
NG Kwiatkowskiego Sp. z o.o.Rzeszów, Drabinianka, ul. Fabryczna
Rzeszów, Drabinianka, ul. Fabryczna
Termin oddania
Gotowe
Ilość pokoi
2 pokoje
Metraż
32,91 m²
Piętro
1 piętro
Kuchnia
otwarta kuchnia
Wysokość pomieszczeń
od 260 do 280 cm wysokości
Ilość poziomów
1 poziom
Oznaczenie oferty
B.11

Raport o deweloperze
Poznaj dewelopera bliżej! Pobierz raport, w którym znajdziesz kluczowe informacje o firmie, jej doświadczeniu, nagrodach oraz aktualnych i zrealizowanych inwestycjach.
Budynek i otoczenie
Miejsca postojowe | |
|---|---|
Komórki lokatorskie | dostępne: nieobowiązkowy zakup - szczegóły w biurze sprzedaży lub telefonicznie. |
Standard wykończenia | standard deweloperski Ogrzewanie miejskie |
Realizacja inwestycji | rozpoczęcie budowy w 4 kw. 2023 roku, inwestycja została oddana do użytkowania w 1 kw. 2025 roku |
Udogodnienia | teren ogrodzony, winda |
Przyroda | informacja u dewelopera |
Charakterystyka energetyczna nieruchomości | informacja u dewelopera |
Rezerwacja i finanse
Rodzaj własności | Odrębna własność z własnością gruntu |
|---|---|
Wysokość czynszu | informacja u dewelopera |
Warunki rezerwacji | Informacja u dewelopera |
Zabezpieczenie środków | Informacja u dewelopera |
Zdjęcia z budowy
Zobacz na jakim etapie budowy jest ta inwestycja
Lokalizacja inwestycji
Stacja kolejowa - Rzeszów Politechnika - 1771 m
Przystanek Autobusowy - 173 m
Dojazd do centrum: pokaż
W pobliżu 1 km od tej inwestycji znajdują się:
15 kawiarni i restauracji, 18 sklepów, 43 obiekty sportowe, 1 placówka medyczna, 40 placówek edukacyjnych, 21 placów zabaw
Przeczytaj więcej o lokalizacji
Rzeszów to miasto w południowo-wschodniej Polsce będące stolica województwa podkarpackiego. Położony jest na Podgórzu Rzeszowskim. W skład Rzeszowa wchodzi kilkadziesiąt osiedli. Zabudowa Śródmieścia Rzeszowa pochodzi w większości z XIX wieku, pozostałe części miasta charakteryzują się przeważnie zabudową typową dla osiedli miejskich – są to bloki oraz osiedla domów jednorodzinnych czy szeregowców. Do najważniejszych zabytków Rzeszowa należy gotycki kościół farny oraz zamek z czasów Lubomirskich. Reprezentacyjną częścią miasta jest deptak 3 Maja. W Rzeszowie jest też kilka wieżowców – w 2014 roku oddano do użytku 18-piętrowy apartamentowiec Capital Towers, a w 2015 r. SkyRes Warszawska, 14-piętrowy biurowiec wraz z zapleczem mieszkalnym. W obrębie Rzeszowa znajduje się także rezerwat przyrody Lisia Góra położony nad Zbiornikiem Rzeszowskim. W mieście znajduje się również wiele ważnych obiektów sportowych oraz kulturalnych, m.in. Filharmonia Podkarpacka czy Hala Podpromie.
Opis oferty
Podana cena jest ceną za mieszkanie.
Do mieszkania istnieje możliwość dobrania przynależności.
Nowe 2-pokojowe mieszkanie na sprzedaż o powierzchni 32,91 m² znajduje się w nowo budowanej inwestycji deweloperskiej Panorama Kwiatkowskiego River na Drabiniance, ul. Fabryczna (2.5 km od centrum Rzeszowa).
Inwestycja jest realizowana przez NG Kwiatkowskiego Sp. z o.o.
Cała inwestycja składa się z 2 budynków, w których łącznie znajduje się 85 nowych mieszkań.
Na sprzedaż pozostają 33 oferty o powierzchni od 33 do 103 m².
W budynkach jest 6 kondygnacji naziemnych oraz 1 kondygnacja podziemna.
Inwestycja Panorama Kwiatkowskiego River została wybudowana i oddana do użytkowania w 1 kw. 2025 roku.
Nowe mieszkanie o oznaczeniu B.11 znajduje się na 1 piętrze i jest 1-poziomowe. Pomieszczenia mają od 260 do 280 centymetrów wysokości. W mieszkaniu znajdują się 2 pokoje.
Dla przyszłych mieszkańców Panorama Kwiatkowskiego River deweloper przewidział miejsca postojowe podziemne.
Dzięki temu przyszli właściciele nie będą musieli poszukiwać wolnej przestrzeni parkingowej. Dodatkowo, miejsce postojowe w garażu podziemnym zabezpiecza przed niekorzystnymi warunkami atmosferycznymi.
Opis Inwestycji
Tereny zielone
Zanurz się w mieszkaniach Panoramy Kwiatkowskiego River
Panorama Kwiatkowskiego River to wyjątkowa inwestycja mieszkaniowa, będąca kolejnym etapem projektu Panorama Kwiatkowskiego.
W pierwszym etapie, zaledwie 85 mieszkań.
Inwestycje charakteryzuje wyjątkowa lokalizacja, budynki będą realizowana bezpośrednio przy promenadzie nad rzeką.
Tutaj każdy znajdzie coś dla siebie, ponieważ oferujemy mieszkania o różnych metrażach, począwszy od niewielkich, poprzez średnie, aż po przepiękne duże apartamenty z tarasem widokowym.
Znajdziecie tu mieszkania od 36 metrów z ogrodem po 111 metrowe apartamenty z nawet 60 metrowymi tarasami widokowymi.
Panorama Kwiatkowskiego River to nie tylko miejsce do mieszkania, to miejsce do życia pełniącego harmonię między otoczeniem przyrodniczym a nowoczesnością.
Z wszelkimi pytaniami, zapraszamy do swojego biura sprzedaży gdzie nasi doradcy chętnie udzielą odpowiedzi na wszelkie pytania i pokażą dlaczego warto wybrać właśnie Panoramę Kwiatkowskiego River.
Panorama Kwiatkowskiego River czy Lake? Wybierz swój projekt
Jeden standard, jeden deweloper, dwa projekty:
Panorama Kwiatkowskiego RIVER – z mieszkaniami przy promenadzie nad rzeką
Panorama Kwiatkowskiego LAKE – z mieszkaniami przy plaży
Co wyróżnia projekt Panorama Kwiatkowskiego RIVER?
Panorama Kwiatkowskiego RIVER jest zlokalizowana w bezpośrednim sąsiedztwie promenady nad rzeką.
Jest inwestycją zdecydowanie bardziej kameralną.
W odróżnieniu do projektu LAKE, w projekcie RIVER, znajdziecie Państwo mieszkania na parterze z ogródkami. Nie ma tu też przewidzianych lokali usługowych, co stanowczo zwiększa ekskluzywność inwestycji.
Mieszkanie znajduje się w inwestycji Panorama Kwiatkowskiego River, w której znajduje się w sprzedaży jeszcze 9 podobnych nowych mieszkań.
NG Kwiatkowskiego Sp. z o.o.
Strona internetowa inwestycjiAdres biura sprzedaży:
Aleja Powstańców Warszawy 34/U1, 35-001 RzeszówGodziny otwarcia biura sprzedaży:
- Poniedziałek: 09:00 - 17:00
- Wtorek: 09:00 - 17:00
- Środa: 09:00 - 17:00
- Czwartek: 09:00 - 17:00
- Piątek: 09:00 - 17:00





