Mysłowice, ul. Wielka Skotnica
Mysłowice, ul. Wielka Skotnica
:format(jpg)/offers/offer/16731/main_image/park-moniuszki-ii-c_52cc68.jpg)
:format(jpg)/offers/offer/16731/main_image/park-moniuszki-ii-c_52cc68.jpg)
1 zdjęcie
Termin oddania
1 kw. 2027
Powierzchnie
38 - 82/m2
Przedział pokoi
2 - 4
Kondygnacje
11
Budynki
1
Stand. wykończenia
Standard deweloperski
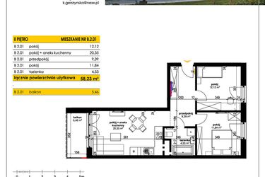
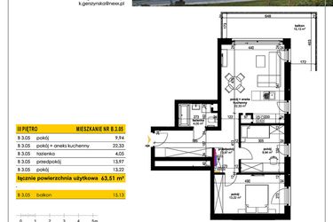
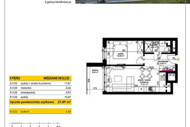
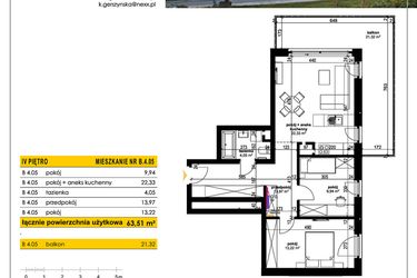
Mieszkania w inwestycji (36)
od 8 449 zł/m2
Sortuj
Promocje
Promocja
Tylko teraz PROMOCJA 20/80 na wybrane mieszkania.
Oferta ważna do końca stycznia!
Stacja kolejowa - Mysłowice - 1496 m
Przystanek Tramwajowy - 1080 m
Przystanek Autobusowy - 33 m
Dojazd do centrum: pokaż
W pobliżu 1 km od tej inwestycji znajdują się:
18 kawiarni i restauracji, 40 sklepów, 30 obiektów sportowych, 8 placówek medycznych, 13 placówek edukacyjnych, 11 placów zabaw
Zdjęcia z budowy
Zobacz na jakim etapie budowy jest ta inwestycja
Udogodnienia Inwestycji
Standard i bezpieczeństwo
- monitoring
- usługi w budynku
- winda
- wózkarnia
- Standard deweloperski
Instalacje i energetyka
- inteligentny dom
- miejsce do ładowania samochodów elektrycznych
Szczegóły inwestycji
Realizacja inwestycji:
Liczba budynków:
Liczba kondygnacji:
Liczba mieszkań:
Wysokość pomieszczeń:
Standard wykończenia
standard deweloperski
Ogrzewanie
podłogowe wodne
Rodzaj własności:
Powierzchnie dodatkowe:
Komórki lokatorskie:
Miejsca postojowe:
- miejsca postojowe podziemne : możliwość zakupu więcej niż jednego
- miejsca postojowe naziemne : możliwość zakupu więcej niż jednego
Przyroda:
Aktualna oferta
Dostępne mieszkania:
Powierzchnie mieszkań:
Liczba pokoi:
Ceny mieszkań:
- kształtują się w zakresie od 375 111 do 923 097 zł
- koszt metra kwadratowego wynosi od 8 449 do 11 400 zł
Opis płatności:
Warunki rezerwacji:
Zabezpieczenie środków klienta:
Wysokość czynszu:
Opis inwestycji
Inwestycję Park Moniuszki II stanowią nowoczesne, kaskadowe budynki zlokalizowane na śląskim rynku nieruchomości zaledwie 10 minut od centrum Katowic.
Projekty mieszkań Park Moniuszki II przedstawiają funkcjonalne wnętrza o powierzchni od 30 mkw-115 mkw.
Mieszkania posiadają przynależne ogródki, tarasy lub balkony. Ostatnie kondygnacje stanowią apartamenty z przestronnymi tarasami.
W strefie zewnętrznej zaplanowana jest realizacja projektu parku miejskiego z placem zabaw, boiskiem sportowym oraz ścieżkami spacerowymi przy zachowaniu nowoczesnych elementów małej architektury.
Komfort życia zapewni nie tylko wysoki standard użytych materiałów ale również architektura budynku, która zakłada powstanie dwóch wind, dwukondygnacyjnego parkingu podziemnego oraz znacznej ilości komórek lokatorskich w celu przechowywania potrzebnych rzeczy a także ogólnodostępną wózkownię.
Bezpieczeństwo mieszkańców zapewni monitoring budynku, a wygodę mieszkania gwarantuje nowoczesny pasaż lokali usługowych, powstały bezpośrednio przy inwestycji.
Atutem miasta Mysłowice, gdzie realizowany jest projekt Park Moniuszki, jest doskonała komunikacja z drogami A4, S1 oraz E86. W pobliżu znajdują się liczne obiekty handlowe, usługowe, edukacyjne i medyczne.
Inwestycja powstaje z wykorzystaniem najnowszych energooszczędnych technologii. Standard deweloperski PLUS oferowanych mieszkań to między innym systemowe ogrzewanie podłogowe, okna 7-komorowe 3-szybowe z zewnętrznymi roletami sterowanymi elektrycznie, atestowane drzwi wejściowe antywłamaniowe czy niezbędne instalacje przyłączeniowe.
Wszystkie mieszkania i apartamenty będą wyposażone w standardzie w lokalnie sterowany system SMART HOME firmy APPARTME - 3 klawiszowy z opcją jego rozbudowania oraz rozszerzenia o zdalne sterowanie. Idąc naprzeciw Państwa potrzebom wprowadziliśmy również możliwość wykończenia mieszkania POD KLUCZ w wielu wariantach do wyboru.
Film z prezentacją inwestycji: https://www.youtube.com/embed/WrQEiVkQn6Q
Inwestycja Park Moniuszki II C znajduje się w Mysłowicach, ul. Wielka Skotnica (4.9 km od centrum Mysłowic), jest realizowana przez NEXX Developer Sp. z o.o.
Inwestycja obecnie jest w trakcie budowy z planowanym na 1 kw. 2027 roku terminem oddania do użytkowania.
Cały projekt składa się z 110 nowych mieszkań znajdujących się w 1 budynku. Budynek posiada 11 kondygnacji naziemnych wraz z parterem oraz 1 kondygnację podziemną.
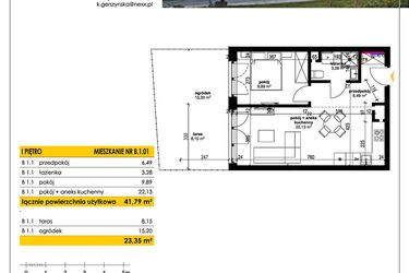
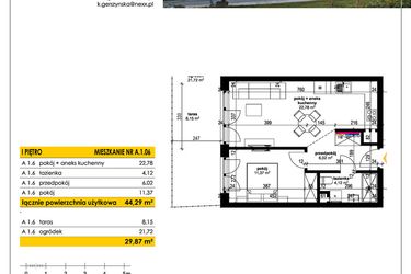
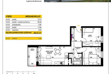
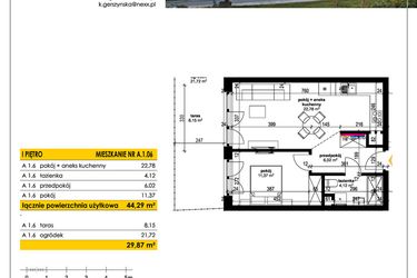
Aktualnie w inwestycji Park Moniuszki II C w sprzedaży jest 36 nowych mieszkań o powierzchni od 38 do 82 metrów kwadratowych , w cenie od 8 449 zł za metr kwadratowy.
Dla przyszłych mieszkańców Park Moniuszki II C deweloper przewidział:
- miejsca postojowe podziemne
- miejsca postojowe naziemne
W inwestycji znajdują się komórki lokatorskie wielkość: 2,5 m2.
Lokalizacja inwestycji
Mysłowice to miasto w środkowo-wschodniej części woj. śląskiego, należące do Górnośląskiego Okręgu Przemysłowego. Liczy sobie ponad 173 000 mieszkańców i zajmuje terytorium o powierzchni ok. 65 km2. Zabudowa mieszkalna przeplata się tu z budynkami przemysłowymi. Nie brakuje zabytków, a uwagę zwraca m.in. średniowieczny układ Starego Miasta. Na Śródmieście składają się głównie kamienice i osiedla bloków mieszkaniowych, a na obrzeżach stale powstają domy jednorodzinne. Ok. 30% miasta to lasy. Tyle samo zajmują łąki i pola, co sprawia, ze Mysłowice są jednym z bardziej zielonych obszarów GOP-u. Rozwinięta jest tu infrastruktura społeczna. Mieszkańcy mają dostęp m.in. do 15 podstawówek i 6 zespołów szkół. Opiekę medyczną oferuje m.in. szpital i centrum zdrowia. 5 ośrodków sportu i rekreacji, centrum kultury oraz muzeum dają możliwość ciekawego spędzania czasu. Jednym z większych walorów miasta jest dogodne położenie.
Komunikacja
Jak wygląda komunikacja w okolicy inwestycji Park Moniuszki II C?
Miasto leży na skrzyżowaniu ważnych dróg – przecinają się tu autostrada transkontynentalna A4 i droga ekspresowa S1. Przez miasto biegnie też droga krajowa nr 79 i droga wojewódzka nr 934. Kursują tu Koleje Śląskie, Tramwaje Śląskie, a także PKS i PKP oraz autobusy strefowe GOP-u. Ok. 30 km od miasta znajduje się port lotniczy w Katowicach.
Przyszli mieszkańcy inwestycji Park Moniuszki II C mogą korzystać z rozbudowanej sieci połączeń komunikacyjnych. W odległości 50 metrów od inwestycji Park Moniuszki II C znajduje się najbliższy punkt komunikacyjny - Mysłowice Staszica.
Edukacja
Czy w pobliżu inwestycji Park Moniuszki II C znajdują się szkoły/przedszkola?
Mieszkańcy mogą korzystać z bogatej oferty edukacyjnej. W najbliższej okolicy inwestycji Park Moniuszki II C znajduje się 13 placówek edukacyjnych. Najbliżej położone to: Szkoła Podstawowa nr 4 w odległości 300 m, Przedszkole w odległości 400 m.
Opieka medyczna
Dużym atutem inwestycji Park Moniuszki II C jest bliskość ośrodków zdrowotnych. Dostęp do opieki medycznej zapewnią położone w pobliżu: Specjalistyczne Gabinety Lekarskie MeaCordis w odległości 300 m.
Sklepy i usługi
Jak daleko jest do najbliższego sklepu?
Na infrastrukturę handlowo-usługową inwestycji Park Moniuszki II C składa się wiele punktów. Nieopodal, w odległości 200 m znajduje się Biedronka, w odległości 300 m znajduje się Żabka.
Sport
Bliskość terenów rekreacyjnych oraz obiektów sportowych to mocna strona tej lokalizacji. W najbliższej okolicy inwestycji Park Moniuszki II C w odległości 200 m znajduje się siłownia na świeżym powietrzu, w odległości 400 m znajduje się boisko / kort.
NEXX Developer Sp. z o.o
Strona internetowa inwestycjiAdres biura sprzedaży:
ul. Fryderyka Chopina 34A 41-400 MysłowiceOferty, które mogą Cię zainteresować
Polecane Lokalizacje
- Mieszkania na sprzedaż Będzin (66 ofert)
- Mieszkania na sprzedaż Bielsko-Biała (722 oferty)
- Mieszkania na sprzedaż Bytom (34 oferty)
- Mieszkania na sprzedaż Chorzów (384 oferty)
- Mieszkania na sprzedaż Częstochowa (317 ofert)
- Mieszkania na sprzedaż Dąbrowa Górnicza (63 oferty)
- Mieszkania na sprzedaż Gliwice (1088 ofert)
- Mieszkania na sprzedaż Katowice (4224 oferty)





