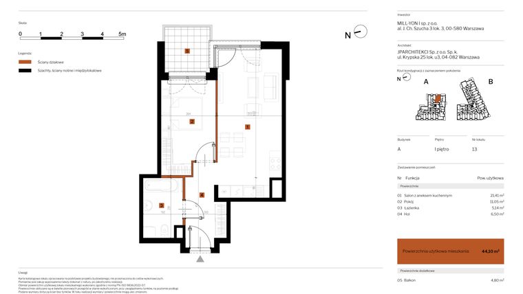
Mieszkanie na sprzedaż 2 pokoje o powierzchni 44,1 m² numer 13
Inwestycja:
MY GłębockaDeweloper:
Mill-Yon Sp. z o.o.
Inwestycja:
MY GłębockaDeweloper:
Mill-Yon Sp. z o.o.Warszawa, Białołęka, Grodzisk, ul. Głębocka 109L
Warszawa, Białołęka, Grodzisk, ul. Głębocka 109L
Termin oddania
1 kw. 2028
Ilość pokoi
2 pokoje
Metraż
44,1 m²
Piętro
1 piętro
Powierzchnie dodatkowe
Balkon
Wysokość pomieszczeń
260 cm wysokości
Ilość poziomów
1 poziom
Oznaczenie oferty
13

Raport o deweloperze
Poznaj dewelopera bliżej! Pobierz raport, w którym znajdziesz kluczowe informacje o firmie, jej doświadczeniu, nagrodach oraz aktualnych i zrealizowanych inwestycjach.
Budynek i otoczenie
Miejsca postojowe | |
|---|---|
Komórki lokatorskie | dostępne (83): obowiązkowy zakup; od 2,5 do 6,5 m2; 22 boksy rowerowe od 2,5 do 9 m2; 6 000 zł/m2 |
Standard wykończenia | standard deweloperski |
Realizacja inwestycji | oddanie do użytkowania w 1 kw. 2028 roku |
Udogodnienia | plac zabaw, monitoring, teren ogrodzony, winda, instalacja fotowoltaiczna, miejsce do ładowania samochodów elektrycznych |
Przyroda | informacja u dewelopera |
Charakterystyka energetyczna nieruchomości | informacja u dewelopera |
Rezerwacja i finanse
Rodzaj własności | Odrębna własność z własnością gruntu |
|---|---|
Wysokość czynszu | informacja u dewelopera |
Warunki rezerwacji | umowa rezerwacyjna 45 dni - wpłata 1% |
Zabezpieczenie środków | Otwarty mieszkaniowy rachunek powierniczy |
Zdjęcia z budowy
Zobacz na jakim etapie budowy jest ta inwestycja
Lokalizacja inwestycji
Metro - Kondratowicza - 2960 m
Przystanek Autobusowy - 218 m
Dojazd do centrum: pokaż
W pobliżu 1 km od tej inwestycji znajdują się:
25 kawiarni i restauracji, 38 sklepów, 20 obiektów sportowych, 4 placówki medyczne, 42 placówki edukacyjne, 64 place zabaw
Przeczytaj więcej o lokalizacji
Białołęka to północna, druga pod względem wielkości powierzchni, dzielnica Warszawy odznaczająca się najszybszym rozwojem. Występują tutaj zarówno osiedla domów jednorodzinnych w północnej części obszaru, jak również wysoka, nowoczesna zabudowa mieszkaniowa. Dużą popularnością nadal cieszą się białołęckie osiedla z wielkiej płyty: Nowy Tarchomin, Nowodwory i Nowe Świdry. W strefie centralnej i południowej rozwija się infrastruktura handlowo-usługowa, więc obszar ten ma szansę stać się czymś więcej, niż kolejną warszawską "sypialnią". Białołęka jest jedną z najspokojniejszych dzielnic, a wypoczynek umożliwiają: kompleksy leśne, parki, rezerwaty przyrody i ścieżki rowerowe. Dogodnym sposobem dojazdu do centrum miasta są tutaj liczne linie autobusowe z pętlą Nowodwory, zaś do głównych arterii dzielnicy należą fragmenty dróg krajowych: ul. Modlińska i Trasa Toruńska, a także ul. Płochocińska.
Opis oferty
Nowe 2-pokojowe mieszkanie na sprzedaż o powierzchni 44,1 m² znajduje się w nowo wybudowanej inwestycji deweloperskiej MY Głębocka na Grodzisku, ul. Głębocka 109L (10.3 km od centrum Warszawy).
Inwestycja została zrealizowana przez Mill-Yon Sp. z o.o.
Cała inwestycja składa się z 2 budynków, w których łącznie znajduje się 115 nowych mieszkań.
Na sprzedaż pozostaje 21 ofert o powierzchni od 39 do 89 m².
W budynkach jest 5 kondygnacji naziemnych oraz 1 kondygnacja podziemna.
Inwestycja MY Głębocka jest w trakcie budowy z planowanym na 1 kw. 2028 roku terminem oddania do użytkowania.
Nowe mieszkanie o oznaczeniu 13 znajduje się na 1 piętrze i jest 1-poziomowe. Pomieszczenia mają 260 centymetrów wysokości. W mieszkaniu znajdują się 2 pokoje.
Do mieszkania przewidziano możliwość zakupu komórki lokatorskiej, którą można zagospodarować na spiżarnię, warsztat czy składzik.
Dla przyszłych mieszkańców MY Głębocka deweloper przewidział miejsca postojowe podziemne, miejsca postojowe naziemne.
Dzięki temu przyszli właściciele nie będą musieli poszukiwać wolnej przestrzeni parkingowej. Dodatkowo, miejsce postojowe w garażu podziemnym zabezpiecza przed niekorzystnymi warunkami atmosferycznymi.
Opis Inwestycji
Pow. dodatkowe
Deweloper informuje, że nie rozpoczął sprzedaży w rozumieniu art. 5 pkt. 12 ustawy z dnia 20 maja 2021 r. o ochronie praw nabywcy lokalu mieszkalnego lub domu jednorodzinnego oraz deweloperskim funduszu gwarancyjnym (t. J.: Dz. U. z 2024 r., poz. 695 ze zm.)
Mieszkanie znajduje się w inwestycji MY Głębocka, w której znajduje się w sprzedaży jeszcze 13 podobnych nowych mieszkań.
Mill-Yon Sp. z o.o.
Strona internetowa inwestycjiAdres biura sprzedaży:
ul. Bluszczańska 17 lok. 11, WarszawaGodziny otwarcia biura sprzedaży:
- Poniedziałek: 10:00 - 18:00
- Wtorek: 10:00 - 18:00
- Środa: 10:00 - 18:00
- Czwartek: 10:00 - 18:00
- Piątek: 10:00 - 18:00
- Sobota: 10:00 - 14:00
Artykuły powiązane:
:format(jpg)/articles/gallery/image/9455/dzielnice-luksusu-warszawa.jpg)
Dzielnice luksusu w Polsce
W 2025 roku luksusowe apartamenty w Polsce przestają być kojarzone wyłącznie z prestiżem dzielnic takich jak Powiśle w Warszawie czy Salwator w Krakowie. Inwestycji premium przybywa w nowych, szybko zyskujących na wartości lokalizacjach. Coraz więcej miast kreuje przyciągające wymagających nabywców enklawy, oferujące standard ultrapremium. Apartamenty za kilka milionów złotych nie są już tylko domeną stolicy. Dziś o luksusie decydują nie sam metraż i standard wykończenia, ale unikalny klimat dzielnicy. Widać wyraźny trend: ekskluzywne nieruchomości pojawiają się tam, gdzie jeszcze niedawno dominowała zabudowa średniego standardu.
06 sierpnia 2025
Marcin Moneta
:format(jpg)/articles/gallery/image/6970/widok-z-mieszkania_a51930.jpg)
Mieszkanie z widokiem
Góry, morze, jezioro a może park? Jaki widok z okna marzy się Wam najbardziej? Warto odpowiedzieć sobie na to pytanie szukając wymarzonego mieszkania. Bowiem to, co widzimy za szybą, wpływa na nasze samopoczucie i sposób postrzegania świata. Jakie widoki za oknem są najbardziej pożądane? Jak krajobraz wpływa na naszą psychikę? Sprawdź w naszym artykule.
16 maja 2023
Marlena Rzepniewska





