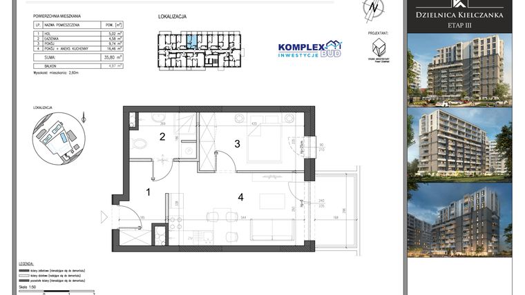
Mieszkanie na sprzedaż 1 pokój o powierzchni 35,8 m² numer M91
Inwestycja:
Dzielnica Kielczanka etap IIIDeweloper:
Komplexbud
Inwestycja:
Dzielnica Kielczanka etap IIIDeweloper:
KomplexbudKielce, Al. Solidarności
Kielce, Al. Solidarności
Termin oddania
3 kw. 2027
Ilość pokoi
1 pokój
Metraż
35,8 m²
Piętro
Parter
Kuchnia
otwarta kuchnia
Wysokość pomieszczeń
260 cm wysokości
Ilość poziomów
1 poziom
Oznaczenie oferty
M91

Raport o deweloperze
Poznaj dewelopera bliżej! Pobierz raport, w którym znajdziesz kluczowe informacje o firmie, jej doświadczeniu, nagrodach oraz aktualnych i zrealizowanych inwestycjach.
Budynek i otoczenie
Miejsca postojowe | |
|---|---|
Komórki lokatorskie | dostępne (42): nieobowiązkowy zakup; od 2 do 11,20 m2 |
Standard wykończenia | standard deweloperski Ogrzewanie miejskie |
Realizacja inwestycji | rozpoczęcie budowy w 4 kw. 2025 roku, planowane oddanie do użytkowania w 3 kw. 2027 roku |
Udogodnienia | plac zabaw, monitoring, teren ogrodzony, usługi w budynku, winda, rowerownia, miejsce do ładowania samochodów elektrycznych, rekuperacja, paczkomat |
Przyroda | w okolicy inwestycji znajduje się park |
Charakterystyka energetyczna nieruchomości | informacja u dewelopera |
Rezerwacja i finanse
Rodzaj własności | Odrębna własność z własnością gruntu |
|---|---|
Wysokość czynszu | informacja u dewelopera |
Warunki rezerwacji | Informacja u dewelopera |
Zabezpieczenie środków | Informacja u dewelopera |
Zdjęcia z budowy
Zobacz na jakim etapie budowy jest ta inwestycja
Lokalizacja inwestycji
Stacja kolejowa - Kielce Piaski - 2129 m
Przystanek Autobusowy - 120 m
Dojazd do centrum: pokaż
W pobliżu 1 km od tej inwestycji znajdują się:
38 kawiarni i restauracji, 66 sklepów, 45 obiektów sportowych, 24 placówki medyczne, 59 placówek edukacyjnych, 31 placów zabaw
Przeczytaj więcej o lokalizacji
Kielce to stolica województwa świętokrzyskiego. Główne zabytki miasta znajdują się w Śródmieściu, które jest typowym centrum administracyjnym, usługowym i kulturalnym Kielc. Obszary mieszkalne w postaci osiedli mieszkaniowych zlokalizowane są wokół centralnej części miasta, a osiedla domów jednorodzinnych leżą na przedmieściach. Kielce są jednym z najszybciej rozwijających się miast Polski, ale nie brakuje tu rozległych terenów zielonych. Kielecki Obszar Chronionego Krajobrazu zajmuje powierzchnię około 3856 ha. Składają się na niego liczne parki oraz Las Komunalny. Stały rozwój przekłada się na rozbudowę infrastruktury społecznej. Mieszczą się tu liczne galerie handlowe, a dzięki ciągłym inwestycjom, wzbogacane jest zaplecze oświatowe, kulturalne i medyczne. Działa tu m.in. kilkanaście szkół wyższych, kilka szpitali i kin. Bogata jest też oferta sportowa miasta.
Opis oferty
Nowe 1-pokojowe mieszkanie na sprzedaż o powierzchni 35,8 m² znajduje się w nowo budowanej inwestycji deweloperskiej Dzielnica Kielczanka etap III w Kielcach (2 km od centrum Kielc).
Inwestycja jest realizowana przez Komplexbud.
Cała inwestycja składa się z 1 budynku, w którym łącznie znajduje się 128 nowych mieszkań.
Na sprzedaż pozostaje 99 ofert o powierzchni od 25 do 91 m².
W budynku jest 11 kondygnacji naziemnych oraz 2 kondygnacje podziemne.
Inwestycja Dzielnica Kielczanka etap III jest w trakcie budowy z planowanym na 3 kw. 2027 roku terminem oddania do użytkowania.
Nowe mieszkanie o oznaczeniu M91 znajduje się na parterze i jest 1-poziomowe. Pomieszczenia mają 260 centymetrów wysokości. W mieszkaniu znajduje się 1 pokój.
Do mieszkania przewidziano możliwość zakupu komórki lokatorskiej, którą można zagospodarować na spiżarnię, warsztat czy składzik.
Dla przyszłych mieszkańców Dzielnica Kielczanka etap III deweloper przewidział miejsca postojowe podziemne.
Dzięki temu przyszli właściciele nie będą musieli poszukiwać wolnej przestrzeni parkingowej. Dodatkowo, miejsce postojowe w garażu podziemnym zabezpiecza przed niekorzystnymi warunkami atmosferycznymi.
Mieszkanie znajduje się w inwestycji Dzielnica Kielczanka etap III, w której znajduje się w sprzedaży jeszcze 15 podobnych nowych mieszkań.
Komplexbud
Strona internetowa inwestycjiAdres biura sprzedaży:
ul. Szczecińska 34, KielceGodziny otwarcia biura sprzedaży:
- Poniedziałek: 08:00 - 17:00
- Wtorek: 08:00 - 17:00
- Środa: 08:00 - 17:00
- Czwartek: 08:00 - 17:00
- Piątek: 08:00 - 17:00





