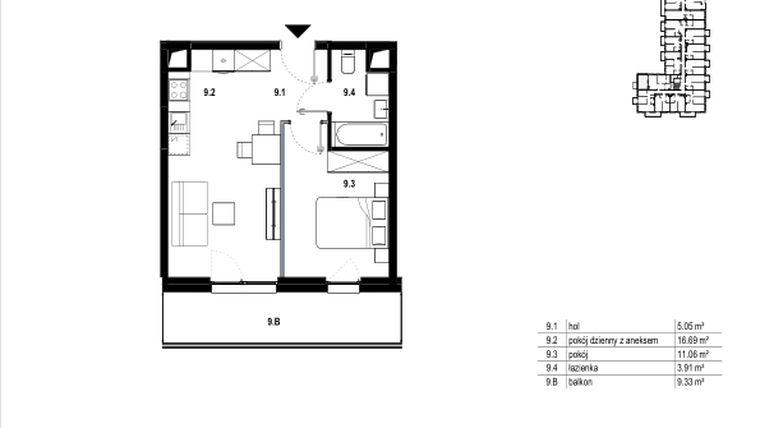
Mieszkanie na sprzedaż 2 pokoje o powierzchni 36,71 m² numer C3.9
Inwestycja:
Osiedle MozaikaDeweloper:
KG Group Sp. z o.o.
Inwestycja:
Osiedle MozaikaDeweloper:
KG Group Sp. z o.o.Kraków, Prądnik Biały, ul. Pękowicka
Kraków, Prądnik Biały, ul. Pękowicka
Termin oddania
2 kw. 2027
Ilość pokoi
2 pokoje
Metraż
36,71 m²
Piętro
3 piętro
Kuchnia
otwarta kuchnia
Wysokość pomieszczeń
262 cm wysokości
Ilość poziomów
1 poziom
Oznaczenie oferty
C3.9

Raport o deweloperze
Poznaj dewelopera bliżej! Pobierz raport, w którym znajdziesz kluczowe informacje o firmie, jej doświadczeniu, nagrodach oraz aktualnych i zrealizowanych inwestycjach.
Budynek i otoczenie
Miejsca postojowe | |
|---|---|
Komórki lokatorskie | dostępne |
Standard wykończenia | standard deweloperski Ogrzewanie miejskie |
Realizacja inwestycji | rozpoczęcie budowy w 3 kw. 2024 roku, planowane oddanie do użytkowania w 2 kw. 2027 roku |
Udogodnienia | winda, rowerownia, wózkarnia |
Przyroda | informacja u dewelopera |
Charakterystyka energetyczna nieruchomości |
|
Rezerwacja i finanse
Rodzaj własności | Odrębna własność z własnością gruntu |
|---|---|
Wysokość czynszu | informacja u dewelopera |
Warunki rezerwacji | Informacja u dewelopera |
Zabezpieczenie środków | Otwarty mieszkaniowy rachunek powierniczy |

Zdjęcia z budowy i widok 3D
Zobacz na jakim etapie budowy jest ta inwestycja
Lokalizacja inwestycji
Stacja kolejowa - Kraków Łobzów tor 304 - 1735 m
Przystanek Tramwajowy - 967 m
Przystanek Autobusowy - 323 m
Dojazd do centrum: pokaż
W pobliżu 1 km od tej inwestycji znajdują się:
7 kawiarni i restauracji, 20 sklepów, 18 obiektów sportowych, 3 placówki medyczne, 14 placówek edukacyjnych, 12 placów zabaw
Przeczytaj więcej o lokalizacji
Prądnik Biały to dzielnica IV Krakowa. Jest częścią miasta najbardziej wysuniętą na północ i zajmującą obszar 2341,87 ha. Powstała z połączenia 5 historycznych miejscowości. Zamieszkuje ją 69 135 osób. Jest jedną z tych części Krakowa, których zabudowa jest najbardziej zróżnicowana. Większość nieruchomości stanowią tu osiedla bloków mieszkalnych wzniesione w latach 60-tych, jednak uzupełnione są one blokami z wielkiej płyty powstałymi w latach 70-tych. Do tego dochodzą nowsze osiedla domów jednorodzinnych, a także domy szeregowe. Choć rozmaitość krajobrazu architektonicznego wskazuje na stały rozwój dzielnicy, to wciąż jeszcze można tu znaleźć elementy zabudowy typowo wiejskiej. W okolicy wiele jest miejsc rekreacyjnych idealnych do zabaw dla dzieci. Znajduje się tu 20 ogródków jordanowskich. W dzielnicy działa też 5 klubów sportowych. Dobrze rozbudowana jest infrastruktura oświatowa, o czym świadczy 10 funkcjonujących tu szkół i 4 zespoły szkolne. Zaletą dzielnicy jest też sieć połączeń komunikacyjnych z innymi częściami Krakowa. Działa tu łącznie 30 linii autobusowych i 5 linii tramwajowych. Przez Prądnik Biały przechodzi też droga krajowa nr 7 i droga wojewódzka nr 794.
Opis oferty
Nowe 2-pokojowe mieszkanie na sprzedaż o powierzchni 36,71 m² znajduje się w nowo budowanej inwestycji deweloperskiej Osiedle Mozaika na Prądniku Białym, ul. Pękowicka (4.2 km od centrum Krakowa).
Inwestycja jest realizowana przez KG Group Sp. z o.o.
Cała inwestycja składa się z 2 budynków, w których łącznie znajdują się 184 nowe mieszkania.
Na sprzedaż pozostaje 150 ofert o powierzchni od 35 do 83 m².
W budynkach jest 5 kondygnacji naziemnych oraz 1 kondygnacja podziemna.
Inwestycja Osiedle Mozaika jest w trakcie budowy z planowanym na 2 kw. 2027 roku terminem oddania do użytkowania.
Nowe mieszkanie o oznaczeniu C3.9 znajduje się na 3 piętrze i jest 1-poziomowe. Pomieszczenia mają 262 centymetrów wysokości. W mieszkaniu znajdują się 2 pokoje.
Dla przyszłych mieszkańców Osiedle Mozaika deweloper przewidział miejsca postojowe podziemne, miejsca postojowe naziemne.
Dzięki temu przyszli właściciele nie będą musieli poszukiwać wolnej przestrzeni parkingowej. Dodatkowo, miejsce postojowe w garażu podziemnym zabezpiecza przed niekorzystnymi warunkami atmosferycznymi.
Opis Inwestycji
Okazyjna cena
Zamieszkaj w sercu dynamicznie rozwijającej się dzielnicy Krakowa, na Prądniku Białym, gdzie nowoczesność spotyka się z komfortem codziennego życia. Osiedle Mozaika to wyjątkowa inwestycja, która powstaje w pobliżu ulic Łokietka i Pękowickiej, oferując mieszkańcom nową jakość życia w harmonii z otaczającą naturą oraz wygodą miejskiej infrastruktury.
Osiedle Mozaika to miejsce, które łączy nowoczesny design z funkcjonalnością, oferując Ci przestrzeń do życia, w której poczujesz się wyjątkowo. To tutaj znajdziesz swój wymarzony dom – w sercu Krakowa, blisko natury, z dostępem do wszystkiego, co ważne.
Osiedle Mozaika składa się z dwóch eleganckich, czteropiętrowych budynków, w których znajdziesz około 180 mieszkań o zróżnicowanych metrażach. Od przestronnych dwu- do funkcjonalnych czteropokojowych apartamentów – każdy znajdzie tu swoje idealne miejsce.
Mieszkania zostały zaprojektowane z myślą o komforcie mieszkańców, z dbałością o najdrobniejsze detale. Duże okna wpuszczają mnóstwo naturalnego światła, a nowoczesna architektura tworzy wyjątkową atmosferę, w której poczujesz się jak w domu.
Osiedle Mozaika to więcej niż tylko nowoczesne mieszkania. To także doskonała lokalizacja, która łączy spokój przedmieść z łatwym dostępem do centrum Krakowa. W pobliżu znajdziesz liczne sklepy, restauracje oraz miejsca do rekreacji. Dla miłośników aktywnego stylu życia, pobliskie tereny zielone stanowią idealne miejsce na spacer czy poranny jogging.
Osiedle Mozaika to także świetna komunikacja. Dzięki bliskości przystanków autobusowych i tramwajowych, dojazd do centrum miasta zajmuje tylko kilkanaście minut. Szybki dostęp do autostrady A4 pozwala na wygodne podróże poza miasto, a lotnisko w Balicach oddalone jest zaledwie o kilkanaście minut jazdy samochodem.
Mieszkanie znajduje się w inwestycji Osiedle Mozaika, w której znajduje się w sprzedaży jeszcze 107 podobnych nowych mieszkań.
KG Group Sp. z o.o.
Strona internetowa inwestycjiAdres biura sprzedaży:
ul. Juliusza Lea 202A, KrakówGodziny otwarcia biura sprzedaży:
- Poniedziałek: 09:00 - 17:00
- Wtorek: 09:00 - 17:00
- Środa: 09:00 - 17:00
- Czwartek: 09:00 - 17:00
- Piątek: 09:00 - 17:00





