Mieszkanie na sprzedaż 3 pokoje o powierzchni 62,29 m² numer B42
Inwestycja:
Przystań ŻerańDeweloper:
Home Invest Sp. z o.o.
Inwestycja:
Przystań ŻerańDeweloper:
Home Invest Sp. z o.o.Warszawa, Białołęka, Żerań, ul. Morelowa 13
Warszawa, Białołęka, Żerań, ul. Morelowa 13
Oddanie
Gotowe
Ilość pokoi
3 pokoje
Metraż
62,29 m²
Piętro
3 piętro
Kuchnia
otwarta kuchnia
Wysokość
267 cm wysokości
Poziomy
1 poziom
Oznaczenie oferty
B42

Raport o deweloperze
Poznaj dewelopera bliżej! Pobierz raport, w którym znajdziesz kluczowe informacje o firmie, jej doświadczeniu, nagrodach oraz aktualnych i zrealizowanych inwestycjach.
Budynek i otoczenie
Miejsca postojowe | |
|---|---|
Komórki lokatorskie | dostępne (44): nieobowiązkowy zakup |
Standard wykończenia | standard deweloperski Ogrzewanie sieć miejska |
Realizacja inwestycji | rozpoczęcie budowy w 2 kw. 2024 roku, inwestycja została oddana do użytkowania w 1 kw. 2026 roku |
Udogodnienia | monitoring, teren ogrodzony, winda, rowerownia, wózkarnia |
Przyroda | informacja u dewelopera |
Charakterystyka energetyczna nieruchomości |
|
Rezerwacja i finanse
Rodzaj własności | Odrębna własność z własnością gruntu |
|---|---|
Wysokość czynszu | informacja u dewelopera |
Warunki rezerwacji | Informacja u dewelopera |
Zabezpieczenie środków | Informacja u dewelopera |
Postępy i zdjęcia z budowy
Zobacz na jakim etapie budowy jest ta inwestycja
Lokalizacja inwestycji
Stacja kolejowa - Warszawa Żerań - 877 m
Przystanek Tramwajowy - 1531 m
Przystanek Autobusowy - 222 m
Dojazd do centrum: pokaż
W pobliżu 1 km od tej inwestycji znajdują się:
8 kawiarni i restauracji, 15 sklepów, 30 obiektów sportowych, 3 placówki medyczne, 15 placówek edukacyjnych, 16 placów zabaw
Przeczytaj więcej o lokalizacji
Białołęka to północna, druga pod względem wielkości powierzchni, dzielnica Warszawy odznaczająca się najszybszym rozwojem. Występują tutaj zarówno osiedla domów jednorodzinnych w północnej części obszaru, jak również wysoka, nowoczesna zabudowa mieszkaniowa. Dużą popularnością nadal cieszą się białołęckie osiedla z wielkiej płyty: Nowy Tarchomin, Nowodwory i Nowe Świdry. W strefie centralnej i południowej rozwija się infrastruktura handlowo-usługowa, więc obszar ten ma szansę stać się czymś więcej, niż kolejną warszawską "sypialnią". Białołęka jest jedną z najspokojniejszych dzielnic, a wypoczynek umożliwiają: kompleksy leśne, parki, rezerwaty przyrody i ścieżki rowerowe. Dogodnym sposobem dojazdu do centrum miasta są tutaj liczne linie autobusowe z pętlą Nowodwory, zaś do głównych arterii dzielnicy należą fragmenty dróg krajowych: ul. Modlińska i Trasa Toruńska, a także ul. Płochocińska.
Opis oferty
Nowe 3-pokojowe mieszkanie na sprzedaż o powierzchni 62,29 m² znajduje się w nowo budowanej inwestycji deweloperskiej Przystań Żerań na Żeraniu, ul. Morelowa 13 (8.8 km od centrum Warszawy).
Inwestycja jest realizowana przez Home Invest Sp. z o.o.
Cała inwestycja składa się z 1 budynku, w którym łącznie znajduje się 75 nowych mieszkań.
Na sprzedaż pozostaje 5 ofert o powierzchni od 26 do 62 m².
W budynku jest 5 kondygnacji naziemnych oraz 2 kondygnacje podziemne.
Inwestycja Przystań Żerań została wybudowana i oddana do użytkowania w 1 kw. 2026 roku.
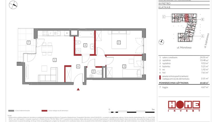
Nowe mieszkanie o oznaczeniu B42 znajduje się na 3 piętrze i jest 1-poziomowe. Pomieszczenia mają 267 centymetrów wysokości. W mieszkaniu znajdują się 3 pokoje.
Do mieszkania przewidziano możliwość zakupu komórki lokatorskiej, którą można zagospodarować na spiżarnię, warsztat czy składzik.
Dla przyszłych mieszkańców Przystań Żerań deweloper przewidział miejsca postojowe podziemne, miejsca postojowe naziemne.
Dzięki temu przyszli właściciele nie będą musieli poszukiwać wolnej przestrzeni parkingowej. Dodatkowo, miejsce postojowe w garażu podziemnym zabezpiecza przed niekorzystnymi warunkami atmosferycznymi.
Opis Inwestycji
Okazyjna cena
Witaj w Przystani Żerań - nowym wymiarze komfortowego mieszkania w sercu dynamicznego Żerania! Ta inwestycja dewelopera Home Invest to idealne miejsce dla wszystkich, którzy pragną łączyć bliskość natury z wygodą miejskiego życia.
Natura i komfort w jednym
Inwestycja Przystań Żerań znajduje się na warszawskim Żeraniu, przy ulicy Morelowej 13, co czyni ją miejscem niezwykle atrakcyjnym. To osiedle oferuje unikalny balans pomiędzy dostępem do centrum miasta a bliskością zieleni. Usytuowane w bezpośrednim sąsiedztwie Parku Żerańskiego, stwarza doskonałe warunki do spacerów, joggingu oraz relaksu w otoczeniu przyrody. Dodatkowo, bliskość Klubu Tenisowego oraz kompleksu boisk sportowych zapewniają wiele możliwości aktywnego spędzania czasu. Kanał Żerański i Przystań, z której odbywają się rejsy statkiem do Serocka nad Jezioro Zegrzyńskie, są dostępne tuż obok, pozwalając na przyjemne chwile spędzone nad wodą.
Inwestycja oferuje różnorodność mieszkań 1-, 2-, 3-, 4- pokojowych, o metrażach wahających się od 27 do 89 m2, idealnych zarówno dla singli, par, jak i rodzin z dziećmi. Każde mieszkanie jest starannie zaprojektowane z dbałością o detale, przy użyciu najwyższej jakości materiałów. Duże okna i nowoczesne rozwiązania architektoniczne tworzą harmonijne otoczenie do życia. Dostęp do licznych udogodnień, takich jak prywatne ogrody, miejsca parkingowe naziemne i podziemne oraz boksy rowerowe dla miłośników dwóch kółek.
Twoje bezpieczeństwo i komfort są dla nas priorytetem. Osiedle jest monitorowane 24/7, a nowoczesne rozwiązania zwiększające bezpieczeństwo mieszkańców zostały zaimplementowane na każdym etapie budowy.
Lokalizacja i komunikacja
Mieszkania przy ul. Morelowej 13, to synonim miejskiego życia w symbiozie z naturą. Bliskość parków, Lasu Bielańskiego oraz Kanału Żerańskiego sprawia, że jest to istny raj dla miłośników aktywności na świeżym powietrzu. W okolicy znajdziesz wszystkie niezbędne udogodnienia w zasięgu ręki, w tym sklepy, restauracje, placówki medyczne oraz Stację Kolejową Warszawa Żerań i przystanki autobusowe. Dodatkowo, liczne żłobki, przedszkola oraz szkoły podstawowe w okolicy ułatwią rodzicom organizację czasu.
Przystań Żerań to marzenie każdego, kto pragnie harmonii między życiem miejskim a kontaktem z naturą. Zapraszamy do odkrycia tego wyjątkowego miejsca, które łączy wszystko, czego potrzebujesz w jednym miejscu.
Mieszkanie znajduje się w inwestycji Przystań Żerań, w której znajdują się w sprzedaży jeszcze 3 podobne nowe mieszkania.
Home Invest Sp. z o.o.
Strona internetowa inwestycjiAdres biura sprzedaży:
WARSZAWA – BRÓDNO UL. WARSZAWSKI ŚWIT 12Godziny otwarcia biura sprzedaży:
- Poniedziałek: 10:00 - 18:00
- Wtorek: 10:00 - 18:00
- Środa: 10:00 - 18:00
- Czwartek: 10:00 - 18:00
- Piątek: 10:00 - 18:00
- Sobota: 10:00 - 15:00





