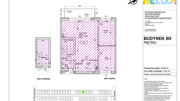
Mieszkanie na sprzedaż 3 pokoje o powierzchni 62,16 m² numer B5.2
Oferta archiwalna
Inwestycja:
HELLO! KUKUŁKI bud. BDeweloper:
GrupaHELLO
Inwestycja:
HELLO! KUKUŁKI bud. BDeweloper:
GrupaHELLOSosnowiec, ul. Kukułek
Sosnowiec, ul. Kukułek
Nieruchomość została sprzedana
Zobacz pozostałe mieszkania w inwestycji HELLO! KUKUŁKI bud. B lub inne propozycje w Sosnowcu
Najbliższe inwestycje
- HELLO! Kukułki to idealne miejsce dla tych którzy szukają domu lub mieszkania w dogodnej lokalizacji, ale także w bliskim sąsiedztwie natury w tym Parków – Sieleckiego i Środuli. W ramach projektu powstaną 24 mieszkania o powierzchni od 54 do 62 m2 wraz z ogródkami lub balkonami jak również domy z zabudowie szeregowej o powierzchni blisko 160m2 z własnym działkami. Tak zróżnicowane metraże będą
HELLO! KUKUŁKI
od 7 000 zł/m²
gotowe
Sosnowiec, ul. Kukułek 85-87
3 pokoje, Metraż 62 m2
% Promocje
WYBRANE MIESZKANIA W PAKIECIE Z MIEJSCEM POSTOJOWYM W CENIE 15000 ZŁ- 30000 ZŁ I/LUB KOMÓRKĄ LOKATORSKĄ W CENIE 20880 ZŁ . O SZCZEGÓŁY ZAPYTAJ DEWELOPERA. Mieszkania gotowe do odbioru w inwestycji Murapol Apartamenty na Wzgórzu przy ul. Klimontowskiej w Sosnowcu. Wybierz przestronne mieszkanie z nowoczesnymi udogodnieniami i odbierz klucze jeszcze w tym roku! Murapol Apartamenty na Wzgórzu togotowe
Sosnowiec, ul. Klimontowska
1 pokój, Metraż 26-30 m2
% Promocje
Mieszkaj w nowym budownictwie. Ciesz się przyjaznym otoczeniem. Sprawdź ofertę nowych mieszkań w Sosnowcu, realizowanych przez sprawdzonego dewelopera z ponad 10-letnim doświadczeniem. Poznaj miejsce, które łączy w sobie wygodę, funkcjonalność oraz wyjątkową lokalizację. SOSNOVIA to odpowiedź na potrzeby osób ceniących kameralną atmosferę, spokojne otoczenie oraz wysoką jakość wykonania. ToSosnovia
od 9 300 zł/m²
3 kwartał 2027
Sosnowiec, ul. Grzybowa
1-4 pokoje, Metraż 28-87 m2
Termin oddania
4 kw. 2026
Ilość pokoi
3 pokoje
Metraż
62,16 m²
Piętro
1 piętro
Kuchnia
otwarta kuchnia
Wysokość pomieszczeń
od 260 do 280 cm wysokości
Ilość poziomów
1 poziom
Oznaczenie oferty
B5.2

Raport o deweloperze
Poznaj dewelopera bliżej! Pobierz raport, w którym znajdziesz kluczowe informacje o firmie, jej doświadczeniu, nagrodach oraz aktualnych i zrealizowanych inwestycjach.
Budynek i otoczenie
Miejsca postojowe | |
|---|---|
Standard wykończenia | standard deweloperski |
Realizacja inwestycji | rozpoczęcie budowy w 2 kw. 2025 roku, planowane oddanie do użytkowania w 4 kw. 2026 roku |
Udogodnienia | plac zabaw, teren ogrodzony, internet, patio / dziedziniec, miejsca parkingowe dla gości |
Przyroda | informacja u dewelopera |
Charakterystyka energetyczna nieruchomości | informacja u dewelopera |
Rezerwacja i finanse
Rodzaj własności | Odrębna własność z własnością gruntu |
|---|---|
Wysokość czynszu | informacja u dewelopera |
Warunki rezerwacji | Informacja u dewelopera |
Zabezpieczenie środków | Otwarty mieszkaniowy rachunek powierniczy |
Lokalizacja inwestycji
Stacja kolejowa - Sosnowiec Dańdówka - 1279 m
Przystanek Tramwajowy - 710 m
Przystanek Autobusowy - 430 m
Dojazd do centrum: pokaż
W pobliżu 1 km od tej inwestycji znajdują się:
3 kawiarnie i restauracje, 5 sklepów, 6 obiektów sportowych, 1 placówka medyczna, 5 placówek edukacyjnych, 9 placów zabaw
Przeczytaj więcej o lokalizacji
Sosnowiec to miasto położone w południowo-zachodniej części Polski, w województwie śląskim. Usytuowany na Wyżynie Śląskiej, w skład której wchodzi Wyżyna Krakowsko-Częstochowska. Miasto to znajduje się w pobliżu licznych zbiorników wodnych. Leży nad rzekami: Białą Przemszą, Bobrkiem czy Brynicą. Mieszkańcy chętnie korzystają z okolicznych atrakcji, a mnogość zabytków nadaje charakter miasta. Sosnowiec składa się z wielu dzielnic takich jak: Środula, Niwka, Pogoń, Milowice, Modrzejów, Nowe Zawodzie czy Klimontów. Rozciągają się one po obu stronach rzeki Czarna Przemsza. Co roku powstają tu nowe inwestycje, które charakteryzują się dużą różnorodnością. Dla mieszkańców jak i inwestorów jest to bardzo atrakcyjna lokalizacja. Występują tu zarówno wysokie zabudowy wielorodzinne, jak i również nowoczesne dzielnice niskiej zabudowy jednorodzinnej i apartamentowej. Największe skupisko mieszkańców to Śródmieście i Środula, gdzie mieszczą się głównie bloki z wielkiej płyty. Nie brakuje tu zabytków, a na uwagę zasługują budynki w stylu barokowym. Zamek Sielecki w Sosnowcu to najstarszy, a zarazem najcenniejszy zabytek miasta. Sosnowiec ma ogromną infrastrukturę społeczną. Bogaty w pełną ofertę edukacyjną, w skład której wchodzi aż kilkaset publicznych jednostek działających w ramach zespołów szkół, jak i samodzielnych jednostek. Znajduje się tutaj kilkadziesiąt szkół podstawowych i ponadpodstawowych oraz wiele przedszkoli. Sosnowiec ma również dostęp do rozbudowanej infrastruktury zdrowotnej. Miejski Ośrodek Sportu i Rekreacji dysponuje bogatym zapleczem sportowym, m.in. stadionami i kortami tenisowymi. W mieście sport można uprawiać także zimą, na stoku narciarskim. Na obszarze miasta funkcjonuje wiele instytucji i placówek kulturalnych m.in. kina, centrum sztuki czy teatr. Rozbudowana została również infrastruktura usługowo-handlowa. Mieszkańcy Sosnowca mają do wyboru dwie duże galerie handlowe i kilka nieco mniejszych.
Opis oferty
Nowe 3-pokojowe mieszkanie na sprzedaż o powierzchni 62,16 m² znajduje się w nowo budowanej inwestycji deweloperskiej HELLO! KUKUŁKI bud. B w Sosnowcu, ul. Kukułek (4.9 km od centrum Sosnowca).
Inwestycja jest realizowana przez GrupaHELLO.
Cała inwestycja składa się z 1 budynku, w którym łącznie znajduje się 16 nowych mieszkań.
Na sprzedaż pozostaje 7 ofert o powierzchni od 54 do 62 m².
W budynku są 2 kondygnacje naziemne. Budynek nie posiada kondygnacji podziemnych.
Inwestycja HELLO! KUKUŁKI bud. B jest w trakcie budowy z planowanym na 4 kw. 2026 roku terminem oddania do użytkowania.
Nowe mieszkanie o oznaczeniu B5.2 znajduje się na 1 piętrze i jest 1-poziomowe. Pomieszczenia mają od 260 do 280 centymetrów wysokości. W mieszkaniu znajdują się 3 pokoje.
Dla przyszłych mieszkańców HELLO! KUKUŁKI bud. B deweloper przewidział miejsca postojowe naziemne.
Dzięki temu przyszli właściciele nie będą musieli poszukiwać wolnej przestrzeni parkingowej.
Opis Inwestycji
Kameralny budynek
HELLO! Kukułki to idealne miejsce dla tych którzy szukają domu lub mieszkania w dogodnej lokalizacji, ale także w bliskim sąsiedztwie natury w tym Parków – Sieleckiego i Środuli. W ramach projektu powstaną mieszkania o powierzchni od 54 do 62 m2 wraz z ogródkami lub balkonami jak również domy z zabudowie szeregowej o powierzchni blisko 160m2 z własnym działkami. Tak zróżnicowane metraże będą odpowiednie zarówno dla singli, jak i rodzin z dziećmi. Kameralna, niska zabudowa, wysoki standard a przede wszystkim jakość to największe atuty naszego osiedla. Osiedle wyróżnia się ciekawą, modernistyczna architekturą, eleganckimi białymi elewacjami z dodatkiem klinkieru i materiałów wysokiej jakości. Dodatkowo całość dopełni przestrzeń rekreacyjna z placem zabaw i fontannami tworząc idealne miejsce do relaksu dla całej rodziny!
Zachęcamy do zapoznania się z ofertą
Mieszkanie znajduje się w inwestycji HELLO! KUKUŁKI bud. B, w której znajduje się w sprzedaży jeszcze 7 podobnych nowych mieszkań.





