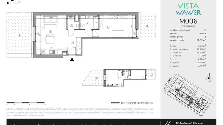
Mieszkanie na sprzedaż 2 pokoje o powierzchni 50,52 m² numer M006
Promocja
Inwestycja:
Vista WawerDeweloper:
GH Development
Inwestycja:
Vista WawerDeweloper:
GH DevelopmentWarszawa, Wawer, Marysin Wawerski, ul. Tytoniowa 20
Warszawa, Wawer, Marysin Wawerski, ul. Tytoniowa 20
Oddanie
2 kw. 2026
Ilość pokoi
2 pokoje
Metraż
50,52 m²
Piętro
Parter
Strona świata
północ, południe
Kuchnia
otwarta kuchnia
Wysokość
266 cm wysokości
Poziomy
1 poziom
Oznaczenie oferty
M006

Raport o deweloperze
Poznaj dewelopera bliżej! Pobierz raport, w którym znajdziesz kluczowe informacje o firmie, jej doświadczeniu, nagrodach oraz aktualnych i zrealizowanych inwestycjach.
Budynek i otoczenie
Miejsca postojowe | |
|---|---|
Komórki lokatorskie | dostępne: wielkość: 2-5 m2. Dla wybranych mieszkań |
Standard wykończenia | standard deweloperski Ogrzewanie gazowe |
Realizacja inwestycji | rozpoczęcie budowy w 3 kw. 2024 roku, planowane oddanie do użytkowania w 2 kw. 2026 roku |
Udogodnienia | monitoring, teren ogrodzony, usługi w budynku, winda |
Przyroda | w okolicy inwestycji znajduje się las |
Charakterystyka energetyczna nieruchomości |
|
Rezerwacja i finanse
Rodzaj własności | Odrębna własność z własnością gruntu |
|---|---|
Wysokość czynszu | informacja u dewelopera |
Warunki rezerwacji | umowa rezerwacyjna z wpłatą 1% wartości transakcji |
Zabezpieczenie środków | Otwarty mieszkaniowy rachunek powierniczy |
Postępy i zdjęcia z budowy
Zobacz na jakim etapie budowy jest ta inwestycja
Lokalizacja inwestycji
Stacja kolejowa - Warszawa Gocławek - 314 m
Przystanek Tramwajowy - 796 m
Przystanek Autobusowy - 220 m
Dojazd do centrum: pokaż
W pobliżu 1 km od tej inwestycji znajdują się:
15 kawiarni i restauracji, 17 sklepów, 20 obiektów sportowych, 4 placówki medyczne, 16 placówek edukacyjnych, 13 placów zabaw
Przeczytaj więcej o lokalizacji
Wawer to dzielnica w południowo-wschodniej części Warszawy wyróżniająca się największym obszarem terytorialnym – ok. 80 km2. Jednocześnie jest to jeden z tych rejonów miasta, w których znajduje się najwięcej zielonej przestrzeni. Rozległe obszary naturalnego krajobrazu, na które składają się: Mazowiecki Park Krajobrazowy, Rezerwat im. Króla Jana III Sobieskiego oraz Zakole Wawerskie, a także dominacja niskiej, przeważnie willowej zabudowy, to czynniki decydujące o niewielkiej gęstości zaludnienia. Wawer jest spokojnym, malowniczym miejscem, w którym można odpocząć od miejskiego gwaru lub spędzić czas na świeżym powietrzu, rozkoszując się pięknem przyrody. Na terenie Wawra znajduje się aż 7 stacji kolejowych, toteż pociągi Szybkiej Kolei Miejskiej stanowią najwygodniejszy środek transportu do centrum miasta. Ważnymi arteriami są m.in.: Most Siekierkowski, Wał Miedzeszyński, ul. Płowiecka.
Opis oferty
Nowe 2-pokojowe mieszkanie na sprzedaż o powierzchni 50,52 m² znajduje się w nowo budowanej inwestycji deweloperskiej Vista Wawer na Marysinie Wawerskim, ul. Tytoniowa 20 (8.1 km od centrum Warszawy).
Inwestycja jest realizowana przez GH Development.
Cała inwestycja składa się z 1 budynku, w którym łącznie znajduje się 80 nowych mieszkań.
Na sprzedaż pozostają 33 oferty o powierzchni od 41 do 63 m².
W budynku jest 5 kondygnacji naziemnych oraz 1 kondygnacja podziemna.
Inwestycja Vista Wawer jest w trakcie budowy z planowanym na 2 kw. 2026 roku terminem oddania do użytkowania.
Nowe mieszkanie o oznaczeniu M006 znajduje się na parterze i jest 1-poziomowe. Pomieszczenia mają 266 centymetrów wysokości. W mieszkaniu znajdują się 2 pokoje.
Okna w mieszkaniu wychodzą na północ, południe.
Północna ekspozycja to idealny wybór dla osób ceniących przytulne i klimatyczne wnętrza. Delikatne, rozproszone światło sprzyja harmonii i stwarza doskonałe warunki do relaksu lub pracy. Okna na północ zapewnią równomierne oświetlenie przez cały dzień.
Okna wychodzące na południe gwarantują maksymalną ilość naturalnego światła, co czyni wnętrza jasnymi i ciepłymi. Dodatkowo południowa ekspozycja pomaga obniżyć koszty ogrzewania w zimie. Okna na południe są idealne dla osób pragnących cieszyć się jasnym otoczeniem, które sprzyja dobremu samopoczuciu oraz pozytywnej energii.
Dla przyszłych mieszkańców Vista Wawer deweloper przewidział miejsca postojowe podziemne, miejsca postojowe naziemne.
Dzięki temu przyszli właściciele nie będą musieli poszukiwać wolnej przestrzeni parkingowej. Dodatkowo, miejsce postojowe w garażu podziemnym zabezpiecza przed niekorzystnymi warunkami atmosferycznymi.
Opis Inwestycji
Okazyjna cena
ENERGIA MIASTA, KOMFORT ŻYCIA
Vista Wawer to nowa inwestycja mieszkaniowa dewelopera GH Development, realizowana na styku dwóch warszawskich dzielnic Wawra i Pragi Południe.
W ramach projektu powstanie 5-cio kondygnacyjny budynek z lokalami usługowymi w parterze. Cechują go kameralne lokalizacja i architektura. Stonowana kolorystyka elewacji i elegancka forma pozytywnie wpłyną na odbiór i otoczenie. Funkcjonalne układy pomieszczeń, możliwości aranżacyjne oraz widne pomieszczenia to największe atuty oferowanych lokali. Mieszkania na parterze posiadają ogródki, a te na wyższych kondygnacjach balkony lub tarasy.
DOCEŃ SPOKÓJ I WYGODĘ
Wszystkie mieszkania zostały zaprojektowane z myślą o wygodzie mieszkańców, oferując przestronne i ustawne wnętrza, gotowe do indywidualnej aranżacji.
Przestronne okna zapewniają doskonałe doświetlenie wnętrz, co tworzy przyjemną atmosferę i optymalne warunki do życia. W budynku znajdzie się również garaż podziemny, który zapewni wygodne i bezpieczne parkowanie.
- komórki lokatorskie
- teren monitorowany
- balkony, tarasy, ogródki
- wideodomofon w każdym mieszkaniu
WYGODA NA CO DZIEŃ
Najbliższe sąsiedztwo Vista Wawer charakteryzuje cicha i spokojna okolica z niską zabudową, głównie jednorodzinną. Okolicę cechuje również małą gęstością zaludnienia, co wpływa na większe poczucie prywatności i komfortu życia codziennego.
Inwestycja położona jest w pobliżu ważnych linii komunikacyjnych, dzięki temu dojazd samochodem i innymi środkami komunikacji jest niezwykle wygodny, zarówno w rejonie Warszawy, jak i do okolicznych miejscowości. Najbliższy przystanek autobusowy „Płowiecka” znajduje się zaledwie 5 minut pieszo, a w odległości 850 m znajduje się stacja kolejowa „Warszawa Gocławek”, z której odjeżdżają kolejki SKM i KM, w kierunku Otwocka, Targówka i Centrum.
RELAKS NA ŁONIE NATURY
Vista Wawer może poszczycić się otoczeniem licznych terenów zielonych i rekreacyjnych. W pobliżu inwestycji znajduje się Rezerwat Przyrody Olszynka Grochowska, Las Rembertowski i Park im. Płk. Jana Szypowskiego „Leśnika”. Okolica sprzyja uprawianiu aktywnych form wypoczynku tj. bieganie, jazda na rowerze, czy spokojnych spacerów po leśnych trasach.
Infrastruktura handlowo-usługowa w okolicy Vista Wawer jest doskonale rozbudowana i można znaleźć tu zarówno drobne sklepy spożywcze np. okoliczna Żabka, jak i Centrum Handlowe King Cross Praga lub Promenada.
W sąsiedztwie są też liczne lokale gastronomiczne, salony kosmetyczne, czy poczta oddalona o 1,4 km i placówki ochrony zdrowia, tj. przychodnia lekarska, zlokalizowana w odległości 1,8 km.
Na specjalną uwagę zasługują placówki edukacyjne. W najbliższej odległości zlokalizowane są przedszkola publiczne, kilka szkół podstawowych oraz liceum. Tę listę doskonale uzupełniają kompleksy sportowe postaci boisk i placów zabaw. Vista Wawer to idealne połączenie kameralności otoczenia z doskonałą lokalizacją.
To wyjątkowe miejsce dla każdego!
Mieszkanie znajduje się w inwestycji Vista Wawer, w której znajduje się w sprzedaży jeszcze 19 podobnych nowych mieszkań.
GH Development
Strona internetowa inwestycjiAdres biura sprzedaży:
ul. Tytoniowa 1, 04-228 WarszawaGodziny otwarcia biura sprzedaży:
- Poniedziałek: 09:00 - 17:00
- Wtorek: 09:00 - 17:00
- Środa: 09:00 - 17:00
- Czwartek: 09:00 - 17:00
- Piątek: 09:00 - 17:00
- Sobota: 10:00 - 14:00





