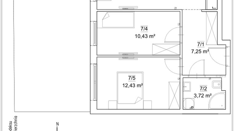
Mieszkanie na sprzedaż 3 pokoje o powierzchni 53,24 m² numer 5B/7
Rezerwacja
Inwestycja:
FORTnatura etap IIDeweloper:
Frax-Bud
Inwestycja:
FORTnatura etap IIDeweloper:
Frax-BudKraków, Prądnik Biały, ul. Józefa Wybickiego 5A
Kraków, Prądnik Biały, ul. Józefa Wybickiego 5A
Termin oddania
Gotowe
Ilość pokoi
3 pokoje
Metraż
53,24 m²
Piętro
Parter
Strona świata
zachód
Kuchnia
otwarta kuchnia
Wysokość pomieszczeń
264 cm wysokości
Ilość poziomów
1 poziom
Oznaczenie oferty
5B/7

Raport o deweloperze
Poznaj dewelopera bliżej! Pobierz raport, w którym znajdziesz kluczowe informacje o firmie, jej doświadczeniu, nagrodach oraz aktualnych i zrealizowanych inwestycjach.
Budynek i otoczenie
Miejsca postojowe | |
|---|---|
Komórki lokatorskie | dostępne (210): nieobowiązkowy zakup; od 2,7 do 13 m2 |
Standard wykończenia | standard deweloperski podwyższony Ogrzewanie MPEC, podłogowe |
Realizacja inwestycji | rozpoczęcie budowy w 4 kw. 2021 roku, inwestycja została oddana do użytkowania w 3 kw. 2024 roku |
Udogodnienia | plac zabaw, monitoring, klimatyzacja, usługi w budynku, winda, siłownia plenerowa, wózkarnia |
Przyroda | w okolicy inwestycji znajduje się park |
Charakterystyka energetyczna nieruchomości |
|
Rezerwacja i finanse
Rodzaj własności | Odrębna własność z własnością gruntu |
|---|---|
Wysokość czynszu | planowany czynsz będzie w wysokości od 4 do 4 zł/m² (czyli od 213 do 213 zł za całość) |
Warunki rezerwacji | 7 dni bezpłatnie |
Zabezpieczenie środków | Informacja u dewelopera |
Zdjęcia z budowy
Zobacz na jakim etapie budowy jest ta inwestycja
Lokalizacja inwestycji
Stacja kolejowa - Kraków Łobzów - 725 m
Przystanek Tramwajowy - 442 m
Przystanek Autobusowy - 43 m
Dojazd do centrum: pokaż
W pobliżu 1 km od tej inwestycji znajdują się:
40 kawiarni i restauracji, 94 sklepy, 42 obiekty sportowe, 93 placówki medyczne, 45 placówek edukacyjnych, 33 place zabaw
Przeczytaj więcej o lokalizacji
Prądnik Biały to dzielnica IV Krakowa. Jest częścią miasta najbardziej wysuniętą na północ i zajmującą obszar 2341,87 ha. Powstała z połączenia 5 historycznych miejscowości. Zamieszkuje ją 69 135 osób. Jest jedną z tych części Krakowa, których zabudowa jest najbardziej zróżnicowana. Większość nieruchomości stanowią tu osiedla bloków mieszkalnych wzniesione w latach 60-tych, jednak uzupełnione są one blokami z wielkiej płyty powstałymi w latach 70-tych. Do tego dochodzą nowsze osiedla domów jednorodzinnych, a także domy szeregowe. Choć rozmaitość krajobrazu architektonicznego wskazuje na stały rozwój dzielnicy, to wciąż jeszcze można tu znaleźć elementy zabudowy typowo wiejskiej. W okolicy wiele jest miejsc rekreacyjnych idealnych do zabaw dla dzieci. Znajduje się tu 20 ogródków jordanowskich. W dzielnicy działa też 5 klubów sportowych. Dobrze rozbudowana jest infrastruktura oświatowa, o czym świadczy 10 funkcjonujących tu szkół i 4 zespoły szkolne. Zaletą dzielnicy jest też sieć połączeń komunikacyjnych z innymi częściami Krakowa. Działa tu łącznie 30 linii autobusowych i 5 linii tramwajowych. Przez Prądnik Biały przechodzi też droga krajowa nr 7 i droga wojewódzka nr 794.
Opis oferty
Nowe 3-pokojowe mieszkanie na sprzedaż o powierzchni 53,24 m² znajduje się w nowo budowanej inwestycji deweloperskiej FORTnatura etap II na Prądniku Białym, ul. Józefa Wybickiego 5A (2.5 km od centrum Krakowa).
Inwestycja jest realizowana przez Frax-Bud.
Cała inwestycja składa się z 4 budynków, w których łącznie znajdują się 363 nowe mieszkania.
Na sprzedaż pozostają 22 oferty o powierzchni od 40 do 61 m².
W budynkach jest 8 kondygnacji naziemnych oraz 2 kondygnacje podziemne.
Inwestycja FORTnatura etap II została wybudowana i oddana do użytkowania w 3 kw. 2024 roku.
Nowe mieszkanie o oznaczeniu 5B/7 znajduje się na parterze i jest 1-poziomowe. Pomieszczenia mają 264 centymetrów wysokości. W mieszkaniu znajdują się 3 pokoje.
Do mieszkania przewidziano możliwość zakupu komórki lokatorskiej, którą można zagospodarować na spiżarnię, warsztat czy składzik.
Okna w mieszkaniu wychodzą na zachód.
Zachodnia ekspozycja to gwarancja intensywnego popołudniowego światła, które nadaje wnętrzom przytulności i ciepła. Idealne dla miłośników słonecznych wieczorów, którzy pragną cieszyć się pięknymi zachodami słońca we własnym domu. Zachodnie światło podkreśla kolory i faktury w aranżacji wnętrz, tworząc atmosferę sprzyjającą relaksowi po długim dniu.
Dla przyszłych mieszkańców FORTnatura etap II deweloper przewidział miejsca postojowe podziemne.
Dzięki temu przyszli właściciele nie będą musieli poszukiwać wolnej przestrzeni parkingowej. Dodatkowo, miejsce postojowe w garażu podziemnym zabezpiecza przed niekorzystnymi warunkami atmosferycznymi.
Opis Inwestycji
Okazyjna cena
Tereny zielone
Nowe Mieszkania Kraków
Inwestycja Fort Natura to idealne połączenie mieszkania w centrum miasta z lokalizacją wśród zieleni. Budynki zlokalizowane są przy ul. Józefa Wybickiego 5.
Inwestycja składa się z czterech siedmiopiętrowych budynków wielorodzinnych. Osiedle podzielone zostało na dwa etapy realizacji.
W skład drugiego etapu inwestycji wchodzi siedmiopiętrowy budynek wielorodzinny, w których znajduje się 96 mieszkań oraz podziemny, dwupoziomowy garaż wielostanowiskowy. Drugi etap został oddany do użytkowania.
Nowe mieszkania o powierzchni od 27 do 74 m2
Mieszkania zaprojektowano z myślą o funkcjonalności i ergonomii przestrzeni oraz wysokim standardzie wykończenia. Oferujemy lokale o powierzchni od 27 do 74 m2. Mieszkania zlokalizowane na parterze posiadać będą przynależne ogródki, natomiast mieszkania na wyższych kondygnacjach szerokie balkony.
Każde mieszkanie będzie wyposażone w ogrzewanie podłogowe, klimatyzację, filtry antysmogowe.
Ważną częścią inwestycji będzie odbudowa znajdującego się na terenie osiedla Fortu, który zostanie zaadaptowany na lokal usługowy z własnym podziemnym garażem.
Mieszkanie znajduje się w inwestycji FORTnatura etap II, w której znajduje się w sprzedaży jeszcze 7 podobnych nowych mieszkań.
Frax-Bud
Strona internetowa inwestycjiAdres biura sprzedaży:
ul. Wybickiego 5C/4, 31-302 KrakówGodziny otwarcia biura sprzedaży:
- Poniedziałek: 09:00 - 17:00
- Wtorek: 09:00 - 17:00
- Środa: 09:00 - 17:00
- Czwartek: 09:00 - 17:00
- Piątek: 09:00 - 17:00





