Mieszkanie na sprzedaż 4 pokoje o powierzchni 79,4 m² numer 8.A.02
Inwestycja:
Urzeka bud. 8Deweloper:
DOMESTA Sp. z o.o.
Inwestycja:
Urzeka bud. 8Deweloper:
DOMESTA Sp. z o.o.Gdańsk, Jasień, ul. Konrada Guderskiego
Gdańsk, Jasień, ul. Konrada Guderskiego
Termin oddania
4 kw. 2027
Ilość pokoi
4 pokoje
Metraż
79,4 m²
Piętro
Parter
Strona świata
wschód, północ
Powierzchnie dodatkowe
Ogródek
Kuchnia
otwarta kuchnia
Wysokość pomieszczeń
od 260 do 280 cm wysokości
Ilość poziomów
1 poziom
Oznaczenie oferty
8.A.02

Raport o deweloperze
Poznaj dewelopera bliżej! Pobierz raport, w którym znajdziesz kluczowe informacje o firmie, jej doświadczeniu, nagrodach oraz aktualnych i zrealizowanych inwestycjach.
Budynek i otoczenie
Miejsca postojowe | |
|---|---|
Komórki lokatorskie | dostępne |
Standard wykończenia | standard deweloperski |
Realizacja inwestycji | rozpoczęcie budowy w 4 kw. 2025 roku, planowane oddanie do użytkowania w 4 kw. 2027 roku |
Udogodnienia | plac zabaw, boisko, winda |
Przyroda | informacja u dewelopera |
Charakterystyka energetyczna nieruchomości | informacja u dewelopera |
Rezerwacja i finanse
Rodzaj własności | Odrębna własność z własnością gruntu |
|---|---|
Wysokość czynszu | informacja u dewelopera |
Warunki rezerwacji | Informacja u dewelopera |
Zabezpieczenie środków | Informacja u dewelopera |
Zdjęcia z budowy
Zobacz na jakim etapie budowy jest ta inwestycja
Lokalizacja inwestycji
Przystanek Tramwajowy - 1026 m
Przystanek Autobusowy - 258 m
Dojazd do centrum: pokaż
W pobliżu 1 km od tej inwestycji znajdują się:
13 kawiarni i restauracji, 24 sklepy, 23 obiekty sportowe, 3 placówki medyczne, 17 placówek edukacyjnych, 60 placów zabaw
Przeczytaj więcej o lokalizacji
Jasień to jedna z ciekawszych dzielnic mieszkalnych Gdańska, która znana jest z nowej zabudowy osiedlowej oraz licznych domków jednorodzinnych. To właśnie tutaj najlepiej odnajdują się osoby chcące łączyć wygodę komunikacyjną z przestrzenią do aktywnego wypoczynku. Zachodnia część dzielnicy to głównie lasy, ogródki działkowe Zabornia i Jezioro Jasień. Znajdują się tu również zabytki takie, jak dworek z XIX wieku i park dworski. Jasień cieszy się świetną infrastrukturą komunikacyjną dzięki kilku liniom autobusowym oraz Pomorskiej Kolei Metropolitalnej (PKM). Udane zakupy zapewniają centra handlowe położone na zachód od dzielnicy, takie jak Auchan, Leroy Merlin czy Decathlon. Ok. 50 m od południowo-wschodniej granicy Jasienia znajduje się Centrum Diagnostyki Medycznej ENDOMED w Kowalach. Ponadto, w odległości ok. 100 metrów na północ działają Pomorskie Centra Kardiologiczne. Graniczy z dzielnicami miejskimi Matarnia, Brętowo i Piecki-Migowo, Ujeścisko-Łostowice i Kokoszki (przez Obwodnicę Trójmiasta), a także z obszarami wiejskimi (Kolbudy) oraz malowniczym Pojezierzem Kaszubskim. Południowo-zachodnią granicę dzielnicy wyznacza droga krajowa S7, a dzielnicę w połowie przedziela główna arteria Aleja Armii Krajowej. Jasień liczy sobie powierzchnię 18,68 km kw., zamieszkiwaną przez ponad 14 tys. osób.
Opis oferty
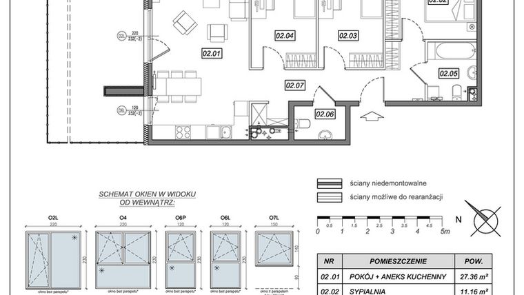
To 4-pokojowe mieszkanie o powierzchni 79,40 m² , położone na parterze , z ogrodem o powierzchni ok. 83,05 m² . To propozycja dla osób, które chcą połączyć wygodę 3 osobnych pokoi z dużą przestrzenią wspólną i dodatkowym miejscem do spędzania czasu na zewnątrz. Ogród ma tu rozmiar, który pozwala traktować go jako stałe uzupełnienie mieszkania. Największym atutem jest ściana zieleni za płotem ogródka. Zamiast zabudowy za oknami widać drzewa lasku przy jarze Potoku Oruńskiego, co daje maksimum spokoju i prywatności.
Salon z aneksem kuchennym ma 27,36 m² i to właśnie ten element najmocniej wyróżnia ten układ. Taki metraż daje więcej swobody przy urządzaniu wspólnej części mieszkania — można zaplanować pełną zabudowę kuchenną, ustawić stół do codziennych posiłków i zostawić wygodne miejsce na sofę. To przestrzeń, w której domownicy mogą być razem: gotować, jeść, odpoczywać, bawić się albo pracować przy stole. Wyjście do ogrodu dodatkowo poszerza sposób korzystania z salonu.
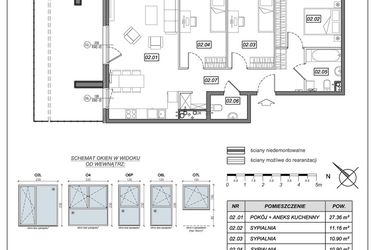
Trzy sypialnie o powierzchni 11,16 m² , 10,90 m² i 10,90 m² , z widokiem na zarośla wokół Potoku Oruńskiego, zapewniają dobre warunki do komfortowego snu, pobudki przy śpiewie ptaków oraz nauki i pracy. Największa sprawdzi się jako sypialnia główna z dużym, podwójnym łóżkiem, a dwa pozostałe pokoje można przeznaczyć na pokoje dzieci, gabinet albo połączyć funkcję pokoju i miejsca do pracy. Układ uzupełnia przedpokój o powierzchni 11,95 m² z miejscem na dużą zabudowę, która pomaga uporządkować przechowywanie kurtek, butów, rzeczy sezonowych i domowego wyposażenia. Dodatkową wygodę daje osobne WC 2,71 m² obok łazienki 4,42 m² .
Rozkład:
- pokój + aneks kuchenny – 27,36 m²
- sypialnia – 11,16 m²
- sypialnia 2 – 10,90 m²
- sypialnia 3 – 10,90 m²
- łazienka – 4,42 m²
- WC – 2,71 m²
- przedpokój z wnęką – 11,95 m²
- ogród – ok. 83,05 m²
O inwestycji
Urzeka to osiedle powstające w Gdańsku Jasieniu, przy rondzie 77 Pułku AK. To miejsce zaprojektowane z myślą o wygodnym życiu na co dzień — z dostępem do zieleni, rekreacji i infrastruktury, która naprawdę przydaje się blisko domu. Dużym atutem inwestycji jest sąsiedztwo Jaru Potoku Oruńskiego z leśnym molem. To przestrzeń, z której można korzystać po prostu na co dzień: na spacer, chwilę ruchu albo odpoczynek po pracy. Osiedle ma dogodny dostęp do Obwodnicy Trójmiasta, a przystanek autobusowy znajduje się około 300 m od inwestycji. Część usług działa już na terenie osiedla, a około 300 m dalej znajduje się centrum handlowe z dyskontem, supermarketem drogeryjnym, księgarnią, przedszkolem i żłobkiem. W odległości do 1 km dostępne są także supermarkety, sklepy odzieżowe i restauracje. Sama inwestycja ma nowoczesną, 4-piętrową zabudowę i została zaplanowana tak, by łączyć estetykę z funkcjonalnością. Mieszkańcy mają do dyspozycji balkony lub ogródki, cichobieżne windy, podziemne hale garażowe, komórki lokatorskie, plac zabaw, boisko wielofunkcyjne i tereny zielone. Urzeka została doceniona również za zagospodarowanie przestrzeni i architekturę krajobrazu, co dobrze pokazuje, że ważne jest tu nie tylko samo mieszkanie, ale też całe otoczenie. To osiedle dla osób, które chcą mieszkać wygodnie, nowocześnie i bliżej dobrze zaprojektowanej zieleni.
Podwyższony standard
Podwyższony standard deweloperski w Domesta obejmuje:
– ściany i sufity szpachlowane i malowane dwukrotnie na biało
– trzyszybowe okna
– parapety z konglomeratu
– ściany działowe z bloczków gipsowych
– solidne drzwi o klasie antywłamaniowej
– wysokiej jakości gniazda i włączniki
Odbiór
Planowany termin odbioru budynku 8: październik 2027 roku . Domesta od lat realizuje inwestycje zgodnie z harmonogramem, a wszystkie dotychczasowe etapy oddawała klientom terminowo.
Jeśli szukasz mieszkania w miejscu, które łączy codzienną wygodę z bliskością terenów rekreacyjnych, warto poznać Urzekę bliżej. Wyślij zapytanie lub umów spotkanie — pomożemy wybrać lokal dopasowany do Twoich potrzeb.
https://domesta.com.pl/urzeka
Nowe 4-pokojowe mieszkanie na sprzedaż o powierzchni 79,4 m² znajduje się w nowo budowanej inwestycji deweloperskiej Urzeka bud. 8 na Jasieniu, ul. Konrada Guderskiego (6.7 km od centrum Gdańska).
Inwestycja jest realizowana przez DOMESTA Sp. z o.o.
Cała inwestycja składa się z 1 budynku, w którym łącznie znajduje się 39 nowych mieszkań.
Na sprzedaż pozostaje 38 ofert o powierzchni od 34 do 82 m².
W budynku jest 5 kondygnacji naziemnych oraz 1 kondygnacja podziemna.
Inwestycja Urzeka bud. 8 jest w trakcie budowy z planowanym na 4 kw. 2027 roku terminem oddania do użytkowania.
Nowe mieszkanie o oznaczeniu 8.A.02 znajduje się na parterze i jest 1-poziomowe. Pomieszczenia mają od 260 do 280 centymetrów wysokości. W mieszkaniu znajdują się 4 pokoje.
Okna w mieszkaniu wychodzą na wschód, północ.
Północna ekspozycja to idealny wybór dla osób ceniących przytulne i klimatyczne wnętrza. Delikatne, rozproszone światło sprzyja harmonii i stwarza doskonałe warunki do relaksu lub pracy. Okna na północ zapewnią równomierne oświetlenie przez cały dzień.
Wschodnia orientacja zapewnia dostęp do łagodnego porannego światła, idealnego dla rozpoczęcia dnia pełnego energii. Wnętrza pozostają jasne, ale nieprzegrzane, co sprzyja utrzymaniu komfortowej temperatury. Przebywanie w pomieszczeniu z oknami na wschód inspiruje do działania i pozytywnie wpływa na poranny rytuał.
Dla przyszłych mieszkańców Urzeka bud. 8 deweloper przewidział miejsca postojowe podziemne, miejsca postojowe naziemne.
Dzięki temu przyszli właściciele nie będą musieli poszukiwać wolnej przestrzeni parkingowej. Dodatkowo, miejsce postojowe w garażu podziemnym zabezpiecza przed niekorzystnymi warunkami atmosferycznymi.
Opis Inwestycji
Pow. dodatkowe
Inwestycja Urzeka to wyjątkowe połączenie życia blisko natury z wygodą miejskiej infrastruktury. Zielone otoczenie osiedla zapewnia mieszkańcom ciszę, spokój oraz idealne warunki do relaksu i spędzania wolnego czasu na świeżym powietrzu. Docelowo w ramach inwestycji powstanie 15 budynków mieszkalnych. Już w pierwszym etapie, który został częściowo oddany do użytku, zrealizowano sklepy i punkty usługowe, znacząco podnoszące komfort codziennego życia. Wszystkie budynki wyposażone są w cichobieżne windy, hale garażowe i komórki lokatorskie w części podziemnej oraz naziemne miejsca parkingowe. Na terenie osiedla powstają liczne place zabaw, boisko wielofunkcyjne do gier zespołowych, a także wyjątkowa strefa rekreacyjna nad potokiem – idealna przestrzeń do odpoczynku i integracji mieszkańców.
Mariaż elegancji z naturą
Architektura budynków odznacza się prostą formą i rytmicznymi podziałami elewacji, nawiązuje do modernizmu. Elegancki charakter podkreślają narożniki kwartałów, których szczyty wykończone zostały ceglaną okładziną. Oprócz bieli, tynku i cegły, integralnym elementem kompozycji jest roślinność, która występuje w postaci zielonych dachów oraz pnączy na elewacjach.
Podwyższony standard wykończenia
Nasze mieszkania wyróżniają się podwyższonym standardem wykończenia. Ściany i sufity zostały starannie wygładzone oraz pomalowane dwukrotnie na biało, co nie tylko pozwala zaoszczędzić czas na wykańczanie wnętrz, ale również zapewnia estetyczny wygląd i idealne tło do aranżacji. Ściany wykonano z bloczków gipsowych, które gwarantują dobrą izolację akustyczną. Zastosowanie nowoczesnych, trzyszybowych okien zapewnia doskonałe właściwości termiczne, redukcję hałasu z zewnątrz oraz mniejsze straty ciepła. W standardzie mieszkań znajdują się już eleganckie parapety oraz starannie dobrane, wysokiej jakości gniazda i włączniki. Bezpieczeństwo mieszkańców zapewniają solidne drzwi wejściowe o podwyższonej klasie antywłamaniowej.
Place zabaw i boisko na osiedlu
Najmłodsi mieszkańcy inwestycji będą mogli spędzać czas na funkcjonalnym placu zabaw ze zjeżdżalnią oraz przy naturalnej strefie rekreacyjnej od strony lasu i doliny Potoku Oruńskiego. Niezapomnianą zabawę zagwarantują m.in. tyrolka, "małpi gaj" oraz możliwość wspinaczki linowej. Dodatkowo mieszkańcy będą mogli korzystać z wielofunkcyjnego boiska sportowego zlokalizowanego na terenie osiedla.
Blisko miasta i natury
Inwestycja Urzeka zlokalizowana jest w dzielnicy Gdańsk Jasień, przy rondzie im. 77 Pułku AK w Gdańsku, u zbiegu ulic Guderskiego i Czermińskiego. Inwestycja otoczona jest lasem oraz doliną Potoku Oruńskiego. W pobliżu osiedla znajdują się zbiorniki retencyjne Świętokrzyska I oraz Świętokrzyska II oraz ścieżki rowerowe. W okolicy zlokalizowane są liczne punkty handlowo-usługowe i gastronomiczne, a także placówki edukacyjne i medyczne. Nie brakuje też terenów rekreacyjnych, zarówno w bezpośrednim sąsiedztwie jak i w pobliżu osiedla. Dzięki bliskości głównych arterii, obwodnicy Trójmiasta oraz rozbudowanej infrastruktury transportu zbiorowego, Urzeka jest świetnie skomunikowana z centrum Gdańska oraz innymi dzielnicami miasta. Obok inwestycji planowana jest budowa ulicy Nowa Turzycowa, która umożliwi mieszkańcom inwestycji szybszy dojazd do ulicy Jabłoniowej i wielu ważnych punktów miasta.
Mieszkania dostosowane do potrzeb
W ofercie inwestycji znajdują się lokale o zróżnicowanych metrażach od 35 do ponad 80 m kw. Ich integralną całość stanowią ogródki oraz balkony. Trzypokojowe mieszkania zostały wzbogacone o dodatkowe pomieszczenie - garderobę. Dzięki różnorodności układów funkcjonalnych, każdy z przyszłych mieszkańców osiedla znajdzie mieszkanie dopasowane idealnie do jego potrzeb.
Przytulnie i komfortowo
Przemyślane układy funkcjonalne mieszkań pozwolą spełnić marzenia o przytulnym i komfortowym lokum. Wnętrza przestrzeni wspólnych zostały utrzymane w modernistycznym charakterze i ocieplone okładzinami drewnianymi. Dopełnienie wystroju stanowić będą czarnobiałe zdjęcia przyrody znajdującej się na terenie osiedla.
Mieszkanie znajduje się w inwestycji Urzeka bud. 8, w której znajduje się w sprzedaży jeszcze 28 podobnych nowych mieszkań.
DOMESTA Sp. z o.o.
Strona internetowa inwestycjiAdres biura sprzedaży:
ul. Guderskiego/Czermińskiego przy rondzie im. 77 Pułku, GdańskGodziny otwarcia biura sprzedaży:
- Poniedziałek: 09:00 - 17:00
- Wtorek: 09:00 - 17:00
- Środa: 09:00 - 17:00
- Czwartek: 09:00 - 17:00
- Piątek: 09:00 - 17:00





