Mieszkanie na sprzedaż 2 pokoje o powierzchni 35,08 m² numer 6.A.06
Rezerwacja
Inwestycja:
Urzeka bud. 6 i 7Deweloper:
DOMESTA Sp. z o.o.
Inwestycja:
Urzeka bud. 6 i 7Deweloper:
DOMESTA Sp. z o.o.Gdańsk, Jasień, ul. Konrada Guderskiego
Gdańsk, Jasień, ul. Konrada Guderskiego
Termin oddania
4 kw. 2026
Ilość pokoi
2 pokoje
Metraż
35,08 m²
Piętro
Parter
Strona świata
zachód
Powierzchnie dodatkowe
Ogródek
Kuchnia
otwarta kuchnia
Wysokość pomieszczeń
od 260 do 280 cm wysokości
Ilość poziomów
1 poziom
Oznaczenie oferty
6.A.06

Raport o deweloperze
Poznaj dewelopera bliżej! Pobierz raport, w którym znajdziesz kluczowe informacje o firmie, jej doświadczeniu, nagrodach oraz aktualnych i zrealizowanych inwestycjach.
Budynek i otoczenie
Miejsca postojowe | |
|---|---|
Komórki lokatorskie | dostępne |
Standard wykończenia | standard deweloperski |
Realizacja inwestycji | rozpoczęcie budowy w 2 kw. 2025 roku, planowane oddanie do użytkowania w 4 kw. 2026 roku |
Udogodnienia | plac zabaw, winda, boisko |
Przyroda | informacja u dewelopera |
Charakterystyka energetyczna nieruchomości | informacja u dewelopera |
Rezerwacja i finanse
Rodzaj własności | Odrębna własność z własnością gruntu |
|---|---|
Wysokość czynszu | informacja u dewelopera |
Warunki rezerwacji | Informacja u dewelopera |
Zabezpieczenie środków | Informacja u dewelopera |
Zdjęcia z budowy
Zobacz na jakim etapie budowy jest ta inwestycja
Lokalizacja inwestycji
Przystanek Tramwajowy - 1056 m
Przystanek Autobusowy - 224 m
Dojazd do centrum: pokaż
W pobliżu 1 km od tej inwestycji znajdują się:
4 kawiarnie i restauracje, 17 sklepów, 22 obiekty sportowe, 1 placówka medyczna, 15 placówek edukacyjnych, 56 placów zabaw
Przeczytaj więcej o lokalizacji
Jasień to jedna z ciekawszych dzielnic mieszkalnych Gdańska, która znana jest z nowej zabudowy osiedlowej oraz licznych domków jednorodzinnych. To właśnie tutaj najlepiej odnajdują się osoby chcące łączyć wygodę komunikacyjną z przestrzenią do aktywnego wypoczynku. Zachodnia część dzielnicy to głównie lasy, ogródki działkowe Zabornia i Jezioro Jasień. Znajdują się tu również zabytki takie, jak dworek z XIX wieku i park dworski. Jasień cieszy się świetną infrastrukturą komunikacyjną dzięki kilku liniom autobusowym oraz Pomorskiej Kolei Metropolitalnej (PKM). Udane zakupy zapewniają centra handlowe położone na zachód od dzielnicy, takie jak Auchan, Leroy Merlin czy Decathlon. Ok. 50 m od południowo-wschodniej granicy Jasienia znajduje się Centrum Diagnostyki Medycznej ENDOMED w Kowalach. Ponadto, w odległości ok. 100 metrów na północ działają Pomorskie Centra Kardiologiczne. Graniczy z dzielnicami miejskimi Matarnia, Brętowo i Piecki-Migowo, Ujeścisko-Łostowice i Kokoszki (przez Obwodnicę Trójmiasta), a także z obszarami wiejskimi (Kolbudy) oraz malowniczym Pojezierzem Kaszubskim. Południowo-zachodnią granicę dzielnicy wyznacza droga krajowa S7, a dzielnicę w połowie przedziela główna arteria Aleja Armii Krajowej. Jasień liczy sobie powierzchnię 18,68 km kw., zamieszkiwaną przez ponad 14 tys. osób.
Opis oferty
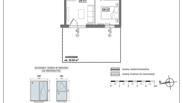
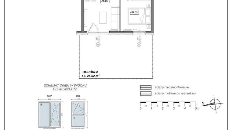
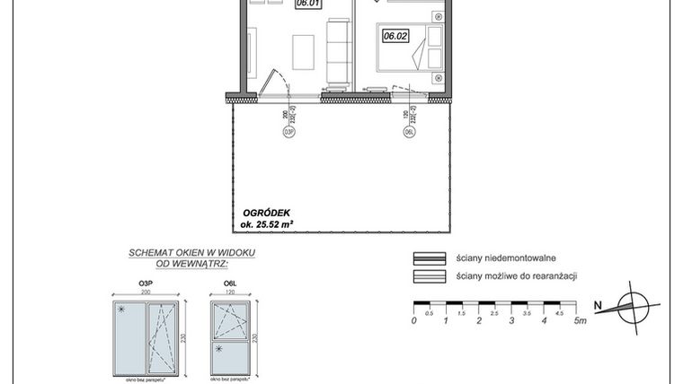
To praktyczne 2-pokojowe mieszkanie na parterze ma własny ogródek ok. 25,52 m² od zachodu . To dodatkowa przestrzeń na świeżym powietrzu, z której realnie korzystasz po pracy: stolik, leżak, trochę zieleni i gotowe miejsce do odpoczynku. Zachodnia ekspozycja daje przyjemne światło w drugiej połowie dnia, a ogródek jest naturalnym przedłużeniem salonu.
W środku układ jest po prostu wygodny. Masz osobną sypialnię, ustawny salon z aneksem i łazienkę w sensownym metrażu. W części dziennej bez problemu zaplanujesz kuchnię w zabudowie, miejsce na stół i strefę wypoczynku. To metraż, który dobrze sprawdza się jako pierwsze mieszkanie, ale też jako lokal inwestycyjny pod wynajem — funkcjonalny układ i ogródek robią różnicę w codziennym użytkowaniu.
Rozkład:
– Pokój dzienny z aneksem kuchennym (18,25 m²), wyjście do ogrodu
– Sypialnia (9,30 m²), okno na zachód
– Łazienka (4,02 m²)
– Przedpokój (3,51 m²)
– Ogródek ok. 25,52 m², ekspozycja zachodnia
Osiedle Urzeka powstaje w Gdańsku, w dzielnicy Jasień , przy ulicach Konrada Guderskiego i Czermińskiego . Lokalizacja daje szybki dojazd do Obwodnicy Trójmiasta i wygodne połączenia z innymi częściami miasta. W okolicy działa komunikacja publiczna, a dodatkowo planowana jest ulica Nowa Turzycowa , która usprawni dojazd w stronę ul. Jabłoniowej. W pobliżu są sklepy, punkty usługowe, przedszkola i pozostała infrastruktura potrzebna na co dzień.
Urzeka jest inwestycją wieloetapową , realizowaną od 2022 roku , a pierwsze budynki zostały oddane do użytkowania w 2023 roku . Docelowo powstanie 15 budynków , a układ zabudowy wspiera prywatność mieszkań i komfort korzystania z części wspólnych. Budynki są 4-piętrowe , a mieszkania mają balkony lub ogródki. Ruch samochodowy jest zorganizowany tak, aby strefy piesze i wspólne były bardziej spokojne i przyjazne do wypoczynku.
Duży nacisk położyliśmy na zieleń i rekreację. Na terenie osiedla są alejki, miejsca odpoczynku i strefy rekreacji dla osób w każdym wieku. Różnorodna roślinność oddziela części ogólnodostępne od ogródków. Naturalnym atutem osiedla jest dolina Potoku Oruńskiego, do której przylega teren Urzeki. Wzdłuż potoku zrealizowaliśmy leśne molo , z miejscem na chwilę przerwy i spojrzenie na zieleń. W tej strefie działa też plac zabaw z atrakcjami, które angażują dzieci na dłużej. Jest tam m.in. długa, rurowa zjeżdżalnia terenowa , a do tego tyrolka i inne instalacje zabawowe.
Jakość projektu potwierdzają nagrody. Urzeka otrzymała pięć gwiazdek w European Property Awards 2025 w kategorii Landscape Architecture , a następnie zwyciężyła w International Property Awards 2025–2026 w tej samej kategorii. Doceniono też nasze podejście do planowania codzienności w konkursie „Zaprojektowane po ludzku. Szczęśliwe Sąsiedztwa” .
Podwyższony standard deweloperski w Domesta obejmuje:
– ściany i sufity szpachlowane i malowane dwukrotnie na biało
– trzyszybowe okna
– parapety z konglomeratu
– ściany działowe z bloczków gipsowych
– solidne drzwi o klasie antywłamaniowej
– wysokiej jakości gniazda i włączniki
Odbiór:
Planowany termin odbioru: listopad 2026 r.
Możesz planować spokojnie: 100% inwestycji Domesta oddajemy w terminie .
Jeśli szukasz 2 pokoi z ogródkiem w dobrze skrojonym metrażu, warto działać szybko. Skontaktuj się z nami, a przekażemy szczegóły i umówimy prezentację.
Link do oferty dewelopera: https://www.domesta.com.pl/urzeka
Nowe 2-pokojowe mieszkanie na sprzedaż o powierzchni 35,08 m² znajduje się w nowo budowanej inwestycji deweloperskiej Urzeka bud. 6 i 7 na Jasieniu, ul. Konrada Guderskiego (6.7 km od centrum Gdańska).
Inwestycja jest realizowana przez DOMESTA Sp. z o.o.
Cała inwestycja składa się z 2 budynków, w których łącznie znajduje się 90 nowych mieszkań.
Na sprzedaż pozostaje 25 ofert o powierzchni od 33 do 67 m².
W budynkach jest 5 kondygnacji naziemnych oraz 1 kondygnacja podziemna.
Inwestycja Urzeka bud. 6 i 7 jest w trakcie budowy z planowanym na 4 kw. 2026 roku terminem oddania do użytkowania.
Nowe mieszkanie o oznaczeniu 6.A.06 znajduje się na parterze i jest 1-poziomowe. Pomieszczenia mają od 260 do 280 centymetrów wysokości. W mieszkaniu znajdują się 2 pokoje.
Okna w mieszkaniu wychodzą na zachód.
Zachodnia ekspozycja to gwarancja intensywnego popołudniowego światła, które nadaje wnętrzom przytulności i ciepła. Idealne dla miłośników słonecznych wieczorów, którzy pragną cieszyć się pięknymi zachodami słońca we własnym domu. Zachodnie światło podkreśla kolory i faktury w aranżacji wnętrz, tworząc atmosferę sprzyjającą relaksowi po długim dniu.
Dla przyszłych mieszkańców Urzeka bud. 6 i 7 deweloper przewidział miejsca postojowe podziemne, miejsca postojowe naziemne.
Dzięki temu przyszli właściciele nie będą musieli poszukiwać wolnej przestrzeni parkingowej. Dodatkowo, miejsce postojowe w garażu podziemnym zabezpiecza przed niekorzystnymi warunkami atmosferycznymi.
Opis Inwestycji
Okazyjna cena
Pow. dodatkowe
Inwestycja Urzeka to wyjątkowe połączenie życia blisko natury z wygodą miejskiej infrastruktury. Zielone otoczenie osiedla zapewnia mieszkańcom ciszę, spokój oraz idealne warunki do relaksu i spędzania wolnego czasu na świeżym powietrzu. Docelowo w ramach inwestycji powstanie 15 budynków mieszkalnych. Już w pierwszym etapie, który został częściowo oddany do użytku, zrealizowano sklepy i punkty usługowe, znacząco podnoszące komfort codziennego życia. Wszystkie budynki wyposażone są w cichobieżne windy, hale garażowe i komórki lokatorskie w części podziemnej oraz naziemne miejsca parkingowe. Na terenie osiedla powstają liczne place zabaw, boisko wielofunkcyjne do gier zespołowych, a także wyjątkowa strefa rekreacyjna nad potokiem – idealna przestrzeń do odpoczynku i integracji mieszkańców.
Mariaż elegancji z naturą
Architektura budynków odznacza się prostą formą i rytmicznymi podziałami elewacji, nawiązuje do modernizmu. Elegancki charakter podkreślają narożniki kwartałów, których szczyty wykończone zostały ceglaną okładziną. Oprócz bieli, tynku i cegły, integralnym elementem kompozycji jest roślinność, która występuje w postaci zielonych dachów oraz pnączy na elewacjach.
Podwyższony standard wykończenia
Nasze mieszkania wyróżniają się podwyższonym standardem wykończenia. Ściany i sufity zostały starannie wygładzone oraz pomalowane dwukrotnie na biało, co nie tylko pozwala zaoszczędzić czas na wykańczanie wnętrz, ale również zapewnia estetyczny wygląd i idealne tło do aranżacji. Ściany wykonano z bloczków gipsowych, które gwarantują dobrą izolację akustyczną. Zastosowanie nowoczesnych, trzyszybowych okien zapewnia doskonałe właściwości termiczne, redukcję hałasu z zewnątrz oraz mniejsze straty ciepła. W standardzie mieszkań znajdują się już eleganckie parapety oraz starannie dobrane, wysokiej jakości gniazda i włączniki. Bezpieczeństwo mieszkańców zapewniają solidne drzwi wejściowe o podwyższonej klasie antywłamaniowej.
Place zabaw i boisko na osiedlu
Najmłodsi mieszkańcy inwestycji będą mogli spędzać czas na funkcjonalnym placu zabaw ze zjeżdżalnią oraz przy naturalnej strefie rekreacyjnej od strony lasu i doliny Potoku Oruńskiego. Niezapomnianą zabawę zagwarantują m.in. tyrolka, "małpi gaj" oraz możliwość wspinaczki linowej. Dodatkowo mieszkańcy będą mogli korzystać z wielofunkcyjnego boiska sportowego zlokalizowanego na terenie osiedla.
Blisko miasta i natury
Inwestycja Urzeka zlokalizowana jest w dzielnicy Gdańsk Jasień, przy rondzie im. 77 Pułku AK w Gdańsku, u zbiegu ulic Guderskiego i Czermińskiego. Inwestycja otoczona jest lasem oraz doliną Potoku Oruńskiego. W pobliżu osiedla znajdują się zbiorniki retencyjne Świętokrzyska I oraz Świętokrzyska II oraz ścieżki rowerowe. W okolicy zlokalizowane są liczne punkty handlowo-usługowe i gastronomiczne, a także placówki edukacyjne i medyczne. Nie brakuje też terenów rekreacyjnych, zarówno w bezpośrednim sąsiedztwie jak i w pobliżu osiedla. Dzięki bliskości głównych arterii, obwodnicy Trójmiasta oraz rozbudowanej infrastruktury transportu zbiorowego, Urzeka jest świetnie skomunikowana z centrum Gdańska oraz innymi dzielnicami miasta. Obok inwestycji planowana jest budowa ulicy Nowa Turzycowa, która umożliwi mieszkańcom inwestycji szybszy dojazd do ulicy Jabłoniowej i wielu ważnych punktów miasta.
Mieszkania dostosowane do potrzeb
W ofercie inwestycji znajdują się lokale o zróżnicowanych metrażach od 35 do ponad 80 m kw. Ich integralną całość stanowią ogródki oraz balkony. Trzypokojowe mieszkania zostały wzbogacone o dodatkowe pomieszczenie - garderobę. Dzięki różnorodności układów funkcjonalnych, każdy z przyszłych mieszkańców osiedla znajdzie mieszkanie dopasowane idealnie do jego potrzeb.
Przytulnie i komfortowo
Przemyślane układy funkcjonalne mieszkań pozwolą spełnić marzenia o przytulnym i komfortowym lokum. Wnętrza przestrzeni wspólnych zostały utrzymane w modernistycznym charakterze i ocieplone okładzinami drewnianymi. Dopełnienie wystroju stanowić będą czarnobiałe zdjęcia przyrody znajdującej się na terenie osiedla.
Mieszkanie znajduje się w inwestycji Urzeka bud. 6 i 7, w której znajduje się w sprzedaży jeszcze 25 podobnych nowych mieszkań.
DOMESTA Sp. z o.o.
Strona internetowa inwestycjiAdres biura sprzedaży:
ul. Guderskiego/Czermińskiego przy rondzie im. 77 Pułku, GdańskGodziny otwarcia biura sprzedaży:
- Poniedziałek: 09:00 - 17:00
- Wtorek: 09:00 - 17:00
- Środa: 09:00 - 17:00
- Czwartek: 09:00 - 17:00
- Piątek: 09:00 - 17:00





