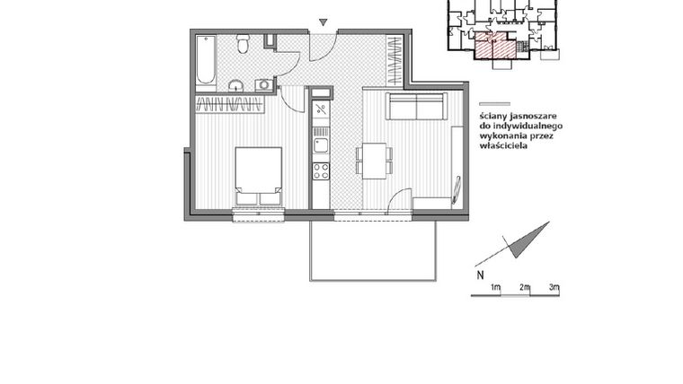
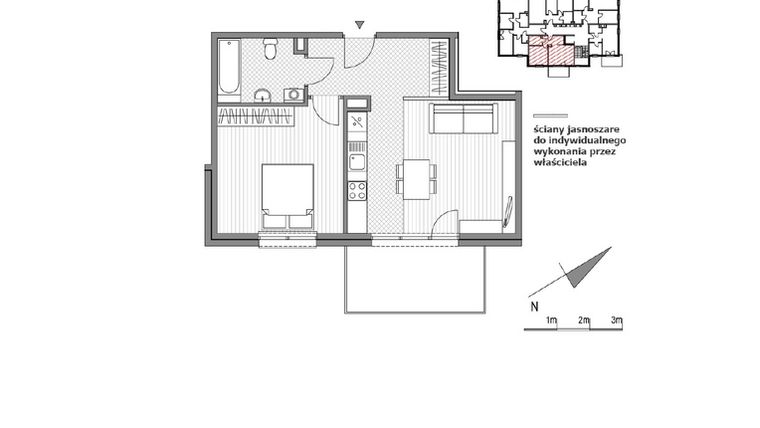
Mieszkanie na sprzedaż 2 pokoje o powierzchni 48,11 m² numer 1.2-10
Inwestycja:
StawowaDeweloper:
Dom-Bud M. Szaflarski Sp. j.
Inwestycja:
StawowaDeweloper:
Dom-Bud M. Szaflarski Sp. j.Kraków, Prądnik Biały, ul. Stawowa 242 i 242a
Kraków, Prądnik Biały, ul. Stawowa 242 i 242a
Termin oddania
Gotowe
Ilość pokoi
2 pokoje
Metraż
48,11 m²
Piętro
2 piętro
Kuchnia
otwarta kuchnia
Wysokość pomieszczeń
265 cm wysokości
Ilość poziomów
1 poziom
Oznaczenie oferty
1.2-10

Raport o deweloperze
Poznaj dewelopera bliżej! Pobierz raport, w którym znajdziesz kluczowe informacje o firmie, jej doświadczeniu, nagrodach oraz aktualnych i zrealizowanych inwestycjach.
Budynek i otoczenie
Miejsca postojowe | |
|---|---|
Standard wykończenia | standard deweloperski |
Realizacja inwestycji | rozpoczęcie budowy w 2 kw. 2022 roku, inwestycja została oddana do użytkowania w 4 kw. 2023 roku |
Udogodnienia | monitoring, rowerownia, videodomofon, instalacja fotowoltaiczna |
Przyroda | informacja u dewelopera |
Charakterystyka energetyczna nieruchomości |
|
Rezerwacja i finanse
Rodzaj własności | Odrębna własność z własnością gruntu |
|---|---|
Wysokość czynszu | informacja u dewelopera |
Warunki rezerwacji | Informacja u dewelopera |
Zabezpieczenie środków | Informacja u dewelopera |
Zdjęcia z budowy
Zobacz na jakim etapie budowy jest ta inwestycja
Lokalizacja inwestycji
Stacja kolejowa - Kraków Mydlniki - 2102 m
Przystanek Tramwajowy - 2029 m
Przystanek Autobusowy - 495 m
Dojazd do centrum: pokaż
W pobliżu 1 km od tej inwestycji znajdują się:
1 kawiarnia lub restauracja, 7 sklepów, 9 obiektów sportowych, 3 placówki medyczne, 2 placówki edukacyjne, 8 placów zabaw
Przeczytaj więcej o lokalizacji
Prądnik Biały to dzielnica IV Krakowa. Jest częścią miasta najbardziej wysuniętą na północ i zajmującą obszar 2341,87 ha. Powstała z połączenia 5 historycznych miejscowości. Zamieszkuje ją 69 135 osób. Jest jedną z tych części Krakowa, których zabudowa jest najbardziej zróżnicowana. Większość nieruchomości stanowią tu osiedla bloków mieszkalnych wzniesione w latach 60-tych, jednak uzupełnione są one blokami z wielkiej płyty powstałymi w latach 70-tych. Do tego dochodzą nowsze osiedla domów jednorodzinnych, a także domy szeregowe. Choć rozmaitość krajobrazu architektonicznego wskazuje na stały rozwój dzielnicy, to wciąż jeszcze można tu znaleźć elementy zabudowy typowo wiejskiej. W okolicy wiele jest miejsc rekreacyjnych idealnych do zabaw dla dzieci. Znajduje się tu 20 ogródków jordanowskich. W dzielnicy działa też 5 klubów sportowych. Dobrze rozbudowana jest infrastruktura oświatowa, o czym świadczy 10 funkcjonujących tu szkół i 4 zespoły szkolne. Zaletą dzielnicy jest też sieć połączeń komunikacyjnych z innymi częściami Krakowa. Działa tu łącznie 30 linii autobusowych i 5 linii tramwajowych. Przez Prądnik Biały przechodzi też droga krajowa nr 7 i droga wojewódzka nr 794.
Opis oferty
Nowe 2-pokojowe mieszkanie na sprzedaż o powierzchni 48,11 m² znajduje się w nowo budowanej inwestycji deweloperskiej Stawowa na Prądniku Białym, ul. Stawowa 242 i 242a (6.3 km od centrum Krakowa).
Inwestycja jest realizowana przez Dom-Bud M. Szaflarski Sp. j.
Cała inwestycja składa się z 2 budynków, w których łącznie znajduje się 26 nowych mieszkań.
Na sprzedaż pozostaje 16 ofert o powierzchni od 33 do 94 m².
W budynkach są 3 kondygnacje naziemne oraz 1 kondygnacja podziemna.
Inwestycja Stawowa została wybudowana i oddana do użytkowania w 4 kw. 2023 roku.
Nowe mieszkanie o oznaczeniu 1.2-10 znajduje się na 2 piętrze i jest 1-poziomowe. Pomieszczenia mają 265 centymetrów wysokości. W mieszkaniu znajdują się 2 pokoje.
Dla przyszłych mieszkańców Stawowa deweloper przewidział miejsca postojowe podziemne.
Dzięki temu przyszli właściciele nie będą musieli poszukiwać wolnej przestrzeni parkingowej. Dodatkowo, miejsce postojowe w garażu podziemnym zabezpiecza przed niekorzystnymi warunkami atmosferycznymi.
Opis Inwestycji
Podmiejski klimat w mieście – czyli inwestycja przy przy ul. Stawowej zlokalizowanej w Bronowicach Wielkich, jednej z najchętniej zamieszkiwanych dzielnic Krakowa. Połączenie bliskości natury z sąsiedztwem domków jednorodzinnych tworzy sielankowy charakter, bez przenoszenia się poza granice miasta.
To tutaj zaplanowano realizację trzech dwupiętrowych budynków składających się z dwóch wyraźnie oddzielonych segmentów każdy. Aktualnie w sprzedaży znajduje się Budynek 1 z funkcjonalnie zaprojektowanymi mieszkaniami o zróżnicowanych powierzchniach od 33 m2 do 95 m2. Dodatkowym atutem jest wysokość lokali, która wynosi 2,65 m. Każdy kompleks dwóch segmentów połączony jest halą garażową gdzie właściciele dwuśladów oraz jednośladów znajdą coś dla siebie. Mowa tu bowiem o zamykanych boksach garażowych oraz rowerowni.
Atuty
Innowacyjnym rozwiązaniem, którym cieszy się inwestycja są panele fotowoltaiczne mające za zadanie obniżać koszty energii części wspólnych. Natomiast wykorzystanie wysokiej klasy materiałów na części elewacji w postaci klinkieru, płyt HPL firmy Trespa, blach tytanowo cynkowych, a także nowoczesne wykończenie części wspólnych, podnoszą sferę wizualną codziennego życia.
Bezpieczeństwo przyszłych mieszkańców zapewnią: monitoring części wspólnych, instalacja video domofonowa, rolety zewnętrzne i oszklenie antywłamaniowe okien i drzwi balkonowych mieszkań zlokalizowanych na parterze oraz antywłamaniowe drzwi wejściowe do każdego z mieszkań.
Mieszkanie znajduje się w inwestycji Stawowa, w której znajduje się w sprzedaży jeszcze 5 podobnych nowych mieszkań.
Dom-Bud M. Szaflarski Sp. j.
Strona internetowa inwestycjiAdres biura sprzedaży:
KrakówGodziny otwarcia biura sprzedaży:
- Poniedziałek: 07:30 - 17:00
- Wtorek: 07:30 - 17:00
- Środa: 07:30 - 17:00
- Czwartek: 07:30 - 17:00
- Piątek: 07:30 - 17:00





