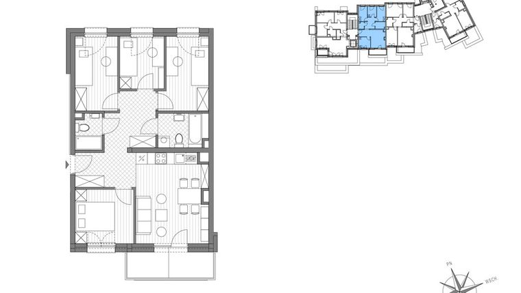
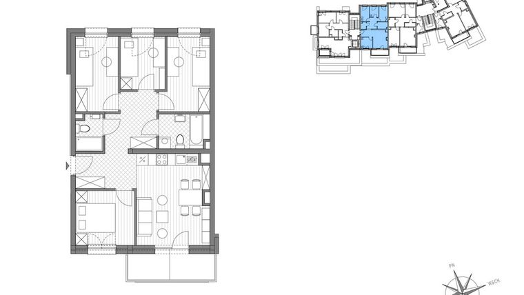
Mieszkanie na sprzedaż 5 pokoi o powierzchni 69,07 m² numer A.8
Inwestycja:
Stawowa ABCDeweloper:
Dom-Bud M. Szaflarski Sp. j.
Inwestycja:
Stawowa ABCDeweloper:
Dom-Bud M. Szaflarski Sp. j.Kraków, Prądnik Biały, ul. Stawowa 246
Kraków, Prądnik Biały, ul. Stawowa 246
Termin oddania
Gotowe
Ilość pokoi
5 pokoi
Metraż
69,07 m²
Piętro
3 piętro
Kuchnia
otwarta kuchnia
Wysokość pomieszczeń
od 260 do 280 cm wysokości
Ilość poziomów
1 poziom
Oznaczenie oferty
A.8

Raport o deweloperze
Poznaj dewelopera bliżej! Pobierz raport, w którym znajdziesz kluczowe informacje o firmie, jej doświadczeniu, nagrodach oraz aktualnych i zrealizowanych inwestycjach.
Budynek i otoczenie
Miejsca postojowe | |
|---|---|
Standard wykończenia | standard deweloperski |
Realizacja inwestycji | rozpoczęcie budowy w 4 kw. 2023 roku, inwestycja została oddana do użytkowania w 3 kw. 2025 roku |
Udogodnienia | monitoring, rowerownia, videodomofon, instalacja fotowoltaiczna |
Przyroda | informacja u dewelopera |
Charakterystyka energetyczna nieruchomości | informacja u dewelopera |
Rezerwacja i finanse
Rodzaj własności | informacja u dewelopera |
|---|---|
Wysokość czynszu | informacja u dewelopera |
Warunki rezerwacji | Informacja u dewelopera |
Zabezpieczenie środków | Informacja u dewelopera |
Zdjęcia z budowy
Zobacz na jakim etapie budowy jest ta inwestycja
Lokalizacja inwestycji
Stacja kolejowa - Kraków Mydlniki - 2094 m
Przystanek Tramwajowy - 2094 m
Przystanek Autobusowy - 492 m
Dojazd do centrum: pokaż
W pobliżu 1 km od tej inwestycji znajdują się:
5 sklepów, 9 obiektów sportowych, 3 placówki medyczne, 1 placówka edukacyjna, 7 placów zabaw
Przeczytaj więcej o lokalizacji
Prądnik Biały to dzielnica IV Krakowa. Jest częścią miasta najbardziej wysuniętą na północ i zajmującą obszar 2341,87 ha. Powstała z połączenia 5 historycznych miejscowości. Zamieszkuje ją 69 135 osób. Jest jedną z tych części Krakowa, których zabudowa jest najbardziej zróżnicowana. Większość nieruchomości stanowią tu osiedla bloków mieszkalnych wzniesione w latach 60-tych, jednak uzupełnione są one blokami z wielkiej płyty powstałymi w latach 70-tych. Do tego dochodzą nowsze osiedla domów jednorodzinnych, a także domy szeregowe. Choć rozmaitość krajobrazu architektonicznego wskazuje na stały rozwój dzielnicy, to wciąż jeszcze można tu znaleźć elementy zabudowy typowo wiejskiej. W okolicy wiele jest miejsc rekreacyjnych idealnych do zabaw dla dzieci. Znajduje się tu 20 ogródków jordanowskich. W dzielnicy działa też 5 klubów sportowych. Dobrze rozbudowana jest infrastruktura oświatowa, o czym świadczy 10 funkcjonujących tu szkół i 4 zespoły szkolne. Zaletą dzielnicy jest też sieć połączeń komunikacyjnych z innymi częściami Krakowa. Działa tu łącznie 30 linii autobusowych i 5 linii tramwajowych. Przez Prądnik Biały przechodzi też droga krajowa nr 7 i droga wojewódzka nr 794.
Opis oferty
Nowe 5-pokojowe mieszkanie na sprzedaż o powierzchni 69,07 m² znajduje się w nowo budowanej inwestycji deweloperskiej Stawowa ABC na Prądniku Białym, ul. Stawowa 246 (6.4 km od centrum Krakowa).
Inwestycja jest realizowana przez Dom-Bud M. Szaflarski Sp. j.
Cała inwestycja składa się z 3 budynków, w których łącznie znajduje się 29 nowych mieszkań.
Na sprzedaż pozostaje 19 ofert o powierzchni od 37 do 100 m².
W budynkach są 4 kondygnacje naziemne oraz 1 kondygnacja podziemna.
Inwestycja Stawowa ABC została wybudowana i oddana do użytkowania w 3 kw. 2025 roku.
Nowe mieszkanie o oznaczeniu A.8 znajduje się na 3 piętrze i jest 1-poziomowe. Pomieszczenia mają od 260 do 280 centymetrów wysokości. W mieszkaniu znajduje się 5 pokoi.
Dla przyszłych mieszkańców Stawowa ABC deweloper przewidział miejsca postojowe podziemne.
Dzięki temu przyszli właściciele nie będą musieli poszukiwać wolnej przestrzeni parkingowej. Dodatkowo, miejsce postojowe w garażu podziemnym zabezpiecza przed niekorzystnymi warunkami atmosferycznymi.
Opis Inwestycji
Nowy etap inwestycji Stawowa już w sprzedaży!
To kolejne kameralne osiedle apartamentowe, które łączy bliskość natury z komfortem życia w mieście. Położone przy ulicy Stawowej w Bronowicach Wielkich - jednej z najbardziej cenionych dzielnic Krakowa - oferuje spokój podmiejskiej okolicy oraz szybką komunikację do centrum.
W ofercie dostępne są mieszkania w budynkach A, B oraz C o powierzchni od 42 m² do niemal 100 m², zapewniające szeroki wybór układów dopasowanych do różnych potrzeb mieszkańców.
Łączymy nowoczesny design z komfortem życia. Oferujemy apartamenty w różnych metrażach i układach, zaprojektowane tak, aby maksymalnie wykorzystać przestrzeń i zapewnić wygodę codziennego życia. Każde mieszkanie wyróżnia się eleganckim wykończeniem i przemyślanym rozkładem, tworząc przyjemną i funkcjonalną przestrzeń do zamieszkania.
Inwestycja powstała z myślą o spokoju i harmonii - kameralna zabudowa oraz cicha okolica Bronowic Wielkich zapewniają idealne warunki do odpoczynku z dala od miejskiego zgiełku. Dodatkowo stosujemy energooszczędne rozwiązania, takie jak panele fotowoltaiczne, które łączą komfort życia z dbałością o środowisko.
Mieszkanie znajduje się w inwestycji Stawowa ABC, w której znajdują się w sprzedaży jeszcze 2 podobne nowe mieszkania.
Dom-Bud M. Szaflarski Sp. j.
Strona internetowa inwestycjiAdres biura sprzedaży:
ul. Salwatorska 14 30-109 KrakówGodziny otwarcia biura sprzedaży:
- Poniedziałek: 07:30 - 17:00
- Wtorek: 07:30 - 17:00
- Środa: 07:30 - 17:00
- Czwartek: 07:30 - 17:00
- Piątek: 07:30 - 17:00





