Termin oddania
3 kw. 2027
Ilość pokoi
1 pokój
Metraż
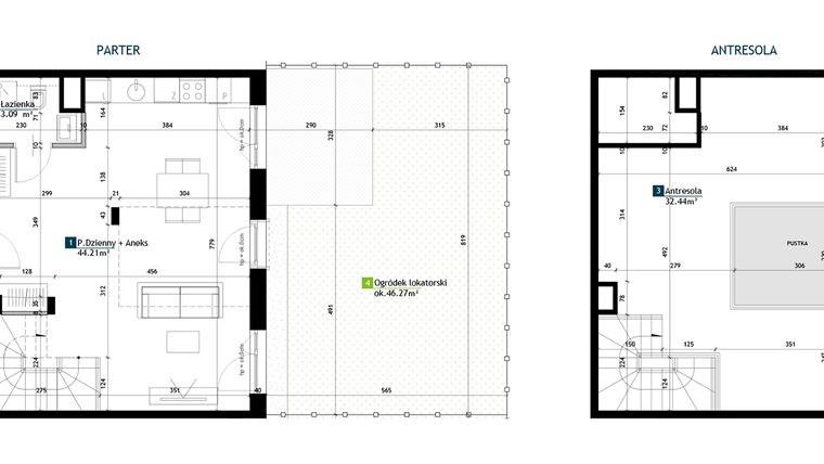
79,74 m²
Piętro
Parter
Strona świata
wschód
Kuchnia
otwarta kuchnia
Wysokość pomieszczeń
od 260 do 280 cm wysokości
Ilość poziomów
1 poziom + antresola
Oznaczenie oferty
BE0001

Raport o deweloperze
Poznaj dewelopera bliżej! Pobierz raport, w którym znajdziesz kluczowe informacje o firmie, jej doświadczeniu, nagrodach oraz aktualnych i zrealizowanych inwestycjach.
Budynek i otoczenie
Miejsca postojowe | |
|---|---|
Standard wykończenia | standard deweloperski |
Realizacja inwestycji | rozpoczęcie budowy w 2 kw. 2025 roku, planowane oddanie do użytkowania w 3 kw. 2027 roku |
Udogodnienia | inteligentny dom, plac zabaw |
Przyroda | informacja u dewelopera |
Charakterystyka energetyczna nieruchomości | informacja u dewelopera |
Rezerwacja i finanse
Rodzaj własności | Odrębna własność z własnością gruntu |
|---|---|
Wysokość czynszu | informacja u dewelopera |
Warunki rezerwacji | Informacja u dewelopera |
Zabezpieczenie środków | Informacja u dewelopera |
Zdjęcia z budowy
Zobacz na jakim etapie budowy jest ta inwestycja
Lokalizacja inwestycji
Stacja kolejowa - Warszawa Gołąbki - 1874 m
Przystanek Tramwajowy - 2342 m
Przystanek Autobusowy - 340 m
Dojazd do centrum: pokaż
W pobliżu 1 km od tej inwestycji znajdują się:
2 kawiarnie i restauracje, 5 sklepów, 6 obiektów sportowych, 4 placówki edukacyjne, 7 placów zabaw
Przeczytaj więcej o lokalizacji
Viva Cité powstaje przy ul. Podgrodzie, w pobliżu ul. Sochaczewskiej, w dynamicznie rozwijającej się części Bemowa. Bemowo to dzielnica z rozbudowaną infrastrukturą miejską. Sklepy, restauracje, punkty usługowe oraz placówki edukacyjne są tu łatwo dostępne, a lokalna oferta stale się rozwija. Chrzanów cieszy się rosnącym zainteresowaniem osób poszukujących mieszkania również dzięki rozbudowie II linii metra. Już w 2026 r. w pobliżu Viva Cité planowane jest otwarcie dwóch nowych stacji – Chrzanów i Karolin, zapewniające szybkie połączenia z centrum i pozostałymi dzielnicami. Dodatkowo bliskość trasy S8 ułatwi weekendowe wyjazdy za miasto. W bezpośrednim sąsiedztwie inwestycji powstała także nowa szkoła podstawowa, której otwarcie planowane jest na wrzesień 2025 roku. Lokalizacja osiedla zapewnia doskonałe warunki do aktywnego wypoczynku i relaksu na świeżym powietrzu. W pobliżu znajdują się liczne tereny zielone, takie jak Fort Chrzanów, Glinianki Sznajdra oraz Park Górczewska idealne na spacery, jogging, wycieczki rowerowe czy rodzinne pikniki. Planowany jest też nowy park miejski, który dodatkowo wzbogaci ofertę rekreacyjną tej części Bemowa.
Rozciągająca się u zachodnich granic Warszawy dzielnica Bemowo to miejsce zamieszkania ok. 116 tys. ludzi. Zabudowa mieszkaniowa jest dość zróżnicowana. Do architektury z okresu międzywojennego należą: skupisko domów jednorodzinnych Boernerowo oraz fragment miasta-ogrodu Stare Jelonki. Wysokie bloki występują na osiedlach: Lazurowa, Jelonki, Górczewska czy Nowe Bemowo. Z kolei Groty, Górce i Chrzanów to tereny, na których obecnie rozwija się nowoczesne budownictwo. Charakterystycznymi miejscami Bemowa są obiekty wojskowe lub lotnicze: zabytkowe forty (Fort Radiowo, Fort Bema, Fort Blizne), Lotnisko Babice, Wojskowe Zakłady Lotnicze oraz Wojskowa Akademia Techniczna. Na lotnisku organizowane są widowiska i koncerty o charakterze masowym, zaś zieloną strefę dzielnicy stanowi Las Bemowski. Dogodny dojazd do centrum umożliwiają: dobrze rozwinięta sieć dróg, linie autobusowe i tramwajowe oraz II linia metra. Do najważniejszych arterii należą ulice: Połczyńska, Górczewska oraz Powstańców Śląskich.
Opis oferty
Nowe 1-pokojowe mieszkanie na sprzedaż o powierzchni 79,74 m² znajduje się w nowo budowanej inwestycji deweloperskiej Viva Cité na Chrzanowie, ul. Podgrodzie (9.2 km od centrum Warszawy).
Inwestycja jest realizowana przez Develia.
Cała inwestycja składa się z 2 budynków, w których łącznie znajduje się 114 nowych mieszkań.
Na sprzedaż pozostaje 55 ofert o powierzchni od 39 do 94 m².
W budynkach są 4 kondygnacje naziemne oraz 1 kondygnacja podziemna.
Inwestycja Viva Cité jest w trakcie budowy z planowanym na 3 kw. 2027 roku terminem oddania do użytkowania.
Nowe mieszkanie o oznaczeniu BE0001 znajduje się na parterze i jest 1-poziomowe. Pomieszczenia mają od 260 do 280 centymetrów wysokości. W mieszkaniu znajduje się 1 pokój.
Okna w mieszkaniu wychodzą na wschód.
Wschodnia orientacja zapewnia dostęp do łagodnego porannego światła, idealnego dla rozpoczęcia dnia pełnego energii. Wnętrza pozostają jasne, ale nieprzegrzane, co sprzyja utrzymaniu komfortowej temperatury. Przebywanie w pomieszczeniu z oknami na wschód inspiruje do działania i pozytywnie wpływa na poranny rytuał.
Dla przyszłych mieszkańców Viva Cité deweloper przewidział miejsca postojowe podziemne.
Dzięki temu przyszli właściciele nie będą musieli poszukiwać wolnej przestrzeni parkingowej. Dodatkowo, miejsce postojowe w garażu podziemnym zabezpiecza przed niekorzystnymi warunkami atmosferycznymi.
Opis Inwestycji
W pierwszym etapie inwestycji powstaną dwa 4-kondygnacyjne budynki ze 114 mieszkaniami o powierzchni od 25 do 135 mkw., a w drugim – dwa kolejne budynki, obejmujące 93 lokale o metrażach od 25 do 117 mkw., w układach od 1 do 5 pokoi. Każde posiadać będzie przestronny ogródek, balkon lub taras. W ofercie dostępne będą również mieszkania dwupoziomowe oraz z antresolą. Wszystkie lokale zostaną wyposażone w system automatyki mieszkaniowej Appartme, który umożliwia m.in. zdalne sterowanie temperaturą, automatyczne wyłączanie oświetlenia po opuszczeniu mieszkania oraz odcięcie dopływu wody i prądu dla zwiększenia bezpieczeństwa. Części wspólne inwestycji Viva Cité zostaną zaprojektowane z dbałością o każdy detal, by stworzyć elegancką i przyjazną przestrzeń. Jasne, przestronne korytarze podkreślą nowoczesny charakter inwestycji, a starannie dobrane elementy wykończenia nadadzą jej wyjątkowego klimatu. Pojawią się tu stylowe portale drzwiowe, duże lustra w holach, klimatyczne lampy oraz dzwonki w stylu retro. Ponadto osiedle wyróżniać się będzie obszerną, zieloną przestrzenią wspólną, zaprojektowaną wokół dwóch dużych dziedzińców – jeden z ogrodem deszczowym, drugi z częścią rekreacyjną obejmującą dwa place zabaw.
ATUTY
• Kameralna zabudowa z eleganckimi częściami wspólnymi i zielonymi dziedzińcami
• Szeroki wybór mieszkań z balkonami, tarasami lub ogródkami
• Mieszkania dwupoziomowe lub z antresolą
• System smart home w standardzie
• Dynamicznie rozwijająca się okolica
• 15 minut spacerem do realizowanej stacji metra Chrzanów
• Sąsiedztwo nowej szkoły podstawowej
• Bliskość terenów rekreacyjnych
Niniejszy materiał nie stanowi oferty w rozumieniu Kodeksu cywilnego i ma charakter wyłącznie informacyjny.
Mieszkanie znajduje się w inwestycji Viva Cité, w której znajduje się w sprzedaży jeszcze 17 podobnych nowych mieszkań.
Develia
Strona internetowa inwestycjiAdres biura sprzedaży:
ul. Człuchowska 49, lok. U3/U4, 01-360 WarszawaGodziny otwarcia biura sprzedaży:
- Poniedziałek: 10:00 - 18:00
- Wtorek: 10:00 - 18:00
- Środa: 10:00 - 18:00
- Czwartek: 10:00 - 18:00
- Piątek: 09:00 - 17:00





