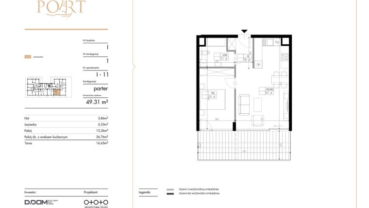
Mieszkanie na sprzedaż 2 pokoje o powierzchni 49,31 m² numer I_11
Inwestycja:
Warmiński Port etap VDeweloper:
D.DOM Sp. z o.o.
Inwestycja:
Warmiński Port etap VDeweloper:
D.DOM Sp. z o.o.Olsztyn, Likusy, ul. Bałtycka
Olsztyn, Likusy, ul. Bałtycka
Promocje
Promocja
Zamieszkaj z widokiem na jezioro Ukiel!
Oferta specjalna obejmuje wybrane lokale. To doskonała okazja, aby nabyć nieruchomość w atrakcyjniejszej cenie niż standardowa oferta rynkowa. Liczba lokali objętych promocją jest ograniczona, dlatego warto skorzystać z niej jak najszybciej.
Oddanie
4 kw. 2026
Ilość pokoi
2 pokoje
Metraż
49,31 m²
Piętro
Parter
Kuchnia
otwarta kuchnia
Wysokość
od 280 do 290 cm wysokości
Poziomy
1 poziom
Oznaczenie oferty
I_11

Raport o deweloperze
Poznaj dewelopera bliżej! Pobierz raport, w którym znajdziesz kluczowe informacje o firmie, jej doświadczeniu, nagrodach oraz aktualnych i zrealizowanych inwestycjach.
Budynek i otoczenie
Miejsca postojowe | |
|---|---|
Komórki lokatorskie | dostępne |
Standard wykończenia | standard deweloperski Ogrzewanie podłogowe |
Realizacja inwestycji | rozpoczęcie budowy w 2 kw. 2025 roku, planowane oddanie do użytkowania w 4 kw. 2026 roku |
Udogodnienia | plac zabaw, pomieszczenie rekreacyjne, monitoring, teren ogrodzony, internet, klimatyzacja, przystosowane dla niepełnosprawnych, sauna, TV kablowa, winda, videodomofon, własna kotłownia, miejsce do ładowania samochodów elektrycznych, sala fitness |
Przyroda | w okolicy inwestycji znajduje się las, jezioro |
Charakterystyka energetyczna nieruchomości | informacja u dewelopera |
Rezerwacja i finanse
Rodzaj własności | Odrębna własność z własnością gruntu |
|---|---|
Wysokość czynszu | informacja u dewelopera |
Warunki rezerwacji | 1% wartości nieruchomości |
Zabezpieczenie środków | Otwarty mieszkaniowy rachunek powierniczy |
Postępy i zdjęcia z budowy
Zobacz na jakim etapie budowy jest ta inwestycja
Lokalizacja inwestycji
Stacja kolejowa - Olsztyn Redykajny - 461 m
Przystanek Autobusowy - 156 m
Dojazd do centrum: pokaż
W pobliżu 1 km od tej inwestycji znajdują się:
4 kawiarnie i restauracje, 4 sklepy, 3 obiekty sportowe, 1 placówka edukacyjna, 1 plac zabaw
Przeczytaj więcej o lokalizacji
Olsztyn jest stolicą województwa warmińsko-mazurskiego. Znajduje się w nim siedziba władz ziemskiego powiatu olsztyńskiego, kurii archidiecezji warmińskiej i luterańskiej diecezji mazurskiej. Podzielone jest na kilkadziesiąt osiedli - jednostek pomocniczych gminy, które są najniższym, pomocniczym szczeblem samorządu miejskiego. Ich działanie obejmuje załatwianie spraw publicznych o zasięgu lokalnym. Około 30 procent powierzchni całego miasta zajmują lasy. Ponad połowa z tego to zwarty kompleks Lasu Miejskiego, który pełni głównie funkcje terenów rekreacyjno-wypoczynkowych oraz turystyczno-krajoznawczych.
Opis oferty
Nowe 2-pokojowe mieszkanie na sprzedaż o powierzchni 49,31 m² znajduje się w nowo budowanej inwestycji deweloperskiej Warmiński Port etap V na Likusach, ul. Bałtycka (4 km od centrum Olsztyna).
Inwestycja jest realizowana przez D.DOM Sp. z o.o.
Cała inwestycja składa się z 3 budynków, w których łącznie znajduje się 37 nowych mieszkań.
Na sprzedaż pozostają 34 oferty o powierzchni od 42 do 144 m².
W budynkach są 3 kondygnacje naziemne oraz 1 kondygnacja podziemna.
Inwestycja Warmiński Port etap V jest w trakcie budowy z planowanym na 4 kw. 2026 roku terminem oddania do użytkowania.
Nowe mieszkanie o oznaczeniu I_11 znajduje się na parterze i jest 1-poziomowe. Pomieszczenia mają od 280 do 290 centymetrów wysokości. W mieszkaniu znajdują się 2 pokoje.
Dla przyszłych mieszkańców Warmiński Port etap V deweloper przewidział miejsca postojowe podziemne, miejsca postojowe naziemne.
Dzięki temu przyszli właściciele nie będą musieli poszukiwać wolnej przestrzeni parkingowej. Dodatkowo, miejsce postojowe w garażu podziemnym zabezpiecza przed niekorzystnymi warunkami atmosferycznymi.
Opis Inwestycji
Nad brzegiem jeziora Ukiel w Olsztynie
Poczuj luksus w połączeniu tradycji z nowymi technologiami. W sercu Olsztyna, nad brzegiem największego w mieście jeziora Ukiel, powstaje kompleks prestiżowych apartamentowców. Idealnie wkomponowane w warmiński krajobraz apartamenty będą rozpieszczać luksusem. Budynki, dzięki nowoczesnej, całkowicie przeszklonej formie architektonicznej będą wyróżniać się w skali całego regionu.
Każde mieszkanie wyposażone zostanie w antywłamaniowe drzwi klasy C oraz panoramiczne, trzyszybowe okna aluminiowe. Każdy apartament dodatkowo wyposażymy w ogrzewanie podłogowe oraz system klimatyzacji. Dla mieszkańców będzie dostępne molo, a nad brzegiem jeziora zostanie zaaranżowana plaża z łagodnym zejściem do wody. Mieszkania parterowe będą miały tarasy z prywatnymi ogródkami o powierzchni od 15 do 643 m2.
W Warmińskim Porcie będzie szereg udogodnień służących wszystkim mieszkańcom. Nie zabraknie też tradycyjnego placu zabaw. Miejsca parkingowe będą się znajdowały zarówno w podziemnym parkingu wyposażonym w ładowarki do samochodów elektrycznych jak i na zewnątrz. Części wspólne będą zasilone dzięki fotowoltaice zainstalowanej na dachu kompleksu. Do dyspozycji znajdzie się strefa fitness z siłownią i sauną. Przyszli mieszkańcy otrzymają także dodatkową przestrzeń w postaci komórek lokatorskich w cenie.
Mieszkanie znajduje się w inwestycji Warmiński Port etap V, w której znajduje się w sprzedaży jeszcze 10 podobnych nowych mieszkań.
D.DOM Sp. z o.o.
Strona internetowa inwestycjiAdres biura sprzedaży:
Olsztyn, ul. Lubelska 41EGodziny otwarcia biura sprzedaży:
- Poniedziałek: 08:00 - 16:00
- Wtorek: 08:00 - 16:00
- Środa: 08:00 - 16:00
- Czwartek: 08:00 - 16:00
- Piątek: 08:00 - 16:00





