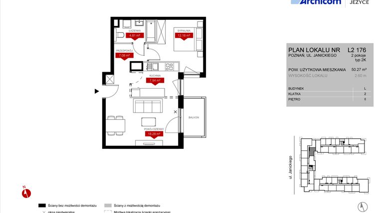
Mieszkanie na sprzedaż 2 pokoje o powierzchni 50,27 m² numer L2.176
Inwestycja:
Wieża Jeżyce etap VIDeweloper:
Archicom S.A.
Inwestycja:
Wieża Jeżyce etap VIDeweloper:
Archicom S.A.Poznań, Jeżyce, Osiedle Jeżyce, ul. Klemensa Janickiego 23/25
Poznań, Jeżyce, Osiedle Jeżyce, ul. Klemensa Janickiego 23/25
Uwaga
Ta nieruchomość jest nieaktywna. Informacje na jej temat pomagają nam jednak tworzyć wiarygodną bazę informacji na temat lokalnego rynku nieruchomości statystycznych portalu
Najbliższe inwestycje
- Osiedle Goplana – nowy etap, ta sama jakość, jeszcze więcej możliwości Na terenie dawnej fabryki czekolady Goplana, w samym sercu poznańskich Jeżyc, powstaje kolejny etap jednej z najbardziej rozpoznawalnych inwestycji mieszkaniowych w tej części miasta. Etap G to kontynuacja spójnej wizji nowoczesnego, zrównoważonego osiedla, które harmonijnie łączy klimat historycznego miejsca z potrzebami
Goplana budynek G
od 398 400 zł
4 kwartał 2027
Poznań, Jeżyce, Osiedle Jeżyce,
ul. św. Wawrzyńca
1-4 pokoje, Metraż 27-109 m2
- W dawnych budynkach fabryki Goplana wciąż jeszcze unosi się aromat czekolady. Może już na stałe nasyci te mury? Jednak największym atutem dawnej fabryki dziś jest jej lokalizacja – to niemal 6 hektarów w najbardziej rozpoznawalnej dzielnicy Poznania – na kultowych Jeżycach, tuż przy ulicy Kościelnej, u bram Parku Sołackiego. Goplana to kilkuetapowy projekt zakładający stworzenie nowoczesnego
Goplana budynek F
od 522 309 zł
gotowe
Poznań, Jeżyce, Osiedle Jeżyce,
ul. św. Wawrzyńca
1-5 pokoi, Metraż 34-115 m2
- Butikowy budynek, w którym znajdzie się tylko 25 mieszkań. Wśród nich typowo kamieniczne, wysokie wnętrza z dużymi oknami, ale też bardzo atrakcyjne aranżacyjnie apartamenty dwupoziomowe. W mieszkaniach w oficynie pojawią się balkony i tarasy. Powstanie eleganckie, reprezentacyjne wejście, a nieskromnie przyznamy - wiemy, jak ważne jest by od progu zachwycać! Elewacja kamienicy odzyska swój
Gwarna8
od 588 400 zł
gotowe
Poznań, Stare Miasto, Osiedle Stare Miasto,
ul. Gwarna 8
1-3 pokoje, Metraż 39-106 m2
Termin oddania
2 kw. 2026
Ilość pokoi
2 pokoje
Metraż
50,27 m²
Piętro
6 piętro
Strona świata
wschód
Powierzchnie dodatkowe
Balkon
Kuchnia
zamknięta kuchnia
Wysokość pomieszczeń
260 cm wysokości
Ilość poziomów
1 poziom
Oznaczenie oferty
L2.176

Raport o deweloperze
Poznaj dewelopera bliżej! Pobierz raport, w którym znajdziesz kluczowe informacje o firmie, jej doświadczeniu, nagrodach oraz aktualnych i zrealizowanych inwestycjach.
Budynek i otoczenie
Miejsca postojowe | |
|---|---|
Standard wykończenia | standard deweloperski |
Realizacja inwestycji | rozpoczęcie budowy w 2 kw. 2025 roku, planowane oddanie do użytkowania w 2 kw. 2026 roku |
Udogodnienia | plac zabaw, monitoring, usługi w budynku, winda, rowerownia, inteligentny dom, miejsce do ładowania samochodów elektrycznych |
Przyroda | w okolicy inwestycji znajduje się park, jezioro |
Charakterystyka energetyczna nieruchomości | informacja u dewelopera |
Rezerwacja i finanse
Rodzaj własności | Odrębna własność z własnością gruntu |
|---|---|
Wysokość czynszu | informacja u dewelopera |
Warunki rezerwacji | Informacja u dewelopera |
Zabezpieczenie środków | Informacja u dewelopera |
Lokalizacja inwestycji
Stacja kolejowa - Poznań Główny - 1745 m
Przystanek Tramwajowy - 171 m
Przystanek Autobusowy - 361 m
Dojazd do centrum: pokaż
W pobliżu 1 km od tej inwestycji znajdują się:
90 kawiarni i restauracji, 78 sklepów, 41 obiektów sportowych, 17 placówek medycznych, 38 placówek edukacyjnych, 24 place zabaw
Przeczytaj więcej o lokalizacji
Jeżyce to dzielnica Poznania rozmieszczona na planie niemal idealnego kwadratu. Na jego zachodzie można znaleźć Jezioro Kerskie, natomiast południową granicę wyznacza obszar Lotniska Poznań-Ławica. Na wschodzie dzielnicę ogranicza ul. Obornicka a na północy osiedla Suchy Las i Jelonek. Jeżyce składają się głównie z zabytkowych, przedwojennych kamienic, które coraz częściej dzięki renowacji okazują się być perełkami architektonicznymi miasta. Na Jeżycach na powierzchni 2 km kw mieszka ok. 24 tys. mieszkańców. Największy zakład opieki zdrowotnej to Szpital Rehabilitacyjny dla dzieci. W odległości ok. 500 metrów na wschód mieści się wydział Nauk Politycznych i Dziennikarstwa Uniwersytetu im. Adama Mickiewicza. W odległości ok. 1 km od granic dzielnicy można znaleźć liczne centra handlowe, kina i teatry. Największe centrum handlowe okolicy to Galeria Podolany, jednak w odległości ok. 1 km na południe i wschód można znaleźć inne sklepy wielkopowierzchniowe, takie jak CH Poznań Plaza, Galeria Pestka czy King Cross Marcelin.
Opis oferty
Nowe 2-pokojowe mieszkanie na sprzedaż o powierzchni 50,27 m² znajduje się w nowo budowanej inwestycji deweloperskiej Wieża Jeżyce etap VI na Jeżycach, ul. Klemensa Janickiego 23/25 (2.3 km od centrum Poznania).
Inwestycja jest realizowana przez Archicom S.A.
Cała inwestycja składa się z 1 budynku, w którym łącznie znajdują się 272 nowe mieszkania.
Inwestycja jest już wyprzedana.
W budynku jest 7 kondygnacji naziemnych oraz 1 kondygnacja podziemna.
Inwestycja Wieża Jeżyce etap VI jest w trakcie budowy z planowanym na 2 kw. 2026 roku terminem oddania do użytkowania.
Nowe mieszkanie o oznaczeniu L2.176 znajduje się na 6 piętrze i jest 1-poziomowe. Pomieszczenia mają 260 centymetrów wysokości. W mieszkaniu znajdują się 2 pokoje.
Okna w mieszkaniu wychodzą na wschód.
Wschodnia orientacja zapewnia dostęp do łagodnego porannego światła, idealnego dla rozpoczęcia dnia pełnego energii. Wnętrza pozostają jasne, ale nieprzegrzane, co sprzyja utrzymaniu komfortowej temperatury. Przebywanie w pomieszczeniu z oknami na wschód inspiruje do działania i pozytywnie wpływa na poranny rytuał.
Dla przyszłych mieszkańców Wieża Jeżyce etap VI deweloper przewidział miejsca postojowe podziemne.
Dzięki temu przyszli właściciele nie będą musieli poszukiwać wolnej przestrzeni parkingowej. Dodatkowo, miejsce postojowe w garażu podziemnym zabezpiecza przed niekorzystnymi warunkami atmosferycznymi.
Opis Inwestycji
Tereny zielone
Pow. dodatkowe
Zaprojektowaliśmy Wieżę Jeżyce z myślą o wygodzie mieszkańców. To samowystarczalne miasto w mieście, które pozwala cieszyć się codziennością tu i teraz. Wokół Placu pod Wieżą możesz pracować, odpoczywać i spędzać czas z rodziną. Strefy relaksu, place zabaw oraz wszechobecna zieleń to tylko kilka argumentów, aby tu zamieszkać.
Mieszkanie znajduje się w inwestycji Wieża Jeżyce etap VI.





