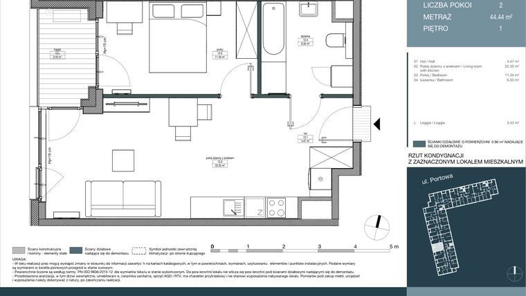
Mieszkanie na sprzedaż 2 pokoje o powierzchni 44,44 m² numer 12
Inwestycja:
Portowa ZabłocieDeweloper:
YIT Development Sp. z o.o.
Inwestycja:
Portowa ZabłocieDeweloper:
YIT Development Sp. z o.o.Kraków, Podgórze, ul. Portowa
Kraków, Podgórze, ul. Portowa
Termin oddania
Gotowe
Ilość pokoi
2 pokoje
Metraż
44,44 m²
Piętro
1 piętro
Kuchnia
otwarta kuchnia
Wysokość pomieszczeń
263 cm wysokości
Ilość poziomów
1 poziom
Oznaczenie oferty
12

Raport o deweloperze
Poznaj dewelopera bliżej! Pobierz raport, w którym znajdziesz kluczowe informacje o firmie, jej doświadczeniu, nagrodach oraz aktualnych i zrealizowanych inwestycjach.
Budynek i otoczenie
Miejsca postojowe | |
|---|---|
Komórki lokatorskie | dostępne |
Standard wykończenia | standard deweloperski Ogrzewanie miejskie |
Realizacja inwestycji | rozpoczęcie budowy w 1 kw. 2024 roku, inwestycja została oddana do użytkowania w 4 kw. 2025 roku |
Udogodnienia | klimatyzacja, winda, rowerownia, miejsce do ładowania samochodów elektrycznych |
Przyroda | informacja u dewelopera |
Charakterystyka energetyczna nieruchomości |
|
Rezerwacja i finanse
Rodzaj własności | Odrębna własność z własnością gruntu |
|---|---|
Wysokość czynszu | informacja u dewelopera |
Warunki rezerwacji | Informacja u dewelopera |
Zabezpieczenie środków | Informacja u dewelopera |
Zdjęcia z budowy
Zobacz na jakim etapie budowy jest ta inwestycja
Lokalizacja inwestycji
Stacja kolejowa - Kraków Zabłocie - 947 m
Przystanek Tramwajowy - 296 m
Przystanek Autobusowy - 278 m
Dojazd do centrum: pokaż
W pobliżu 1 km od tej inwestycji znajdują się:
59 kawiarni i restauracji, 48 sklepów, 16 obiektów sportowych, 18 placówek medycznych, 9 placówek edukacyjnych, 26 placów zabaw
Przeczytaj więcej o lokalizacji
Zabłocie, czyli dzielnica kultury Fabryka Emalia Oskara Schindlera, MOCAK – Muzeum Sztuki Współczesnej w Krakowie, Centrum Sztuki Współczesnej Wiewiórka oraz Ośrodek Dokumentacji Sztuki Tadeusza Kantora Cricoteka są tu na wyciągnięcie ręki. Lokalizacja jest idealna dla osób złaknionych kulturalnych wrażeń i gotowych odkrywać Kraków w każdym wymiarze. Estetyczne wrażenia czają się tu na każdym kroku dzięki muralom, które zdobią wiele budynków w tej dzielnicy. Przekonaj się, jak przyjemnie jest żyć w otoczeniu kultury.
Dzielnica Podgórze znajduje się w centrum Krakowa i jest zamieszkiwana przez 34 045 osób. Dzielnicę można podzielić na 3 podregiony, z których każdy cechuje się odmiennym typem zabudowy. Stare Podgórze pełne jest zabytków i budynków wzniesionych w XIX i na początku XXw., w Płaszowie dominują czterokondygnacyjne budynki z lat 90-tych XXw. oraz domy jednorodzinne, natomiast na Rybitwach domy jednorodzinne mieszają się z nieruchomościami przemysłowymi. Dzielnica rozwija się w szybkim tempie i może pochwalić się dobrze rozbudowaną infrastrukturą, czego przykładem jest niemal 20 szkół, 2 galerie, 2 muzea, Kino Teatr „Wrzos”, domy kultury. Odpocząć można tu na Plantach im. F. Nowackiego lub w Parku im. W. Bednarskiego. Dodatkowo Podgórze ma dobre połączenia komunikacyjne z pozostałymi dzielnicami Krakowa, a dojazdy ułatwiają przechodzące przez dzielnicę drogi: krajowa nr 7 i wojewódzka nr 776.
Opis oferty
Nowe 2-pokojowe mieszkanie na sprzedaż o powierzchni 44,44 m² znajduje się w nowo budowanej inwestycji deweloperskiej Portowa Zabłocie na Podgórzu, ul. Portowa (2.3 km od centrum Krakowa).
Inwestycja jest realizowana przez YIT Development Sp. z o.o.
Cała inwestycja składa się z 1 budynku, w którym łącznie znajduje się 156 nowych mieszkań.
Na sprzedaż pozostaje 38 ofert o powierzchni od 40 do 90 m².
W budynku jest 8 kondygnacji naziemnych oraz 2 kondygnacje podziemne.
Inwestycja Portowa Zabłocie została wybudowana i oddana do użytkowania w 4 kw. 2025 roku.
Nowe mieszkanie o oznaczeniu 12 znajduje się na 1 piętrze i jest 1-poziomowe. Pomieszczenia mają 263 centymetrów wysokości. W mieszkaniu znajdują się 2 pokoje.
Dla przyszłych mieszkańców Portowa Zabłocie deweloper przewidział miejsca postojowe podziemne.
Dzięki temu przyszli właściciele nie będą musieli poszukiwać wolnej przestrzeni parkingowej. Dodatkowo, miejsce postojowe w garażu podziemnym zabezpiecza przed niekorzystnymi warunkami atmosferycznymi.
Opis Inwestycji
Tereny zielone
Portowa Zabłocie to inwestycja największego fińskiego dewelopera – YIT.
Kameralna inwestycja Portowa Zabłocie obejmuje zaledwie 156 mieszkań, rozlokowanych na 7 piętrach – tak, by każdy z mieszkańców mógł poczuć się swobodnie. Na jej terenie znajdzie się także 5 lokali usługowych.
Butikowa inwestycja Portowa Zabłocie jest dowodem na to, że nawet budynek zlokalizowany na postindustrialnym terenie może harmonijnie wkomponować się w miejski krajobraz. Projekt nawiązuje do historycznego, ceglanego budynku sąsiadującej, dawnej chłodni portowej. Szara cegła i szlachetny tynk o betonowej strukturze, w połączeniu z ciepłymi, drewnianymi elementami w loggiach i stolarce okiennej, nadadzą mu wyjątkowy charakter. Niepowtarzalny urok inwestycji można dostrzec też w jej detalach. Wysokiej jakości materiały zostaną tu wykorzystane do stworzenia samonośnych szklanych balustrad, rozrzeźbionego narożnika czy do wyróżnienia przestrzeni usługowej, która będzie charakteryzować się grafitową okładziną z klinkieru. Nowoczesne i funkcjonalne mieszkania oraz wewnętrzny dziedziniec, stanowiący przestrzeń do rekreacji, każdego dnia pozwolą Ci poczuć, że mieszkasz w przemyślanym miejscu tworzonym z pasją.
Mieszkanie znajduje się w inwestycji Portowa Zabłocie, w której znajduje się w sprzedaży jeszcze 9 podobnych nowych mieszkań.
YIT Development Sp. z o.o.
Strona internetowa inwestycjiAdres biura sprzedaży:
ul. Tadeusza Romanowicza 1/LU 3 30-702 KrakówGodziny otwarcia biura sprzedaży:
- Poniedziałek: 09:00 - 17:00
- Wtorek: 09:00 - 17:00
- Środa: 09:00 - 17:00
- Czwartek: 09:00 - 17:00
- Piątek: 09:00 - 17:00
- Sobota: 09:00 - 14:00





