Mieszkanie na sprzedaż 2 pokoje o powierzchni 49,45 m² numer 3
Oferta archiwalna
Inwestycja:
Portowa ZabłocieDeweloper:
YIT Development Sp. z o.o.
Inwestycja:
Portowa ZabłocieDeweloper:
YIT Development Sp. z o.o.Kraków, Podgórze, ul. Portowa
Kraków, Podgórze, ul. Portowa
Nieruchomość została sprzedana
Zobacz pozostałe mieszkania w inwestycji Portowa Zabłocie lub inne propozycje na Podgórzu
Najbliższe inwestycje
- Zabłocie to kolejna krakowska lokalizacja, w której powstaje nowy projekt Matexi Polska. Rewitalizacja tych terenów rozpoczęła się kilka lat temu, zaczynając od rejonów Podgórza, poprzez pofabryczne obszary ulicy Romanowicza, aż dotarła do okolic ulicy Portowej, która stanowi kolejny etap rozwoju nadbrzeżnego Krakowa. Zgodnie z planem zagospodarowania przestrzennego, Apartamenty Portowa to
Apartamenty Portowa
od 570 000 zł
gotowe
Kraków, Podgórze, ul. Portowa 43
1-4 pokoje, Metraż 30-92 m2
- Odkryj NOWE ZABŁOCIE – wyjątkowe miejsce do życia w Krakowie! Zaufaj naszemu 75-letniemu doświadczeniu w branży budowlanej, uhonorowanemu godłem TERAZ POLSKA, popartemu realizacją ponad 1200 inwestycji budowlanych. Wybierz apartament w realizowanej przez CHEMOBUDOWĘ – KRAKÓW nowej inwestycji mieszkaniowej na krakowskim Zabłociu! Zamieszkaj w miejscu o bogatej historii, której ślady można odnaleźć
Nowe Zabłocie
od 811 408 zł
gotowe
Kraków, Podgórze,
ul. Pana Tadeusza 7
2-5 pokoi, Metraż 43-108 m2
% Promocje
Portowa to najnowsza inwestycja Casa Feliz na krakowskim Zabłociu. To typowo miejskie osiedle, położone w pobliżu Bulwarów Wisły i ogrodów działkowych, w kameralnym zakątku u zbiegu ulic Pana Tadeusza i Portowej. Tu każdy znajdzie coś dla siebie, niezależnie od potrzeb i stylu życia – od kompaktowych mieszkań adresowanych dla singli po przestronne trzy- i czteropokojowe mieszkania idealne dlaCasa Feliz Portowa
od 575 970 zł
gotowe
Kraków, Podgórze, ul. Portowa 16
1-3 pokoje, Metraż 29-63 m2
Termin oddania
Gotowe
Ilość pokoi
2 pokoje
Metraż
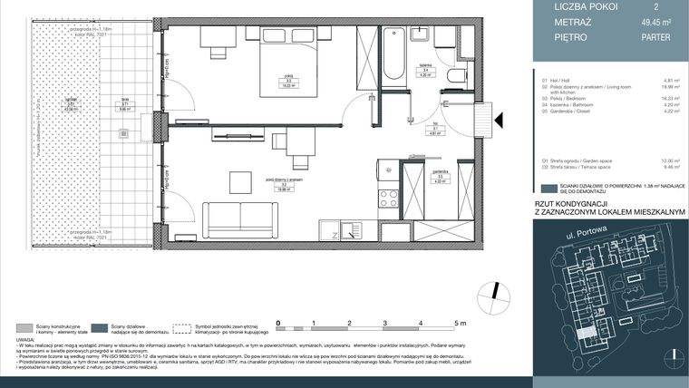
49,45 m²
Piętro
Parter
Powierzchnie dodatkowe
Ogródek
Kuchnia
otwarta kuchnia
Wysokość pomieszczeń
280 cm wysokości
Ilość poziomów
1 poziom
Oznaczenie oferty
3

Raport o deweloperze
Poznaj dewelopera bliżej! Pobierz raport, w którym znajdziesz kluczowe informacje o firmie, jej doświadczeniu, nagrodach oraz aktualnych i zrealizowanych inwestycjach.
Budynek i otoczenie
Miejsca postojowe | |
|---|---|
Komórki lokatorskie | dostępne |
Standard wykończenia | standard deweloperski Ogrzewanie miejskie |
Realizacja inwestycji | została oddana do użytkowania w 4 kw. 2025 roku |
Udogodnienia | klimatyzacja, winda, rowerownia, miejsce do ładowania samochodów elektrycznych |
Przyroda | informacja u dewelopera |
Charakterystyka energetyczna nieruchomości |
|
Rezerwacja i finanse
Rodzaj własności | Odrębna własność z własnością gruntu |
|---|---|
Wysokość czynszu | informacja u dewelopera |
Warunki rezerwacji | Informacja u dewelopera |
Zabezpieczenie środków | Informacja u dewelopera |
Lokalizacja inwestycji
Stacja kolejowa - Kraków Zabłocie - 947 m
Przystanek Tramwajowy - 296 m
Przystanek Autobusowy - 278 m
Dojazd do centrum: pokaż
W pobliżu 1 km od tej inwestycji znajdują się:
59 kawiarni i restauracji, 48 sklepów, 16 obiektów sportowych, 18 placówek medycznych, 9 placówek edukacyjnych, 26 placów zabaw
Przeczytaj więcej o lokalizacji
Zabłocie, czyli dzielnica kultury Fabryka Emalia Oskara Schindlera, MOCAK – Muzeum Sztuki Współczesnej w Krakowie, Centrum Sztuki Współczesnej Wiewiórka oraz Ośrodek Dokumentacji Sztuki Tadeusza Kantora Cricoteka są tu na wyciągnięcie ręki. Lokalizacja jest idealna dla osób złaknionych kulturalnych wrażeń i gotowych odkrywać Kraków w każdym wymiarze. Estetyczne wrażenia czają się tu na każdym kroku dzięki muralom, które zdobią wiele budynków w tej dzielnicy. Przekonaj się, jak przyjemnie jest żyć w otoczeniu kultury.
Dzielnica Podgórze znajduje się w centrum Krakowa i jest zamieszkiwana przez 34 045 osób. Dzielnicę można podzielić na 3 podregiony, z których każdy cechuje się odmiennym typem zabudowy. Stare Podgórze pełne jest zabytków i budynków wzniesionych w XIX i na początku XXw., w Płaszowie dominują czterokondygnacyjne budynki z lat 90-tych XXw. oraz domy jednorodzinne, natomiast na Rybitwach domy jednorodzinne mieszają się z nieruchomościami przemysłowymi. Dzielnica rozwija się w szybkim tempie i może pochwalić się dobrze rozbudowaną infrastrukturą, czego przykładem jest niemal 20 szkół, 2 galerie, 2 muzea, Kino Teatr „Wrzos”, domy kultury. Odpocząć można tu na Plantach im. F. Nowackiego lub w Parku im. W. Bednarskiego. Dodatkowo Podgórze ma dobre połączenia komunikacyjne z pozostałymi dzielnicami Krakowa, a dojazdy ułatwiają przechodzące przez dzielnicę drogi: krajowa nr 7 i wojewódzka nr 776.
Opis oferty
Nowe 2-pokojowe mieszkanie na sprzedaż o powierzchni 49,45 m² znajduje się w nowo wybudowanej inwestycji deweloperskiej Portowa Zabłocie na Podgórzu, ul. Portowa (2.3 km od centrum Krakowa).
Inwestycja została zrealizowana przez YIT Development Sp. z o.o.
Cała inwestycja składa się z 1 budynku, w którym łącznie znajduje się 156 nowych mieszkań.
Na sprzedaż pozostaje 29 ofert o powierzchni od 40 do 90 m².
W budynku jest 8 kondygnacji naziemnych oraz 2 kondygnacje podziemne.
Inwestycja Portowa Zabłocie została wybudowana i oddana do użytkowania w 4 kw. 2025 roku.
Nowe mieszkanie o oznaczeniu 3 znajduje się na parterze i jest 1-poziomowe. Pomieszczenia mają 280 centymetrów wysokości. W mieszkaniu znajdują się 2 pokoje.
Dla przyszłych mieszkańców Portowa Zabłocie deweloper przewidział miejsca postojowe podziemne.
Dzięki temu przyszli właściciele nie będą musieli poszukiwać wolnej przestrzeni parkingowej. Dodatkowo, miejsce postojowe w garażu podziemnym zabezpiecza przed niekorzystnymi warunkami atmosferycznymi.
Opis Inwestycji
Tereny zielone
Pow. dodatkowe
Portowa Zabłocie to inwestycja największego fińskiego dewelopera – YIT.
Kameralna inwestycja Portowa Zabłocie obejmuje zaledwie 156 mieszkań, rozlokowanych na 7 piętrach – tak, by każdy z mieszkańców mógł poczuć się swobodnie. Na jej terenie znajdzie się także 5 lokali usługowych.
Butikowa inwestycja Portowa Zabłocie jest dowodem na to, że nawet budynek zlokalizowany na postindustrialnym terenie może harmonijnie wkomponować się w miejski krajobraz. Projekt nawiązuje do historycznego, ceglanego budynku sąsiadującej, dawnej chłodni portowej. Szara cegła i szlachetny tynk o betonowej strukturze, w połączeniu z ciepłymi, drewnianymi elementami w loggiach i stolarce okiennej, nadadzą mu wyjątkowy charakter. Niepowtarzalny urok inwestycji można dostrzec też w jej detalach. Wysokiej jakości materiały zostaną tu wykorzystane do stworzenia samonośnych szklanych balustrad, rozrzeźbionego narożnika czy do wyróżnienia przestrzeni usługowej, która będzie charakteryzować się grafitową okładziną z klinkieru. Nowoczesne i funkcjonalne mieszkania oraz wewnętrzny dziedziniec, stanowiący przestrzeń do rekreacji, każdego dnia pozwolą Ci poczuć, że mieszkasz w przemyślanym miejscu tworzonym z pasją.
Mieszkanie znajduje się w inwestycji Portowa Zabłocie, w której znajduje się w sprzedaży jeszcze 5 podobnych nowych mieszkań.





