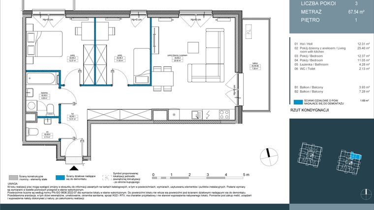
Mieszkanie na sprzedaż 3 pokoje o powierzchni 67,5 m² numer 65
Inwestycja:
Nordic Górka NarodowaDeweloper:
YIT Development Sp. z o.o.
Inwestycja:
Nordic Górka NarodowaDeweloper:
YIT Development Sp. z o.o.Kraków, Prądnik Biały, ul. Stefana Banacha
Kraków, Prądnik Biały, ul. Stefana Banacha
Termin oddania
Gotowe
Ilość pokoi
3 pokoje
Metraż
67,5 m²
Piętro
1 piętro
Kuchnia
otwarta kuchnia
Wysokość pomieszczeń
261 cm wysokości
Ilość poziomów
1 poziom
Oznaczenie oferty
65

Raport o deweloperze
Poznaj dewelopera bliżej! Pobierz raport, w którym znajdziesz kluczowe informacje o firmie, jej doświadczeniu, nagrodach oraz aktualnych i zrealizowanych inwestycjach.
Budynek i otoczenie
Miejsca postojowe | |
|---|---|
Komórki lokatorskie | dostępne |
Standard wykończenia | standard deweloperski |
Realizacja inwestycji | została oddana do użytkowania w 4 kw. 2025 roku |
Udogodnienia | plac zabaw, winda, rowerownia, instalacja fotowoltaiczna, wózkarnia, monitoring, videodomofon |
Przyroda | informacja u dewelopera |
Charakterystyka energetyczna nieruchomości | informacja u dewelopera |
Rezerwacja i finanse
Rodzaj własności | Odrębna własność z własnością gruntu |
|---|---|
Wysokość czynszu | informacja u dewelopera |
Warunki rezerwacji | Informacja u dewelopera |
Zabezpieczenie środków | Informacja u dewelopera |
Zdjęcia z budowy
Zobacz na jakim etapie budowy jest ta inwestycja
Lokalizacja inwestycji
Stacja kolejowa - Kraków Batowice - 2716 m
Przystanek Tramwajowy - 143 m
Przystanek Autobusowy - 87 m
Dojazd do centrum: pokaż
W pobliżu 1 km od tej inwestycji znajdują się:
14 kawiarni i restauracji, 19 sklepów, 20 obiektów sportowych, 5 placówek medycznych, 20 placówek edukacyjnych, 27 placów zabaw
Przeczytaj więcej o lokalizacji
Nordic Górka Narodowa doskonale wpisuje się w koncepcję 15 minutowego miasta. W okolicy znajdują się sklepy spożywcze, placówki edukacyjne, restauracje, placówki medyczne i apteki. Inwestycja powstanie w miejscu, które jest doskonale skomunikowane z innymi częściami Krakowa. Dzięki nowej pętli tramwajowej i autobusowej Górka Narodowa na najbliższy przystanek tramwajowy i autobusowy dotrzesz w 5 minut, a stamtąd tramwajem do centrum dojedziesz w około 25 minut. Autem dojazd do centrum miasta zajmie jedynie 15 minut. Dodatkowym udogodnieniem w okolicy jest parking Park&Ride Górka Narodowa. Osoby, które szukają możliwości wypoczynku w otoczeniu natury w 5 minut będą mogły dojechać autem do Parku Leśnego Witkowice.
Prądnik Biały to dzielnica IV Krakowa. Jest częścią miasta najbardziej wysuniętą na północ i zajmującą obszar 2341,87 ha. Powstała z połączenia 5 historycznych miejscowości. Zamieszkuje ją 69 135 osób. Jest jedną z tych części Krakowa, których zabudowa jest najbardziej zróżnicowana. Większość nieruchomości stanowią tu osiedla bloków mieszkalnych wzniesione w latach 60-tych, jednak uzupełnione są one blokami z wielkiej płyty powstałymi w latach 70-tych. Do tego dochodzą nowsze osiedla domów jednorodzinnych, a także domy szeregowe. Choć rozmaitość krajobrazu architektonicznego wskazuje na stały rozwój dzielnicy, to wciąż jeszcze można tu znaleźć elementy zabudowy typowo wiejskiej. W okolicy wiele jest miejsc rekreacyjnych idealnych do zabaw dla dzieci. Znajduje się tu 20 ogródków jordanowskich. W dzielnicy działa też 5 klubów sportowych. Dobrze rozbudowana jest infrastruktura oświatowa, o czym świadczy 10 funkcjonujących tu szkół i 4 zespoły szkolne. Zaletą dzielnicy jest też sieć połączeń komunikacyjnych z innymi częściami Krakowa. Działa tu łącznie 30 linii autobusowych i 5 linii tramwajowych. Przez Prądnik Biały przechodzi też droga krajowa nr 7 i droga wojewódzka nr 794.
Opis oferty
Nowe 3-pokojowe mieszkanie na sprzedaż o powierzchni 67,5 m² znajduje się w nowo wybudowanej inwestycji deweloperskiej Nordic Górka Narodowa na Prądniku Białym, ul. Stefana Banacha (4.4 km od centrum Krakowa).
Inwestycja została zrealizowana przez YIT Development Sp. z o.o.
Cała inwestycja składa się z 1 budynku, w którym łącznie znajduje się 98 nowych mieszkań.
Na sprzedaż pozostaje 12 ofert o powierzchni od 27 do 94 m².
W budynku jest 6 kondygnacji naziemnych oraz 1 kondygnacja podziemna.
Inwestycja Nordic Górka Narodowa została wybudowana i oddana do użytkowania w 4 kw. 2025 roku.
Nowe mieszkanie o oznaczeniu 65 znajduje się na 1 piętrze i jest 1-poziomowe. Pomieszczenia mają 261 centymetrów wysokości. W mieszkaniu znajdują się 3 pokoje.
Dla przyszłych mieszkańców Nordic Górka Narodowa deweloper przewidział miejsca postojowe podziemne, miejsca postojowe naziemne.
Dzięki temu przyszli właściciele nie będą musieli poszukiwać wolnej przestrzeni parkingowej. Dodatkowo, miejsce postojowe w garażu podziemnym zabezpiecza przed niekorzystnymi warunkami atmosferycznymi.
Opis Inwestycji
Nordic Górka Narodowa to inwestycja największego fińskiego dewelopera – YIT.
Fiński design naszych inwestycji to dla nas oczywistość. Wybieramy jakościowe materiały i stawiamy na stylowy wygląd, by Twoje miejsce do życia było jednocześnie solidne, funkcjonalne i estetyczne. Elewacja budynków zostanie wykonana z ceglanych płytek.
Wybierz mieszkanie o metrażu od 26,8 do 93,97 m2, które najlepiej odpowie na Twoje potrzeby. Lubisz widoki, od których trudno jest się oderwać? Pamiętaj, że dzięki lokalizacji na wzniesieniu z najwyższych pięter rozpościera się widok na panoramę Krakowa. Jeśli wyjątkowo cenisz sobie komfort, rozważ wybór mieszkania z możliwością instalacji sauny.
Mieszkanie znajduje się w inwestycji Nordic Górka Narodowa, w której znajduje się w sprzedaży jeszcze 5 podobnych nowych mieszkań.
YIT Development Sp. z o.o.
Strona internetowa inwestycjiAdres biura sprzedaży:
ul. Tadeusza Romanowicza 1/LU 3 30-702 KrakówGodziny otwarcia biura sprzedaży:
- Poniedziałek: 09:00 - 17:00
- Wtorek: 09:00 - 17:00
- Środa: 09:00 - 17:00
- Czwartek: 09:00 - 17:00
- Piątek: 09:00 - 17:00
- Sobota: 09:00 - 14:00





