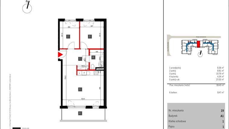
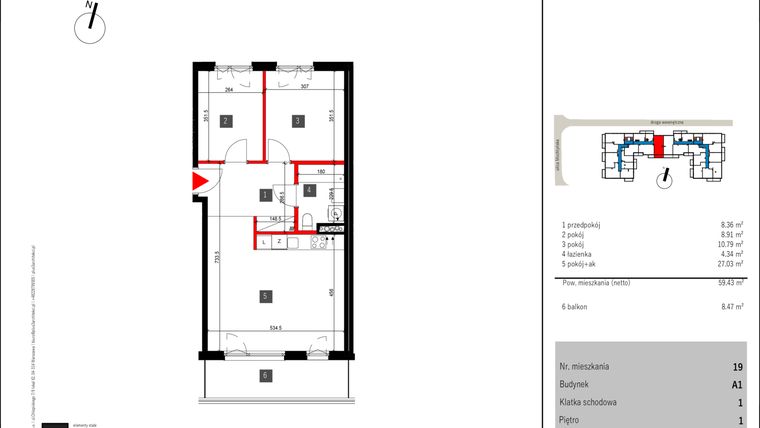
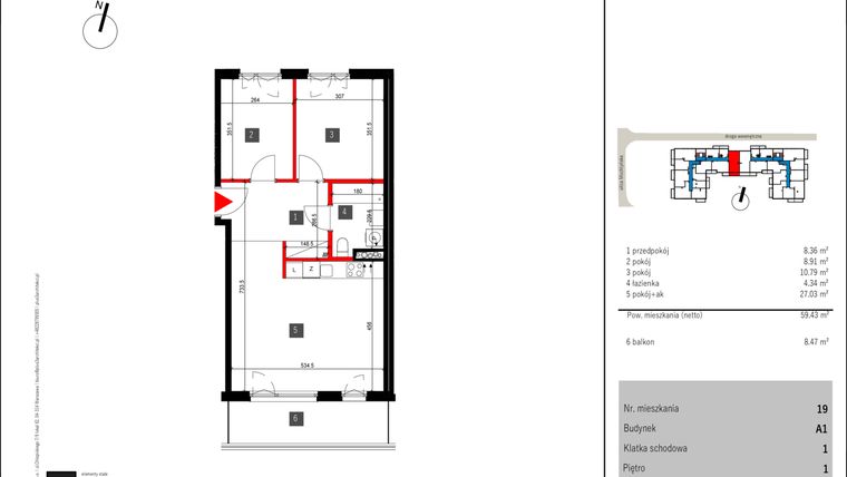
Mieszkanie na sprzedaż 3 pokoje o powierzchni 59,43 m² numer 19
Inwestycja:
Mochtyńska 56Deweloper:
W.W. Investment Sp. z o. o.
Inwestycja:
Mochtyńska 56Deweloper:
W.W. Investment Sp. z o. o.Warszawa, Białołęka, Kobiałka, ul. Mochtyńska 56
Warszawa, Białołęka, Kobiałka, ul. Mochtyńska 56
Termin oddania
Gotowe
Ilość pokoi
3 pokoje
Metraż
59,43 m²
Piętro
1 piętro
Kuchnia
otwarta kuchnia
Wysokość pomieszczeń
270 cm wysokości
Ilość poziomów
1 poziom
Oznaczenie oferty
19

Raport o deweloperze
Poznaj dewelopera bliżej! Pobierz raport, w którym znajdziesz kluczowe informacje o firmie, jej doświadczeniu, nagrodach oraz aktualnych i zrealizowanych inwestycjach.
Budynek i otoczenie
Miejsca postojowe | |
|---|---|
Komórki lokatorskie | dostępne (11): nieobowiązkowy zakup, od 2 do 4 m2 |
Standard wykończenia | standard deweloperski Ogrzewanie gazowe |
Realizacja inwestycji | rozpoczęcie budowy w 2 kw. 2023 roku, inwestycja została oddana do użytkowania w 4 kw. 2024 roku |
Udogodnienia | plac zabaw, monitoring, teren ogrodzony, usługi w budynku, winda, rowerownia |
Przyroda | w okolicy inwestycji znajduje się las |
Charakterystyka energetyczna nieruchomości |
|
Rezerwacja i finanse
Rodzaj własności | Odrębna własność z własnością gruntu |
|---|---|
Wysokość czynszu | informacja u dewelopera |
Warunki rezerwacji | Informacja u dewelopera |
Zabezpieczenie środków | Otwarty mieszkaniowy rachunek powierniczy |
Zdjęcia z budowy
Zobacz na jakim etapie budowy jest ta inwestycja
Lokalizacja inwestycji
Przystanek Autobusowy - 30 m
Dojazd do centrum: pokaż
W pobliżu 1 km od tej inwestycji znajdują się:
4 kawiarnie i restauracje, 8 sklepów, 5 obiektów sportowych, 18 placówek edukacyjnych, 8 placów zabaw
Przeczytaj więcej o lokalizacji
Białołęka to północna, druga pod względem wielkości powierzchni, dzielnica Warszawy odznaczająca się najszybszym rozwojem. Występują tutaj zarówno osiedla domów jednorodzinnych w północnej części obszaru, jak również wysoka, nowoczesna zabudowa mieszkaniowa. Dużą popularnością nadal cieszą się białołęckie osiedla z wielkiej płyty: Nowy Tarchomin, Nowodwory i Nowe Świdry. W strefie centralnej i południowej rozwija się infrastruktura handlowo-usługowa, więc obszar ten ma szansę stać się czymś więcej, niż kolejną warszawską "sypialnią". Białołęka jest jedną z najspokojniejszych dzielnic, a wypoczynek umożliwiają: kompleksy leśne, parki, rezerwaty przyrody i ścieżki rowerowe. Dogodnym sposobem dojazdu do centrum miasta są tutaj liczne linie autobusowe z pętlą Nowodwory, zaś do głównych arterii dzielnicy należą fragmenty dróg krajowych: ul. Modlińska i Trasa Toruńska, a także ul. Płochocińska.
Opis oferty
Nowe 3-pokojowe mieszkanie na sprzedaż o powierzchni 59,43 m² znajduje się w nowo budowanej inwestycji deweloperskiej Mochtyńska 56 na Kobiałce, ul. Mochtyńska 56 (13.7 km od centrum Warszawy).
Inwestycja jest realizowana przez W.W. Investment Sp. z o. o.
Cała inwestycja składa się z 1 budynku, w którym łącznie znajdują się 63 nowe mieszkania.
Na sprzedaż pozostaje 20 ofert o powierzchni od 37 do 60 m².
W budynku są 3 kondygnacje naziemne oraz 1 kondygnacja podziemna.
Inwestycja Mochtyńska 56 została wybudowana i oddana do użytkowania w 4 kw. 2024 roku.
Nowe mieszkanie o oznaczeniu 19 znajduje się na 1 piętrze i jest 1-poziomowe. Pomieszczenia mają 270 centymetrów wysokości. W mieszkaniu znajdują się 3 pokoje.
Do mieszkania przewidziano możliwość zakupu komórki lokatorskiej, którą można zagospodarować na spiżarnię, warsztat czy składzik.
Dla przyszłych mieszkańców Mochtyńska 56 deweloper przewidział miejsca postojowe podziemne, miejsca postojowe naziemne.
Dzięki temu przyszli właściciele nie będą musieli poszukiwać wolnej przestrzeni parkingowej. Dodatkowo, miejsce postojowe w garażu podziemnym zabezpiecza przed niekorzystnymi warunkami atmosferycznymi.
Mieszkanie znajduje się w inwestycji Mochtyńska 56, w której znajduje się w sprzedaży jeszcze 13 podobnych nowych mieszkań.
W.W. Investment Sp. z o. o.
Strona internetowa inwestycjiAdres biura sprzedaży:
ul. Piłsudskiego 176B , 05-091 Ząbki (na terenie giełdy Praskiej)Godziny otwarcia biura sprzedaży:
- Poniedziałek: 08:00 - 18:00
- Wtorek: 08:00 - 18:00
- Środa: 08:00 - 18:00
- Czwartek: 08:00 - 18:00
- Piątek: 08:00 - 18:00





