Mieszkanie na sprzedaż 2 pokoje o powierzchni 37,44 m² numer OP/A1/P1/09
Oferta archiwalna
Inwestycja:
Osiedle Pogodne etap IDeweloper:
WILLBUD
Inwestycja:
Osiedle Pogodne etap IDeweloper:
WILLBUDPuck, ul. Pogodna
Puck, ul. Pogodna
Nieruchomość została sprzedana
Zobacz pozostałe mieszkania w inwestycji Osiedle Pogodne etap I lub inne propozycje w Pucku
Termin oddania
Gotowe
Ilość pokoi
2 pokoje
Metraż
37,44 m²
Piętro
1 piętro
Powierzchnie dodatkowe
Balkon
Kuchnia
otwarta kuchnia
Wysokość pomieszczeń
od 260 do 280 cm wysokości
Ilość poziomów
1 poziom
Oznaczenie oferty
OP/A1/P1/09

Raport o deweloperze
Poznaj dewelopera bliżej! Pobierz raport, w którym znajdziesz kluczowe informacje o firmie, jej doświadczeniu, nagrodach oraz aktualnych i zrealizowanych inwestycjach.
Budynek i otoczenie
Miejsca postojowe | |
|---|---|
Standard wykończenia | standard deweloperski |
Realizacja inwestycji | rozpoczęcie budowy w 3 kw. 2023 roku, inwestycja została oddana do użytkowania w 2 kw. 2025 roku |
Udogodnienia | winda |
Przyroda | w okolicy inwestycji znajduje się morze |
Charakterystyka energetyczna nieruchomości |
|
Rezerwacja i finanse
Rodzaj własności | Odrębna własność z własnością gruntu |
|---|---|
Wysokość czynszu | informacja u dewelopera |
Warunki rezerwacji | Informacja u dewelopera |
Zabezpieczenie środków | Informacja u dewelopera |
Lokalizacja inwestycji
Stacja kolejowa - Puck - 803 m
Przystanek Autobusowy - 82 m
Dojazd do centrum Władysławowa: pokaż
W pobliżu 1 km od tej inwestycji znajdują się:
3 kawiarnie i restauracje, 13 sklepów, 3 obiekty sportowe, 1 placówka medyczna, 1 placówka edukacyjna, 3 place zabaw
Przeczytaj więcej o lokalizacji
Puck to miasto położone w województwie pomorskim, na Pobrzeżu Gdańskim - jednym z najbardziej zróżnicowanych obszarów polskiego wybrzeża. Co roku organizowane są na tym terenie Mistrzostwa Europy i Świata w różnego rodzaju klasach żeglarskich i windsurfingowych. W Pucku obowiązuje podział na osiem dzielnic: Centrum (Stare Miasto), Osiedle Derdowskiego, Grodzisko, Rozgard, Zamkowa, Osiedle Elizy Orzeszkowej, Osiedle Artystów, Osiedle Swarzewskie. Puck posiada niezwykle atrakcyjną architekturę oraz dużą liczbę zabytków. Do najciekawszych należą:. Muzeum Ziemi Puckiej, Rezerwat Przyrody Beka, Groty Mechowskie. Ponadto sezonowe festiwale na plaży czy rejsy wycieczkowe po Zatoce Puckiej przyciągają nawet kilka tysięcy turystów rocznie.
Opis oferty
Nowe 2-pokojowe mieszkanie na sprzedaż o powierzchni 37,44 m² znajduje się w nowo budowanej inwestycji deweloperskiej Osiedle Pogodne etap I w Pucku, ul. Pogodna (6.6 km od Władysławowa).
Inwestycja jest realizowana przez WILLBUD.
Cała inwestycja składa się z 2 budynków, w których łącznie znajduje się 48 nowych mieszkań.
Inwestycja jest już wyprzedana.
W budynkach są 4 kondygnacje naziemne oraz 1 kondygnacja podziemna.
Inwestycja Osiedle Pogodne etap I została wybudowana i oddana do użytkowania w 2 kw. 2025 roku.
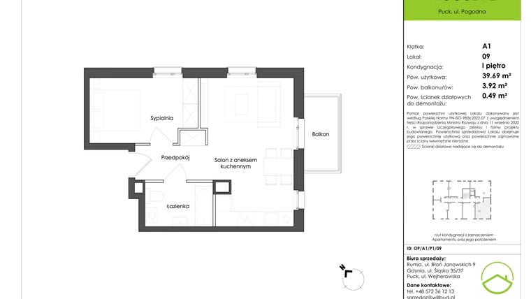
Nowe mieszkanie o oznaczeniu OP/A1/P1/09 znajduje się na 1 piętrze i jest 1-poziomowe. Pomieszczenia mają od 260 do 280 centymetrów wysokości. W mieszkaniu znajdują się 2 pokoje.
Dla przyszłych mieszkańców Osiedle Pogodne etap I deweloper przewidział miejsca postojowe podziemne, miejsca postojowe naziemne.
Dzięki temu przyszli właściciele nie będą musieli poszukiwać wolnej przestrzeni parkingowej. Dodatkowo, miejsce postojowe w garażu podziemnym zabezpiecza przed niekorzystnymi warunkami atmosferycznymi.
Opis Inwestycji
Pow. dodatkowe
Osiedle Pogodne - spełnij swoje marzenie i zamieszkaj nad morzem!
Osiedle Pogodne to inwestycja zaprojektowana w cichej i doskonale skomunikowanej części Pucka, zaledwie 2km od plaży. Kameralna 4-kondygnacyjna zabudowa została idealnie wkomponowana w strukturę malowniczej, nadmorskiej miejscowości.
Sprosta ona oczekiwaniom najbardziej wymagających mieszkańców, gwarantując im spokój i wewnętrzny balans pomiędzy nowoczesnym stylem życia a kojącą bliskością natury.
Projektanci Osiedla Pogodnego zadbali o każdy szczegół inwestycji. Nowoczesny design z elementami ponadczasowego klinkieru, wysoka jakość wykończeń, praktyczny i przemyślany rozkład pomieszczeń, a także nowoczesne i z dbałością zaprojektowane części wspólne były priorytetem podczas tworzenia inwestycji.
Realizacja Osiedla podzielona została na etapy. W pierwszym z nich, którego zakończenie planowane jest w II kwartale 2025 roku, powstaną dwa nowoczesne budynki połączone przestronną halą garażową. Kolejne etapy przewidują powstanie 8 budynków, w tym prywatnej części rekreacyjno- wypoczynkowej wyłącznie dla mieszkańców Osiedla.
Osiedle Pogodne posiada szeroką ofertę mieszkań oraz apartamentów usługowych o powierzchni od 28 do 75m2.
Mieszkania i apartamenty mieszczące się na najwyższych kondygnacjach Osiedla posiadają prywatne tarasy, z których rozpościera się widok na panoramę Pucka oraz Zatokę. W pozostałych lokalach znajdziemy przestronne balkony lub ogródki, które są alternatywą dla każdego, kto potrzebuje wytchnienia z dala od zgiełku miasta.
25 apartamentów inwestycyjnych, mieszczących się w pierwszym budynku Osiedla, jest gratką dla inwestorów szukających bezpiecznej lokaty i ochrony kapitału. Wysoka jakość inwestycji oraz doskonała lokalizacja są gwarancją satysfakcjonujących zysków z wynajmu. Ponadto przez 21 dni w roku apartament może stać się miejscem odpoczynku dla właściciela i jego bliskich.
Lokalizacja Inwestycji
Osiedle Pogodne powstanie w doskonale skomunikowanej części Pucka. Wystarczy niespełna 20 min spokojnego spaceru aby dotrzeć do linii brzegowej wzdłuż której rozpościera się widok na Zatokę Pucką.
Jest to też doskonała baza wypadowa na Półwysep lub do Trójmiasta. Od Władysławowa dzieli nas jedynie 10 min samochodem a od Gdyni niespełna 30 km.
To miejsce wywrze ogromne wrażenie na wszystkich osobach ceniących spokój i urok otaczającej przyrody. Idealnie odnajdą się tu fani pieszych i rowerowych wycieczek a także pasjonaci żeglarstwa i sportów wodnych.
Nowoczesna marina oddana do użytku w 2023 roku oraz port jachtowy, w którym od lat odbywają się światowej klasy regaty żeglarskie, co roku przyciągają turystów z całej Polski i ze Świata. Zaś fani kitesurfingu oraz windsurfingu docenią idealne warunki panujące w Zatoce Puckiej.
Mieszkanie znajduje się w inwestycji Osiedle Pogodne etap I.





