Mieszkanie na sprzedaż 1 pokój o powierzchni 30,9 m² numer FE1
Oferta archiwalna
Inwestycja:
Domy w ogrodzie Wólczyńska 300Deweloper:
WGE Development
Inwestycja:
Domy w ogrodzie Wólczyńska 300Deweloper:
WGE DevelopmentWarszawa, Bielany, Wólka Węglowa, ul. Wólczyńska 300
Warszawa, Bielany, Wólka Węglowa, ul. Wólczyńska 300
Nieruchomość została sprzedana
Zobacz pozostałe mieszkania w inwestycji Domy w ogrodzie Wólczyńska 300 lub inne propozycje na Wólce Węglowej
Najbliższe inwestycje
- Rokokowa Vita zaoferuje 38 komfortowych lokali, które powstaną w 16 kameralnych, 3-kondygnacyjnych willach miejskich o eleganckiej, dopracowanej architekturze. W ofercie znajdą się komfortowe przestrzenie o zróżnicowanych metrażach. Wybierać można spośród a 3-pokojowych mieszkań o powierzchni 63 m kw. z własnym ogrodem, dwupoziomowych apartamentów 4-pokojowych o powierzchniach od 92 do 123 m kw.
Rokokowa Vita
od 12 399 zł/m²
gotowe
Warszawa, Bielany, Huta,
ul. Rokokowa 132
4 pokoje, Metraż 92-93 m2
Termin oddania
Gotowe
Ilość pokoi
1 pokój
Metraż
30,9 m²
Piętro
Parter
Strona świata
wschód, zachód, północ
Powierzchnie dodatkowe
Taras
Kuchnia
otwarta kuchnia
Wysokość pomieszczeń
255 cm wysokości
Ilość poziomów
1 poziom
Oznaczenie oferty
FE1

Raport o deweloperze
Poznaj dewelopera bliżej! Pobierz raport, w którym znajdziesz kluczowe informacje o firmie, jej doświadczeniu, nagrodach oraz aktualnych i zrealizowanych inwestycjach.
Budynek i otoczenie
Miejsca postojowe | |
|---|---|
Standard wykończenia | standard deweloperski Instalacje woda z sieci miejskiej , elektryczność z sieci miejskiej, gaz z sieci miejskiej, kanalizacja własne szambo |
Realizacja inwestycji | rozpoczęcie budowy w 1 kw. 2019 roku, inwestycja została oddana do użytkowania w 4 kw. 2020 roku |
Udogodnienia | informacja u dewelopera |
Przyroda | informacja u dewelopera |
Charakterystyka energetyczna nieruchomości | informacja u dewelopera |
Rezerwacja i finanse
Rodzaj własności | Odrębna własność z własnością gruntu |
|---|---|
Wysokość czynszu | informacja u dewelopera |
Warunki rezerwacji | Informacja u dewelopera |
Zabezpieczenie środków | Informacja u dewelopera |
Lokalizacja inwestycji
Przeczytaj więcej o lokalizacji
Inwestycja Wólczyńska 300 to idealna lokalizacja dla osób prowadzących aktywny tryb życia jak również szukających ciszy i spokoju . Bliskość otuliny Puszczy Kampinoskiej to idealne miejsce na wypoczynek i regenerację dla Całej Rodziny. W połączeniu z dobrą komunikacją z Centrum Warszawy Wólczyńska 300 to doskonały adres do zamieszkania. Stacja metra Młociny oddalona jest ok 4 km. Komunikacja miejska autobusy linii 110, 250 oraz 181 przystanek autobusowy ok 100 m od inwestycji.
„Zielona dzielnica” Bielany usytuowana jest na lewobrzeżnych tarasach Wisły i pod względem liczby ludności plasuje się na piątym miejscu wśród innych rejonów stolicy. Jedynie połowę powierzchni zajmują zabudowania, zaś 28% stanowią obszary lasów, parków i rezerwatów, m.in.: Las Bielański, Las i Park Młociński czy Zespół Przyrodniczo-Krajobrazowy „Olszyna”. Bielany sąsiadują także z Kampinoskim Parkiem Narodowym. Pośród zielonego pejzażu przebiegają liczne szlaki rowerowe i turystyczne. Niewielka ilość wysokiej architektury występuje na osiedlach: Chomiczówka, Marymont-Ruda, Stare Bielany, Wawrzyszew. Niskie, willowe budownictwo dominuje na Młocinach i Radiowie, zaś na osiedlu Piaski powstają nowe budynki mieszkalne. Dzięki przystankom autobusowym i tramwajowym, a także czterem stacjom metra, zaciszne Bielany połączone są z centrum miasta. Główną arterią jest Trasa Armii Krajowej, a ośrodkiem przemysłowym – Huta Warszawa.
Opis oferty
Nowe 1-pokojowe mieszkanie na sprzedaż o powierzchni 30,9 m² znajduje się w nowo budowanej inwestycji deweloperskiej Domy w ogrodzie Wólczyńska 300 na Wólce Węglowej, ul. Wólczyńska 300 (11.6 km od centrum Warszawy).
Inwestycja jest realizowana przez WGE Development.
Cała inwestycja składa się z 8 budynków, w których łącznie znajduje się 16 nowych mieszkań.
Inwestycja jest już wyprzedana.
W budynkach są 3 kondygnacje naziemne. Budynek nie posiada kondygnacji podziemnych.
Inwestycja Domy w ogrodzie Wólczyńska 300 została wybudowana i oddana do użytkowania w 4 kw. 2020 roku.
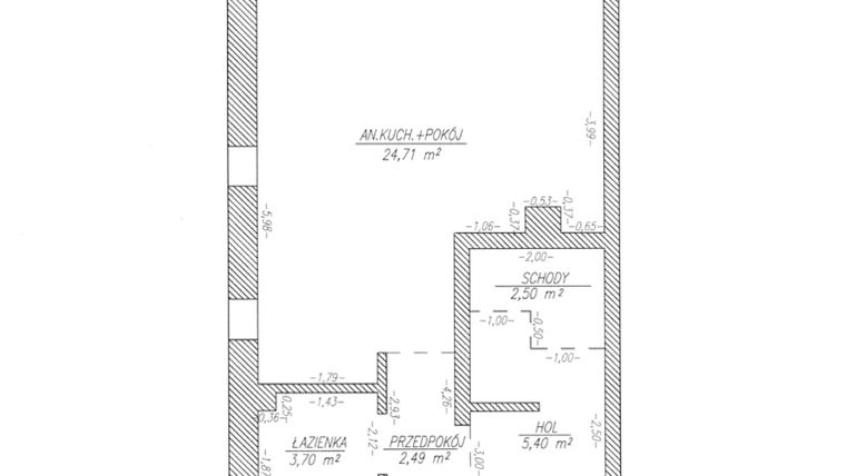
Nowe mieszkanie o oznaczeniu FE1 znajduje się na parterze i jest 1-poziomowe. Pomieszczenia mają 255 centymetrów wysokości. W mieszkaniu znajduje się 1 pokój.
Okna w mieszkaniu wychodzą na wschód, zachód, północ.
Północna ekspozycja to idealny wybór dla osób ceniących przytulne i klimatyczne wnętrza. Delikatne, rozproszone światło sprzyja harmonii i stwarza doskonałe warunki do relaksu lub pracy. Okna na północ zapewnią równomierne oświetlenie przez cały dzień.
Wschodnia orientacja zapewnia dostęp do łagodnego porannego światła, idealnego dla rozpoczęcia dnia pełnego energii. Wnętrza pozostają jasne, ale nieprzegrzane, co sprzyja utrzymaniu komfortowej temperatury. Przebywanie w pomieszczeniu z oknami na wschód inspiruje do działania i pozytywnie wpływa na poranny rytuał.
Zachodnia ekspozycja to gwarancja intensywnego popołudniowego światła, które nadaje wnętrzom przytulności i ciepła. Idealne dla miłośników słonecznych wieczorów, którzy pragną cieszyć się pięknymi zachodami słońca we własnym domu. Zachodnie światło podkreśla kolory i faktury w aranżacji wnętrz, tworząc atmosferę sprzyjającą relaksowi po długim dniu.
Dla przyszłych mieszkańców Domy w ogrodzie Wólczyńska 300 deweloper przewidział miejsca postojowe naziemne.
Dzięki temu przyszli właściciele nie będą musieli poszukiwać wolnej przestrzeni parkingowej.
Opis Inwestycji
Pow. dodatkowe
Inwestycja Domy w ogrodzie zlokalizowana na warszawskich Bielanach przy ul. Wólczyńskiej 300 F to osiedle 8 domów jednorodzinnych dwulokalowych każdy o powierzchni ok 123 m2 .
W każdym budynku wydzielono 2 mieszkania o powierzchni 30,90 m2 i 79,3 m2 z terenami zielonymi i przynależnym miejscem postojowym (2 miejsca postojowe dla mieszkań o powierzchni 79,3 m2)
Miejsca postojowe dodatkowo płatne w cenie 20.000,00 zł 2 miejsca do mieszkań 79,3m2 , 1 miejsce do mieszkań 30 m2)
Mieszkanie o powierzchni 30,90 m2 zlokalizowane jest na parterze budynku i posiada taras oraz 1 miejsce postojowe. Mieszkanie 30,90 m2 to kompaktowe jednopokojowe mieszkanie typu studio z możliwością wydzielenia strefy nocnej z dostępem do zewnętrznego wydzielonego tarasu .
Mieszkanie o powierzchni 79,3 m2 zlokalizowane jest na pierwszej oraz drugiej kondygnacji w budynku i posiada dwa balkony ,teren zielony na parterze oraz 2 miejsca postojowe. Mieszkanie składa się z klatki schodowej na parterze budynku , salonu z aneksem kuchennym z wyjściem na balkon oraz łazienki na I piętrze . Drugie piętro to 2 ustawne sypialnie z wyjściem na balkon każda , kotłownia oraz łazienka. Na II piętrze możliwość wydzielenia 3 sypialni na przestrzenia klatki schodowej . Dodatkowo do adaptacji powierzchnia strychu na całej powierzchni dachu do której zamontowano składane schody.
Wejście do mieszkań zaprojektowano poprzez wiatrołap i klatkę schodową .
Inwestycja zakończona !!!
Mieszkanie są oddawane do użytkowania w stanie deweloperskim:
*tynki zagruntowane *okna plastikowe w kolorze dąb z nawiewnikami*parapety z konglomeratu*dach pokryty dachówką ceramiczną*balkony okładziny z płytek*drzwi zewnętrzne*instalacje wod-kan (zbiornik bezodpływowy) *instalacja elektryczna z osprzętem*instalacja gazowa (piec gazowy ), instalacja ogrzewania podłogowego w kuchni i łazience* instalacje teletechniczna antena sat, internet na budynku * instalacja rozsączająca wody opadowe *parking z ekokostki
We współpracy z Leroy Merlin atrakcyjne rabaty na zakup materiałów wykończeniowych!
Mieszkanie znajduje się w inwestycji Domy w ogrodzie Wólczyńska 300.





