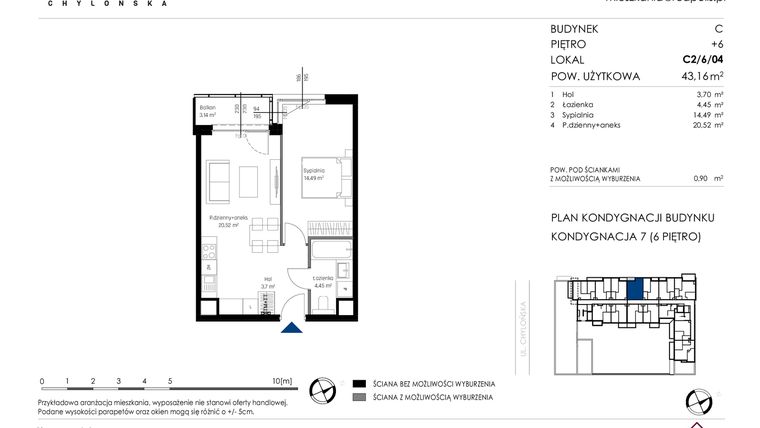
Mieszkanie na sprzedaż 2 pokoje o powierzchni 43,16 m² numer C2/6/04
Inwestycja:
Chylońska STO10 etap IIIDeweloper:
TPS Reapolis
Inwestycja:
Chylońska STO10 etap IIIDeweloper:
TPS ReapolisGdynia, Chylonia, ul. Chylońska 110
Gdynia, Chylonia, ul. Chylońska 110
Termin oddania
2 kw. 2026
Ilość pokoi
2 pokoje
Metraż
43,16 m²
Piętro
6 piętro
Powierzchnie dodatkowe
Balkon
Kuchnia
otwarta kuchnia
Wysokość pomieszczeń
od 260 do 280 cm wysokości
Ilość poziomów
1 poziom
Oznaczenie oferty
C2/6/04

Raport o deweloperze
Poznaj dewelopera bliżej! Pobierz raport, w którym znajdziesz kluczowe informacje o firmie, jej doświadczeniu, nagrodach oraz aktualnych i zrealizowanych inwestycjach.
Budynek i otoczenie
Miejsca postojowe | |
|---|---|
Standard wykończenia | standard deweloperski |
Realizacja inwestycji | rozpoczęcie budowy w 1 kw. 2024 roku, planowane oddanie do użytkowania w 2 kw. 2026 roku |
Udogodnienia | winda |
Przyroda | informacja u dewelopera |
Charakterystyka energetyczna nieruchomości | informacja u dewelopera |
Rezerwacja i finanse
Rodzaj własności | Odrębna własność z własnością gruntu |
|---|---|
Wysokość czynszu | informacja u dewelopera |
Warunki rezerwacji | Informacja u dewelopera |
Zabezpieczenie środków | Informacja u dewelopera |
Zdjęcia z budowy
Zobacz na jakim etapie budowy jest ta inwestycja
Lokalizacja inwestycji
Stacja kolejowa - Gdynia Chylonia - 177 m
Przystanek Autobusowy - 304 m
Dojazd do centrum: pokaż
W pobliżu 1 km od tej inwestycji znajdują się:
18 kawiarni i restauracji, 50 sklepów, 25 obiektów sportowych, 3 placówki medyczne, 18 placówek edukacyjnych, 25 placów zabaw
Przeczytaj więcej o lokalizacji
Chylonia to największa dzielnica Gdyni pod względem liczby ludności: mieszka tu około 25 300 osób. Zajmuje powierzchnię prawie 4 kilometrów kwadratowych. Gęstość zaludnienia należy do najwyższych w Gdyni i wynosi 6 381 osób na kilometr kwadratowy (według danych z końca 2011 roku). Zabudowę Chyloni stanowią przede wszystkim bloki i domy jednorodzinne. Największym terenem rekreacyjnym jest park Kiloński, w którym wyznaczono alejki spacerowe, ścieżki rowerowe, trzy boiska i place zabaw. Z dzielnicą sąsiadują lasy Trójmiejskiego Parku Krajobrazowego. Do największych zalet mieszkania na Chyloni należą dobrze rozwinięta infrastruktura usługowa i bliskość Śródmieścia.
Opis oferty
Nowe 2-pokojowe mieszkanie na sprzedaż o powierzchni 43,16 m² znajduje się w nowo budowanej inwestycji deweloperskiej Chylońska STO10 etap III na Chyloni, ul. Chylońska 110 (5.7 km od centrum Gdyni).
Inwestycja jest realizowana przez TPS Reapolis.
Cała inwestycja składa się z 1 budynku, w którym łącznie znajduje się 121 nowych mieszkań.
Na sprzedaż pozostaje 38 ofert o powierzchni od 39 do 60 m².
W budynku jest 8 kondygnacji naziemnych oraz 1 kondygnacja podziemna.
Inwestycja Chylońska STO10 etap III jest w trakcie budowy z planowanym na 2 kw. 2026 roku terminem oddania do użytkowania.
Nowe mieszkanie o oznaczeniu C2/6/04 znajduje się na 6 piętrze i jest 1-poziomowe. Pomieszczenia mają od 260 do 280 centymetrów wysokości. W mieszkaniu znajdują się 2 pokoje.
Dla przyszłych mieszkańców Chylońska STO10 etap III deweloper przewidział miejsca postojowe podziemne.
Dzięki temu przyszli właściciele nie będą musieli poszukiwać wolnej przestrzeni parkingowej. Dodatkowo, miejsce postojowe w garażu podziemnym zabezpiecza przed niekorzystnymi warunkami atmosferycznymi.
Opis Inwestycji
Pow. dodatkowe
Twój poranek na STO10 Chylońska
Budzi Cię słońce wpadające przez szczeliny w żaluzjach. Wstajesz, nakładasz dres i zbiegasz kilka pięter w dół. Nabierasz w płuca rześkie powietrze. Na crossficie przypominasz mięśniom ich naturalny stan, robisz szybką przebieżkę na ścieżce. “O! znowu lepszy czas niż wczoraj!” – kątem oka spoglądasz na stoper na nadgarstku. Wracasz biegiem na swoje piętro, przeskakując po dwa stopnie. Jeszcze tylko kanapka, a potem kawa na tarasie i czujesz, że jesteś gotowy na nadchodzący dzień…
licznik kalorii na schodach
zewnętrzny crossfit
Mieszkanie pokazowe | Osiedle STO10 Chylońska w Gdyni
Twoje popołudnie na STO10 Chylońska
Popołudniowe słońce łagodnym blaskiem wlewa się w ulicę niczym złota rzeka. Wysiadasz z kolejki i wchodzisz w ten blask. Wokół Ciebie szum aut, śmiech i nawoływania ludzi. Lubisz ten dźwięk – dźwięk miasta, tętniącego swoim rytmem. Jeszcze kilka kroków, domofon, winda i otwierasz drzwi swojego mieszkania. Stajesz przy oknie i oddychasz spokojem tego miejsca – Twojego miejsca. Lekki posiłek i możesz ustalać z przyjaciółmi co robicie i gdzie dziś się spotkacie: spacer po Bulwarze Nadmorskim, kawa w knajpce przy Świętojańskiej, czy Centrum Riviera – zakupy i kino? Jesteś tak blisko centrum. Centrum wydarzeń!
Osiedle STO10 Chylońska w Gdyni
Lobby w strefie wejścia | Osiedle STO10 Chylońska w Gdyni
Twój wieczór na STO10 Chylońska
Ulica wycisza się powoli. Ostatnie promienie słońca bawią się cieniami ludzi chodzących teraz jakby spokojniej i dostojniej, ważąc każdy niespieszny krok. Za chwilę ulicę spowije mrok, a zaraz po nim rozświetlą ją latarnie. W oknach domów po sąsiedzku zapalą się światła. Ulica powoli cichnie. Ze swojego tarasu obserwujesz tę kojącą wędrówkę miasta po odpoczynek Czujesz zmęczenie po pełnym wrażeń dniu i przyjemność na myśl o tym, że ty też za chwilę odpoczniesz. U siebie!
Na zakończenie
Chcesz sprawdzić, czy Ty i STO10 Chylońska pasujecie do siebie?
Chętnie porozmawiamy o Twoich preferencjach i potrzebach mieszkaniowych, pokażemy Ci Osiedle – razem na pewno wybierzemy optymalne dla Ciebie mieszkanie!
Dowiedz się też dlaczego Osiedle to idealne miejsce dla rodziny, dla aktywnych i dla wygodnych!
Mieszkanie znajduje się w inwestycji Chylońska STO10 etap III, w której znajduje się w sprzedaży jeszcze 29 podobnych nowych mieszkań.





