Mieszkanie na sprzedaż 3 pokoje o powierzchni 82,13 m² numer F.6.30
Oferta archiwalna
Inwestycja:
Bulvar Apartments - etap IDeweloper:
Sea Park Sp. z o. o.
Inwestycja:
Bulvar Apartments - etap IDeweloper:
Sea Park Sp. z o. o.Gdańsk, Przymorze Wielkie, ul. Czarny Dwór
Gdańsk, Przymorze Wielkie, ul. Czarny Dwór
Nieruchomość została sprzedana
Zobacz pozostałe mieszkania w inwestycji Bulvar Apartments - etap I lub inne propozycje na Przymorzu Wielkim
Najbliższe inwestycje
- W BIEGU ŻYCIA, ZNAJDŹ CHWILĘ DLA SIEBIE W naszej ofercie znajdują się lokale o zróżnicowanej powierzchni. Zaprojektowaliśmy 2- i 3-pokojowe mieszkania oraz przestronne apartamenty dla najbardziej wymagających. Jednak na szczególną uwagę zasługuje penthouse z bezpośrednim dostępem do windy oraz prywatnym tarasem na dachu, z którego 365 dni w roku będzie rozpościerać się zapierający dech w
Bulvar Apartments - etap II
od 16 466 zł/m²
2 kwartał 2028
Gdańsk, Przymorze Wielkie,
ul. Czarny Dwór
1-5 pokoi, Metraż 28-159 m2
- W środku Gdańska, na granicy Parku Millenium Gdańska, w dzielnicy Zaspa-Rozstaje, powstaje unikalna inwestycja Leszczyńskich 2. Unikalna ze względu na wyjątkową lokalizację, wysoki standard wykonania oraz niepowtarzalny widok na zieleń, mimo położenia osiedla tak blisko centrum miasta. Inwestycja składa się z 3 ekskluzywnych kameralnych pięciopiętrowych budynków, gdzie na przyszłych mieszkańców
Leszczyńskich 2
od 19 900 zł/m²
4 kwartał 2026
Gdańsk, Zaspa-Rozstaje,
ul. Leszczyńskich 2
1-4 pokoje, Metraż 26-108 m2
- Promocja wiosenna! Inwestycja Hallera 140 zlokalizowana jest w ulubionej przez gdańszczan dzielnicy Wrzeszcz w odległości zaledwie 1500 metrów od morza. Miejsce przepełnione pozytywną energią, zaprojektowane z myślą o osobach poszukujących apartamentu dla siebie oraz rodzin. Zadrzewiona okolica każdą porą roku nadaje osiedlu inny koloryt. Miejsce przyjazne jest rodzinom z dziećmi w różnym
Hallera 140
od 15 009 zł/m²
gotowe
Gdańsk, Wrzeszcz,
al. Gen. J. Hallera 140
1-4 pokoje, Metraż 32-78 m2
Termin oddania
Gotowe
Ilość pokoi
3 pokoje
Metraż
82,13 m²
Piętro
5 piętro
Strona świata
wschód, północ, południe
Powierzchnie dodatkowe
Loggia
Kuchnia
otwarta kuchnia
Wysokość pomieszczeń
od 260 do 280 cm wysokości
Ilość poziomów
1 poziom
Oznaczenie oferty
F.6.30

Raport o deweloperze
Poznaj dewelopera bliżej! Pobierz raport, w którym znajdziesz kluczowe informacje o firmie, jej doświadczeniu, nagrodach oraz aktualnych i zrealizowanych inwestycjach.
Budynek i otoczenie
Miejsca postojowe | |
|---|---|
Komórki lokatorskie | dostępne |
Standard wykończenia | standard deweloperski |
Realizacja inwestycji | rozpoczęcie budowy w 4 kw. 2020 roku, inwestycja została oddana do użytkowania w 1 kw. 2024 roku |
Udogodnienia | plac zabaw, sauna, usługi w budynku, winda, sala fitness, patio / dziedziniec |
Przyroda | w okolicy inwestycji znajduje się park, morze |
Charakterystyka energetyczna nieruchomości |
|
Rezerwacja i finanse
Rodzaj własności | Odrębna własność z własnością gruntu |
|---|---|
Wysokość czynszu | informacja u dewelopera |
Warunki rezerwacji | Informacja u dewelopera |
Zabezpieczenie środków | Informacja u dewelopera |
Lokalizacja inwestycji
Stacja kolejowa - Gdańsk Przymorze-Uniwersytet - 2189 m
Przystanek Tramwajowy - 1182 m
Przystanek Autobusowy - 138 m
Dojazd do centrum: pokaż
W pobliżu 1 km od tej inwestycji znajdują się:
23 kawiarnie i restauracje, 54 sklepy, 78 obiektów sportowych, 25 placówek medycznych, 34 placówki edukacyjne, 51 placów zabaw
Przeczytaj więcej o lokalizacji
SPOKÓJ, KOMFORT I SZUM DRZEW Wystarczy kilka kroków, by z tętniącego życiem miasta wejść do spokojnej oazy. Bulvar Apatments łączy niezliczone atuty miejskiego życia z odprężającą i kojącą naturą. Zaprojektowana infrastruktura oraz roślinność rozbudzają zmysły oraz przenoszą w strefę relaksu. Przestronne loggie i prywatne tarasy na dachu dają możliwość stworzenia swojej własnej przestrzeni wypełnionej delikatnym szumem morskich fal. Właściciele mieszkań na parterze również będą mogli obcować z naturą na co dzień, dzięki prywatnym ogródkom o powierzchni sięgającej nawet 150 m².
Przymorze Wielkie to niewielka (3 km kw) dzielnica zamieszkana przez 30 tys. mieszkańców. Tak dużą liczbę mieszkańców na małej powierzchni tłumaczy fakt, że na jej krajobraz składają się głównie duże blokowiska, np. „Falowiec”, czyli najdłuższy blok mieszkalny w Polsce. Jednak Przymorze Wielkie to nie tylko blokowiska, bo na północy rozciąga się Park im. R. Reagana a za nim plaża i Morze Bałtyckie. Naokoło mieszczą się dzielnice Brzeźno, Zaspa-Rozstaje a także Żabianka-Wejhera-Jelitkowo-Tysiąclecia. Za opiekę medyczną odpowiada centrum medyczne Endomed, położony 50 m dalej szpital Copernicus i Przychodnia Specjalistyczna Falck. W promieniu 3 km mieści się 5 uniwersytetów, w tym wydział Uniwersytetu Gdańskiego. Za rozrywkę i zakupy odpowiada galeria Alfa z kinem Helios a także Galeria Przymorze. Maksymalnie 1 km dzieli Przymorze od ważniejszych zabytków Gdańska, takich jak Westerplatte czy Starówka.
Opis oferty
Nowe 3-pokojowe mieszkanie na sprzedaż o powierzchni 82,13 m² znajduje się w nowo budowanej inwestycji deweloperskiej Bulvar Apartments - etap I na Przymorzu Wielkim, ul. Czarny Dwór (6.8 km od centrum Gdańska).
Inwestycja jest realizowana przez Sea Park Sp. z o. o.
Cała inwestycja składa się z 3 budynków, w których łącznie znajduje się 115 nowych mieszkań.
Na sprzedaż pozostaje 12 ofert o powierzchni od 27 do 112 m².
W budynkach jest 12 kondygnacji naziemnych oraz 2 kondygnacje podziemne.
Inwestycja Bulvar Apartments - etap I została wybudowana i oddana do użytkowania w 1 kw. 2024 roku.
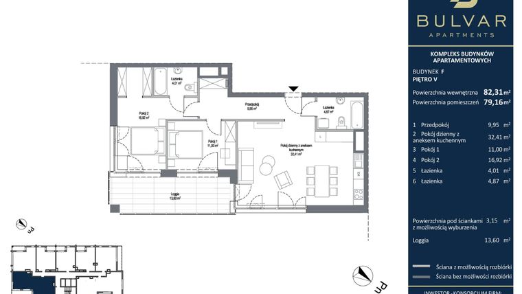
Nowe mieszkanie o oznaczeniu F.6.30 znajduje się na 5 piętrze i jest 1-poziomowe. Pomieszczenia mają od 260 do 280 centymetrów wysokości. W mieszkaniu znajdują się 3 pokoje.
Okna w mieszkaniu wychodzą na wschód, północ, południe.
Północna ekspozycja to idealny wybór dla osób ceniących przytulne i klimatyczne wnętrza. Delikatne, rozproszone światło sprzyja harmonii i stwarza doskonałe warunki do relaksu lub pracy. Okna na północ zapewnią równomierne oświetlenie przez cały dzień.
Okna wychodzące na południe gwarantują maksymalną ilość naturalnego światła, co czyni wnętrza jasnymi i ciepłymi. Dodatkowo południowa ekspozycja pomaga obniżyć koszty ogrzewania w zimie. Okna na południe są idealne dla osób pragnących cieszyć się jasnym otoczeniem, które sprzyja dobremu samopoczuciu oraz pozytywnej energii.
Wschodnia orientacja zapewnia dostęp do łagodnego porannego światła, idealnego dla rozpoczęcia dnia pełnego energii. Wnętrza pozostają jasne, ale nieprzegrzane, co sprzyja utrzymaniu komfortowej temperatury. Przebywanie w pomieszczeniu z oknami na wschód inspiruje do działania i pozytywnie wpływa na poranny rytuał.
Dla przyszłych mieszkańców Bulvar Apartments - etap I deweloper przewidział miejsca postojowe podziemne, miejsca postojowe naziemne.
Dzięki temu przyszli właściciele nie będą musieli poszukiwać wolnej przestrzeni parkingowej. Dodatkowo, miejsce postojowe w garażu podziemnym zabezpiecza przed niekorzystnymi warunkami atmosferycznymi.
Opis Inwestycji
Pow. dodatkowe
W BIEGU ŻYCIA, ZNAJDŹ CHWILĘ DLA SIEBIE
W naszej ofercie znajdują się lokale o zróżnicowanej powierzchni. Zaprojektowaliśmy 2- i 3-pokojowe mieszkania oraz przestronne apartamenty dla najbardziej wymagających.
Jednak na szczególną uwagę zasługuje penthouse z bezpośrednim dostępem do windy oraz prywatnym tarasem na dachu, z którego 365 dni w roku będzie rozpościerać się zapierający dech w piersiach nadmorski widok.
Bulvar to nie tylko komfortowe apartamenty, ale także szereg usług, możliwości i udogodnień, które zapewnią wygodne życie.
Mieszkańcy apartamentów będą mogli korzystać z w pełni wyposażonej siłowni, sauny suchej i mokrej oraz strefy rekreacyjnej ze stołem bilardowym, która też świetnie się sprawdzi jako przestrzeń do spotkań towarzyskich.
Mieszkanie znajduje się w inwestycji Bulvar Apartments - etap I, w której znajduje się w sprzedaży jeszcze 7 podobnych nowych mieszkań.





