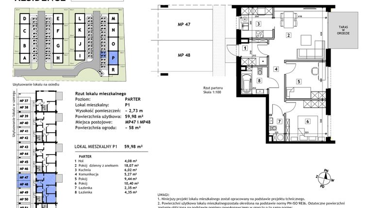
Mieszkanie na sprzedaż 3 pokoje o powierzchni 59,98 m² numer P1
Inwestycja:
Złotno ResidenceDeweloper:
Rorbach Development Sp. z o.o.
Inwestycja:
Złotno ResidenceDeweloper:
Rorbach Development Sp. z o.o.Łódź, Polesie, Złotno, ul. Zwiadowcza
Łódź, Polesie, Złotno, ul. Zwiadowcza
Termin oddania
2 kw. 2027
Ilość pokoi
3 pokoje
Metraż
59,98 m²
Piętro
Parter
Strona świata
wschód, zachód
Powierzchnie dodatkowe
Ogródek
Kuchnia
zamknięta kuchnia
Wysokość pomieszczeń
od 260 do 280 cm wysokości
Ilość poziomów
1 poziom
Oznaczenie oferty
P1

Raport o deweloperze
Poznaj dewelopera bliżej! Pobierz raport, w którym znajdziesz kluczowe informacje o firmie, jej doświadczeniu, nagrodach oraz aktualnych i zrealizowanych inwestycjach.
Budynek i otoczenie
Miejsca postojowe | |
|---|---|
Standard wykończenia | standard deweloperski |
Realizacja inwestycji | oddanie do użytkowania w 2 kw. 2027 roku |
Udogodnienia | internet, teren ogrodzony, przystosowane dla niepełnosprawnych |
Przyroda | w okolicy inwestycji znajduje się park |
Charakterystyka energetyczna nieruchomości | informacja u dewelopera |
Rezerwacja i finanse
Rodzaj własności | informacja u dewelopera |
|---|---|
Wysokość czynszu | informacja u dewelopera |
Warunki rezerwacji | Informacja u dewelopera |
Zabezpieczenie środków | Otwarty mieszkaniowy rachunek powierniczy |
Zdjęcia z budowy
Zobacz na jakim etapie budowy jest ta inwestycja
Lokalizacja inwestycji
Stacja kolejowa - Łódź Żabieniec - 1788 m
Przystanek Tramwajowy - 1731 m
Przystanek Autobusowy - 99 m
Dojazd do centrum: pokaż
W pobliżu 1 km od tej inwestycji znajdują się:
6 kawiarni i restauracji, 23 sklepy, 14 obiektów sportowych, 5 placówek medycznych, 11 placówek edukacyjnych, 26 placów zabaw
Przeczytaj więcej o lokalizacji
Łódź Polesie to dzielnica Łodzi o powierzchni 46 km. kw., w której mieszka ok. 140 tys. osób. W centralnym obszarze dzielnicy położony jest Park im. J. Piłsudskiego, dworzec Łódź Kaliska i droga E75. Dzielnicę okala od wschodu rzeka Ner, od południa port lotniczy im. W. Reymonta a od północy ul. Szczecińska i Rąbieńska. Polesie dzieli się na osiedla Złotno, Zdrowie-Mania, Karolew-Retkinia Wschód, Osiedla im. Montwiłła-Mireckiego, Retkinia Zachód, Lublinek, Stare Polesie i Koziny. O jej przyjaznym mieszkańcom charakterze świadczy położony tu największy łódzki park, Ogród Botaniczny, las Lublinek i 5 supermarketów i liczne punkty usługowe. Do tego dochodzi ciekawa oferta szkół wyższych z kampusem Politechniki Łódzkiej na czele.
Opis oferty
Nowe 3-pokojowe mieszkanie na sprzedaż o powierzchni 59,98 m² znajduje się w nowo wybudowanej inwestycji deweloperskiej Złotno Residence na Złotnie, ul. Zwiadowcza (5.3 km od centrum Łodzi).
Inwestycja została zrealizowana przez Rorbach Development Sp. z o.o.
Cała inwestycja składa się z 4 budynków, w których łącznie znajduje się 26 nowych mieszkań.
Na sprzedaż pozostaje 26 ofert o powierzchni od 60 do 95 m².
W budynkach są 2 kondygnacje naziemne. Budynek nie posiada kondygnacji podziemnych.
Inwestycja Złotno Residence jest w trakcie budowy z planowanym na 2 kw. 2027 roku terminem oddania do użytkowania.
Nowe mieszkanie o oznaczeniu P1 znajduje się na parterze i jest 1-poziomowe. Pomieszczenia mają od 260 do 280 centymetrów wysokości. W mieszkaniu znajdują się 3 pokoje.
Okna w mieszkaniu wychodzą na wschód, zachód.
Wschodnia orientacja zapewnia dostęp do łagodnego porannego światła, idealnego dla rozpoczęcia dnia pełnego energii. Wnętrza pozostają jasne, ale nieprzegrzane, co sprzyja utrzymaniu komfortowej temperatury. Przebywanie w pomieszczeniu z oknami na wschód inspiruje do działania i pozytywnie wpływa na poranny rytuał.
Zachodnia ekspozycja to gwarancja intensywnego popołudniowego światła, które nadaje wnętrzom przytulności i ciepła. Idealne dla miłośników słonecznych wieczorów, którzy pragną cieszyć się pięknymi zachodami słońca we własnym domu. Zachodnie światło podkreśla kolory i faktury w aranżacji wnętrz, tworząc atmosferę sprzyjającą relaksowi po długim dniu.
Dla przyszłych mieszkańców Złotno Residence deweloper przewidział miejsca postojowe naziemne.
Dzięki temu przyszli właściciele nie będą musieli poszukiwać wolnej przestrzeni parkingowej.
Opis Inwestycji
Tereny zielone
Pow. dodatkowe
ZŁOTNO RESIDENCE to nowoczesne, kameralne i starannie zaprojektowane osiedle zamknięte, które łączy komfort mieszkania w mieście z prywatnością i spokojem typowym dla niskiej zabudowy szeregowej.
Budynki cechują się harmonijną architekturą i przemyślanym układem mieszkań o powierzchni od 59 m2 do 94 m2, co sprawia, że każdy lokal oferuje funkcjonalną przestrzeń zarówno dla rodzin, jak i osób poszukujących większego komfortu.
Na parterze mieszkania mają do dyspozycji prywatne ogródki, które pozwolą na relaks na świeżym powietrzu, natomiast lokale na piętrach wyposażone są w zielone tarasy, idealne do wypoczynku lub spotkań z bliskimi.
Każde mieszkanie posiada dwa miejsca postojowe, a osiedle przewiduje również dodatkowe miejsca dla gości. Dzięki temu projekt łączy nowoczesne rozwiązania z funkcjonalnością i kameralnym charakterem, tworząc przyjazne środowisko do życia w sercu Łodzi.
DLACZEGO WARTO ZAMIESZKAĆ W ZŁOTNO RESIDENCE
• osiedle zamknięte,
• dobra lokalizacja ,
• mieszkania z ogródkami lub zielonymi tarasami,
• 2 miejsca postojowe do lokalu,
• duży wybór mieszkań od 59 m2 do 94 m2,
• dodatkowe miejsca dla gości.
LOKALIZACJA i otoczenie
Inwestycja Złotno Residence znajduje się na Nowym Złotnie przy ulicy Zwiadowczej w Łodzi. W okolicy znajdują się placówki medyczne, sklepy spożywcze, apteki, punkty usługowe oraz przedszkola i szkoły podstawowe, co zapewnia wygodę codziennego funkcjonowania.
Pełna infrastruktura w sąsiedztwie, taka jak:
* przystanek autobusowy MPK - 500,0 m (około 7 minut)
* dworzec PKP Łodź Kaliska - 5,5 km (około 12 minut)
* Lotnisko Łódź - 8,6 km (około 16 minut)
* dojazd do centrum Łodzi – 7,7 km (około 17 minut)
W okolicy znajduje się Park na Zdrowiu, który zapewnia mieszkańcom dostęp do licznych atrakcji relaksacyjnych i przyrodniczych.
Parku na Zdrowiu w Łodzi (znajduje się odległości około 5-6 km, co odpowiada ok 10-15 minut jazdy samochodem), to jeden z największych i najpiękniejszych parków w Polsce, rozciągający się na powierzchni 188,21 ha.
To miejsce, które łączy w sobie bogatą historię, różnorodność atrakcji oraz przestrzeń do aktywnego wypoczynku, czynią je idealnym do życia w pobliżu.
Co oferuje Park z Zdrowiu:
– Ogród Botaniczny.
– Olbrzymi plac zabaw .
– Strefy piknikowe - komfortowe miejsca na relaks i rodzinne spotkania.
– Ogród zoologiczni i Orientarium ZOO
– Aquapark Fala
– Parkowe alejki
Informacje dodatkowe:
• koszt miejsca postojowego 25 000 zł (do lokalu są przynależne 2 miejsca pod budynkiem)
• komórek lokatorskich- brak
Mieszkanie znajduje się w inwestycji Złotno Residence, w której znajduje się w sprzedaży jeszcze 17 podobnych nowych mieszkań.
Rorbach Development Sp. z o.o.
Strona internetowa inwestycjiAdres biura sprzedaży:
ul. Wieniawskiego 5, 93-564 ŁódźGodziny otwarcia biura sprzedaży:
- Poniedziałek: 08:00 - 16:00
- Wtorek: 08:00 - 16:00
- Środa: 08:00 - 16:00
- Czwartek: 08:00 - 16:00
- Piątek: 08:00 - 16:00





