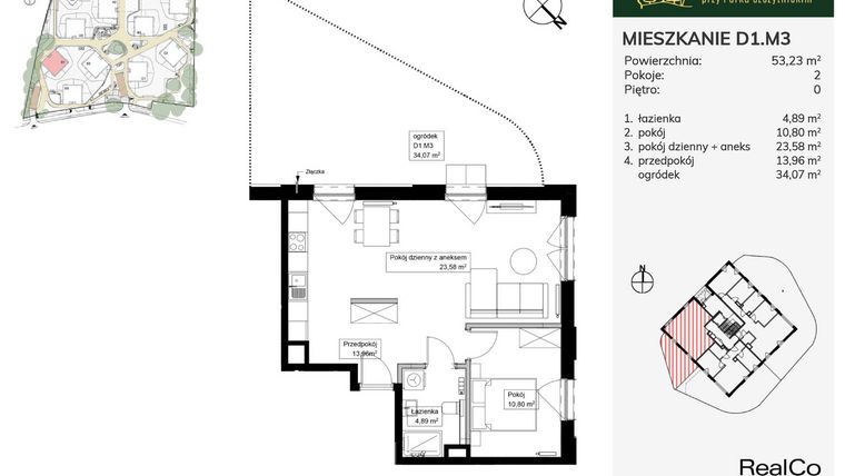
Mieszkanie na sprzedaż 2 pokoje o powierzchni 53,23 m² numer D1.M3
Rezerwacja
Inwestycja:
Apartamenty przy Parku Szczytnickim
Inwestycja:
Apartamenty przy Parku SzczytnickimWrocław, Śródmieście, Zalesie, al. Ludomira Różyckiego 1C
Wrocław, Śródmieście, Zalesie, al. Ludomira Różyckiego 1C
Termin oddania
Gotowe
Ilość pokoi
2 pokoje
Metraż
53,23 m²
Piętro
Parter
Strona świata
zachód, południe
Powierzchnie dodatkowe
Ogródek
Wysokość pomieszczeń
od 260 do 280 cm wysokości
Ilość poziomów
1 poziom
Oznaczenie oferty
D1.M3

Raport o deweloperze
Poznaj dewelopera bliżej! Pobierz raport, w którym znajdziesz kluczowe informacje o firmie, jej doświadczeniu, nagrodach oraz aktualnych i zrealizowanych inwestycjach.
Budynek i otoczenie
Miejsca postojowe | |
|---|---|
Komórki lokatorskie | dostępne |
Standard wykończenia | standard deweloperski podwyższony Ogrzewanie miejskie |
Realizacja inwestycji | rozpoczęcie budowy w 1 kw. 2023 roku, inwestycja została oddana do użytkowania w 4 kw. 2024 roku |
Udogodnienia | ochrona całodobowa, plac zabaw, monitoring, klimatyzacja, usługi w budynku, winda, rowerownia, sala fitness, miejsce do ładowania samochodów elektrycznych, paczkomat |
Przyroda | w okolicy inwestycji znajduje się park |
Charakterystyka energetyczna nieruchomości |
|
Rezerwacja i finanse
Rodzaj własności | Odrębna własność z własnością gruntu |
|---|---|
Wysokość czynszu | informacja u dewelopera |
Warunki rezerwacji | bezpłatna 3 dniowa |
Zabezpieczenie środków | Otwarty mieszkaniowy rachunek powierniczy |
Zdjęcia z budowy
Zobacz na jakim etapie budowy jest ta inwestycja
Lokalizacja inwestycji
Stacja kolejowa - Wrocław Kowale - 2597 m
Przystanek Tramwajowy - 278 m
Przystanek Autobusowy - 289 m
Dojazd do centrum: pokaż
W pobliżu 1 km od tej inwestycji znajdują się:
24 kawiarnie i restauracje, 17 sklepów, 30 obiektów sportowych, 15 placówek medycznych, 40 placówek edukacyjnych, 13 placów zabaw
Przeczytaj więcej o lokalizacji
Wrocławskie Śródmieście rozciąga się naprzeciw Starego Miasta na prawym brzegu Odry. Jest małą dzielnicą Wrocławia ponieważ zajmuje jedynie 16 km2, zamieszkuję ją ponad 100 tysięcy osób. Wschodnią część Śródmieścia stanowi Wielka Wyspa, na której znajdują się osiedla: Zacisze, Sępolno i Biskupin. To właśnie w Śródmieściu znajduje się najstarsza część miasta – Ostrów Tumski, w którym znajdziemy liczne zabytki nawet architektury gotyckiej. To właśnie na moście Tumskim zakochani od lat przyczepiają kłódki mające symbolizować ich uczucie. W Śródmieściu znajdują się liczne wydziały Uniwersytetu Wrocławskiego i Uniwersytetu Przyrodniczego. Śródmieście jest centralną częścią miasta w związku z czym bez problemu można poruszać się po niej pieszo. Z pozostałymi dzielnicami Wrocławia łączą Śródmieście połączenia autobusowe lub tramwajowe, i tak: Z Krzykami tramwaj nr 17, z Psim Polem autobus D, z Fabryczną autobusem 122, ze Starym Miastem tramwaj nr 10. Śródmieście przecina droga krajowa nr 98. W planach jest również uruchomienie Wrocławskiego Tramwaju Wodnego.
Opis oferty
Nowe 2-pokojowe mieszkanie na sprzedaż o powierzchni 53,23 m² znajduje się w nowo budowanej inwestycji deweloperskiej Apartamenty przy Parku Szczytnickim na Zalesiu, al. Ludomira Różyckiego 1C (2.8 km od centrum Wrocławia).
Inwestycja jest realizowana przez RealCo Property Investment and Development Sp. z o.o.
Cała inwestycja składa się z 10 budynków, w których łącznie znajdują się 133 nowe mieszkania.
Na sprzedaż pozostaje 12 ofert o powierzchni od 53 do 109 m².
W budynkach są 4 kondygnacje naziemne oraz 1 kondygnacja podziemna.
Inwestycja Apartamenty przy Parku Szczytnickim została wybudowana i oddana do użytkowania w 4 kw. 2024 roku.
Nowe mieszkanie o oznaczeniu D1.M3 znajduje się na parterze i jest 1-poziomowe. Pomieszczenia mają od 260 do 280 centymetrów wysokości. W mieszkaniu znajdują się 2 pokoje.
Okna w mieszkaniu wychodzą na zachód, południe.
Okna wychodzące na południe gwarantują maksymalną ilość naturalnego światła, co czyni wnętrza jasnymi i ciepłymi. Dodatkowo południowa ekspozycja pomaga obniżyć koszty ogrzewania w zimie. Okna na południe są idealne dla osób pragnących cieszyć się jasnym otoczeniem, które sprzyja dobremu samopoczuciu oraz pozytywnej energii.
Zachodnia ekspozycja to gwarancja intensywnego popołudniowego światła, które nadaje wnętrzom przytulności i ciepła. Idealne dla miłośników słonecznych wieczorów, którzy pragną cieszyć się pięknymi zachodami słońca we własnym domu. Zachodnie światło podkreśla kolory i faktury w aranżacji wnętrz, tworząc atmosferę sprzyjającą relaksowi po długim dniu.
Dla przyszłych mieszkańców Apartamenty przy Parku Szczytnickim deweloper przewidział miejsca postojowe podziemne.
Dzięki temu przyszli właściciele nie będą musieli poszukiwać wolnej przestrzeni parkingowej. Dodatkowo, miejsce postojowe w garażu podziemnym zabezpiecza przed niekorzystnymi warunkami atmosferycznymi.
Opis Inwestycji
Tereny zielone
Pow. dodatkowe
Zamieszkaj w gotowych Apartamentach przy Parku Szczytnickim. To nowa inwestycja we Wrocławiu położona w atrakcyjnej okolicy Parku Szczytnickiego, która w grudniu 2024 roku otrzymała pozwolenie na użytkowanie.
Do oferty trafiły 133 funkcjonalne mieszkania o zróżnicowanej powierzchni od 41 m2 do 126 m2. W ramach inwestycji powstało 10 budynków o niskiej zabudowie wyróżniających się nowoczesną architekturą – a klucze do nich możesz odebrać już dziś!
Mieszkania zlokalizowane na parterze posiadają duże ogródki, a znajdujące się na wyższych piętrach balkony. W ofercie znalazły się również apartamenty z balkonami oraz przestronnymi tarasami na dachu.
Apartamenty przy Parku Szczytnickim są gotowe do zamieszkania. To wymarzone miejsce, dla ceniących wysoką jakość i wygodę, a także poszukujących atrakcyjnego i bezpiecznego miejsca dla swojej rodziny.
Stylowa i nowoczesna architektura, to efekt starannej pracy nad projektem, podczas której zadbano, aby każdy element tworzył spójną całość. Ekskluzywny charakter podkreślą wyselekcjonowane materiały, a jakość idzie w parze z najnowszymi trendami. Elewacje budynków wykonano z wysokiej jakości płytek klinkierowych w ciepłym odcieniu piaskowca. Połączenie wielkoformatowych spieków inspirowanych czarnym marmurem Calacatta i mosiężnych elementów wystroju części wspólnych, jest wyrazem elegancji i unikalności inwestycji. Odbierz klucze i zamieszkaj już dziś!
Mieszkanie znajduje się w inwestycji Apartamenty przy Parku Szczytnickim.
RealCo Property Investment and Development Sp. z o.o.
Adres biura sprzedaży:
al. Ludomira Różyckiego 1C 51-608 WrocławGodziny otwarcia biura sprzedaży:
- Poniedziałek: 09:30 - 17:30
- Wtorek: 09:30 - 17:30
- Środa: 09:30 - 17:30
- Czwartek: 09:30 - 17:30
- Piątek: 09:30 - 17:30





