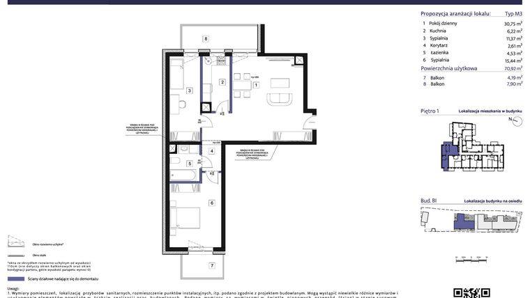
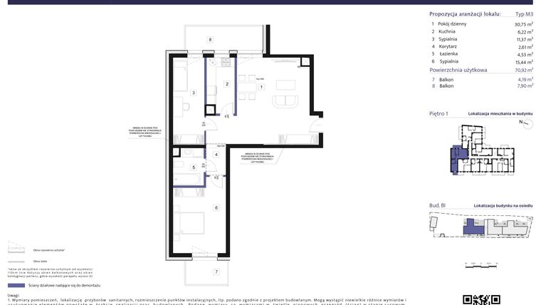
Mieszkanie na sprzedaż 3 pokoje o powierzchni 70,92 m² numer B1 – M1.6
Promocja
Inwestycja:
PrimacasaDeweloper:
HLBS Development Sp. z o.o.
Inwestycja:
PrimacasaDeweloper:
HLBS Development Sp. z o.o.Piaseczno, ul. Jana Pawła II 11
Piaseczno, ul. Jana Pawła II 11
Termin oddania
Gotowe
Ilość pokoi
3 pokoje
Metraż
70,92 m²
Piętro
1 piętro
Powierzchnie dodatkowe
Balkon
Wysokość pomieszczeń
od 260 do 280 cm wysokości
Ilość poziomów
1 poziom
Oznaczenie oferty
B1 – M1.6

Raport o deweloperze
Poznaj dewelopera bliżej! Pobierz raport, w którym znajdziesz kluczowe informacje o firmie, jej doświadczeniu, nagrodach oraz aktualnych i zrealizowanych inwestycjach.
Budynek i otoczenie
Miejsca postojowe | |
|---|---|
Komórki lokatorskie | dostępne |
Standard wykończenia | standard deweloperski |
Realizacja inwestycji | rozpoczęcie budowy w 4 kw. 2023 roku, inwestycja została oddana do użytkowania w 2 kw. 2026 roku |
Udogodnienia | winda, usługi w budynku |
Przyroda | w okolicy inwestycji znajduje się park |
Charakterystyka energetyczna nieruchomości |
|
Rezerwacja i finanse
Rodzaj własności | Odrębna własność z własnością gruntu |
|---|---|
Wysokość czynszu | informacja u dewelopera |
Warunki rezerwacji | informacja u dewelopera |
Zabezpieczenie środków | Informacja u dewelopera |
Zdjęcia z budowy
Zobacz na jakim etapie budowy jest ta inwestycja
Lokalizacja inwestycji
Stacja kolejowa - Piaseczno Miasto Wąskotorowe - 428 m
Przystanek Autobusowy - 118 m
Dojazd do centrum Warszawy: pokaż
W pobliżu 1 km od tej inwestycji znajdują się:
41 kawiarni i restauracji, 53 sklepy, 32 obiekty sportowe, 16 placówek medycznych, 49 placówek edukacyjnych, 22 place zabaw
Przeczytaj więcej o lokalizacji
Piaseczno to miasto aglomeracji warszawskiej położone w odległości 17 km od centrum stolicy. Liczba ludności Piaseczna ciągle wzrasta ze względu na dogodność lokalizacji oraz dynamicznie rozwijające się budownictwo mieszkaniowe i biznesowo-usługowe. Niską zabudowę mieszkalną tworzą domy jednorodzinne lub wielorodzinne oraz wille. Do terenów miejskiej zieleni należą: Park Miejski i Skwer im. Stefana Kisielewskiego, zaś do zabytków ─ Ratusz Miejski i Dworek Poniatówka. Miasto stanowi siedzibę wielu firm, np.: VIMEX, Creotech Instruments czy Olmar. Zlokalizowane są tu liczne obiekty sportowo-rekreacyjne m.in.: pływalnie, korty tenisowe, skate park, hale paintballowe i ścianka wspinaczkowa.
Opis oferty
Nowe 3-pokojowe mieszkanie na sprzedaż o powierzchni 70,92 m² znajduje się w nowo budowanej inwestycji deweloperskiej Primacasa w Piasecznie, ul. Jana Pawła II 11 (3.5 km od Warszawy).
Inwestycja jest realizowana przez HLBS Development Sp. z o.o.
Cała inwestycja składa się z 3 budynków, w których łącznie znajduje się 100 nowych mieszkań.
Na sprzedaż pozostaje 18 ofert o powierzchni od 29 do 76 m².
W budynkach są 4 kondygnacje naziemne oraz 1 kondygnacja podziemna.
Inwestycja Primacasa została wybudowana i oddana do użytkowania w 2 kw. 2026 roku.
Nowe mieszkanie o oznaczeniu B1 – M1.6 znajduje się na 1 piętrze i jest 1-poziomowe. Pomieszczenia mają od 260 do 280 centymetrów wysokości. W mieszkaniu znajdują się 3 pokoje.
Dla przyszłych mieszkańców Primacasa deweloper przewidział miejsca postojowe podziemne.
Dzięki temu przyszli właściciele nie będą musieli poszukiwać wolnej przestrzeni parkingowej. Dodatkowo, miejsce postojowe w garażu podziemnym zabezpiecza przed niekorzystnymi warunkami atmosferycznymi.
Opis Inwestycji
Tereny zielone
Pow. dodatkowe
Inwestycja Primacasa to nowoczesny apartamentowiec o wyjątkowym charakterze. Dzięki dogodnej lokalizacji nieopodal kluczowej infrastruktury gwarantuje wysoki standard życia oraz szybki dojazd do centrum Warszawy. Nowoczesny budynek zaprojektowany został z myślą o komforcie każdego mieszkańca. Apartamenty są starannie zaplanowane, przestronne i dobrze doświetlone. W budynku znajdują się również miejsca parkingowe i lokale usługowe na parterze.
Wygodny dojazd na trasie Piaseczno-Warszawa
Komfortowy dojazd komunikacją miejską do ścisłego centrum Warszawy gwarantuje wysoką jakość życia wszystkim pracujących stacjonarnie w stolicy. Na trasie Warszawa-Piaseczno kursują autobusy miejskie, jak również wielu prywatnych przewoźników. Dostępna jest także bezpośrednia linia kolejowa S4 dojeżdżająca do stacji Warszawa Zachodnia.
Miasto 15-minutowe
Koncepcja miasta 15-minutowego zakłada, że mieszkańcy mają dostęp do wszystkich potrzebnych im usług i atrakcji w obrębie 15 minutowego spaceru lub jazdy na rowerze. Przestrzeń publiczna powinna być projektowana w taki sposób, aby była przyjazna dla pieszych i rowerzystów, a transport publiczny skoncentrowany jest na częstych i niezawodnych połączeniach. Celem tej koncepcji jest poprawa jakości życia mieszkańców poprzez redukcję czasu spędzonego w transporcie oraz zmniejszenie emisji szkodliwych substancji do atmosfery. Piaseczno doskonale wpisuje się w te założenia, a infrastruktura miasta, w tym zlokalizowana w centrum ul. Jana Pawła II stale się rozwija oferując mieszkańcom niezwykle dogodne rozwiązania!
Sprawdź standard wykończenia oraz kluczowe atuty inwestycji
Otoczona zielenią inwestycja w centrum Piaseczna oferuje mieszkańcom komfortową, przemyślaną i starannie zaprojektowaną przestrzeń do życia. Dostępne są mieszkania w układach od 1 do 4 pokoi, których metraż wynosi od 28 do 77 mkw. W budynku zaplanowane zostały także lokale usługowe na parterze oraz lokale biurowe na I piętrze. Do każdego mieszkania przynależy miejsce postojowe w parkingu podziemnym.
Mieszkanie znajduje się w inwestycji Primacasa, w której znajdują się w sprzedaży jeszcze 3 podobne nowe mieszkania.
HLBS Development Sp. z o.o.
Strona internetowa inwestycjiAdres biura sprzedaży:
ul. Jana Pawła II 11, Piaseczno




