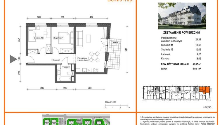
Mieszkanie na sprzedaż 3 pokoje o powierzchni 58,67 m² numer B3/M01/2P
Inwestycja:
Zielony Brochów 7Deweloper:
Platforma Mieszkaniowa
Inwestycja:
Zielony Brochów 7Deweloper:
Platforma MieszkaniowaWrocław, Krzyki, Brochów, ul. Indonezyjska
Wrocław, Krzyki, Brochów, ul. Indonezyjska
Termin oddania
Gotowe
Ilość pokoi
3 pokoje
Metraż
58,67 m²
Piętro
2 piętro
Powierzchnie dodatkowe
Balkon
Kuchnia
otwarta kuchnia
Wysokość pomieszczeń
od 260 do 280 cm wysokości
Ilość poziomów
1 poziom
Oznaczenie oferty
B3/M01/2P

Raport o deweloperze
Poznaj dewelopera bliżej! Pobierz raport, w którym znajdziesz kluczowe informacje o firmie, jej doświadczeniu, nagrodach oraz aktualnych i zrealizowanych inwestycjach.
Budynek i otoczenie
Miejsca postojowe | |
|---|---|
Standard wykończenia | standard deweloperski |
Realizacja inwestycji | rozpoczęcie budowy w 1 kw. 2024 roku, inwestycja została oddana do użytkowania w 4 kw. 2025 roku |
Udogodnienia | winda |
Przyroda | informacja u dewelopera |
Charakterystyka energetyczna nieruchomości |
|
Rezerwacja i finanse
Rodzaj własności | Odrębna własność z własnością gruntu |
|---|---|
Wysokość czynszu | informacja u dewelopera |
Warunki rezerwacji | Informacja u dewelopera |
Zabezpieczenie środków | Informacja u dewelopera |
Zdjęcia z budowy
Zobacz na jakim etapie budowy jest ta inwestycja
Lokalizacja inwestycji
Stacja kolejowa - Iwiny - 1336 m
Przystanek Tramwajowy - 2933 m
Przystanek Autobusowy - 355 m
Dojazd do centrum: pokaż
W pobliżu 1 km od tej inwestycji znajdują się:
1 kawiarnia lub restauracja, 4 sklepy, 5 obiektów sportowych, 1 placówka medyczna, 3 placówki edukacyjne, 7 placów zabaw
Przeczytaj więcej o lokalizacji
Krzyki to dawna dzielnica Wrocławia, znajduje się w południowej części miasta. Zajmuje ponad 54 km2 a na jej terenie mieszka prawie 170 tysięcy osób. Na zabudowę dzielnicy składają się zarówno duże osiedla mieszkaniowe, jak i domy jednorodzinne. Został tu wybudowany także najwyższy budynek w Polsce – Sky Tower. Znajduje się tu dużo zabytkowych willi i inne zabytki takie jak Wieża Ciśnień czy Stary Cmentarz Żydowski. Na Krzykach znajduje się Wrocławski Uniwersytet Ekonomiczny a także ponad 100 szkół elementarnych. Największym centrum handlowym jest Wroclavia o powierzchni 71 000 m2. W południowej części Krzyków znajduje się tor wyścigów konnych Partynice oraz Wrocławski Tatr Pantomimy. Dzielnica posiada połączenia autobusowe i tramwajowe – znajduje się tu 5 pętli tramwajowych. Dwie główne ulice Krzyków, które łączą je z centrum miasta to Powstańców Śląskich oraz Ślężna. Znajduje się tu także Wrocławski Dworzec Główny.
Opis oferty
Nowe 3-pokojowe mieszkanie na sprzedaż o powierzchni 58,67 m² znajduje się w nowo budowanej inwestycji deweloperskiej Zielony Brochów 7 na Brochowie, ul. Indonezyjska (7.2 km od centrum Wrocławia).
Sprzedaż prowadzi Platforma Mieszkaniowa.
Cała inwestycja składa się z 2 budynków, w których łącznie znajduje się 30 nowych mieszkań.
Na sprzedaż pozostaje 9 ofert o powierzchni od 57 do 70 m².
W budynkach są 3 kondygnacje naziemne. Budynek nie posiada kondygnacji podziemnych.
Inwestycja Zielony Brochów 7 została wybudowana i oddana do użytkowania w 4 kw. 2025 roku.
Nowe mieszkanie o oznaczeniu B3/M01/2P znajduje się na 2 piętrze i jest 1-poziomowe. Pomieszczenia mają od 260 do 280 centymetrów wysokości. W mieszkaniu znajdują się 3 pokoje.
Dla przyszłych mieszkańców Zielony Brochów 7 deweloper przewidział miejsca postojowe podziemne, miejsca postojowe naziemne.
Dzięki temu przyszli właściciele nie będą musieli poszukiwać wolnej przestrzeni parkingowej. Dodatkowo, miejsce postojowe w garażu podziemnym zabezpiecza przed niekorzystnymi warunkami atmosferycznymi.
Opis Inwestycji
Okazyjna cena
Pow. dodatkowe
Nowoczesna architektura, szeroka oferta mieszkań
Inwestycja Zielony Brochów 7 to trzyetapowe osiedle, które w pierwszym etapie zakłada budowę dwóch kameralnych budynków – dwukondygnacyjnego i trzykondygnacyjnego. Powstanie w nich łącznie 30 lokali o metrażach od 33 do 119 mkw. Mieszkania usytuowane na parterze będą miały dostęp do tarasów i ogródków, natomiast na wyższych kondygnacjach znajdą się balkony. Przewidziano również miejsca dla osób zmotoryzowanych zlokalizowane zarówno w garażu podziemnym, jak i na terenie osiedla.
Nowoczesna architektura, wysoka jakość materiałów
Cichobieżne windy
Naziemne i podziemne miejsca postojowe
Mieszkanie znajduje się w inwestycji Zielony Brochów 7, w której znajduje się w sprzedaży jeszcze 7 podobnych nowych mieszkań.





