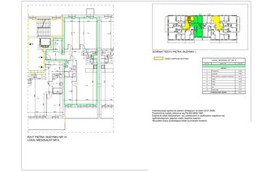
Mieszkanie na sprzedaż 4 pokoje o powierzchni 82,37 m² numer A06
Inwestycja:
Lwowska 14Deweloper:
Platforma Mieszkaniowa
Inwestycja:
Lwowska 14Deweloper:
Platforma MieszkaniowaChorzów, ul. Lwowska 14
Chorzów, ul. Lwowska 14
Termin oddania
Gotowe
Ilość pokoi
4 pokoje
Metraż
82,37 m²
Piętro
1 piętro
Strona świata
północ, południe
Kuchnia
otwarta kuchnia
Wysokość pomieszczeń
od 260 do 280 cm wysokości
Ilość poziomów
1 poziom
Oznaczenie oferty
A06

Raport o deweloperze
Poznaj dewelopera bliżej! Pobierz raport, w którym znajdziesz kluczowe informacje o firmie, jej doświadczeniu, nagrodach oraz aktualnych i zrealizowanych inwestycjach.
Budynek i otoczenie
Miejsca postojowe | |
|---|---|
Standard wykończenia | standard deweloperski Ogrzewanie podłogowe |
Realizacja inwestycji | rozpoczęcie budowy w 4 kw. 2023 roku, inwestycja została oddana do użytkowania w 4 kw. 2025 roku |
Udogodnienia | winda |
Przyroda | informacja u dewelopera |
Charakterystyka energetyczna nieruchomości |
|
Rezerwacja i finanse
Rodzaj własności | Odrębna własność z własnością gruntu |
|---|---|
Wysokość czynszu | informacja u dewelopera |
Warunki rezerwacji | Informacja u dewelopera |
Zabezpieczenie środków | Informacja u dewelopera |
Zdjęcia z budowy
Zobacz na jakim etapie budowy jest ta inwestycja
Lokalizacja inwestycji
Stacja kolejowa - Chorzów Miasto - 957 m
Przystanek Tramwajowy - 277 m
Przystanek Autobusowy - 284 m
Dojazd do centrum: pokaż
W pobliżu 1 km od tej inwestycji znajdują się:
51 kawiarni i restauracji, 41 sklepów, 45 obiektów sportowych, 32 placówki medyczne, 33 placówki edukacyjne, 28 placów zabaw
Przeczytaj więcej o lokalizacji
Chorzów to miasto leżące w woj. śląskim, na Wyżynie Śląskiej, nad rzeką Rawą. Sąsiaduje z 6 innymi miastami należącymi do Górnośląskiego Okręgu Przemysłowego. Jego powierzchnia wynosi 33,5 km2, a liczba mieszkańców to ok. 105 000. Krajobraz miasta jest typowy dla Śląska, a huty i zakłady przemysłowe przeplatają się z osiedlami mieszkaniowymi wybudowanymi z myślą o pracownikach. Centrum miasta wyróżnia się bardzo zwartą zabudową, licznymi kamienicami i budynkami najważniejszych instytucji. Chorzów II to głównie bloki i słynne, śląskie familoki, Batory łączy w sobie zabudowę industrialną z budynkami mieszkalnymi, a na Chorzowie Starym przeważają tereny przemysłowe. Miasto ma w pełni rozwinięte zaplecze medyczne – są tu trzy szpitale i ok. 130 innych jednostek świadczących usługi tego typu. Rozwija się oświata i życie kulturalne. Znajdują się tu także liczne obiekty sportowe. Chorzów ma duże znaczenie komunikacyjne – biegnie tędy autostrada A4, droga krajowa i wojewódzka, niedaleko znajduje się lotnisko, są tu dwie stacje kolejowe.
Opis oferty
Nowe 4-pokojowe mieszkanie na sprzedaż o powierzchni 82,37 m² znajduje się w nowo budowanej inwestycji deweloperskiej Lwowska 14 w Chorzowie, ul. Lwowska 14 (0.6 km od centrum Chorzowa).
Sprzedaż prowadzi Platforma Mieszkaniowa.
Cała inwestycja składa się z 1 budynku, w którym łącznie znajduje się 39 nowych mieszkań.
Na sprzedaż pozostaje 19 ofert o powierzchni od 42 do 83 m².
W budynku są 4 kondygnacje naziemne oraz 1 kondygnacja podziemna.
Inwestycja Lwowska 14 została wybudowana i oddana do użytkowania w 4 kw. 2025 roku.
Nowe mieszkanie o oznaczeniu A06 znajduje się na 1 piętrze i jest 1-poziomowe. Pomieszczenia mają od 260 do 280 centymetrów wysokości. W mieszkaniu znajdują się 4 pokoje.
Okna w mieszkaniu wychodzą na północ, południe.
Północna ekspozycja to idealny wybór dla osób ceniących przytulne i klimatyczne wnętrza. Delikatne, rozproszone światło sprzyja harmonii i stwarza doskonałe warunki do relaksu lub pracy. Okna na północ zapewnią równomierne oświetlenie przez cały dzień.
Okna wychodzące na południe gwarantują maksymalną ilość naturalnego światła, co czyni wnętrza jasnymi i ciepłymi. Dodatkowo południowa ekspozycja pomaga obniżyć koszty ogrzewania w zimie. Okna na południe są idealne dla osób pragnących cieszyć się jasnym otoczeniem, które sprzyja dobremu samopoczuciu oraz pozytywnej energii.
Dla przyszłych mieszkańców Lwowska 14 deweloper przewidział miejsca postojowe podziemne, miejsca postojowe naziemne.
Dzięki temu przyszli właściciele nie będą musieli poszukiwać wolnej przestrzeni parkingowej. Dodatkowo, miejsce postojowe w garażu podziemnym zabezpiecza przed niekorzystnymi warunkami atmosferycznymi.
Opis Inwestycji
Tereny zielone
W projekcie zadbaliśmy o przestronne, funkcjonalne układy mieszkań o powierzchni od 36m2 do 93m2. Mieszkania składają się z 2, 3 lub 4 pokoi tak, aby każdy mógł wybrać coś dla siebie. Nie zabraknie też dużych balkonów, tarasów oraz wysokich przeszkleń. Budynek zostanie wyposażony w windę, a mieszkańcy będą korzystać z miejsc postojowych w podziemnej hali garażowej i przed budynkiem. Trzypiętrowy budynek został podzielony na 2 klatki - na każdym z pięter znajduje się tylko 4 lub 5 mieszkań.
• kameralna zabudowa, willowa okolica w sąsiedztwie Parku Śląskiego
• przestronne, funkcjonalne układy mieszkań
• wysokie pomieszczenia
• ogrzewanie podłogowe
Mieszkanie znajduje się w inwestycji Lwowska 14, w której znajduje się w sprzedaży jeszcze 6 podobnych nowych mieszkań.





