Lwowska 14
Mieszkania na sprzedaż oferowane bezpośrednio przez Platforma Mieszkaniowa
Chorzów, ul. Lwowska 14
Chorzów, ul. Lwowska 14
:format(jpg)/offers/offer/17243/main_image/lwowska-14_d69892.jpg)
:format(jpg)/offers/offer/17243/main_image/lwowska-14_d69892.jpg)
1 zdjęcie
Lwowska 14
Chorzów, ul. Lwowska 14
Termin oddania
Gotowe
Powierzchnie
43 - 83/m2
Przedział pokoi
2 - 4
Kondygnacje
4
Budynki
1
Stand. wykończenia
Standard deweloperski
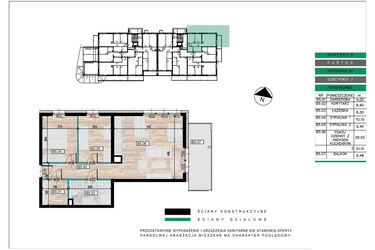
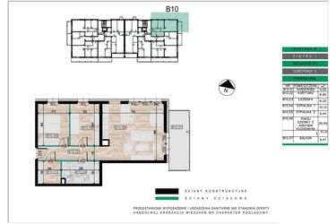
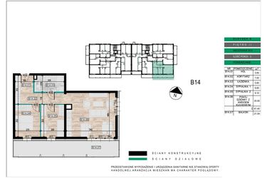
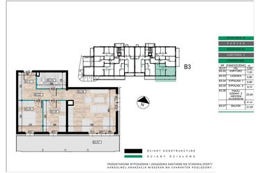
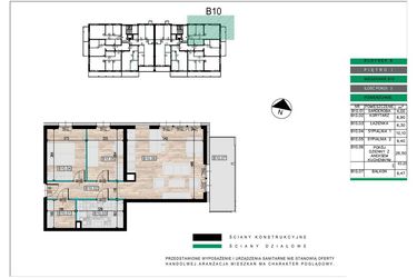
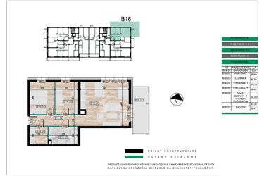
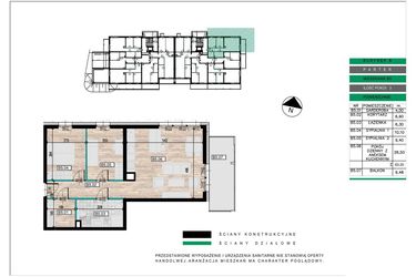
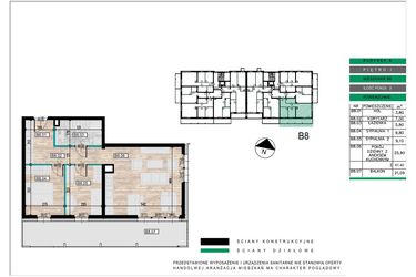
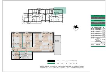
Mieszkania w inwestycji (20)
Sortuj
Stacja kolejowa - Chorzów Miasto - 957 m
Przystanek Tramwajowy - 277 m
Przystanek Autobusowy - 284 m
Dojazd do centrum: pokaż
W pobliżu 1 km od tej inwestycji znajdują się:
51 kawiarni i restauracji, 41 sklepów, 45 obiektów sportowych, 32 placówki medyczne, 33 placówki edukacyjne, 28 placów zabaw
Zdjęcia z budowy
Zobacz na jakim etapie budowy jest ta inwestycja
Udogodnienia Inwestycji
Standard i bezpieczeństwo
- winda
- Standard deweloperski
Przyroda w okolicy
- 9 parków w okolicy
Szczegóły inwestycji
Realizacja inwestycji: | rozpoczęcie budowy w 4 kw. 2023 roku, inwestycja została oddana do użytkowania w 4 kw. 2025 roku |
|---|---|
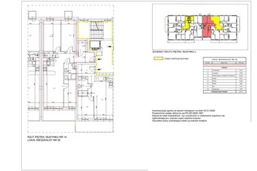
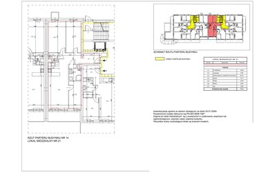
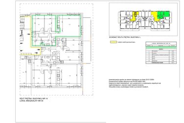
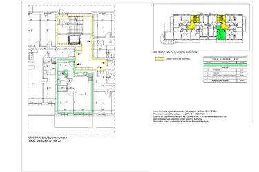
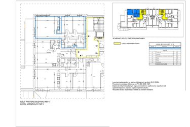
Liczba budynków: | cała inwestycja składa się z 1 budynku |
Liczba kondygnacji: | budynek posiada 4 kondygnacje naziemne wraz z parterem oraz 1 kondygnację podziemną |
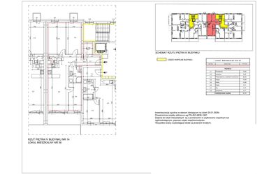
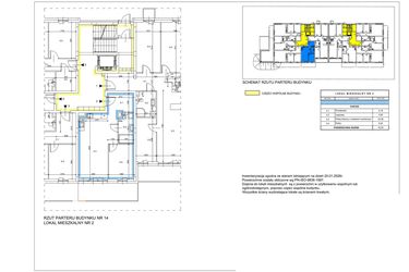
Liczba mieszkań: | cała inwestycja składa się z 39 lokali mieszkalnych |
Wysokość pomieszczeń: | w zależności od kondygnacji od 260 do 280 cm wysokości |
Standard wykończenia | standard deweloperski Ogrzewanie podłogowe |
Rodzaj własności: | odrębna własność z własnością gruntu |
Powierzchnie dodatkowe: | nie przewidziano powierzchni dodatkowych |
Komórki lokatorskie: | nie przewidziano |
Miejsca postojowe: | w inwestycji przewidziano:
|
Przyroda: | informacja u dewelopera |
Aktualna oferta
Dostępne mieszkania: | aktualnie dostępnych jest 20 mieszkań |
|---|---|
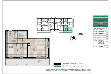
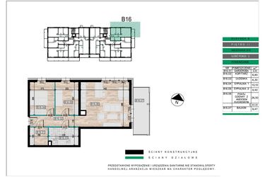
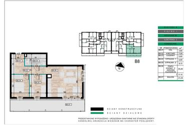
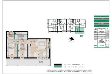
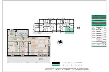
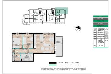
Powierzchnie mieszkań: | od 43 do 83 m² |
Liczba pokoi: | dostępne są mieszkania 2, 3, 4-pokojowe |
Opis płatności: | Informacja u dewelopera |
Warunki rezerwacji: | Informacja u dewelopera |
Zabezpieczenie środków klienta: | informacja u dewelopera |
Wysokość czynszu: | informacja u dewelopera |
Opis inwestycji
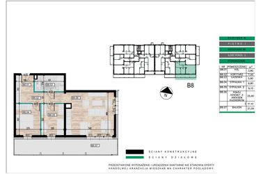
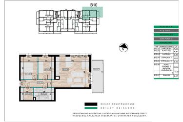
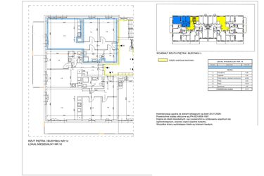
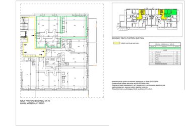
W projekcie zadbaliśmy o przestronne, funkcjonalne układy mieszkań o powierzchni od 36m2 do 93m2. Mieszkania składają się z 2, 3 lub 4 pokoi tak, aby każdy mógł wybrać coś dla siebie. Nie zabraknie też dużych balkonów, tarasów oraz wysokich przeszkleń. Budynek zostanie wyposażony w windę, a mieszkańcy będą korzystać z miejsc postojowych w podziemnej hali garażowej i przed budynkiem. Trzypiętrowy budynek został podzielony na 2 klatki - na każdym z pięter znajduje się tylko 4 lub 5 mieszkań.
• kameralna zabudowa, willowa okolica w sąsiedztwie Parku Śląskiego
• przestronne, funkcjonalne układy mieszkań
• wysokie pomieszczenia
• ogrzewanie podłogowe
Inwestycja Lwowska 14 znajduje się w Chorzowie, ul. Lwowska 14 (0.6 km od centrum Chorzowa), sprzedaż prowadzi Platforma Mieszkaniowa.
Inwestycja Lwowska 14 została wybudowana i oddana do użytkowania w 4 kw. 2025 roku.
Cały projekt składa się z 39 nowych mieszkań znajdujących się w 1 budynku. Budynek posiada 4 kondygnacje naziemne wraz z parterem oraz 1 kondygnację podziemną.
Aktualnie w inwestycji Lwowska 14 w sprzedaży jest 20 nowych mieszkań o powierzchni od 43 do 83 metrów kwadratowych , w cenie od 9 200 zł za metr kwadratowy.
Dla przyszłych mieszkańców Lwowska 14 deweloper przewidział:
- miejsca postojowe podziemne
- miejsca postojowe naziemne
Lokalizacja inwestycji
Chorzów to miasto leżące w woj. śląskim, na Wyżynie Śląskiej, nad rzeką Rawą. Sąsiaduje z 6 innymi miastami należącymi do Górnośląskiego Okręgu Przemysłowego. Jego powierzchnia wynosi 33,5 km2, a liczba mieszkańców to ok. 105 000. Krajobraz miasta jest typowy dla Śląska, a huty i zakłady przemysłowe przeplatają się z osiedlami mieszkaniowymi wybudowanymi z myślą o pracownikach. Centrum miasta wyróżnia się bardzo zwartą zabudową, licznymi kamienicami i budynkami najważniejszych instytucji. Chorzów II to głównie bloki i słynne, śląskie familoki, Batory łączy w sobie zabudowę industrialną z budynkami mieszkalnymi, a na Chorzowie Starym przeważają tereny przemysłowe. Miasto ma w pełni rozwinięte zaplecze medyczne – są tu trzy szpitale i ok. 130 innych jednostek świadczących usługi tego typu. Rozwija się oświata i życie kulturalne. Znajdują się tu także liczne obiekty sportowe. Chorzów ma duże znaczenie komunikacyjne – biegnie tędy autostrada A4, droga krajowa i wojewódzka, niedaleko znajduje się lotnisko, są tu dwie stacje kolejowe.
Komunikacja
Jak wygląda komunikacja w okolicy inwestycji Lwowska 14?
Przez południową część miasta biegnie autostrada A4. Poza tym Chorzów przecinany jest przez drogę krajową nr 79 oraz drogę wojewódzką nr 902. Tuż przy jego północnej granicy przebiega natomiast droga krajowa nr 94. Na terenie Chorzowa znajduje się 87 przystanków komunikacji miejskiej. Są tu także dwie stacje kolejowe, które zapewniają dostęp do najważniejszych miast nie tylko w kraju, ale i zagranicą, a ok. 30km od centrum znajduje się lotnisko Katowice-Pyrzowice.
Przyszli mieszkańcy inwestycji Lwowska 14 mogą korzystać z rozbudowanej sieci połączeń komunikacyjnych. W odległości 300 metrów od inwestycji Lwowska 14 znajduje się najbliższy punkt komunikacyjny - Chorzów Teatr Rozrywki.
Edukacja
Czy w pobliżu inwestycji Lwowska 14 znajdują się szkoły/przedszkola?
Mieszkańcy mogą korzystać z bogatej oferty edukacyjnej. W najbliższej okolicy inwestycji Lwowska 14 znajdują się 33 placówki edukacyjne. Najbliżej położone to: Przedszkole nr 5 w odległości 100 m, szkoła w odległości 400 m.
Opieka medyczna
Dużym atutem inwestycji Lwowska 14 jest bliskość ośrodków zdrowotnych. Dostęp do opieki medycznej zapewnią położone w pobliżu: Optomed w odległości 300 m.
Sklepy i usługi
Jak daleko jest do najbliższego sklepu?
Na infrastrukturę handlowo-usługową inwestycji Lwowska 14 składa się wiele punktów. Nieopodal, w odległości 300 m znajduje się Żabka, w odległości 400 m znajduje się Saturn Fitness.
Sport
Bliskość terenów rekreacyjnych oraz obiektów sportowych to mocna strona tej lokalizacji. W najbliższej okolicy inwestycji Lwowska 14 w odległości 300 m znajduje się siłownia na świeżym powietrzu.
Oferty, które mogą Cię zainteresować
Polecane Lokalizacje
- Mieszkania na sprzedaż Będzin (64 oferty)
- Mieszkania na sprzedaż Bielsko-Biała (721 ofert)
- Mieszkania na sprzedaż Bytom (35 ofert)
- Mieszkania na sprzedaż Częstochowa (315 ofert)
- Mieszkania na sprzedaż Dąbrowa Górnicza (53 oferty)
- Mieszkania na sprzedaż Gliwice (1071 ofert)
- Mieszkania na sprzedaż Katowice (4374 oferty)
Inwestycje w pobliżu w Chorzowie
- Panorama Reden (13 ofert)
- Vanda Park (79 ofert)
- Mieszkaj w mieście - Na Tysiącleciu budynek C (68 ofert)
- Mieszkaj w mieście - Na Tysiącleciu budynek D (35 ofert)
- Murapol Osiedle Wolka (21 ofert)
- Tarasy Śląskie (115 ofert)
- Apartamenty Diamentowa (31 ofert)
- Brylantowa Enklawa bud. C (14 ofert)
- Modena Bytkowska 113 (15 ofert)
- Bytkowska 3.0 (15 ofert)
- Bytkowska 4.0 (26 ofert)
- Apartamenty Złota (10 ofert)





