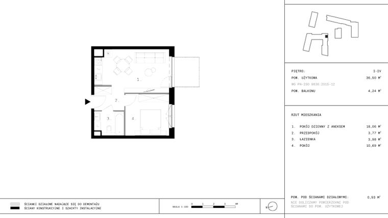
Mieszkanie na sprzedaż 2 pokoje o powierzchni 36,34 m² numer 143
Inwestycja:
28 czerwca 1956 r.Deweloper:
Strus Development Sp. z o.o.
Inwestycja:
28 czerwca 1956 r.Deweloper:
Strus Development Sp. z o.o.Poznań, Wilda, Zielony Dębiec, ul. 28 Czerwca 1956 r. 346
Poznań, Wilda, Zielony Dębiec, ul. 28 Czerwca 1956 r. 346
Termin oddania
Gotowe
Ilość pokoi
2 pokoje
Metraż
36,34 m²
Piętro
3 piętro
Kuchnia
otwarta kuchnia
Wysokość pomieszczeń
od 268 do 272 cm wysokości
Ilość poziomów
1 poziom
Oznaczenie oferty
143

Raport o deweloperze
Poznaj dewelopera bliżej! Pobierz raport, w którym znajdziesz kluczowe informacje o firmie, jej doświadczeniu, nagrodach oraz aktualnych i zrealizowanych inwestycjach.
Budynek i otoczenie
Miejsca postojowe | |
|---|---|
Komórki lokatorskie | dostępne: 1,8 - 7 m2 |
Standard wykończenia | standard deweloperski Ogrzewanie sieć miejska |
Realizacja inwestycji | rozpoczęcie budowy w 3 kw. 2021 roku, inwestycja została oddana do użytkowania w 2 kw. 2024 roku |
Udogodnienia | plac zabaw, winda, rowerownia |
Przyroda | informacja u dewelopera |
Charakterystyka energetyczna nieruchomości |
|
Rezerwacja i finanse
Rodzaj własności | Odrębna własność z użytkowaniem wieczystym gruntu |
|---|---|
Wysokość czynszu | informacja u dewelopera |
Warunki rezerwacji | Informacja u dewelopera |
Zabezpieczenie środków | Otwarty mieszkaniowy rachunek powierniczy |
Zdjęcia z budowy
Zobacz na jakim etapie budowy jest ta inwestycja
Lokalizacja inwestycji
Stacja kolejowa - Poznań Dębiec - 184 m
Przystanek Tramwajowy - 642 m
Przystanek Autobusowy - 142 m
Dojazd do centrum: pokaż
W pobliżu 1 km od tej inwestycji znajdują się:
10 kawiarni i restauracji, 36 sklepów, 28 obiektów sportowych, 6 placówek medycznych, 37 placówek edukacyjnych, 30 placów zabaw
Przeczytaj więcej o lokalizacji
Wilda to poznańska dzielnica ograniczona od wschodu rzeką Wartą, od północy ul. Królowej Jadwigi, od zachodu linią kolejową a od południa granicą ogrodów działkowych. Dzielnicę przecina z zachodu na wschód ul. Hetmańska a z północy na południe droga wojewódzka nr 430, krzyżująca się na południu z Autostradą Wolności. Na powierzchni 7 km kw żyje tu ok.6,8 tys. osób. Na zabudowę Wildy składają się w większości stare, poprzemysłowe kamienice, z których wiele wpisanych jest na listę zabytków. Po Wildzie kursuje 6 linii tramwajowych i 12 autobusowych. Na terenie dzielnicy działają liczne przedszkola, szkoły i szkoły wyższe, takie jak Akademia Wychowania Fizycznego i Sportu, Wyższa Szkoła Zarządzania, Wyższa Szkoła Zarządzania i Bankowości i Poznańska Wyższa Szkoła Biznesu. Ma tu siedzibę również Ortopedyczno-Rehabilitacyjny Szpital Kliniczny im. Wiktora Degi Uniwersytetu Medycznego. Do największych parków dzielnicy należy Las Dębiński i Park im. Jana Pawła II a zieleń uzupełniają też ogródki działkowe.
Opis oferty
Nowe 2-pokojowe mieszkanie na sprzedaż o powierzchni 36,34 m² znajduje się w nowo budowanej inwestycji deweloperskiej 28 czerwca 1956 r. na Zielonym Dębcu, ul. 28 Czerwca 1956 r. 346 (4.6 km od centrum Poznania).
Inwestycja jest realizowana przez Strus Development Sp. z o.o.
Cała inwestycja składa się z 4 budynków, w których łącznie znajdują się 242 nowe mieszkania.
Na sprzedaż pozostają 53 oferty o powierzchni od 32 do 82 m².
W budynkach jest od 3 do 6 kondygnacji naziemnych oraz 1 kondygnacja podziemna.
Inwestycja 28 czerwca 1956 r. została wybudowana i oddana do użytkowania w 2 kw. 2024 roku.
Nowe mieszkanie o oznaczeniu 143 znajduje się na 3 piętrze i jest 1-poziomowe. Pomieszczenia mają od 268 do 272 centymetrów wysokości. W mieszkaniu znajdują się 2 pokoje.
Dla przyszłych mieszkańców 28 czerwca 1956 r. deweloper przewidział miejsca postojowe podziemne.
Dzięki temu przyszli właściciele nie będą musieli poszukiwać wolnej przestrzeni parkingowej. Dodatkowo, miejsce postojowe w garażu podziemnym zabezpiecza przed niekorzystnymi warunkami atmosferycznymi.
Opis Inwestycji
Okazyjna cena
Na inwestycję 28 Czerwca 1956 r. składać się będą cztery budynki mieszkalne. Z zewnątrz utrzymane w ciepłych kolorach i czerpiące z aktualnych trendów architektonicznych, by ładnie wpisywać się w zieloną i cechującą się stosunkowo niskim budownictwem okolicę. Do realizacji tej inwestycji zostaną użyte materiały o wysokiej jakości tak, by nie tylko mieszkania, ale także teren wspólny, mogły służyć przez długie lata. Osiedle będzie ogrodzone, a mieszkańcy będą mogli liczyć na ciszę i spokój.
Wspomniane cztery budynki tworzą inwestycję 28 Czerwca 1956 r. Nowe mieszkania o różnej powierzchni, są naszą odpowiedzią na potrzeby dzisiejszego rynku. Duża rozpiętość metrażu z pewnością pozwoli każdemu znaleźć swój nowy dom – zarówno rozglądającym się za mniejszym lokum singlom, jak i szukającym przestronnego miejsca rodzinom. Niezależnie od wielkości mieszkania, każde odznaczać się będzie nienaganną jakością i praktycznym wykorzystaniem przestrzeni.
Mieszkanie znajduje się w inwestycji 28 czerwca 1956 r., w której znajdują się w sprzedaży jeszcze 43 podobne nowe mieszkania.
Strus Development Sp. z o.o.
Strona internetowa inwestycjiAdres biura sprzedaży:
UL. 28 CZERWCA 1956 R. LOK. 346 61-437 POZNAŃGodziny otwarcia biura sprzedaży:
- Poniedziałek: 09:00 - 17:00
- Wtorek: 09:00 - 17:00
- Środa: 09:00 - 17:00
- Czwartek: 09:00 - 17:00
- Piątek: 09:00 - 17:00





