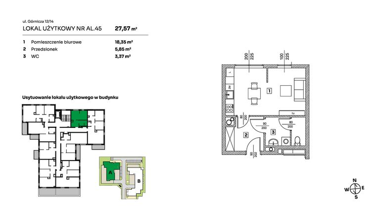
Mieszkanie na sprzedaż 1 pokój o powierzchni 27,57 m² numer AL.45
Promocja
Inwestycja:
Parkove Love - apartamenty inwestycyjneDeweloper:
Optimum Property
Inwestycja:
Parkove Love - apartamenty inwestycyjneDeweloper:
Optimum PropertyŁódź, Bałuty, Bałuty-Doły, ul. Górnicza 12/14
Łódź, Bałuty, Bałuty-Doły, ul. Górnicza 12/14
Promocje
Promocja
Mieszkanie inwestycyjne idealne na wynajem z 23% VAT Okazja! Teraz w cenie promocyjnej 8999 zł netto/m2!
Kup teraz, odbierz klucze i zarabiaj na wynajmie od października! Zainwestuj w najszybciej rozwijającej się biznesowej części Polski! Wybierz mieszkanie idealne dla Twojego biznesu i zarabiaj na wynajmie.
Termin oddania
Gotowe
Ilość pokoi
1 pokój
Metraż
27,57 m²
Piętro
5 piętro
Wysokość pomieszczeń
od 260 do 280 cm wysokości
Ilość poziomów
1 poziom
Oznaczenie oferty
AL.45

Raport o deweloperze
Poznaj dewelopera bliżej! Pobierz raport, w którym znajdziesz kluczowe informacje o firmie, jej doświadczeniu, nagrodach oraz aktualnych i zrealizowanych inwestycjach.
Budynek i otoczenie
Miejsca postojowe | |
|---|---|
Komórki lokatorskie | dostępne (108): od 1,99 do 8,25 m2 |
Standard wykończenia | standard deweloperski Ogrzewanie miejskie |
Realizacja inwestycji | rozpoczęcie budowy w 3 kw. 2024 roku, inwestycja została oddana do użytkowania w 1 kw. 2026 roku |
Udogodnienia | plac zabaw, teren ogrodzony, usługi w budynku, winda |
Przyroda | w okolicy inwestycji znajduje się park |
Charakterystyka energetyczna nieruchomości | informacja u dewelopera |
Rezerwacja i finanse
Rodzaj własności | Odrębna własność z własnością gruntu |
|---|---|
Wysokość czynszu | informacja u dewelopera |
Warunki rezerwacji | 1% ceny netto |
Zabezpieczenie środków | Otwarty mieszkaniowy rachunek powierniczy |
Zdjęcia z budowy
Zobacz na jakim etapie budowy jest ta inwestycja
Lokalizacja inwestycji
Stacja kolejowa - Łódź Marysin - 1235 m
Przystanek Tramwajowy - 890 m
Przystanek Autobusowy - 330 m
Dojazd do centrum: pokaż
W pobliżu 1 km od tej inwestycji znajdują się:
12 kawiarni i restauracji, 26 sklepów, 35 obiektów sportowych, 16 placówek medycznych, 42 placówki edukacyjne, 40 placów zabaw
Przeczytaj więcej o lokalizacji
Łódź – najbardziej dynamicznie rozwijająca się metropolia w Polsce. Łódź jest miastem energicznych zmian, miastem kreatywnym, miastem festiwali, miastem odkrywanym zupełnie na nowo. Łódź charakteryzuje się znakomitą infrastrukturą komunikacyjną, obejmującą skrzyżowanie autostrad A1 i A2 łączących Śląsk z Pomorzem oraz Wielkopolskę z Mazowszem, natomiast droga ekspresowa S8 łączy Łódź z Wrocławiem. Budowany pod centrum Łodzi tunel średnicowy już wkrótce sprawi, że Łódź stanie się centralnym punktem na kolejowej mapie Polski umożliwiając połączenie Poznania i Wrocławia ze stolicą. Ale najlepsze, co Łódź ma do zaoferowania kryje się w zrewitalizowanym śródmieściu: - pełną klimatycznych restauracji ulicę Piotrkowską, - hipsterski OFF, - znakomite centrum handlowe Manufaktura, - kulturalne EC-1, i wiele innych miejsc do odkrycia jak liczne parki i tereny zielone, łącznie z największym lasem miejskim w Europie.
Rozciągające się w północnej części miasta Bałuty to największa dzielnica Łodzi, na którą składa się 8 osiedli. Ich łączna powierzchnia liczy sobie 79km2, a zamieszkuje ją ponad 203 tysiące osób. Część dzielnicy od początku miała charakter typowo mieszkalny i była przeznaczona dla pracowników łódzkich fabryk. Obok szarych blokowisk i licznych kamienic budowane są dziś nowe osiedla domów jednorodzinnych. Wciąż jednak widać pozostałości zabudowań przemysłowych. Niektóre z nich, tak jak Manufaktura, odzyskują dawną świetność i po gruntownej rewitalizacji stają się cenionymi nieruchomościami handlowymi lub biurowymi. Mimo to Bałuty są najbardziej zieloną częścią miasta, a znajdujący się na ich terenie las Łagiewnicki jest największym w kraju obszarem leśnym leżącym w granicach miasta. Przez Bałuty biegną 3 drogi krajowe, w tym droga E75 będąca częścią międzynarodowego szlaku z Helsinek do Aten. Z Bałut do centrum miasta prowadzą linie autobusowe i tramwajowe odbywające regularne kursy dzienne i nocne.
Opis oferty
Nowe 1-pokojowe mieszkanie na sprzedaż o powierzchni 27,57 m² znajduje się w nowo budowanej inwestycji deweloperskiej Parkove Love - apartamenty inwestycyjne na Bałutach-Dołach, ul. Górnicza 12/14 (4.1 km od centrum Łodzi).
Inwestycja jest realizowana przez Optimum Property.
Cała inwestycja składa się z 2 budynków, w których łącznie znajduje się 17 nowych mieszkań.
Na sprzedaż pozostaje 16 ofert o powierzchni od 28 do 31 m².
W budynkach jest 6 kondygnacji naziemnych oraz 2 kondygnacje podziemne.
Inwestycja Parkove Love - apartamenty inwestycyjne została wybudowana i oddana do użytkowania w 1 kw. 2026 roku.
Nowe mieszkanie o oznaczeniu AL.45 znajduje się na 5 piętrze i jest 1-poziomowe. Pomieszczenia mają od 260 do 280 centymetrów wysokości. W mieszkaniu znajduje się 1 pokój.
Do mieszkania przewidziano możliwość zakupu komórki lokatorskiej, którą można zagospodarować na spiżarnię, warsztat czy składzik.
Dla przyszłych mieszkańców Parkove Love - apartamenty inwestycyjne deweloper przewidział miejsca postojowe podziemne, miejsca postojowe naziemne.
Dzięki temu przyszli właściciele nie będą musieli poszukiwać wolnej przestrzeni parkingowej. Dodatkowo, miejsce postojowe w garażu podziemnym zabezpiecza przed niekorzystnymi warunkami atmosferycznymi.
Opis Inwestycji
Tereny zielone
Apartamenty Parkove Love to wyjątkowa inwestycja adresowana do osób, które cenią wysoki standard nieruchomości oraz komfort codziennego życia.
W dwóch kameralnych budynkach położonych w zielonej części Łodzi, przy ul. Górniczej zaprojektowaliśmy funkcjonalne mieszkania o powierzchniach od 30 do 94 m2 oraz lokale użytkowe.
Wszystkie mieszkania na piętrach posiadają balkony lub tarasy. Wyjątkowa lokalizacja inwestycji sprawia, że z większości będzie można podziwiać zieloną panoramę Parku im. Szarych Szeregów. Natomiast do mieszkań na parterze będą przynależały prywatne zielone tarasy, które gwarantują niezwykle atrakcyjną dodatkową przestrzeń do spędzania wolnego czasu i odpoczynku bez potrzeby wychodzenia z mieszkania!
Twój wymarzony adres
Tutaj lokalizacja gra pierwsze skrzypce! Inwestycja Parkove Love powstaje w wyjątkowym miejscu, w bezpośrednim zielonym sąsiedztwie Parku im. Szarych Szeregów. Park jest tu dosłownie na wyciągnięcie ręki, a w nim klimatyczne alejki spacerowe, malownicze trasy biegowe i ogromna przestrzeń do spędzania wolnego czasu na powietrzu. Nie brakuje miejsca do błogiego lenistwa czy organizacji pikników, zarówno w centralnej części parku, jak i na uboczu w cieniu drzew.
Kameralna okolica gwarantuje spokój i bezpieczeństwo, a sama ul. Górnicza, która zostanie zrewitalizowana w 2024 roku, umożliwia doskonałą komunikację w każdym kierunku Łodzi. Do Manufaktury możesz wybrać się spacerem, do ul. Strykowskiej dojedziesz w zaledwie 5 minut, a do ul. Piotrkowskiej i centrum w 10-15 minut!
Zadbaliśmy o wygodę mieszkańców, dlatego w budynkach zaprojektowaliśmy ciche windy, nowoczesne oświetlenie korytarzy, duży komfortowy dwupoziomowy garaż podziemny z podgrzewanym zjazdem oraz przestronne pomieszczenia gospodarcze i boxy na rowery.
Na terenie inwestycji powstaną również miejsca do ładowania samochodów elektrycznych oraz stacja naprawy rowerów. Całości dopełni eleganckie wykończenie części wspólnych, elewacja z ponadczasowymi elementami drewna i szkła oraz nasadzenia zieleni.
KOMUNIKACJA W 2 OBSZARACH:
1. DLA INWESTORÓW/PRZEDSIĘBIORCÓW/OSÓB KUPUJĄCYCH Z MYŚLĄ O ZARABIANIU NA WYNAJMIE
atrakcyjne mieszkania na wynajem (kawalerka / 2 pokoje) z 23% vat
blisko UŁ, UMed – studenci jako przyszli najemcy
mieszkania gotowe do odbioru
kup teraz zarabiaj na wynajmie od października
szybki zwrot z wynajmu
bardzo duży popyt na wynajem w tych okolicach (szczególnie duży potencjał widzimy w inwestycji Nova Radiostacja ze względu na wydziały UŁ, UMed, Paragraf, wydział matematyki i informatyki, wydział biologii i ochrony środowiska, wydział zarządzania, wydział chemii etc. – wszystko po sąsiedzku przy ul. Pomorskiej)
2. DLA PRZEDSIĘBIORCÓW/OSÓB SZUKAJĄCYCH MIEJSCA NA BIURO
nowe miejsce dla Twojego biznesu
na biuro, dla małej firmy, np. kosmetyczka, grafik, projektant, freelancer, przedsiębiorca na JDG, usługi księgowo-podatkowe
mieszkaj i pracuj, komfortowe biuro w mieszkaniu
Mieszkanie znajduje się w inwestycji Parkove Love - apartamenty inwestycyjne, w której znajduje się w sprzedaży jeszcze 16 podobnych nowych mieszkań.
Optimum Property
Strona internetowa inwestycjiAdres biura sprzedaży:
ul. Przybyszewskiego 161, 93-120 ŁódźGodziny otwarcia biura sprzedaży:
- Poniedziałek: 09:00 - 17:00
- Wtorek: 09:00 - 17:00
- Środa: 09:00 - 17:00
- Czwartek: 09:00 - 17:00
- Piątek: 09:00 - 17:00





