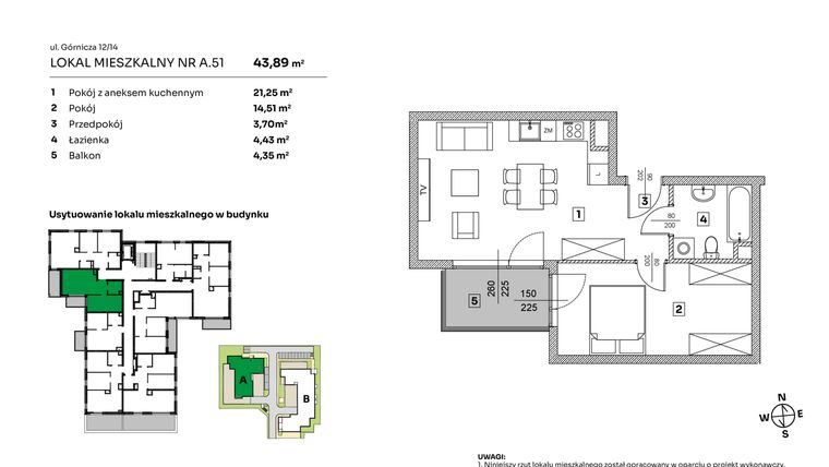
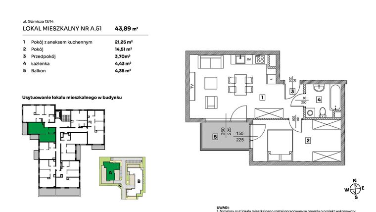
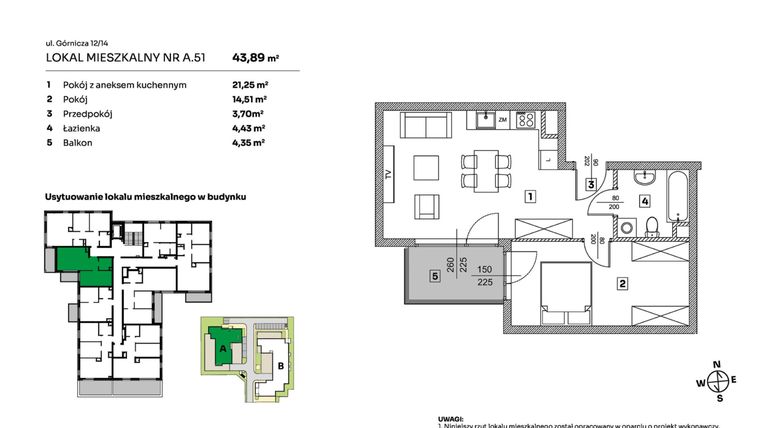
Mieszkanie na sprzedaż 2 pokoje o powierzchni 43,89 m² numer A.51
Inwestycja:
Parkove LoveDeweloper:
Optimum Property
Inwestycja:
Parkove LoveDeweloper:
Optimum PropertyŁódź, Bałuty, Bałuty-Doły, ul. Górnicza 12/14
Łódź, Bałuty, Bałuty-Doły, ul. Górnicza 12/14
Promocje
Nieruchomość bez wkładu własnego
Wybrane mieszkania w tej inwestycji kupisz bez wkładu własnego
Szczegóły dostępne w biurze sprzedaży
Oddanie
Gotowe
Ilość pokoi
2 pokoje
Metraż
43,89 m²
Piętro
5 piętro
Dodatkowe
Balkon
Wysokość
od 260 do 280 cm wysokości
Poziomy
1 poziom
Oznaczenie oferty
A.51

Raport o deweloperze
Poznaj dewelopera bliżej! Pobierz raport, w którym znajdziesz kluczowe informacje o firmie, jej doświadczeniu, nagrodach oraz aktualnych i zrealizowanych inwestycjach.
Budynek i otoczenie
Miejsca postojowe | |
|---|---|
Komórki lokatorskie | dostępne (108): od 1,99 do 8,25 m2 |
Standard wykończenia | standard deweloperski Ogrzewanie miejskie |
Realizacja inwestycji | rozpoczęcie budowy w 3 kw. 2024 roku, inwestycja została oddana do użytkowania w 1 kw. 2026 roku |
Udogodnienia | teren ogrodzony, usługi w budynku, winda, plac zabaw |
Przyroda | w okolicy inwestycji znajduje się park |
Charakterystyka energetyczna nieruchomości |
|
Rezerwacja i finanse
Rodzaj własności | Odrębna własność z własnością gruntu |
|---|---|
Wysokość czynszu | informacja u dewelopera |
Warunki rezerwacji | 1% ceny netto |
Zabezpieczenie środków | Otwarty mieszkaniowy rachunek powierniczy |
Postępy i zdjęcia z budowy
Zobacz na jakim etapie budowy jest ta inwestycja
Lokalizacja inwestycji
Stacja kolejowa - Łódź Marysin - 1281 m
Przystanek Tramwajowy - 854 m
Przystanek Autobusowy - 304 m
Dojazd do centrum: pokaż
W pobliżu 1 km od tej inwestycji znajdują się:
13 kawiarni i restauracji, 31 sklepów, 34 obiekty sportowe, 13 placówek medycznych, 43 placówki edukacyjne, 49 placów zabaw
Przeczytaj więcej o lokalizacji
Łódź – najbardziej dynamicznie rozwijająca się metropolia w Polsce. Łódź jest miastem energicznych zmian, miastem kreatywnym, miastem festiwali, miastem odkrywanym zupełnie na nowo. Łódź charakteryzuje się znakomitą infrastrukturą komunikacyjną, obejmującą skrzyżowanie autostrad A1 i A2 łączących Śląsk z Pomorzem oraz Wielkopolskę z Mazowszem, natomiast droga ekspresowa S8 łączy Łódź z Wrocławiem. Budowany pod centrum Łodzi tunel średnicowy już wkrótce sprawi, że Łódź stanie się centralnym punktem na kolejowej mapie Polski umożliwiając połączenie Poznania i Wrocławia ze stolicą. Ale najlepsze, co Łódź ma do zaoferowania kryje się w zrewitalizowanym śródmieściu: - pełną klimatycznych restauracji ulicę Piotrkowską, - hipsterski OFF, - znakomite centrum handlowe Manufaktura, - kulturalne EC-1, i wiele innych miejsc do odkrycia jak liczne parki i tereny zielone, łącznie z największym lasem miejskim w Europie.
Rozciągające się w północnej części miasta Bałuty to największa dzielnica Łodzi, na którą składa się 8 osiedli. Ich łączna powierzchnia liczy sobie 79km2, a zamieszkuje ją ponad 203 tysiące osób. Część dzielnicy od początku miała charakter typowo mieszkalny i była przeznaczona dla pracowników łódzkich fabryk. Obok szarych blokowisk i licznych kamienic budowane są dziś nowe osiedla domów jednorodzinnych. Wciąż jednak widać pozostałości zabudowań przemysłowych. Niektóre z nich, tak jak Manufaktura, odzyskują dawną świetność i po gruntownej rewitalizacji stają się cenionymi nieruchomościami handlowymi lub biurowymi. Mimo to Bałuty są najbardziej zieloną częścią miasta, a znajdujący się na ich terenie las Łagiewnicki jest największym w kraju obszarem leśnym leżącym w granicach miasta. Przez Bałuty biegną 3 drogi krajowe, w tym droga E75 będąca częścią międzynarodowego szlaku z Helsinek do Aten. Z Bałut do centrum miasta prowadzą linie autobusowe i tramwajowe odbywające regularne kursy dzienne i nocne.
Opis oferty
Nowe 2-pokojowe mieszkanie na sprzedaż o powierzchni 43,89 m² znajduje się w nowo budowanej inwestycji deweloperskiej Parkove Love na Bałutach-Dołach, ul. Górnicza 12/14 (4.1 km od centrum Łodzi).
Inwestycja jest realizowana przez Optimum Property.
Cała inwestycja składa się z 2 budynków, w których łącznie znajduje się 109 nowych mieszkań.
Na sprzedaż pozostaje 48 ofert o powierzchni od 32 do 94 m².
W budynkach jest 6 kondygnacji naziemnych oraz 2 kondygnacje podziemne.
Inwestycja Parkove Love została wybudowana i oddana do użytkowania w 1 kw. 2026 roku.
Nowe mieszkanie o oznaczeniu A.51 znajduje się na 5 piętrze i jest 1-poziomowe. Pomieszczenia mają od 260 do 280 centymetrów wysokości. W mieszkaniu znajdują się 2 pokoje.
Do mieszkania przewidziano możliwość zakupu komórki lokatorskiej, którą można zagospodarować na spiżarnię, warsztat czy składzik.
Dla przyszłych mieszkańców Parkove Love deweloper przewidział miejsca postojowe podziemne, miejsca postojowe naziemne.
Dzięki temu przyszli właściciele nie będą musieli poszukiwać wolnej przestrzeni parkingowej. Dodatkowo, miejsce postojowe w garażu podziemnym zabezpiecza przed niekorzystnymi warunkami atmosferycznymi.
Opis Inwestycji
Tereny zielone
Pow. dodatkowe
Apartamenty Parkove Love to wyjątkowa inwestycja adresowana do osób, które cenią wysoki standard nieruchomości oraz komfort codziennego życia.
W dwóch kameralnych budynkach położonych w zielonej części Łodzi, przy ul. Górniczej zaprojektowaliśmy funkcjonalne mieszkania o powierzchniach od 30 do 94 m2 oraz lokale użytkowe.
Wszystkie mieszkania na piętrach posiadają balkony lub tarasy. Wyjątkowa lokalizacja inwestycji sprawia, że z większości będzie można podziwiać zieloną panoramę Parku im. Szarych Szeregów. Natomiast do mieszkań na parterze będą przynależały prywatne zielone tarasy, które gwarantują niezwykle atrakcyjną dodatkową przestrzeń do spędzania wolnego czasu i odpoczynku bez potrzeby wychodzenia z mieszkania!
Twój wymarzony adres
Tutaj lokalizacja gra pierwsze skrzypce! Inwestycja Parkove Love powstaje w wyjątkowym miejscu, w bezpośrednim zielonym sąsiedztwie Parku im. Szarych Szeregów. Park jest tu dosłownie na wyciągnięcie ręki, a w nim klimatyczne alejki spacerowe, malownicze trasy biegowe i ogromna przestrzeń do spędzania wolnego czasu na powietrzu. Nie brakuje miejsca do błogiego lenistwa czy organizacji pikników, zarówno w centralnej części parku, jak i na uboczu w cieniu drzew.
Kameralna okolica gwarantuje spokój i bezpieczeństwo, a sama ul. Górnicza, która zostanie zrewitalizowana w 2024 roku, umożliwia doskonałą komunikację w każdym kierunku Łodzi. Do Manufaktury możesz wybrać się spacerem, do ul. Strykowskiej dojedziesz w zaledwie 5 minut, a do ul. Piotrkowskiej i centrum w 10-15 minut!
Zadbaliśmy o wygodę mieszkańców, dlatego w budynkach zaprojektowaliśmy ciche windy, nowoczesne oświetlenie korytarzy, duży komfortowy dwupoziomowy garaż podziemny z podgrzewanym zjazdem oraz przestronne pomieszczenia gospodarcze i boxy na rowery.
Na terenie inwestycji powstaną również miejsca do ładowania samochodów elektrycznych oraz stacja naprawy rowerów. Całości dopełni eleganckie wykończenie części wspólnych, elewacja z ponadczasowymi elementami drewna i szkła oraz nasadzenia zieleni.
Mieszkanie znajduje się w inwestycji Parkove Love, w której znajdują się w sprzedaży jeszcze 24 podobne nowe mieszkania.
Optimum Property
Strona internetowa inwestycjiAdres biura sprzedaży:
ul. Przybyszewskiego 161, 93-120 ŁódźGodziny otwarcia biura sprzedaży:
- Poniedziałek: 09:00 - 17:00
- Wtorek: 09:00 - 17:00
- Środa: 09:00 - 17:00
- Czwartek: 09:00 - 17:00
- Piątek: 09:00 - 17:00





