Mieszkanie na sprzedaż 2 pokoje o powierzchni 80,75 m² numer M30
Inwestycja:
Ogrody ReymontaDeweloper:
NU Homes Sp. z o. o.
Inwestycja:
Ogrody ReymontaDeweloper:
NU Homes Sp. z o. o.bydgoski, Niemcz, ul. Reymonta
bydgoski, Niemcz, ul. Reymonta
Termin oddania
4 kw. 2027
Ilość pokoi
2 pokoje
Metraż
80,75 m²
Piętro
2 piętro
Powierzchnie dodatkowe
Loggia
Wysokość pomieszczeń
od 250 do 270 cm wysokości
Ilość poziomów
2 poziomy + antresola
Oznaczenie oferty
M30

Raport o deweloperze
Poznaj dewelopera bliżej! Pobierz raport, w którym znajdziesz kluczowe informacje o firmie, jej doświadczeniu, nagrodach oraz aktualnych i zrealizowanych inwestycjach.
Budynek i otoczenie
Miejsca postojowe | |
|---|---|
Komórki lokatorskie | dostępne |
Standard wykończenia | standard deweloperski |
Realizacja inwestycji | rozpoczęcie budowy w 1 kw. 2026 roku, planowane oddanie do użytkowania w 4 kw. 2027 roku |
Udogodnienia | winda, monitoring, plac zabaw, siłownia plenerowa, instalacja fotowoltaiczna |
Przyroda | informacja u dewelopera |
Charakterystyka energetyczna nieruchomości | informacja u dewelopera |
Rezerwacja i finanse
Rodzaj własności | Odrębna własność z własnością gruntu |
|---|---|
Wysokość czynszu | informacja u dewelopera |
Warunki rezerwacji | Informacja u dewelopera |
Zabezpieczenie środków | Informacja u dewelopera |
Zdjęcia z budowy
Zobacz na jakim etapie budowy jest ta inwestycja
Lokalizacja inwestycji
Przystanek Autobusowy - 66 m
Dojazd do centrum: pokaż
W pobliżu 1 km od tej inwestycji znajdują się:
1 kawiarnia lub restauracja, 2 sklepy, 8 obiektów sportowych, 1 placówka medyczna, 7 placówek edukacyjnych, 6 placów zabaw
Przeczytaj więcej o lokalizacji
Niemcz to miejscowość położona w województwie kujawsko-pomorskim, w powiecie bydgoskim, w gminie Osielsko. Ze względu na bardzo korzystną odległość od centrum Bydgoszczy, Niemcz przybrał formę przedmieścia o charakterze mieszkaniowym. Cicha, spokojna okolica eleganckich domów jednorodzinnych i apartamentowców to miejsce idealne dla rodzin czy osób starszych. Urokliwe tereny dają możliwość spacerów, przejażdżek rowerowych i odpoczynku od zgiełku miasta. Sąsiedztwo Parku Krajobrazowego pozwala zaczerpnąć świeżego powietrza a także cieszyć się bliskością zieleni. Przystanki autobusowe (komunikacji ZDMiKP), rozwinięta infrastruktura drogowa zapewniają szybki dojazd do największego miasta w województwie. Miejscowe zabudowania zlokalizowane są w niedalekiej odległości od galerii handlowej, marketu spożywczego, Ogrodu Botanicznego w Myślęcinku, stadniny koni, pola golfowego, basenu i innych atrakcji jakie zapewnia miasto Bydgoszcz. Na terenie Niemcza znajduje się szkoła podstawowa i 2 przedszkola.
Opis oferty
możliwość aranżacji antresoli na 2 pokoje
Nowe 2-pokojowe mieszkanie na sprzedaż o powierzchni 80,75 m² znajduje się w nowo budowanej inwestycji deweloperskiej Ogrody Reymonta w Niemczu, ul. Reymonta (6.2 km od centrum Bydgoszczy).
Inwestycja jest realizowana przez NU Homes Sp. z o. o.
Cała inwestycja składa się z 3 budynków, w których łącznie znajduje się 108 nowych mieszkań.
Na sprzedaż pozostaje 36 ofert o powierzchni od 50 do 83 m².
W budynkach są 3 kondygnacje naziemne oraz 1 kondygnacja podziemna.
Inwestycja Ogrody Reymonta jest w trakcie przygotowań z planowanym na 4 kw. 2027 roku terminem oddania do użytkowania.
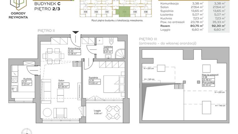
Nowe mieszkanie o oznaczeniu M30 znajduje się na 2 piętrze i jest 2-poziomowe. Pomieszczenia mają od 250 do 270 centymetrów wysokości. W mieszkaniu znajdują się 2 pokoje.
Dla przyszłych mieszkańców Ogrody Reymonta deweloper przewidział miejsca postojowe podziemne, miejsca postojowe naziemne.
Dzięki temu przyszli właściciele nie będą musieli poszukiwać wolnej przestrzeni parkingowej. Dodatkowo, miejsce postojowe w garażu podziemnym zabezpiecza przed niekorzystnymi warunkami atmosferycznymi.
Mieszkanie znajduje się w inwestycji Ogrody Reymonta, w której znajduje się w sprzedaży jeszcze 31 podobnych nowych mieszkań.
NU Homes Sp. z o. o.
Strona internetowa inwestycjiAdres biura sprzedaży:
ul. A. Grzymały – Siedleckiego 14, 85-868 Bydgoszcz




