piaseczyński, Janczewice, ul. Jedności 130
piaseczyński, Janczewice, ul. Jedności 130
:format(jpg)/offers/offer/16148/main_image/osiedle-natura_d3a640.jpg)
:format(jpg)/offers/offer/16148/main_image/osiedle-natura_d3a640.jpg)
1 zdjęcie
Termin oddania
Gotowe
Powierzchnie
57/m2
Przedział pokoi
3
Kondygnacje
2
Budynki
8
Stand. wykończenia
Standard deweloperski
Mieszkania w inwestycji (1)
od 8 080 zł/m2
Sortuj
Przystanek Autobusowy - 266 m
Dojazd do centrum Warszawy: pokaż
W pobliżu 1 km od tej inwestycji znajdują się:
1 obiekt sportowy, 1 plac zabaw
Zdjęcia z budowy
Zobacz na jakim etapie budowy jest ta inwestycja
Udogodnienia Inwestycji
Standard i bezpieczeństwo
- teren ogrodzony
- Standard deweloperski
Przyroda w okolicy
- las
- jezioro
- rezerwat przyrody
Usługi na terenie osiedla
- paczkomat
Szczegóły inwestycji
Realizacja inwestycji:
Liczba budynków:
Liczba kondygnacji:
Liczba mieszkań:
Wysokość pomieszczeń:
Standard wykończenia
standard deweloperski
Ogrzewanie
gazowe
Rodzaj własności:
Powierzchnie dodatkowe:
Komórki lokatorskie:
Miejsca postojowe:
- miejsca postojowe naziemne : Do każdego lokalu przynależą 2 miejsca postojowe: naziemne oraz/lub w garażu wielopoziomowym naziemnym
Przyroda:
Aktualna oferta
Dostępne mieszkania:
Powierzchnie mieszkań:
Liczba pokoi:
Ceny mieszkań:
- kształtują się na poziomie 559 000 zł.
- koszt metra kwadratowego wynosi od 8 080 do 9 843 zł
Opis płatności:
Warunki rezerwacji:
Zabezpieczenie środków klienta:
Wysokość czynszu:
Opis inwestycji
Osiedle Natura to unikalna propozycja, która doskonale łączy w sobie nowoczesność i klasyczne piękno. To kameralne osiedle na pierwszy rzut oka charakteryzuje się wyjątkową architekturą. Eleganckie, białe i beżowe budynki tworzą subtelny kontrast z otaczającą zieleń. Przemyślane rozmieszczenie domów tworzy estetycznie wyważoną całość, która harmonijnie komponuje się z otaczającym krajobrazem. Zieleń roślin i spokojne kolory budynków wprowadzają uczucie relaksu, a panująca tu cisza pozwoli odnaleźć własne tempo.
Na tym urokliwym osiedlu w Janczewicach powstanie 116 mieszkań w zabudowie szeregowej. Ich metraże będą wahać się od 47 do 67 m2. Mieszkania będą oferowane z dostępnym ogrodem lub balkonem, co dodatkowo zwiększa komfort mieszkańców. Każdy lokal dysponować będzie dwoma miejscami parkingowymi lub jednym miejscem parkingowym i miejscem w hali garażowej, zapewniając wygodę parkowania. Dogodne połączenie z Warszawą i szybki dojazd do lotniska czynią z Osiedla Natura idealne miejsce dla osób ceniących sobie zarówno ciszę i spokój, jak i bliskość miasta.
Spacer wirtualnych po mieszkaniach o pow. 56 m2: https://youtu.be/K_ylZk_9-50?si=Wcqvs_L3lEPcTDQ_
Inwestycja Osiedle Natura znajduje się w Janczewicach, ul. Jedności 130 (3.5 km od Warszawy), została zrealizowana przez Novisa Development Sp. z o.o.
Inwestycja Osiedle Natura została wybudowana i oddana do użytkowania w 3 kw. 2025 roku.
Cały projekt składa się z 116 nowych mieszkań znajdujących się w 8 budynkach. Budynki posiadają 2 kondygnacje naziemne wraz z parterem oraz nie posiadają kondygnacji podziemnych.
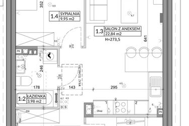
Aktualnie w inwestycji Osiedle Natura w sprzedaży jest 1 nowe mieszkanie o powierzchni 57 metrów kwadratowych , w cenie od 8 080 zł za metr kwadratowy.
Dla przyszłych mieszkańców Osiedle Natura deweloper przewidział:
- miejsca postojowe naziemne
Lokalizacja inwestycji
Powiat piaseczyński znajduje się w środkowej części województwa mazowieckiego i należy do najbogatszych oraz najintensywniej rozwijających się powiatów w Polsce. W jego obrębie znajdują się miasta: Piaseczno, Konstancin-Jeziorna, Góra Kalwaria, Tarczyn oraz 223 wsie. Obszar o powierzchni 621 km2 przecinają liczne rzeki, m.in. Wisła, Jeziorka, Czarna, Utrata, a w ich dolinach występują łąki i torfowiska. Znaczne połacie terenu zajmują lasy, np. Chojnowskie, zaś pejzaż urozmaicają stawy, zalewy i wydmy. Warunki naturalne sprzyjają turystce i rekreacji, toteż w powiecie znajdują się liczne obiekty i kluby sportowe, tereny do jazdy konnej, kąpielisko Zalesie Górne oraz dobrze rozwinięta baza noclegowa i gastronomiczna. Dominuje niska zabudowa mieszkaniowa i usługowo-handlowa, a do obiektów zabytkowych należą m.in. Zamek w Czersku, wille i dwory. Ważne arterie to trasa E77 oraz drogi krajowe: nr 79 i nr 50. Do stolicy kursuje stąd 18 linii autobusowych warszawskiej komunikacji miejskiej.
Komunikacja
Jak wygląda komunikacja w okolicy inwestycji Osiedle Natura?
Powiat piaseczyński posiada dogodne połączenie ze stolicą dzięki 18 liniom autobusowym warszawskiej komunikacji miejskiej. W obrębie powiatu kursują również autobusy PKS, busy i pociągi, zaś do ważniejszych arterii należą: trasa europejska E77 oraz drogi krajowe: nr 50 (Tranzytowa Obwodnica Warszawy) i nr 79 (Warszawa – Kraków – Bytom).
Przyszli mieszkańcy inwestycji Osiedle Natura mogą korzystać z rozbudowanej sieci połączeń komunikacyjnych. W odległości 300 metrów od inwestycji Osiedle Natura znajduje się najbliższy punkt komunikacyjny - Tolak 01.
Sport
Bliskość terenów rekreacyjnych oraz obiektów sportowych to mocna strona tej lokalizacji. W najbliższej okolicy inwestycji Osiedle Natura w odległości 600 m znajduje się boisko / kort.
Novisa Development Sp. z o.o.
Strona internetowa inwestycjiAdres biura sprzedaży:
ul. Brzeziny 6, 03-256 WarszawaGodziny otwarcia biura sprzedaży:
- Poniedziałek: 10:00 - 18:00
- Wtorek: 10:00 - 18:00
- Środa: 10:00 - 18:00
- Czwartek: 10:00 - 18:00
- Piątek: 10:00 - 18:00
- Sobota: 10:00 - 15:00
Oferty, które mogą Cię zainteresować
Artykuły powiązane:
![[SONDA] Jakich promocji szukają klienci deweloperów?](https://thumbs.rynekpierwotny.pl/2fafa89d:9-_fZi6jnrIBq1G-4WqLMvPnymg/440x440/filters:upscale():format(jpg)/articles/gallery/image/8601/a005ae.jpg)
[SONDA] Jakich promocji szukają klienci deweloperów?
Deweloperzy kuszą promocjami, rabatami i różnymi „okazjami” dla osób szukających mieszkań. Które z nich jednak najbardziej przykuwają uwagę klientów? Największym powodzeniem wśród klientów cieszą się promocje związane przede wszystkim ceną. Są to wszelkiego rodzaju obniżki, ale także promocje w ramach...
26 czerwca 2017
Mikołaj Ostrowski
Polecane Lokalizacje
Inwestycje w pobliżu w Janczewicach
- Osiedle Młodych etap V (9 ofert)
- Osiedle Młodych etap IV (7 ofert)
- Osiedle Młodych (9 ofert)
- Osiedle Młodych etap VIII (13 ofert)
- Osiedle Młodych etap X (14 ofert)
- Osiedle Młodych etap VI (18 ofert)
- Osiedle Młodych etap IX (12 ofert)
- Osiedle Młodych etap VII (21 ofert)
- Osiedle Sfera (1 oferta)
- Osiedle Sfera etap II (85 ofert)
- Zespół willowy Zielona Polana - etap 6 (34 oferty)
- Zielone Zamienie X (96 ofert)





