piaseczyński, Janczewice, ul. Jedności
piaseczyński, Janczewice, ul. Jedności
:format(jpg)/offers/offer/17408/main_image/osiedle-mlodych_cf990b.jpg)
:format(jpg)/offers/offer/17408/main_image/osiedle-mlodych_cf990b.jpg)
1 zdjęcie
Termin oddania
1 kw. 2026
Powierzchnie
57/m2
Przedział pokoi
3
Kondygnacje
2
Budynki
3
Stand. wykończenia
Standard deweloperski
Mieszkania w inwestycji (9)
od 8 068 zł/m2
Sortuj
Przystanek Autobusowy - 69 m
Dojazd do centrum Warszawy: pokaż
W pobliżu 1 km od tej inwestycji znajdują się:
1 obiekt sportowy, 3 placówki edukacyjne, 2 place zabaw
Zdjęcia z budowy
Zobacz na jakim etapie budowy jest ta inwestycja
Udogodnienia Inwestycji
Standard i bezpieczeństwo
- Standard deweloperski
Rekreacja
- własny akwen
Przyroda w okolicy
- las
- jezioro
- rezerwat przyrody
Szczegóły inwestycji
Realizacja inwestycji:
Liczba budynków:
Liczba kondygnacji:
Liczba mieszkań:
Wysokość pomieszczeń:
Standard wykończenia
standard deweloperski
Ogrzewanie
gazowe
Rodzaj własności:
Powierzchnie dodatkowe:
Komórki lokatorskie:
Miejsca postojowe:
- miejsca postojowe naziemne : zewnętrzne (264) oraz platforma (112)
Przyroda:
Aktualna oferta
Dostępne mieszkania:
Powierzchnie mieszkań:
Liczba pokoi:
Ceny mieszkań:
- kształtują się w zakresie od 469 000 do 549 000 zł
- koszt metra kwadratowego wynosi od 8 068 do 9 566 zł
Opis płatności:
Warunki rezerwacji:
Zabezpieczenie środków klienta:
Wysokość czynszu:
Opis inwestycji
Osiedle Młodych – Woda. Zieleń. Dom
Osiedle Młodych stanowi innowacyjną ofertę mieszkaniową, adresowaną zarówno do rodzin, jak i singli, usytuowaną na południowy-wschód od Warszawy, w urokliwych Janczewicach. Jego cechą charakterystyczną jest obecność dużego stawu, który stanowi centralny punkt inwestycji, będący jednocześnie panoramą z okna dla wielu mieszkańców.
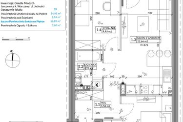
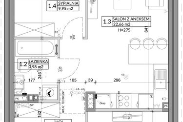
W ramach osiedla, zaplanowano 188 mieszkań o powierzchniach między 56 a 62 m2, z myślą o potrzebach gospodarstw domowych.
Lokale położone w środkowej części osiedla mają dwa wyjścia do ogrodu lub na balkon - z przestronnego salonu oraz z sypialni.
Natomiast mieszkania w pozostałych budynkach posiadają wyjście na balkon lub do ogrodu wyłącznie z salonu.
Dla każdego lokalu przewidziano dwa miejsca postojowe, dostępne na terenie osiedla - na powierzchni naziemnej lub w hali garażowej, zapewniając tym samym wygodę parkowania dla wszystkich mieszkańców.
Osiedle Młodych prezentuje zespół dwukondygnacyjnych domów szeregowych, zaprojektowanych w minimalistycznej, nowoczesnej formie z płaskimi dachami. Kolorystyka elewacji obejmuje subtelną biel oraz popielatą szarość, z niewielkimi wyróżniającymi się elementami. Fasady budynków wzbogacone są o ozdobne akcenty drewnopodobne. Konstrukcje ram okiennych, balustrady balkonów oraz schody zewnętrzne utrzymane są w klasycznych, stonowanych odcieniach szarości, co nadaje całości elegancki charakter.
Osiedle Młodych doskonale wkomponowuje się w otaczający krajobraz, współgrając harmonijnie zarówno z dużym stawem, na którym znajdują się drewniane pomosty oraz przestrzeń rekreacyjna, jak i z otaczającą przyrodą oraz roślinnością.
Spacer 3D: https://youtu.be/566OwiJCvO8?si=DSgxnSvgYyqQR3UN
Inwestycja Osiedle Młodych znajduje się w Janczewicach, ul. Jedności (3.7 km od Warszawy), jest realizowana przez Novisa Development Sp. z o.o.
Inwestycja obecnie jest w trakcie budowy z planowanym na 1 kw. 2026 roku terminem oddania do użytkowania.
Cały projekt składa się z 188 nowych mieszkań znajdujących się w 3 budynkach. Budynki posiadają 2 kondygnacje naziemne wraz z parterem oraz nie posiadają kondygnacji podziemnych.
Aktualnie w inwestycji Osiedle Młodych w sprzedaży jest 9 nowych mieszkań o powierzchni 57 metrów kwadratowych , w cenie od 8 068 zł za metr kwadratowy.
Dla przyszłych mieszkańców Osiedle Młodych deweloper przewidział:
- miejsca postojowe naziemne
Lokalizacja inwestycji
Osiedle Młodych leży w wyjątkowej lokalizacji, która łączy w sobie bliskość z naturą oraz dostęp do miejskich udogodnień, czyniąc to miejsce niezwykle atrakcyjnym dla przyszłych mieszkańców.
W odległości ok. 5-7 minut autem znajdują się przedszkola i żłobki, a niecałe 100 metrów dzieli osiedle od przystanku autobusowego Janczewice Tolak. Bliskość sklepów Carrefour Express i Biedronka ułatwia codzienne zakupy. W okolicy nie brakuje również lokali gastronomicznych.
Osiedle Młodych zapewnia również dostęp do kluczowej infrastruktury. Paczkomat znajdujący się w pobliżu umożliwia szybką i wygodną dostawę przesyłek. Dla osób preferujących aktywny wypoczynek na świeżym powietrzu, oferuje ono bliskość urokliwych terenów przyrodniczych oraz przestrzeń rekreacyjną zaplanowaną wokół dużego stawu w centralnej części osiedla.
Powiat piaseczyński znajduje się w środkowej części województwa mazowieckiego i należy do najbogatszych oraz najintensywniej rozwijających się powiatów w Polsce. W jego obrębie znajdują się miasta: Piaseczno, Konstancin-Jeziorna, Góra Kalwaria, Tarczyn oraz 223 wsie. Obszar o powierzchni 621 km2 przecinają liczne rzeki, m.in. Wisła, Jeziorka, Czarna, Utrata, a w ich dolinach występują łąki i torfowiska. Znaczne połacie terenu zajmują lasy, np. Chojnowskie, zaś pejzaż urozmaicają stawy, zalewy i wydmy. Warunki naturalne sprzyjają turystce i rekreacji, toteż w powiecie znajdują się liczne obiekty i kluby sportowe, tereny do jazdy konnej, kąpielisko Zalesie Górne oraz dobrze rozwinięta baza noclegowa i gastronomiczna. Dominuje niska zabudowa mieszkaniowa i usługowo-handlowa, a do obiektów zabytkowych należą m.in. Zamek w Czersku, wille i dwory. Ważne arterie to trasa E77 oraz drogi krajowe: nr 79 i nr 50. Do stolicy kursuje stąd 18 linii autobusowych warszawskiej komunikacji miejskiej.
Komunikacja
Jak wygląda komunikacja w okolicy inwestycji Osiedle Młodych?
Powiat piaseczyński posiada dogodne połączenie ze stolicą dzięki 18 liniom autobusowym warszawskiej komunikacji miejskiej. W obrębie powiatu kursują również autobusy PKS, busy i pociągi, zaś do ważniejszych arterii należą: trasa europejska E77 oraz drogi krajowe: nr 50 (Tranzytowa Obwodnica Warszawy) i nr 79 (Warszawa – Kraków – Bytom).
Przyszli mieszkańcy inwestycji Osiedle Młodych mogą korzystać z rozbudowanej sieci połączeń komunikacyjnych. W odległości 100 metrów od inwestycji Osiedle Młodych znajduje się najbliższy punkt komunikacyjny - Tolak 02.
Edukacja
Czy w pobliżu inwestycji Osiedle Młodych znajdują się szkoły/przedszkola?
Mieszkańcy mogą korzystać z bogatej oferty edukacyjnej. W najbliższej okolicy inwestycji Osiedle Młodych znajdują się 3 placówki edukacyjne. Najbliżej położone to: Przedszkole Niepubliczne Stokrotka Maja Sowińska w odległości 900 m.
Sport
Bliskość terenów rekreacyjnych oraz obiektów sportowych to mocna strona tej lokalizacji. W najbliższej okolicy inwestycji Osiedle Młodych w odległości 600 m znajduje się boisko / kort.
Novisa Development Sp. z o.o.
Strona internetowa inwestycjiAdres biura sprzedaży:
ul. Brzeziny 6, BiałołękaGodziny otwarcia biura sprzedaży:
- Poniedziałek: 10:00 - 18:00
- Wtorek: 10:00 - 18:00
- Środa: 10:00 - 18:00
- Czwartek: 10:00 - 18:00
- Piątek: 10:00 - 18:00
- Sobota: 10:00 - 15:00
Oferty, które mogą Cię zainteresować
Artykuły powiązane:
![[SONDA] Jakich promocji szukają klienci deweloperów?](https://thumbs.rynekpierwotny.pl/2fafa89d:9-_fZi6jnrIBq1G-4WqLMvPnymg/440x440/filters:upscale():format(jpg)/articles/gallery/image/8601/a005ae.jpg)
[SONDA] Jakich promocji szukają klienci deweloperów?
Deweloperzy kuszą promocjami, rabatami i różnymi „okazjami” dla osób szukających mieszkań. Które z nich jednak najbardziej przykuwają uwagę klientów? Największym powodzeniem wśród klientów cieszą się promocje związane przede wszystkim ceną. Są to wszelkiego rodzaju obniżki, ale także promocje w ramach...
26 czerwca 2017
Mikołaj Ostrowski
Polecane Lokalizacje
Inwestycje w pobliżu w Janczewicach
- Osiedle Młodych etap IV (7 ofert)
- Osiedle Młodych etap V (9 ofert)
- Osiedle Młodych etap X (14 ofert)
- Osiedle Młodych etap IX (12 ofert)
- Osiedle Młodych etap VI (18 ofert)
- Osiedle Młodych etap VIII (12 ofert)
- Osiedle Młodych etap VII (20 ofert)
- Osiedle Natura (1 oferta)
- Osiedle Sfera (1 oferta)
- Osiedle Sfera etap II (80 ofert)
- Zespół willowy Zielona Polana - etap 6 (31 ofert)
- Zielone Zamienie X (96 ofert)





