Mieszkanie na sprzedaż 3 pokoje o powierzchni 54,95 m² numer 64B
Rezerwacja
Inwestycja:
Osiedle Młodych etap XDeweloper:
Novisa Development Sp. z o.o.
Inwestycja:
Osiedle Młodych etap XDeweloper:
Novisa Development Sp. z o.o.piaseczyński, Janczewice, ul. Jedności
piaseczyński, Janczewice, ul. Jedności
Promocje
Nieruchomość bez wkładu własnego
Wybrane mieszkania w tej inwestycji możesz kupić bez wkładu własnego!
Skontaktuj się z naszym biurem sprzedaży i doradcą kredytowym.
Termin oddania
3 kw. 2026
Ilość pokoi
3 pokoje
Metraż
54,95 m²
Piętro
1 piętro
Powierzchnie dodatkowe
Balkon
Kuchnia
otwarta kuchnia
Wysokość pomieszczeń
od 260 do 280 cm wysokości
Ilość poziomów
1 poziom
Oznaczenie oferty
64B

Raport o deweloperze
Poznaj dewelopera bliżej! Pobierz raport, w którym znajdziesz kluczowe informacje o firmie, jej doświadczeniu, nagrodach oraz aktualnych i zrealizowanych inwestycjach.
Budynek i otoczenie
Miejsca postojowe | |
|---|---|
Standard wykończenia | standard deweloperski Ogrzewanie gazowe |
Realizacja inwestycji | rozpoczęcie budowy w 1 kw. 2025 roku, planowane oddanie do użytkowania w 3 kw. 2026 roku |
Udogodnienia | własny akwen |
Przyroda | w okolicy inwestycji znajduje się las, jezioro, rezerwat przyrody |
Charakterystyka energetyczna nieruchomości | informacja u dewelopera |
Rezerwacja i finanse
Rodzaj własności | Odrębna własność z własnością gruntu |
|---|---|
Wysokość czynszu | informacja u dewelopera |
Warunki rezerwacji | bezpłatna rezerwacja ustna na okres 3 dni roboczych |
Zabezpieczenie środków | Otwarty mieszkaniowy rachunek powierniczy |
Zdjęcia z budowy
Zobacz na jakim etapie budowy jest ta inwestycja
Lokalizacja inwestycji
Przystanek Autobusowy - 117 m
Dojazd do centrum Warszawy: pokaż
W pobliżu 1 km od tej inwestycji znajdują się:
1 obiekt sportowy, 2 placówki edukacyjne, 2 place zabaw
Przeczytaj więcej o lokalizacji
Powiat piaseczyński znajduje się w środkowej części województwa mazowieckiego i należy do najbogatszych oraz najintensywniej rozwijających się powiatów w Polsce. W jego obrębie znajdują się miasta: Piaseczno, Konstancin-Jeziorna, Góra Kalwaria, Tarczyn oraz 223 wsie. Obszar o powierzchni 621 km2 przecinają liczne rzeki, m.in. Wisła, Jeziorka, Czarna, Utrata, a w ich dolinach występują łąki i torfowiska. Znaczne połacie terenu zajmują lasy, np. Chojnowskie, zaś pejzaż urozmaicają stawy, zalewy i wydmy. Warunki naturalne sprzyjają turystce i rekreacji, toteż w powiecie znajdują się liczne obiekty i kluby sportowe, tereny do jazdy konnej, kąpielisko Zalesie Górne oraz dobrze rozwinięta baza noclegowa i gastronomiczna. Dominuje niska zabudowa mieszkaniowa i usługowo-handlowa, a do obiektów zabytkowych należą m.in. Zamek w Czersku, wille i dwory. Ważne arterie to trasa E77 oraz drogi krajowe: nr 79 i nr 50. Do stolicy kursuje stąd 18 linii autobusowych warszawskiej komunikacji miejskiej.
Opis oferty
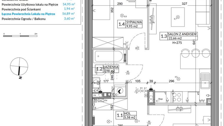
Trzypokojowe mieszkanie 55-metrowe z aneksem kuchennym to idealna opcja dla rodziny z dzieckiem. Salon z balkonem o ekspozycji południowej jest doskonały dla miłośników słońca i nagrzanych pomieszczeń, a pomieszczenie obok z powodzeniem można zaaranżować na miejsce do pracy lub dla dziecka. Północny pokój z dużym oknem, po przeciwnej stronie mieszkania, idealnie sprawdzi się jako sypialnia. W mieszkaniu jest także przestronny hall z miejscem na szafę oraz łazienka.
Nowe 3-pokojowe mieszkanie na sprzedaż o powierzchni 54,95 m² znajduje się w nowo budowanej inwestycji deweloperskiej Osiedle Młodych etap X w Janczewicach, ul. Jedności (3.6 km od Warszawy).
Inwestycja jest realizowana przez Novisa Development Sp. z o.o.
Cała inwestycja składa się z 1 budynku, w którym łącznie znajduje się 16 nowych mieszkań.
Na sprzedaż pozostaje 10 ofert o powierzchni 55 m².
W budynku są 2 kondygnacje naziemne. Budynek nie posiada kondygnacji podziemnych.
Inwestycja Osiedle Młodych etap X jest w trakcie budowy z planowanym na 3 kw. 2026 roku terminem oddania do użytkowania.
Nowe mieszkanie o oznaczeniu 64B znajduje się na 1 piętrze i jest 1-poziomowe. Pomieszczenia mają od 260 do 280 centymetrów wysokości. W mieszkaniu znajdują się 3 pokoje.
Dla przyszłych mieszkańców Osiedle Młodych etap X deweloper przewidział miejsca postojowe naziemne.
Dzięki temu przyszli właściciele nie będą musieli poszukiwać wolnej przestrzeni parkingowej.
Opis Inwestycji
Kameralny budynek
Pow. dodatkowe
Osiedle Młodych w Janczewicach – rozsądna alternatywa dla drożejących mieszkań w stolicy
Osiedle Młodych w Janczewicach to świetna opcja dla osób, które mają dość rosnących cen mieszkań w Warszawie, ale nadal chcą mieszkać blisko miasta i mieć wygodny dojazd do pracy. To propozycja idealna na start, bez kompromisów w kwestii komfortu życia. Inwestycja znajduje się zaledwie 4 km od granicy Warszawy, w gminie Lesznowola, pomiędzy trasami S7 i S8, co pozwala szybko dostać się zarówno do stolicy, jak i w kierunku południowej czy zachodniej Polski.
Na osiedlu powstają 3-pokojowe mieszkania w zabudowie szeregowej – z salonem z aneksem kuchennym i dwiema sypialniami. Do wyboru są lokale na parterze z ogródkiem albo na piętrze z balkonem, więc łatwo dopasować przestrzeń do swojego stylu życia. Dużym plusem jest to, że do każdego mieszkania przysługują dwa miejsca postojowe – w garażu naziemnym lub tuż przy budynku, co naprawdę ułatwia codzienne funkcjonowanie.
Jednym z największych atutów osiedla jest jego klimat i przestrzeń wspólna. Na terenie inwestycji znajduje się staw, wokół którego powstaje strefa rekreacyjna z molo. To idealne miejsce na spacer, chwilę oddechu po pracy czy spędzanie czasu z dziećmi. Zieleń nie jest tu przypadkowa – cały teren został zaprojektowany przez doświadczonego architekta krajobrazu, dzięki czemu wszystko tworzy spójną i przyjemną dla oka przestrzeń.
Okolica sprzyja spokojnemu życiu. Wokół dominuje niska zabudowa, są łąki, pola i dużo przestrzeni. W pobliżu znajduje się także Osiedle Natura – inwestycja tego samego dewelopera, utrzymana w podobnym, kameralnym charakterze. To miejsce dla osób, które chcą zwolnić tempo, odpocząć od miejskiego hałasu i stworzyć wygodne miejsce do życia dla siebie i swojej rodziny.
Jednocześnie nie brakuje tu wygody na co dzień. W kilka minut można dojechać do Centrum Handlowego Janki, gdzie znajdziesz praktycznie wszystko – od IKEA, przez kino i restauracje, po siłownię i drogerie czy apteki. Na szybkie zakupy można podjechać do pobliskiej Biedronki – wystarczą 4 minuty autem. Dla rodzin ważna będzie też bliskość przedszkoli – najbliższe jest w odległości około 900 metrów, a kolejne znajdują się w odległości kilku minut autem. Tuż przy osiedlu, około 100 metrów dalej, jest przystanek autobusowy Tolak, z którego kursuje autobus L-1, dojeżdżający do Janek.
Ważną kwestią jest też niski czynsz administracyjny, który wynosi niecałe 3 zł za m², co przekłada się na około 200 zł miesięcznie za całe mieszkanie. Dodatkowo nowoczesne budownictwo i układ segmentów dają realne możliwości na znacznie niższe rachunki.
Inwestycję realizuje Novisa Development – lider w budownictwie jednorodzinnym w Polsce i autor znanych osiedli segmentów pod Warszawą, w tym jednej z największych tego typu inwestycji w regionie. Firma posiada wieloletnie doświadczenie i działa w oparciu o autorski Zintegrowany Proces Budowy, który zapewnia powtarzalną jakość i dopracowanie każdego etapu inwestycji. Wszystko realizowane jest wewnętrznie – od projektu, przez budowę, aż po sprzedaż i obsługę klienta – bez przerzucania odpowiedzialności. Dzięki temu mieszkańcy mogą liczyć nie tylko na sprawny proces zakupu, ale też realne wsparcie po odbiorze mieszkania.
Osiedle Młodych w Janczewicach to połączenie dobrej ceny, świetnej lokalizacji i spokojnego otoczenia. To idealne miejsce dla osób, które chcą mieszkać blisko Warszawy, ale żyć trochę wolniej – bliżej natury i z większym komfortem na co dzień.
Mieszkanie znajduje się w inwestycji Osiedle Młodych etap X, w której znajduje się w sprzedaży jeszcze 12 podobnych nowych mieszkań.
Novisa Development Sp. z o.o.
Strona internetowa inwestycjiAdres biura sprzedaży:
ul. Brzeziny 6, BiałołękaGodziny otwarcia biura sprzedaży:
- Poniedziałek: 10:00 - 18:00
- Wtorek: 10:00 - 18:00
- Środa: 10:00 - 18:00
- Czwartek: 10:00 - 18:00
- Piątek: 10:00 - 18:00
- Sobota: 10:00 - 15:00
Artykuły powiązane:
![[SONDA] Jakich promocji szukają klienci deweloperów?](https://thumbs.rynekpierwotny.pl/2fafa89d:9-_fZi6jnrIBq1G-4WqLMvPnymg/440x440/filters:upscale():format(jpg)/articles/gallery/image/8601/a005ae.jpg)
Deweloperzy zdradzają, jakimi promocjami interesują się ich klienci
17 maja 2026
Mikołaj Ostrowski





