Mieszkanie na sprzedaż 3 pokoje o powierzchni 55,24 m² numer 57A
Inwestycja:
Osiedle Młodych etap IXDeweloper:
Novisa Development Sp. z o.o.
Inwestycja:
Osiedle Młodych etap IXDeweloper:
Novisa Development Sp. z o.o.piaseczyński, Janczewice, ul. Jedności
piaseczyński, Janczewice, ul. Jedności
Promocje
Nieruchomość bez wkładu własnego
Wybrane mieszkania w tej inwestycji możesz kupić bez wkładu własnego!
Skontaktuj się z naszym biurem sprzedaży i doradcą kredytowym.
Termin oddania
3 kw. 2026
Ilość pokoi
3 pokoje
Metraż
55,24 m²
Piętro
Parter
Powierzchnie dodatkowe
Ogródek
Kuchnia
otwarta kuchnia
Wysokość pomieszczeń
od 260 do 280 cm wysokości
Ilość poziomów
1 poziom
Oznaczenie oferty
57A

Raport o deweloperze
Poznaj dewelopera bliżej! Pobierz raport, w którym znajdziesz kluczowe informacje o firmie, jej doświadczeniu, nagrodach oraz aktualnych i zrealizowanych inwestycjach.
Budynek i otoczenie
Miejsca postojowe | |
|---|---|
Standard wykończenia | standard deweloperski Ogrzewanie gazowe |
Realizacja inwestycji | rozpoczęcie budowy w 1 kw. 2025 roku, planowane oddanie do użytkowania w 3 kw. 2026 roku |
Udogodnienia | własny akwen |
Przyroda | w okolicy inwestycji znajduje się las, jezioro, rezerwat przyrody |
Charakterystyka energetyczna nieruchomości | informacja u dewelopera |
Rezerwacja i finanse
Rodzaj własności | Odrębna własność z własnością gruntu |
|---|---|
Wysokość czynszu | informacja u dewelopera |
Warunki rezerwacji | bezpłatna rezerwacja ustna na okres 3 dni roboczych |
Zabezpieczenie środków | Otwarty mieszkaniowy rachunek powierniczy |
Zdjęcia z budowy
Zobacz na jakim etapie budowy jest ta inwestycja
Lokalizacja inwestycji
Przystanek Autobusowy - 141 m
Dojazd do centrum Warszawy: pokaż
W pobliżu 1 km od tej inwestycji znajdują się:
1 obiekt sportowy, 3 placówki edukacyjne, 2 place zabaw
Przeczytaj więcej o lokalizacji
Powiat piaseczyński znajduje się w środkowej części województwa mazowieckiego i należy do najbogatszych oraz najintensywniej rozwijających się powiatów w Polsce. W jego obrębie znajdują się miasta: Piaseczno, Konstancin-Jeziorna, Góra Kalwaria, Tarczyn oraz 223 wsie. Obszar o powierzchni 621 km2 przecinają liczne rzeki, m.in. Wisła, Jeziorka, Czarna, Utrata, a w ich dolinach występują łąki i torfowiska. Znaczne połacie terenu zajmują lasy, np. Chojnowskie, zaś pejzaż urozmaicają stawy, zalewy i wydmy. Warunki naturalne sprzyjają turystce i rekreacji, toteż w powiecie znajdują się liczne obiekty i kluby sportowe, tereny do jazdy konnej, kąpielisko Zalesie Górne oraz dobrze rozwinięta baza noclegowa i gastronomiczna. Dominuje niska zabudowa mieszkaniowa i usługowo-handlowa, a do obiektów zabytkowych należą m.in. Zamek w Czersku, wille i dwory. Ważne arterie to trasa E77 oraz drogi krajowe: nr 79 i nr 50. Do stolicy kursuje stąd 18 linii autobusowych warszawskiej komunikacji miejskiej.
Opis oferty
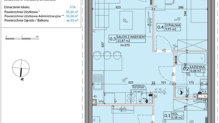
Ten 55-metrowy lokal parterowy z kameralnym ogródkiem został zaprojektowany z myślą o rodzinie. Ogród przez większość dnia jest oświetlany przez słońce. Wyjście do niego jest bezpośrednio z jasnego, przestronnego salonu z aneksem kuchennym. Drugą sypialnię, zwróconą w tę samą stronę co salon, warto zaaranżować na pokój dziecięcy lub miejsce do pracy. Natomiast trzeci pokój ma ekspozycję północną. W mieszkaniu znajduje się również przestronny hall z miejscem na szafę oraz wygodna łazienka.
Nowe 3-pokojowe mieszkanie na sprzedaż o powierzchni 55,24 m² znajduje się w nowo budowanej inwestycji deweloperskiej Osiedle Młodych etap IX w Janczewicach, ul. Jedności (3.6 km od Warszawy).
Inwestycja jest realizowana przez Novisa Development Sp. z o.o.
Cała inwestycja składa się z 1 budynku, w którym łącznie znajduje się 12 nowych mieszkań.
Na sprzedaż pozostaje 7 ofert o powierzchni 55 m².
W budynku są 2 kondygnacje naziemne. Budynek nie posiada kondygnacji podziemnych.
Inwestycja Osiedle Młodych etap IX jest w trakcie budowy z planowanym na 3 kw. 2026 roku terminem oddania do użytkowania.
Nowe mieszkanie o oznaczeniu 57A znajduje się na parterze i jest 1-poziomowe. Pomieszczenia mają od 260 do 280 centymetrów wysokości. W mieszkaniu znajdują się 3 pokoje.
Dla przyszłych mieszkańców Osiedle Młodych etap IX deweloper przewidział miejsca postojowe naziemne.
Dzięki temu przyszli właściciele nie będą musieli poszukiwać wolnej przestrzeni parkingowej.
Opis Inwestycji
Kameralny budynek
Pow. dodatkowe
Osiedle Młodych w Janczewicach – rozsądna alternatywa dla drożejących mieszkań w stolicy
Osiedle Młodych w Janczewicach to świetna opcja dla osób, które mają dość rosnących cen mieszkań w Warszawie, ale nadal chcą mieszkać blisko miasta i mieć wygodny dojazd do pracy. To propozycja idealna na start, bez kompromisów w kwestii komfortu życia. Inwestycja znajduje się zaledwie 4 km od granicy Warszawy, w gminie Lesznowola, pomiędzy trasami S7 i S8, co pozwala szybko dostać się zarówno do stolicy, jak i w kierunku południowej czy zachodniej Polski.
Na osiedlu powstają 3-pokojowe mieszkania w zabudowie szeregowej – z salonem z aneksem kuchennym i dwiema sypialniami. Do wyboru są lokale na parterze z ogródkiem albo na piętrze z balkonem, więc łatwo dopasować przestrzeń do swojego stylu życia. Dużym plusem jest to, że do każdego mieszkania przysługują dwa miejsca postojowe – w garażu naziemnym lub tuż przy budynku, co naprawdę ułatwia codzienne funkcjonowanie.
Jednym z największych atutów osiedla jest jego klimat i przestrzeń wspólna. Na terenie inwestycji znajduje się staw, wokół którego powstaje strefa rekreacyjna z molo. To idealne miejsce na spacer, chwilę oddechu po pracy czy spędzanie czasu z dziećmi. Zieleń nie jest tu przypadkowa – cały teren został zaprojektowany przez doświadczonego architekta krajobrazu, dzięki czemu wszystko tworzy spójną i przyjemną dla oka przestrzeń.
Okolica sprzyja spokojnemu życiu. Wokół dominuje niska zabudowa, są łąki, pola i dużo przestrzeni. W pobliżu znajduje się także Osiedle Natura – inwestycja tego samego dewelopera, utrzymana w podobnym, kameralnym charakterze. To miejsce dla osób, które chcą zwolnić tempo, odpocząć od miejskiego hałasu i stworzyć wygodne miejsce do życia dla siebie i swojej rodziny.
Jednocześnie nie brakuje tu wygody na co dzień. W kilka minut można dojechać do Centrum Handlowego Janki, gdzie znajdziesz praktycznie wszystko – od IKEA, przez kino i restauracje, po siłownię i drogerie czy apteki. Na szybkie zakupy można podjechać do pobliskiej Biedronki – wystarczą 4 minuty autem. Dla rodzin ważna będzie też bliskość przedszkoli – najbliższe jest w odległości około 900 metrów, a kolejne znajdują się w odległości kilku minut autem. Tuż przy osiedlu, około 100 metrów dalej, jest przystanek autobusowy Tolak, z którego kursuje autobus L-1, dojeżdżający do Janek.
Ważną kwestią jest też niski czynsz administracyjny, który wynosi niecałe 3 zł za m², co przekłada się na około 200 zł miesięcznie za całe mieszkanie. Dodatkowo nowoczesne budownictwo i układ segmentów dają realne możliwości na znacznie niższe rachunki.
Inwestycję realizuje Novisa Development – lider w budownictwie jednorodzinnym w Polsce i autor znanych osiedli segmentów pod Warszawą, w tym jednej z największych tego typu inwestycji w regionie. Firma posiada wieloletnie doświadczenie i działa w oparciu o autorski Zintegrowany Proces Budowy, który zapewnia powtarzalną jakość i dopracowanie każdego etapu inwestycji. Wszystko realizowane jest wewnętrznie – od projektu, przez budowę, aż po sprzedaż i obsługę klienta – bez przerzucania odpowiedzialności. Dzięki temu mieszkańcy mogą liczyć nie tylko na sprawny proces zakupu, ale też realne wsparcie po odbiorze mieszkania.
Osiedle Młodych w Janczewicach to połączenie dobrej ceny, świetnej lokalizacji i spokojnego otoczenia. To idealne miejsce dla osób, które chcą mieszkać blisko Warszawy, ale żyć trochę wolniej – bliżej natury i z większym komfortem na co dzień.
Mieszkanie znajduje się w inwestycji Osiedle Młodych etap IX, w której znajduje się w sprzedaży jeszcze 10 podobnych nowych mieszkań.
Novisa Development Sp. z o.o.
Strona internetowa inwestycjiAdres biura sprzedaży:
ul. Brzeziny 6, BiałołękaGodziny otwarcia biura sprzedaży:
- Poniedziałek: 10:00 - 18:00
- Wtorek: 10:00 - 18:00
- Środa: 10:00 - 18:00
- Czwartek: 10:00 - 18:00
- Piątek: 10:00 - 18:00
- Sobota: 10:00 - 15:00
Artykuły powiązane:
![[SONDA] Jakich promocji szukają klienci deweloperów?](https://thumbs.rynekpierwotny.pl/2fafa89d:9-_fZi6jnrIBq1G-4WqLMvPnymg/440x440/filters:upscale():format(jpg)/articles/gallery/image/8601/a005ae.jpg)
[SONDA] Jakich promocji szukają klienci deweloperów?
Deweloperzy kuszą promocjami, rabatami i różnymi „okazjami” dla osób szukających mieszkań. Które z nich jednak najbardziej przykuwają uwagę klientów? Największym powodzeniem wśród klientów cieszą się promocje związane przede wszystkim ceną. Są to wszelkiego rodzaju obniżki, ale także promocje w ramach...
26 czerwca 2017
Mikołaj Ostrowski





