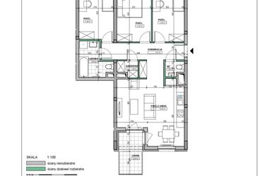
Mieszkanie na sprzedaż 4 pokoje o powierzchni 79,8 m² numer A38
Oferta archiwalna
Inwestycja:
Osiedle PerłoweDeweloper:
Novdom Sp. z o.o.
Inwestycja:
Osiedle PerłoweDeweloper:
Novdom Sp. z o.o.Ciechanów, ul. Witosa
Ciechanów, ul. Witosa
Nieruchomość została sprzedana
Zobacz pozostałe mieszkania w inwestycji Osiedle Perłowe lub inne propozycje w Ciechanowie
Termin oddania
Gotowe
Ilość pokoi
4 pokoje
Metraż
79,8 m²
Piętro
3 piętro
Powierzchnie dodatkowe
Balkon, Loggia
Wysokość pomieszczeń
od 260 do 280 cm wysokości
Ilość poziomów
1 poziom
Oznaczenie oferty
A38

Raport o deweloperze
Poznaj dewelopera bliżej! Pobierz raport, w którym znajdziesz kluczowe informacje o firmie, jej doświadczeniu, nagrodach oraz aktualnych i zrealizowanych inwestycjach.
Budynek i otoczenie
Miejsca postojowe | |
|---|---|
Komórki lokatorskie | dostępne: na poziomie -1, na piętrach, w formie komórek lokatorskich lub pomieszczeń na jednoślad |
Standard wykończenia | standard deweloperski |
Realizacja inwestycji | rozpoczęcie budowy w 2 kw. 2017 roku, inwestycja została oddana do użytkowania w 2 kw. 2020 roku |
Udogodnienia | plac zabaw, monitoring, teren ogrodzony, winda, siłownia plenerowa |
Przyroda | informacja u dewelopera |
Charakterystyka energetyczna nieruchomości | informacja u dewelopera |
Rezerwacja i finanse
Rodzaj własności | Odrębna własność z własnością gruntu |
|---|---|
Wysokość czynszu | informacja u dewelopera |
Warunki rezerwacji | Pierwszym krokiem w kierunku zakupu mieszkania jest 7-dniowa rezerwacja słowna (bezpłatna)
Możesz dokonać jej osobiście w biurze sprzedaży, telefonicznie lub za pośrednictwem poczty elektronicznej @
Klienci, którzy chcą z kredytu hipotecznego, mają możliwość podpisania umowy rezerwacyjnej na okres 35 dni. To odpowiedni okres, aby uzyskać decyzję kredytową |
Zabezpieczenie środków | Informacja u dewelopera |
Lokalizacja inwestycji
Przeczytaj więcej o lokalizacji
Osiedle Perłowe to wyjątkowy kompleks mieszkaniowy w obszarze śródmieścia, przy ul. Wincentego Witosa. Dzięki położeniu obiektu w spokojnej okolicy, która dodatkowo jest doskonale skomunikowana z każdą częścią miasta, mieszkańcy zyskają zapewnienie komfortu i wygody. Pobliskie punkty komunikacyjne z pewnością ułatwią przemieszczanie się do wybranych punktów miasta, a okoliczne sklepy zapewnią łatwość i szybkość dokonywania zakupów.
Ciechanów to miasto znajdujące się w województwie mazowieckim, będące siedzibą powiatu ciechanowskiego. Jest ośrodkiem przemysłu przetwórczego i precyzyjnego.
Opis oferty
Nowe 4-pokojowe mieszkanie na sprzedaż o powierzchni 79,8 m² znajduje się w nowo budowanej inwestycji deweloperskiej Osiedle Perłowe w Ciechanowie, ul. Witosa (0.8 km od centrum Ciechanowa).
Inwestycja jest realizowana przez Novdom Sp. z o.o.
Cała inwestycja składa się z 2 budynków, w których łącznie znajdują się 184 nowe mieszkania.
Inwestycja jest już wyprzedana.
W budynkach jest od 5 do 6 kondygnacji naziemnych oraz 1 kondygnacja podziemna.
Inwestycja Osiedle Perłowe została wybudowana i oddana do użytkowania w 2 kw. 2020 roku.
Nowe mieszkanie o oznaczeniu A38 znajduje się na 3 piętrze i jest 1-poziomowe. Pomieszczenia mają od 260 do 280 centymetrów wysokości. W mieszkaniu znajdują się 4 pokoje.
Dla przyszłych mieszkańców Osiedle Perłowe deweloper przewidział miejsca postojowe podziemne, miejsca postojowe naziemne.
Dzięki temu przyszli właściciele nie będą musieli poszukiwać wolnej przestrzeni parkingowej. Dodatkowo, miejsce postojowe w garażu podziemnym zabezpiecza przed niekorzystnymi warunkami atmosferycznymi.
Opis Inwestycji
Tereny zielone
Pow. dodatkowe
Wyobraź sobie wyjątkowy kompleks mieszkaniowy, realizowany w sercu śródmieścia - przy ul. Wincentego Witosa.
To właśnie Osiedle Perłowe!
Dzięki usytuowaniu inwestycji w spokojnej okolicy, która dodatkowo jest doskonale skomunikowana z każdą częścią miasta, możesz liczyć na najwyższy komfort mieszkania w tym miejscu.
Inwestycja składa się z szeregu stylowych apartamentów o bogatych wnętrzach, zastosowano w niej wiele ciekawych rozwiązań, abyś mógł cieszyć się niczym nieograniczoną przestrzenią.
Motyw przewodni osiedla to perła, która ozdabia elewacje budynków i wnętrza klatek schodowych tworząc wyszukany, elegancki styl.
To jeszcze nie wszystkie atuty tego miejsca! O Twoje bezpieczeństwo zadba osiedlowy monitoring, oraz solidne ogrodzenie z kontrolą dostępu. Budynki wyposażone są także w wygodne hale garażowe i cichobieżne windy, zapewniające wygodę mieszkańcom. W południowej części osiedla znajdziesz z kolei plac zabaw dla najmłodszych i siłownię na powietrzu.
Osiedle Perłowe to idealne miejsce dla Ciebie, jeśli cenisz bezpieczne rozwiązania, niebanalny styl i wysoki standard!
Mieszkanie znajduje się w inwestycji Osiedle Perłowe.





