Apartament na sprzedaż 4 pokoje o powierzchni 79,28 m² numer M24
Inwestycja:
Villa Terra
Inwestycja:
Villa TerraPolanica-Zdrój, ul. Mickiewicza 2C
Polanica-Zdrój, ul. Mickiewicza 2C
Promocje
Promocja
Zainwestuj i wypoczywaj za darmo od zaraz - kup apartament w Polanicy-Zdroju z pobytem inwestorskim w pakiecie!
Kup apartament w inwestycji VILLA TERRA i skorzystaj z darmowego 14-dniowego pobytu w MOIM MIEJSCU Polanica-Zdrój. Masz czas, aby go wykorzystać od zaraz (od momentu podpisania umowy z deweloperem) aż do odbioru gotowego apartamentu.
Termin oddania
3 kw. 2026
Ilość pokoi
4 pokoje
Metraż
79,28 m²
Piętro
3 piętro
Strona świata
zachód, północ
Powierzchnie dodatkowe
Balkon
Kuchnia
otwarta kuchnia
Wysokość pomieszczeń
od 260 do 280 cm wysokości
Ilość poziomów
1 poziom
Oznaczenie oferty
M24

Raport o deweloperze
Poznaj dewelopera bliżej! Pobierz raport, w którym znajdziesz kluczowe informacje o firmie, jej doświadczeniu, nagrodach oraz aktualnych i zrealizowanych inwestycjach.
Budynek i otoczenie
Miejsca postojowe | |
|---|---|
Standard wykończenia | standard deweloperski |
Realizacja inwestycji | rozpoczęcie budowy w 4 kw. 2024 roku, planowane oddanie do użytkowania w 3 kw. 2026 roku |
Udogodnienia | informacja u dewelopera |
Przyroda | informacja u dewelopera |
Charakterystyka energetyczna nieruchomości | informacja u dewelopera |
Rezerwacja i finanse
Rodzaj własności | Odrębna własność z własnością gruntu |
|---|---|
Wysokość czynszu | informacja u dewelopera |
Warunki rezerwacji | Informacja u dewelopera |
Zabezpieczenie środków | Informacja u dewelopera |
Zdjęcia z budowy
Zobacz na jakim etapie budowy jest ta inwestycja
Lokalizacja inwestycji
Stacja kolejowa - Polanica-Zdrój - 2254 m
Przystanek Autobusowy - 452 m
Dojazd do centrum Kłodzka: pokaż
W pobliżu 1 km od tej inwestycji znajdują się:
5 kawiarni i restauracji, 3 sklepy, 11 obiektów sportowych, 2 placówki medyczne, 5 placówek edukacyjnych
Przeczytaj więcej o lokalizacji
Polanica-Zdrój położona jest w województwie dolnośląskim. Leży w centralnej części Kotliny Kłodzkiej. Jest słynnym na całą Polskę miasteczkiem uzdrowiskowym. Nietypowy układ miasta nie jest żadną przeszkodą zarówno dla mieszkańców, jak i turystów, a nawet uznawany jest za jego duży atut. Polanica-Zdrój nie posiada klasycznego rynku, a w samym centrum znajduje się Park Zdrojowy, wokół którego rozbudowała się miejscowość. Położenie w malowniczej dolinie Bystrzycy Dusznickiej przyciąga każdego roku coraz więcej osób. Ponadto warto wspomnieć, że w okolicy łącznie znajduje się ok. 100 km szlaków turystycznych.
Opis oferty
Nowy 4-pokojowy apartament na sprzedaż o powierzchni 79,28 m² znajduje się w nowo budowanej inwestycji deweloperskiej Villa Terra w Polanicy-Zdroju, ul. Mickiewicza 2C (6.5 km od Kłodzka).
Inwestycja jest realizowana przez Moje Miejsce Villa Terra Sp. z o.o. Sp. k.
Cała inwestycja składa się z 1 budynku, w którym łącznie znajdują się 24 nowe apartamenty.
Na sprzedaż pozostaje 8 ofert o powierzchni od 44 do 82 m².
W budynku są 4 kondygnacje naziemne oraz 1 kondygnacja podziemna.
Inwestycja Villa Terra jest w trakcie budowy z planowanym na 3 kw. 2026 roku terminem oddania do użytkowania.
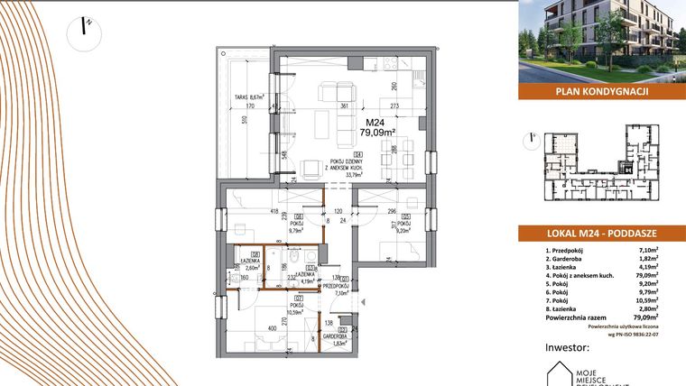
Nowy apartament o oznaczeniu M24 znajduje się na 3 piętrze i jest 1-poziomowy. Pomieszczenia mają od 260 do 280 centymetrów wysokości. W apartamencie znajdują się 4 pokoje.
Okna w apartamencie wychodzą na zachód, północ.
Północna ekspozycja to idealny wybór dla osób ceniących przytulne i klimatyczne wnętrza. Delikatne, rozproszone światło sprzyja harmonii i stwarza doskonałe warunki do relaksu lub pracy. Okna na północ zapewnią równomierne oświetlenie przez cały dzień.
Zachodnia ekspozycja to gwarancja intensywnego popołudniowego światła, które nadaje wnętrzom przytulności i ciepła. Idealne dla miłośników słonecznych wieczorów, którzy pragną cieszyć się pięknymi zachodami słońca we własnym domu. Zachodnie światło podkreśla kolory i faktury w aranżacji wnętrz, tworząc atmosferę sprzyjającą relaksowi po długim dniu.
Dla przyszłych mieszkańców Villa Terra deweloper przewidział miejsca postojowe podziemne.
Dzięki temu przyszli właściciele nie będą musieli poszukiwać wolnej przestrzeni parkingowej. Dodatkowo, miejsce postojowe w garażu podziemnym zabezpiecza przed niekorzystnymi warunkami atmosferycznymi.
Apartament znajduje się w inwestycji Villa Terra, w której znajdują się w sprzedaży jeszcze 2 podobne nowe apartamenty.
Moje Miejsce Villa Terra Sp. z o.o. Sp. k.
Strona internetowa inwestycjiAdres biura sprzedaży:
ul. Mickiewicza 2C, 57-320 Polanica ZdrójGodziny otwarcia biura sprzedaży:
- Poniedziałek: 09:00 - 18:00
- Wtorek: 09:00 - 18:00
- Środa: 09:00 - 18:00
- Czwartek: 09:00 - 18:00
- Piątek: 09:00 - 18:00





