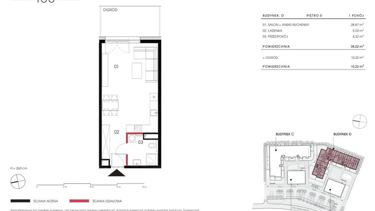
Mieszkanie na sprzedaż 1 pokój o powierzchni 38,22 m² numer D 0.08
Inwestycja:
Naramowicka 100Deweloper:
MJ Deweloper
Inwestycja:
Naramowicka 100Deweloper:
MJ DeweloperPoznań, Stare Miasto, Stare Winogrady, ul. Naramowicka 100
Poznań, Stare Miasto, Stare Winogrady, ul. Naramowicka 100
Promocje
Nieruchomość bez wkładu własnego
Wybrane mieszkania w tej inwestycji kupisz bez wkładu własnego
Szczegóły dostępne w biurze sprzedaży
Promocja
Sprawdź mieszkania z oferty specjalnej! Kawalerka w rozmiarze XL 35-38 m2 już od 414 tys. zł!
*Oferta obowiązuje do 31.05.2026 r. Promocje nie łączą się i dotyczą wybranych mieszkań.
Termin oddania
2 kw. 2026
Ilość pokoi
1 pokój
Metraż
38,22 m²
Piętro
Parter
Powierzchnie dodatkowe
Ogródek
Kuchnia
otwarta kuchnia
Wysokość pomieszczeń
260 cm wysokości
Ilość poziomów
1 poziom
Oznaczenie oferty
D 0.08

Raport o deweloperze
Poznaj dewelopera bliżej! Pobierz raport, w którym znajdziesz kluczowe informacje o firmie, jej doświadczeniu, nagrodach oraz aktualnych i zrealizowanych inwestycjach.
Budynek i otoczenie
Miejsca postojowe | |
|---|---|
Komórki lokatorskie | dostępne: wielkość: 2-5 m2 |
Standard wykończenia | standard deweloperski Ogrzewanie sieć miejska |
Realizacja inwestycji | rozpoczęcie budowy w 4 kw. 2023 roku, planowane oddanie do użytkowania w 2 kw. 2026 roku |
Udogodnienia | ochrona całodobowa, plac zabaw, monitoring, usługi w budynku, winda |
Przyroda | informacja u dewelopera |
Charakterystyka energetyczna nieruchomości |
|
Rezerwacja i finanse
Rodzaj własności | Odrębna własność z własnością gruntu |
|---|---|
Wysokość czynszu | informacja u dewelopera |
Warunki rezerwacji | 10.000zł zaliczki |
Zabezpieczenie środków | Otwarty mieszkaniowy rachunek powierniczy |
Zdjęcia z budowy
Zobacz na jakim etapie budowy jest ta inwestycja
Lokalizacja inwestycji
Stacja kolejowa - Poznań Karolin - 2257 m
Przystanek Tramwajowy - 165 m
Przystanek Autobusowy - 150 m
Dojazd do centrum: pokaż
W pobliżu 1 km od tej inwestycji znajdują się:
12 kawiarni i restauracji, 40 sklepów, 38 obiektów sportowych, 12 placówek medycznych, 30 placówek edukacyjnych, 67 placów zabaw
Przeczytaj więcej o lokalizacji
Stare Miasto to część Poznania zajmująca powierzchnię 3,8 km kw. W jej obrębie znajdują się takie jednostki administracyjne jak: Chwaliszewo, Dzielnica Cesarska, Garbary, Grobla, Piaski, Piekary, Przepadek, Rybaki, Stare Miasto, Święty Marcin, Święty Wojciech. Łącznie mieszka tu ok. 30 tys. osób. Z zachodu na wschód obszar ten przecina droga nr 92. Od wschodu ograniczony jest rzeką Wartą, od zachodu ul. Obornicką, od południa ul. królowej Jadwigi a od północy Lasem Moralskim. Przy ul. Dworcowej znajduje się dworzec Poznań Główny, jeden z największych w Polsce. Stanowiący serce Poznania rynek Starego Miasta nadal pełni ważne funkcje handlowe i kulturalne. Zabytkowa zabudowa z niepowtarzalnym renesansowym ratuszem na czele, nadaje temu miejscu wyjątkowy klimat. Zainteresowani mogą tu odwiedzić Muzeum Rogalowe, Archeologiczne i Muzeum Historii Miasta Poznania. Znajduje się tu 8 uniwersytetów, w tym Wyższa Szkoła Umiejętności Społecznych, Wyższa Szkoła Handlu i Rachunkowości, Wyższa Szkoła Bankowa w Poznaniu, Wyższa Szkoła Logistyki oraz Wyższa Szkoła Komunikacji i Zarządzania. Największe centra handlowe to Avenida, Stary Browar i Kupiec Poznański. Na Starym Mieście znajdują się też liczne szpitale i przychodnie, m.in. Wielkopolskie Centrum Onkologii, Szpital Miejski im. Z. Strusia, Szpital Prywatny Med Polonia i Specjalistyczny Zakład Opieki Zdrowotnej.
Opis oferty
Nowe 1-pokojowe mieszkanie na sprzedaż o powierzchni 38,22 m² znajduje się w nowo budowanej inwestycji deweloperskiej Naramowicka 100 na Starych Winogradach, ul. Naramowicka 100 (3.8 km od centrum Poznania).
Inwestycja jest realizowana przez MJ Deweloper.
Cała inwestycja składa się z 4 budynków, w których łącznie znajduje się 250 nowych mieszkań.
Na sprzedaż pozostaje 139 ofert o powierzchni od 35 do 155 m².
W budynkach jest od 5 do 7 kondygnacji naziemnych oraz 1 kondygnacja podziemna.
Inwestycja Naramowicka 100 jest w trakcie budowy z planowanym na 2 kw. 2026 roku terminem oddania do użytkowania.
Nowe mieszkanie o oznaczeniu D 0.08 znajduje się na parterze i jest 1-poziomowe. Pomieszczenia mają 260 centymetrów wysokości. W mieszkaniu znajduje się 1 pokój.
Dla przyszłych mieszkańców Naramowicka 100 deweloper przewidział miejsca postojowe podziemne, miejsca postojowe naziemne.
Dzięki temu przyszli właściciele nie będą musieli poszukiwać wolnej przestrzeni parkingowej. Dodatkowo, miejsce postojowe w garażu podziemnym zabezpiecza przed niekorzystnymi warunkami atmosferycznymi.
Opis Inwestycji
Okazyjna cena
Tereny zielone
Pow. dodatkowe
NOWOCZESNE MIESZKANIA W CENTRUM POZNANIA
Naramowicka 100 to nowoczesna inwestycja w Poznaniu, która oferuje komfortowe mieszkania o powierzchni od 25 m2 do 154 m2. Do wszystkich przynależą prywatne strefy relaksu – balkony lub ogródki.
KOMPLEKSOWE OSIEDLE NA WINOGRADACH
W ramach projektu jednocześnie powstają cztery budynki mieszkalne ze wspólną podziemną halą garażową oraz zewnętrznymi miejscami postojowymi. Na parterach dwóch budynków od strony ulicy powstaną także lokale usługowo-handlowe.
MIEJSCE, KTÓRE WPŁYWA NA TWÓJ KOMFORT
Szczegóły. To one decydują o jakości. Przemyślane rozwiązania wpływające na komfort codziennego użytkowania w zestawieniu z jakością użytych materiałów powodują, że Naramowicka 100 może być zarówno Twoim domem, ale również najlepszej zainwestowanymi pieniędzmi, które pracują dla Ciebie. Codziennie.
ZAINWESTUJ W APARTAMENTY Z 8% VAT
W ofercie Naramowickiej 100 znajdują się apartamenty inwestycyjne. Deweloper przygotował tak zwane mieszkania PAKI (mieszkanie PAK to funkcjonalnie 3 odrębne mieszkania) o różnych metrażach i układach. Wszystkie apartamenty sprzedawane są z 8% vatem. Oferujemy także możliwość wykończenia lokali pod klucz.
Mieszkanie znajduje się w inwestycji Naramowicka 100, w której znajdują się w sprzedaży jeszcze 23 podobne nowe mieszkania.





