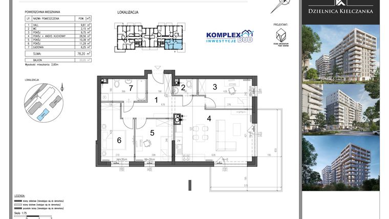
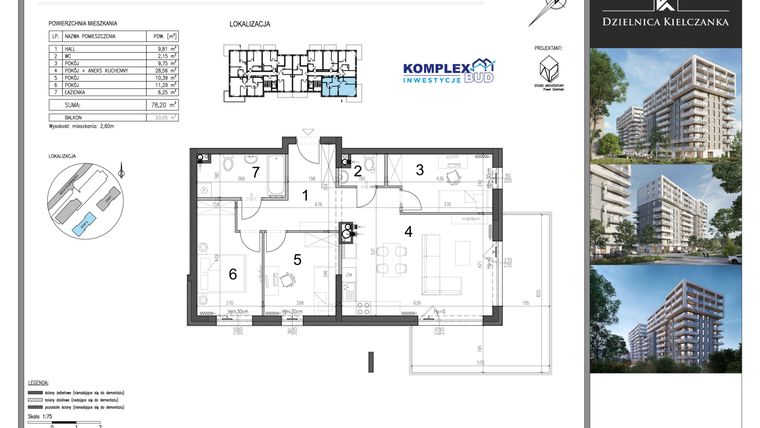
Mieszkanie na sprzedaż 4 pokoje o powierzchni 78,2 m² numer 63
Rezerwacja
Inwestycja:
Dzielnica Kielczanka etap IIDeweloper:
Komplexbud
Inwestycja:
Dzielnica Kielczanka etap IIDeweloper:
KomplexbudKielce, Al. Solidarności
Kielce, Al. Solidarności
Termin oddania
1 kw. 2026
Ilość pokoi
4 pokoje
Metraż
78,2 m²
Piętro
3 piętro
Kuchnia
otwarta kuchnia
Wysokość pomieszczeń
260 cm wysokości
Ilość poziomów
1 poziom
Oznaczenie oferty
63

Raport o deweloperze
Poznaj dewelopera bliżej! Pobierz raport, w którym znajdziesz kluczowe informacje o firmie, jej doświadczeniu, nagrodach oraz aktualnych i zrealizowanych inwestycjach.
Budynek i otoczenie
Miejsca postojowe | |
|---|---|
Komórki lokatorskie | dostępne (49): nieobowiązkowy zakup; od 2,02 do 11,10 m2 |
Standard wykończenia | standard deweloperski Ogrzewanie miejskie |
Realizacja inwestycji | rozpoczęcie budowy w 3 kw. 2024 roku, planowane oddanie do użytkowania w 1 kw. 2026 roku |
Udogodnienia | plac zabaw, monitoring, teren ogrodzony, usługi w budynku, winda, rowerownia, miejsce do ładowania samochodów elektrycznych, rekuperacja, paczkomat |
Przyroda | w okolicy inwestycji znajduje się park |
Charakterystyka energetyczna nieruchomości | informacja u dewelopera |
Rezerwacja i finanse
Rodzaj własności | Odrębna własność z własnością gruntu |
|---|---|
Wysokość czynszu | informacja u dewelopera |
Warunki rezerwacji | Informacja u dewelopera |
Zabezpieczenie środków | Otwarty mieszkaniowy rachunek powierniczy |
Zdjęcia z budowy
Zobacz na jakim etapie budowy jest ta inwestycja
Lokalizacja inwestycji
Stacja kolejowa - Kielce Piaski - 2088 m
Przystanek Autobusowy - 144 m
Dojazd do centrum: pokaż
W pobliżu 1 km od tej inwestycji znajdują się:
40 kawiarni i restauracji, 67 sklepów, 47 obiektów sportowych, 28 placówek medycznych, 63 placówki edukacyjne, 32 place zabaw
Przeczytaj więcej o lokalizacji
Kielce to stolica województwa świętokrzyskiego. Główne zabytki miasta znajdują się w Śródmieściu, które jest typowym centrum administracyjnym, usługowym i kulturalnym Kielc. Obszary mieszkalne w postaci osiedli mieszkaniowych zlokalizowane są wokół centralnej części miasta, a osiedla domów jednorodzinnych leżą na przedmieściach. Kielce są jednym z najszybciej rozwijających się miast Polski, ale nie brakuje tu rozległych terenów zielonych. Kielecki Obszar Chronionego Krajobrazu zajmuje powierzchnię około 3856 ha. Składają się na niego liczne parki oraz Las Komunalny. Stały rozwój przekłada się na rozbudowę infrastruktury społecznej. Mieszczą się tu liczne galerie handlowe, a dzięki ciągłym inwestycjom, wzbogacane jest zaplecze oświatowe, kulturalne i medyczne. Działa tu m.in. kilkanaście szkół wyższych, kilka szpitali i kin. Bogata jest też oferta sportowa miasta.
Opis oferty
Nowe 4-pokojowe mieszkanie na sprzedaż o powierzchni 78,2 m² znajduje się w nowo budowanej inwestycji deweloperskiej Dzielnica Kielczanka etap II w Kielcach (1.9 km od centrum Kielc).
Inwestycja jest realizowana przez Komplexbud.
Cała inwestycja składa się z 1 budynku, w którym łącznie znajduje się 95 nowych mieszkań.
Na sprzedaż pozostają 23 oferty o powierzchni od 56 do 103 m².
W budynku jest 10 kondygnacji naziemnych oraz 2 kondygnacje podziemne.
Inwestycja Dzielnica Kielczanka etap II jest w trakcie budowy z planowanym na 1 kw. 2026 roku terminem oddania do użytkowania.
Nowe mieszkanie o oznaczeniu 63 znajduje się na 3 piętrze i jest 1-poziomowe. Pomieszczenia mają 260 centymetrów wysokości. W mieszkaniu znajdują się 4 pokoje.
Do mieszkania przewidziano możliwość zakupu komórki lokatorskiej, którą można zagospodarować na spiżarnię, warsztat czy składzik.
Dla przyszłych mieszkańców Dzielnica Kielczanka etap II deweloper przewidział miejsca postojowe podziemne.
Dzięki temu przyszli właściciele nie będą musieli poszukiwać wolnej przestrzeni parkingowej. Dodatkowo, miejsce postojowe w garażu podziemnym zabezpiecza przed niekorzystnymi warunkami atmosferycznymi.
Opis Inwestycji
Dzielnica Kielczanka II to kontynuacja budowy nowoczesnego osiedla powstającego przy Alei Solidarności oraz ul. Górnej składające się z 5 budynków 10 piętrowych, budowane etapami, drugi budynek to liczący 94 komfortowych mieszkań oraz 6 lokali usługowych. Szeroka gama zróżnicowanych układów oraz metraży w ofercie pozwala wybrać mieszkanie, które idealnie odpowiada indywidualnym preferencjom każdego klienta. Budynek wyposażony w cichobieżne windy. W części podziemnej zaprojektowano parking oraz komórki lokatorskie o różnych wielkościach. Ciepło dostarczane z sieci miejskiej.
W celu zapewnienia poczucia komfortu i bezpieczeństwa mieszkańcom, teren nieruchomości zostanie ogrodzony oraz wyposażony w instalacje domofonową i monitoring.
Ławeczki wkomponowane w zieleń zagospodarowania terenu będą tworzyły miejsce odpoczynku i relaxu, o najmłodszych mieszkańcach również pomyślano i zaprojektowano bezpieczny plac zabaw w ustronnym miejscu osiedla.
Dzielnica Kielczanka znajduje się w miejscu o dobrze rozwiniętej infrastrukturze miejskiej gdzie wszystko jest pod ręką, uczelnie wyższe, Uniwersytet Jana Kochanowskiego, Politechnika Świętokrzyska, Szkoła Podstawowa przy ul. Leszczyńskiej, przedszkole i żłobek, centra medyczne, Galeria Handlowa Echo, dogodne połączeniem z centrum miasta oraz drogami krajowymi.
Inwestując w tą lokalizację jesteśmy przekonani, że będzie to idealne miejsce do życia dla wszystkich naszych przyszłych klientów, zarówno tych młodszych, rozpoczynających start w dorosłe życie, jak i tych starszych – szukających spokojnego miejsca z dostępem do niezbędnych placówek użyteczności publicznej.
Mieszkanie znajduje się w inwestycji Dzielnica Kielczanka etap II, w której znajduje się w sprzedaży jeszcze 14 podobnych nowych mieszkań.
Komplexbud
Strona internetowa inwestycjiAdres biura sprzedaży:
ul. Szczecińska 34, KielceGodziny otwarcia biura sprzedaży:
- Poniedziałek: 08:00 - 17:00
- Wtorek: 08:00 - 17:00
- Środa: 08:00 - 17:00
- Czwartek: 08:00 - 17:00
- Piątek: 08:00 - 17:00





