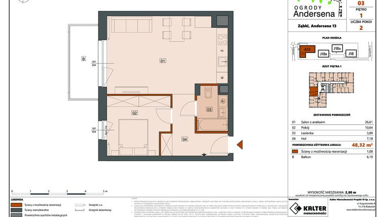
Mieszkanie na sprzedaż 2 pokoje o powierzchni 48,32 m² numer 3A
Inwestycja:
Ogrody AndersenaDeweloper:
Kalter Nieruchomości Sp. z o.o.
Inwestycja:
Ogrody AndersenaDeweloper:
Kalter Nieruchomości Sp. z o.o.Ząbki, ul. Andersena 13
Ząbki, ul. Andersena 13
Termin oddania
3 kw. 2026
Ilość pokoi
2 pokoje
Metraż
48,32 m²
Piętro
1 piętro
Strona świata
południe
Powierzchnie dodatkowe
Balkon
Kuchnia
otwarta kuchnia
Wysokość pomieszczeń
280 cm wysokości
Ilość poziomów
1 poziom
Oznaczenie oferty
3A

Raport o deweloperze
Poznaj dewelopera bliżej! Pobierz raport, w którym znajdziesz kluczowe informacje o firmie, jej doświadczeniu, nagrodach oraz aktualnych i zrealizowanych inwestycjach.
Budynek i otoczenie
Miejsca postojowe | |
|---|---|
Komórki lokatorskie | dostępne (24) |
Standard wykończenia | standard deweloperski Ogrzewanie kotłownia gazowa |
Realizacja inwestycji | rozpoczęcie budowy w 4 kw. 2024 roku, planowane oddanie do użytkowania w 3 kw. 2026 roku |
Udogodnienia | plac zabaw, monitoring, winda, rowerownia, siłownia plenerowa, pompa ciepła |
Przyroda | informacja u dewelopera |
Charakterystyka energetyczna nieruchomości | informacja u dewelopera |
Rezerwacja i finanse
Rodzaj własności | Odrębna własność z własnością gruntu |
|---|---|
Wysokość czynszu | informacja u dewelopera |
Warunki rezerwacji | Informacja u dewelopera |
Zabezpieczenie środków | Otwarty mieszkaniowy rachunek powierniczy |

Zdjęcia z budowy i widok 3D
Zobacz na jakim etapie budowy jest ta inwestycja
Lokalizacja inwestycji
Stacja kolejowa - Ząbki 02 - 1542 m
Przystanek Autobusowy - 229 m
Dojazd do centrum Warszawy: pokaż
W pobliżu 1 km od tej inwestycji znajdują się:
23 kawiarnie i restauracje, 47 sklepów, 17 obiektów sportowych, 16 placówek medycznych, 24 placówki edukacyjne, 34 place zabaw
Przeczytaj więcej o lokalizacji
Ząbki to niewielkie miasto o powierzchni 11 km2, które znajduje się w powiecie wołomińskim i należy do aglomeracji warszawskiej. Miasteczko liczy obecnie prawie 31 tys. mieszkańców i zajmuje w Polsce drugie miejsce pod względem tempa wzrostu liczby ludności. O popularności miejsca decyduje zarówno dogodna lokalizacja w odległości 10 km od centrum Warszawy, jak i zaciszne, zielone okolice, bowiem aż 30% obszaru zajmują tereny leśne. Ząbki to miasto-ogród, w którym występuje niska zabudowa: domy jednorodzinne i nowoczesne bloki czterokondygnacyjne, a także zabytkowe wille, np. Willa Ronikierów, Willa inż. Tołłoczki czy Willa Alina. Centrum handlowo-usługowe miejscowości to Pasaż Orla, gdzie mieszczą się sklepy, biblioteka i sale ekspozycyjne Ośrodka Kultury.
Opis oferty
Nowe 2-pokojowe mieszkanie na sprzedaż o powierzchni 48,32 m² znajduje się w nowo budowanej inwestycji deweloperskiej Ogrody Andersena w Ząbkach, ul. Andersena 13 (0.6 km od Warszawy).
Inwestycja jest realizowana przez Kalter Nieruchomości Sp. z o.o.
Cała inwestycja składa się z 4 budynków, w których łącznie znajdują się 123 nowe mieszkania.
Na sprzedaż pozostają 43 oferty o powierzchni od 44 do 79 m².
W budynkach jest 5 kondygnacji naziemnych oraz 1 kondygnacja podziemna.
Inwestycja Ogrody Andersena jest w trakcie budowy z planowanym na 3 kw. 2026 roku terminem oddania do użytkowania.
Nowe mieszkanie o oznaczeniu 3A znajduje się na 1 piętrze i jest 1-poziomowe. Pomieszczenia mają 280 centymetrów wysokości. W mieszkaniu znajdują się 2 pokoje.
Do mieszkania przewidziano możliwość zakupu komórki lokatorskiej, którą można zagospodarować na spiżarnię, warsztat czy składzik.
Okna w mieszkaniu wychodzą na południe.
Okna wychodzące na południe gwarantują maksymalną ilość naturalnego światła, co czyni wnętrza jasnymi i ciepłymi. Dodatkowo południowa ekspozycja pomaga obniżyć koszty ogrzewania w zimie. Okna na południe są idealne dla osób pragnących cieszyć się jasnym otoczeniem, które sprzyja dobremu samopoczuciu oraz pozytywnej energii.
Dla przyszłych mieszkańców Ogrody Andersena deweloper przewidział miejsca postojowe podziemne, miejsca postojowe naziemne.
Dzięki temu przyszli właściciele nie będą musieli poszukiwać wolnej przestrzeni parkingowej. Dodatkowo, miejsce postojowe w garażu podziemnym zabezpiecza przed niekorzystnymi warunkami atmosferycznymi.
Mieszkanie znajduje się w inwestycji Ogrody Andersena, w której znajduje się w sprzedaży jeszcze 19 podobnych nowych mieszkań.
Kalter Nieruchomości Sp. z o.o.
Strona internetowa inwestycjiAdres biura sprzedaży:
05-091 ZĄBKI, RÓG UL. ANDERSENA/MAZOWIECKAGodziny otwarcia biura sprzedaży:
- Wtorek: 10:00 - 18:00
- Środa: 10:00 - 18:00
- Czwartek: 10:00 - 18:00
- Piątek: 10:00 - 18:00
- Sobota: 10:00 - 15:00





